Как правильно собрать каркас дома. Какой каркасный дом “правильный”?
- Как правильно собрать каркас дома. Какой каркасный дом “правильный”?
- Каркасный дом 6 на 9 своими руками. В чем заключается технология строительства каркасного дома: поэтапно с картинками
- Построить каркасный дом своими руками чертежи. Строим каркасный дом своими руками с нуля
- Каркасный дом своими руками ютуб. Видео о строительстве каркасного дома, пошаговая видеоинструкция
Как правильно собрать каркас дома. Какой каркасный дом “правильный”?
Начну с основного. Почему так сложно говорить про правильный каркасный дом? Потому что единственно верного правильного каркасного дома не существует . Какой сюрприз, не правда ли?
Вы спросите, почему? Да очень просто. Каркасный дом – это большой конструктор со множеством решений. И есть много решений, которые можно назвать правильными. Еще больше решений – “полуправильных”, ну а “неправильных” вообще легион.
Тем не менее среди многообразия решений можно выделить те, которые обычно и имеют в виду, говоря про “правильность”. Это каркас американского и, реже, скандинавского типа.
Почему именно они считаются образцами “правильности”? Все очень просто. Подавляющее большинство частных домов для постоянного проживания в Америке, и очень значимый процент в Скандинавии, построены именно по каркасной технологии. Эта технология там используется уже не один десяток и, возможно, даже сотню лет. За это время набиты все возможные шишки, перебраны все возможные варианты и найдена некая универсальная схема, которая говорит: делай так и с вероятностью 99,9% у тебя все будет хорошо. Причем эта схема является оптимальным решением сразу по нескольким характеристикам:
- Конструктивная надежность решений.
- Оптимальность по трудозатратам при возведении.
- Оптимальность по затратам материалов.
- Хорошие теплотехнические характеристики.
Зачем наступать на собственные грабли, если можно воспользоваться опытом людей, уже наступивших на эти грабли? Зачем изобретать велосипед, если он уже изобретен?
Запомните. Когда где-либо идет речь про “правильный” каркас или про “правильные” узлы каркасного дома, то, как правило, под этим подразумеваются стандартные решения и узлы, применяемые в Америке и Скандинавии. А сам каркас удовлетворяет всем вышеперечисленным критериям.
Какие каркасы можно назвать “полуправильными”? В основном это те, которые отличаются от типовых скандинавско-американских решений, но, тем не менее, также удовлетворяют по крайней мере двум критериям – надежность конструкции и хорошие решения по части теплотехники.
Ну а к “неправильным” я бы отнес все остальные. Причем их “неправильность” зачастую условная. Совсем не факт, что “неправильный” каркас обязательно развалится. Такой сценарий на самом деле вообще крайне редкий, хотя и встречается. В основном “неправильность” заключается в каких-то спорных и не самых лучших решениях. В результате делается сложно там, где можно сделать проще. Используется больше материала там, где можно меньше. Делается более холодная или неудобная для последующих работ конструкция, чем могла бы быть.
Основой недостаток “неправильных” каркасов в том, что они не дают совершенно никаких выигрышей по сравнению с “правильными” или “полуправильными” – ни в надежности, ни в стоимости, ни в трудозатратах… вообще ни в чем .
Или же эти преимущества притянуты за уши и вообще сомнительны. В крайних случаях (а такие есть), неправильные каркасы могут быть опасны и приведут к тому, что капитальный ремонт дома потребуется уже через несколько лет.
Теперь рассмотрим вопрос более детально.
Каркасный дом 6 на 9 своими руками. В чем заключается технология строительства каркасного дома: поэтапно с картинками
Строительный рынок последние несколько лет заполонили так называемые каркасные дома, которые еженедельно в огромном количестве возводятся как фирмами, так и своими руками.
Причина такой любви к «каркасникам» кроется в простоте возведения и темпах строительства.
Поэтапное строительство каркасного дома позволяет за один сезон смонтировать полноценный жилой дом, который будет достаточно презентабельно выглядеть, и отличаться привлекательной ценой и экономичностью в обслуживании. Технология проста для понимания и реализации своими руками.

Каркасный дом своими руками
В чем суть строительства каркасного дома
Как понятно из названия, технология заключается в формировании некоего каркаса из дерева (досок или бруса) или металла, с постепенной поэтапной обшивкой его слоями из пленок, мембран, утеплителей и пр.
Такая многослойная конструкция стен позволяет добиться хороших тепловых характеристик при достаточно тонких стенах.

Стена дома в разрезе без дополнительного утепления пенопластом
Какие же материалы формируют стену?
- утеплитель минеральная вата
- утеплитель листы пенопласта
- гидроизоляция в виде пленки или мембраны
- пароизоляция в виде диффузионной мембраны
- листы ОСБ
- внешняя и внутренняя отделка
Утепление каркасного дома , как мы написали выше, лучше делать двух видов. Изнутри утепляем дом минеральной ватой, а снаружи – листами пенопласта.
Листы пенопласта позволят улучшить звукоизоляции, они являются отличной ветрозащитой и при снижении свойств минеральной ваты со временем (такое может произойти при попадании влаги или росы внутрь стен) позволят сохранить тепловые характеристики дома.

Утепление дома своими руками с помощью матов
Гидроизоляция необходима для защиты утеплителя от влаги, которая поступает снаружи в виде осадков.
Ее необходимо укладывать внахлест, фиксируя специальной липкой лентой для утеплителя. Это позволить сделать 100-процентную защиту от воды.

Гидроизоляция стен изоспаном в каркасном доме
Пароизоляция фиксируется с внутренней стороны стены, и позволяет стенам «дышать».
Капельки влаги, которые могут конденсироваться в стене, спокойно выводятся в комнаты, благодаря чему утеплитель служит гораздо дольше.
При использовании качественных мембран, риск образования грибка на стенах, черных пятен плесени и других побочных эффектах герметичных стен снижается до минимума.
А устройство правильной вентиляции каркасного дома полностью убирает эти риски.

Пароизоляция стен изнутри дома с помощью мембраны своими руками
Листы ОСБ прибиваются поверх всей конструкции, и являются основой, к которой будут крепиться отделочные материалы.
Каждый этап работ можно выполнять своими руками благодаря легкости строительного материала. Технология достаточно проста, а начинать ее необходимо со строительства каркаса.

Обшивка дома ОСБ-плитами
Первый этап строительства: фундамент
Как и любое другое строительство, каркасный дом начинается с возведения фундамента.
Фундамент может быть:
- ленточный
- столбчатый
- свайный
Остальные виды мы рассматривать не будем, так как они используются крайне редко.
В чем суть этих фундаментов?
Ленточный представляет собой монолитный фундамент из бетона, который в жидком состоянии заливают под несущие внешние и внутренние стены.
Для этого необходимо нанести разметку с помощью кольев и веревки, пометить места будущих стен, вырыть траншеи своими руками или экскаватором (минитрактором).
В траншею установить опалубку, которая может быть съемной, несъемной, приобретенной в магазине, взятой в аренду или сколоченной из досок или фанеры своими руками.
Готовую опалубку гидроизолируем обычной пленкой изнутри и заливаем цементную смесь для ленточного фундамента.
Когда она застынет, необходимо снять опалубку и проверить геометрию. При перепадах по высоте –нанести дополнительный слой цемента для выравнивания.

Ленточный фундамент своими руками
Столбчатый фундамент представляет собой столбы, которые устанавливаются в определенных местах: по углам, в местах перекрытия, на расстоянии друг от друга не более 2-2,5 метров.
Столбы могут быть заливные из цемента или сборные из блоков. Заливные делаются также, как при ленточном фундаменте, только вырываются не траншеи, а ямы, в которые устанавливается опалубка квадратной или прямоугольной формы. Опалубка также гидроизолируется.

Столбчатый фундамент под дом
Не забывайте при заливных видах фундамента использовать укосины, так как часто жидкий цемент настолько тяжел, что раздвигает опалубку, сколоченную своими руками.
Важно: не забудьте утопить арматуру в наливных фундаментах или сетку, чтобы сделать его более крепким. Также необходимо на данном этапе установить анкерные болты.
Построить каркасный дом своими руками чертежи. Строим каркасный дом своими руками с нуля
Итак, весна не за горами, поэтому настало самое время подумать о начале строительства своего дома.
Проще всего построить каркасный дом своими руками, для которого не надо нанимать дополнительной спец техники, выбирать подходящую для работ погоду или нанимать бригаду.
Ниже вы узнаете, как построить каркасный дом своими руками, мы постараемся дать самую подробную, пошаговую инструкцию.
Так же вы сможете прикинуть стоимость вашей будущей постройки, перед тем, как начато строительство.

Строим каркасный дом своими руками с нуля
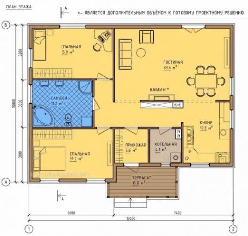
План-проект каркасного дома
Первое, с чего должна начаться подготовка и строительство вашего дома – это план-проект.
Чертеж можно нарисовать самостоятельно, а можно заказать в специальных фирмах, которых сегодня достаточно много.
В целях экономии можно купить готовый проект, или воспользоваться бесплатными типовыми проектами, которые можно скачать в интернете.

Проект каркасного дома
Если вы решили проект рисовать самостоятельно, подумайте, хватит ли вам знаний и умений. Как правило, после наброска эскиза и плана комнат начинаются проблемы.
Если вы знаете, что сможете нарисовать в проекте разводку труб, электричества, указать места розеток и пр. , то вы справитесь с самостоятельными чертежами.
Если обо всем этом вы имеете смутные представления, лучше с зарисовками, которые вы набросаете дома, обратиться к специалистам.
Они также помогут вам подобрать материалы и даже рассчитают примерную стоимость будущей постройки.

Проект с эскизом
Схема дома предлагается в интернете бесплатно, используйте ее для вдохновения.
Самостоятельные проекты можно рисовать для дачных домиков, которые не имеют сложные коммуникации и системы проводки электричества.

Еще один проект с эскизом
Стоимость проекта составляет от 500 рублей до 150 000рублей. Средний проект обойдется вам в районе 5 000 рублей.
Первый этап: подготовка и фундамент
Первым этапом в строительстве каркасного дома является подготовка участка и устройство фундамента.
Для жилого дома чаще всего выбирают ленточный фундамент, хотя легкие деревянные дома при подходящих для строительства почвах (песчаных) могут ставиться и на столбчатый.
Кроме того, последние несколько лет набирают популярность свайно-винтовые фундаменты, однако из-за низкого качества произведенных в нашей стране свай предпочтение все-таки отдается ленточным.

Ленточный фундамент под каркасный дом
Прежде всего, следует расчистить территорию и снять плодородный слой почвы. По возможности необходимо избавиться от перепадов. Далее копаем траншею под опалубку.
Глубина траншеи должна быть не менее 60 см, то есть ниже точки промерзания. Если глубина небольшая, то из-за сезонного движения почв фундамент будет подниматься и опускаться, что спровоцирует его ранее разрушение. Ширина фундамента должна быть минимум 30 см.

Дом на свайном фундаменте
В траншее следует установить опалубку. Выбор опалубки зависит от вашего кошелька, свободного времени и желания приложить руку к ее созданию. Желающие сэкономить могут собрать опалубку из старых досок.
Естественно между досками остаются щели, в которые может проникнуть жидкий цемент во время заливки фундамента. Решить эту проблему можно с помощью пленки, которой выстилаются стенки опалубку.
Чтобы во время заливки опалубка не сломалась (так как тяжелый цемент давит на стенки с большой силой), устанавливают распорки. В подготовленную таким способом траншею укладывают арматуру.
В это же время должны быть установлены анкерные болты, на которые потом будут насажены доски или брус для нижней обвязки.
Анкерные болты также можно устанавливать в уже готовый фундамент, просверлив под них отверстия. Однако этот способ считается менее надежным.

Столбчатый фундамент для каркасного дома
Когда все эти манипуляции сделаны, можно заливать цемент. Он должен быть не слишком жидким, по консистенции – как густая сметана. Используя лопату разравнивает поверхность, стараясь, чтобы уровень поверхности будущего фундамента был ровным.
Фундамент должен застывать несколько недель. Если в это время начинаются дожди, то фундамент стоит укрыть пленкой. Незастывший цемент боится заморозков, поэтому все эти работы стоит выполнять тогда, когда температура не опускается ниже 0 градусов.
Через 3 недели опалубку, если вы использовали съемную, можно снимать. Несъемные опалубки, продающиеся в магазинах, трогать не надо. Они выполнят функцию дополнительной защиты основы под дом от внешних факторов. Но и стоимость их гораздо выше, чем тех, которые можно сделать своими руками.

Опалубка для ленточного фундамента, построенная своими руками из досок
Стоимость самостоятельно построенного фундамента с материалами составит около 2-3 тыс. долларов. Строительство фундамента от специалиста обойдется минимум в 2 раза дороже.
Схема различных видов фундаментов есть в нашей статье .
Возводим каркас дома
Строительство каркаса начинается с обвязки. Сделать ее можно из бруса или доски. Обвязка – это первый деревянный слой, который укладывается на фундамент.
Источник: https://postroivsesam.info/stati/karkasnyy-dom-svoimi-rukami-nizhnyaya-obvyazka-i-pol
Каркасный дом своими руками ютуб. Видео о строительстве каркасного дома, пошаговая видеоинструкция
Этапы строительства
Перед началом работ необходимо провести подготовительные работы, которые включают в себя:
- Подготовка участка
- Разметка дома
Подготовка подразумевает очищение участка от растений там, где будет располагаться дом.
Это делается еще для того чтобы удобнее в дальнейшем было делать разметку.
Если на месте участка имеется уклон, то далее необходимо будет провести работы по выравниванию.
Разметка является важным этапом, от которого потом будет зависеть сама планировка и ровность стен.
Если разметку выполнили неточно, то в дальнейшем эту ошибку будет поправить очень трудно. Этот этап включает в себя: установку колышков, разметку всех внутренних стен.
Как выбрать фундамент
Так как каркасный дом — это легкое сооружение, то оно не требует мощного углубленного фундамента.
Свайный или ленточный фундамент с заложением до 50 см. отлично подойдет и выдержит нагрузку от такой конструкции.
В данном ролике автор подробно рассказывает про свой опыт изготовления фундамента
Изготовление свайного фундамента
Нижняя обвязка
Нижняя обвязка или как еще её называют лежень – это горизонтальная конструкция, которая передаёт нагрузку от всего дома на фундамент. По низу этой конструкции прокладывают два слоя рубероида, чтобы древесина не впитывала влагу из земли.
Как делается обвязка, смотрите в этом
Обвязка в сырую погоду
Устройство, сборка стен
Следующим этапом работы будет монтаж стен каркасного дома. Сцепка брусьев и досок в этой конструкции производятся гвоздями, а также металлическими уголками. Почти весь этот каркас собирается из досок размерами 50х150 либо 50х299мм.
Подробнее о процессе:
Межкомнатные перегородки
Каркасные перегородки не выполняют несущую функцию, а лишь разделяют пространство между комнатами. Особое внимание при монтаже нужно уделять материалу, из которого построен пол.
Если пол установлен на лагах, которые в свою очередь установлены на открытом грунте, то в качестве перегородки будет служить брус. Установить перегородку можно и на одной балке пола.
Верхняя обвязка
Все вертикально установленные доски сверху фиксируются верхней обвязкой. Для этого понадобится брус точно такого же сечения, как и для нижней обвязки.
Перед началом установки там так же вырезаются посадочные места для вертикальных стоек.
Затем верхняя обвязка фиксируется саморезами по углам. Как все это происходит, можно узнать в этом ролике
Полезная информация тут
Чердачное перекрытие
После того как несущий стеновой каркас полностью правильно установлен можно переходить к монтажу чердачного блочного перекрытия, а после конструкций крыши.
По стойкам стенового каркаса закрепляют балки чердачного перекрытия. Для балок чердака обычно берут толстые доски, которые пропитаны антисептическим составом. Их монтируют на торец, с выполнением запилов на треть ширины.
Полезная информация
Этапы работы
Кровля
Крыша у каркасного дома очень схожа с крышами кирпичных или бетонных домов.
Но всё же строительство крыши каркасного дома будет не таким трудоёмким процессом как в кирпичных или блочных, т.к. крепёж к стенам тут попроще.