Канализация для частного дома. Лучшие септики для частного дома 2022
- Канализация для частного дома. Лучшие септики для частного дома 2022
- Канализация в частном доме, какая лучше. Лучшие септики для частного дома без откачки
- Центральная канализация в частном доме. Подготовительные работы
- Простая канализация в частном доме. Как сделать канализацию в частном доме?
- Канализация септик в частном доме. Как правильно установить септик в частном доме: виды, особенности и монтаж
- Штраф за канализацию в частном доме. Какое наказание следует за самовольный слив отходов
Канализация для частного дома. Лучшие септики для частного дома 2022
Автономная канализация в коттеджах и дачах давно уже не диковинка — выбор септиков для частного дома весьма велик. «Комсомольская правда» составила рейтинг топ-11 лучших септиков, а также подготовила рекомендации по выбору этого агрегата
Лучшие септики для частного дома. Фото: shutterstock
Что представляет из себя и как работает данное устройство? Септик — это автономное очистное сооружение, которое предназначено для бытовых и хозяйственных сточных вод и является наиболее оптимальным решением для организации локальной системы канализации. Очистка в нем происходит методом улавливания нерастворимых отходов и органических веществ в первом отсеке, и последующим их разрушением анаэробными бактериями в других секторах. Устройство пришло на замену устаревшим выгребным ямам, которые часто использовали на дачных и загородных участках по причине дешевизны. Однако существенным недостатком ям является запах, который разносится по всей округе и, как следствие, антисанитария.
В этом случае септик — экологичная альтернатива. Такое решение пусть и обойдется дороже, однако позволит сэкономить средства в будущем, так как мы рассматриваем устройства, оснащенные очистной системой. Септики изготавливают из самых разнообразных материалов. В частности, из кирпича, пластика, железобетона и металла, также существуют и комбинированные варианты. КП представляет подборку лучших септиков для частного дома.
Выбор редакции
«Гринлос Аэро 5 ПР» (низкий корпус)
«Гринлос Аэро» — это аэрационная система, благодаря которой можно добиться полной очистки канализационной жидкости, в том числе производственных стоков. Система достаточно популярна благодаря своей универсальности, а в конструкции предусмотрен отдельный герметичный отсек, который не совмещен с рабочими камерами. Благодаря такому решению при аварийных ситуациях можно не беспокоиться, что произойдет затопление электрооборудования.
В септик встроен аэратор, который предназначен для нагнетания воздуха для размножения аэробных бактерий. Это позволяет максимально очистить стоки. Станция оборудована прочными грунтозацепами, которые не дают всплыть оборудованию даже на обводненных участках. Благодаря низкому корпусу – всего 1,2 м, систему можно устанавливать на участках с высоко проходящими грунтовыми водами, кроме того, установка и обслуживание не создает проблем для пользователя.
«Система «Гринлос Аэро» изготовлена из качественного и толстого полипропилена, что обеспечивает долговечность конструкции. Швы корпуса станции выполнены на станке, что делает шов более прочным. Ее цилиндрический корпус устойчив к сдавливанию и всплытию даже там, где грунтовые воды протекают высоко. В станции есть дополнительная 5 камера — иловый отстойник, который служит для сбора омертвевшего ила, оседающего на дно. Иловый отстойник позволяет производить обслуживание станции самостоятельно. Система продумана, поэтому необходимость ее технического обслуживания сведена к минимуму. Кроме того, она сертифицирована (сертификат ISO 9001) и успешно прошла экспертизу безопасности и качества.
В линейке «Гринлос» также есть кессоны, погреба, колодцы, КНС, бассейны и т.д. Всю продукцию производителя можно приобрести в рассрочку под 0% сроком до 12 месяцев.
Канализация в частном доме, какая лучше. Лучшие септики для частного дома без откачки
Септик для частного дома, не требующий откачки, представлен на рынке России стандартными, усиленными конструкциями для постоянного проживания, временной эксплуатации. Рейтинг изделий включает максимально незаметные конструкции - полное отсутствие запаха, минимальное сервисное обслуживание, небольшая площадь изделий, противостояние грунтовым водам. Модели временного использования отличаются недорогой стоимостью, возможностью установить, обслуживать самостоятельно. Устройства, предназначенные для постоянного проживания, более требовательны к условиям эксплуатации - важно обеспечить рекомендованный минимум стоков, стабильную подачу электроэнергии.

Как правильно выбрать септик для частного дома
Автономные канализации жильцы подбирают индивидуально под условия эксплуатации в конкретном доме. Важными критериями являются:
- Уровень залегания подземных вод, состав почвы. Для сложных грунтов подойдут конструкции, усиленные ребрами жесткости. При высоком залегании грунтовых вод следует отдать предпочтение соответствующей высоте подключения входящей трубы.
- Производительность. Ежедневный объем сбрасываемых стоков определяет производительность септика. Один человек сливает в канализацию 200 л/сутки. Небольшой семье на 3 человека потребуется устройство, перерабатывающее 0,6 м3.
- Материал влияет на срок эксплуатации, безотказность септика. Полимер считается лучшим вариантом, благодаря небольшой массе, дешевизне конструкции.

Важно! Качество септика определяет комфорт проживания постояльцев частного дома.
ТОП 5 лучших септиков для частного дома без откачки - рейтинг 2022 современных моделей
1. Септон
Септик «Септон» - новинка 2020 года! Обслуживает 3-15 человек. Станция обеспечивает глубокую очистку стоков благодаря бактериям, содержащимся в отдельном блоке станции до трех месяцев без поступления органики. Модельный ряд септиков без откачки привлекает многообразием вариантов различной производительности, объема залповых сбросов, глубины врезки подводящего патрубка. Модуль «Смарт» (бесщебневая дренажная система) комплектуется опционально.

Технологические решения лучшего септика 2022 года
Септик «Септон» выполнен из гомогенного интегрально-вспененного сополимера (полипропилен + этилен), выдерживает рабочую температуру +40…-40˚С. Корпус представлен самонесущим цилиндрическим сосудом, оснащенным прямоугольной крышкой. Горловина, крышка окрашена зеленым цветом. Круглая форма, один сварной шов обеспечивает длительную эксплуатацию септика - 25 лет. Изделие обладает минимальными габаритами, занимает 2 м2 площади участка.

Стоки очищаются биологическим методом, используя взвешенный активный ил. Воздух подается мембранным трубчатым полимерным аэратором. Соединения азота лучшим образом удаляются в процессе общей биологической очистки. Системы принудительного отвода стоков оснащены встраиваемым накопителем с дренажным насосом. Обеззараживается жидкость встраиваемым ультрафиолетовым обеззараживателем. GSM-система (продается отдельно) оповещает об изменениях работы септика, упрощает управление.

Септик работает без шума, запаха, не требует откачки. Степень переработки стоков достигает 98%. Допускается переоборудование самотечной конструкции в принудительную. Отсутствие хрупких деталей предупреждает механические поломки.
Принцип аэробного биологического действия
Септики «Септон Смарт» для частного дома выдерживают неравномерное поступление стоков, эффективно работают при малой нагрузке, поддерживают жизнедеятельность бактерий при объемных залповых сбросах, исключая вымывание микрофлоры. Биологическая очистка, сопровождающаяся окислением кислородом, уменьшает БПК, позволяет отводить чистую воду без полей фильтрации.
Аэробно-аноксидная переработка стоков позволяет активному илу усваивать органические, химические соединения при наличии, отсутствии растворенного кислорода. Иловая масса, инкубированная из штаммов бактерий, поступающих вместе с органическими отходами, образует колонии бактерий в форме хлопьев, легко отделяющихся от чистой воды. Предупредить разрушение хлопьев активного ила помогают эрлифты, обеспечивающие циркуляцию жидкости пузырьками сжатого воздуха.
Комплект поставки
Базовые модификации септиков «Септон» без откачки включают корпус, компрессор, техпаспорт, отводящий патрубок 110х15°.
Системы принудительного отвода стоков дополнительно комплектуются накопительным баком, хорошим дренажным насосом с поплавковым выключателем, шлангом ПВХ армированным, фитингами и соединителями.
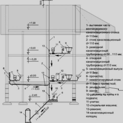
Центральная канализация в частном доме. Подготовительные работы
Глубина и уклон трубопровода регулируются санитарными нормами и правилами
Подготовка проводится в такой последовательности:
- Устанавливается колодец для ревизии. Проведение канализационных сетей в частном доме с подсоединением к общегородской магистрали возможно лишь при его наличии для доступа при аварийной или плановой очистке.
- Выкапывается траншея и подготавливается место, где сливной трубопровод будет присоединяться к колодцу.
- Подключаются к общему выходу уже имеющиеся внутридомовые канализационные системы.
Глубина траншеи должна быть на 5 см ниже планируемого заглубления магистралей. Уклон трубопровода должен быть в среднем 2 см на метр. При незначительном наклоне бытовые отходы стекают медленно, что приводит к засору. Если уклон сделать избыточно крутым, жидкость станет уходить очень быстро, не успевая увлечь за собой грязь. Это также одна из частых причин появления засоров.
Внешняя труба должна быть большего сечения, чем внутренний стояк. Ее диаметр – от 150 мм и до 250 мм. В случае общественной врезки в центральную систему канализации применяют трубы диаметром 250 мм, для установки отводов к дворовым территориям используют элементы с меньшим сечением. На участке подключения каждого дома устанавливают дополнительный инспекционный колодец.
При определении ширины рва ориентируются на следующий критерий: для магистрали сечением 110 мм котлован должен быть не уже 60 см. При ином сечении траншейную ширину рассчитывают пропорционально.
После завершения всех подготовительных работ можно обращаться в городскую службу, которая занимается подсоединением частного дома к городской канализации.
Простая канализация в частном доме. Как сделать канализацию в частном доме?
Обеспечение комфорта и качественной жизни в загородном доме является важным моментом для любого владельца такой постройки. Одним из факторов, которые позволяют обеспечить комфортную жизнь, является удобство оттока использованной воды и продуктов жизнедеятельности. Правильно рассчитанная на стадии проектирования и впоследствии правильно построенная канализация в частном доме будет залогом длительной эксплуатации, при которой не возникнет никаких проблем. Подобную конструкцию можно создать своими руками, если подойти к вопросу с максимальной ответственностью.

Основные требования
Во избежание каких-либо проблем в процессе создания канализации в собственном доме, лучше всего максимально следовать в данном процессе всем требованиям и стандартам, что расписаны в нормативной документации – СНиП. В этом случае все точно будет функционировать безотказно на протяжении длительного периода времени.
В какой угодно постройке, где проложен водопровод и есть забор воды, должна быть выполнена система, которая будет выводить стоковые массы. Механизмы водоотвода должны быть созданы и на участках. В целом такая сеть сможет не только обеспечить комфортную жизнь, но и не навредит экологии, а также существенно увеличит время пользования зданием.
Обычно канализация состоит из следующих систем:
- ливневой, которая отводит воду;
- наружной;
- внутренней.
Их необходимо проложить так, чтобы были соблюдены различные строительные сантребования к канализации в собственном доме.
Среди таких требований можно назвать:
- обеспечение нормального очищения;
- отсутствие риска в вопросе затопления постройки;
- обеспечение необходимого объема сточных вод;
- герметичное накапливание и транспортировка сточных вод.
Если говорить о требованиях к внутренним системам такого типа, то состоять они должных из следующих элементов:
- стояка, к которому прикрепляются все трубы;
- разведения труб, что осуществляет перекачивание сточных вод в направлении стояка;
- сантехприборов для водоотвода.


По нормам в механизме, часть которого расположена в постройке, должно быть достаточно места для свободного транспортирования жидкости от мест, где осуществляется слив до труб, которые осуществляют вывод за пределы постройки. При прокладывании канализации внутри постройки используют трубы из чугуна либо каких-то полимеров. На выходе размер такой трубы должен составлять 11 сантиметров. Естественно, что в данном механизме должна быть еще и вентиляция. Обычно ее проводят через стояк. Над каждым элементом делают вытяжное место, выходящее на крышу.


Если говорить о проекте наружных систем, то его создание осуществляется с учетом требований, прописанных в СНиП за номером 2.04.03-85.
По этому нормативному документу следует учесть следующие моменты:
- в механизме должны устанавливаться колодцы для обслуживания и очищения;
- для вычищения стоков нужна установка с применением биометодов;
- если речь идет о самотечной сети, то применяют полимерные, керамические или асбестоцементные трубы;
- трубы, которые размещены за границами постройки, должны быть в диаметре около пятнадцати сантиметров и заложены на уровне десяти-двенадцати сантиметров;
- если в строении мало этажей, то можно скооперировать несколько домов в единую сеть;
- если нельзя устроить самотечную систему, то лучше сделать выбор в пользу напорной канализации.


Еще один важный момент – подбор конструкции. Это действительно важно при проектировании канализационной автономной сети.
Тут могут быть три варианта септиков, которые используются:
- аэротенки;
- накопительный септик;
- очистной.
Теперь скажем о них чуть подробнее. Аэротенки – новейшие решения с использованием нескольких очистительных методик. После применения подобного септика жидкость очищается почти до 100-процентного значения. Воду можно легко выводить в землю, водоем и применять для полива. Септик накопительной категории является улучшенным вариантом выгребной ямы, в которой очистка не осуществляется, а лишь собираются стоки. Когда септик наполняется до определенного уровня, появляется необходимость его очистки. Обычно это осуществляется при помощи специального ассенизаторского оборудования.
Если говорить об отличиях от выгребной ямы, то никакой фильтрации в грунт в этом случае не осуществляется. Это значит, что никакого вреда экологии не наносится. Но все же данный вид септика применяется в последние годы крайне нечасто по причине дороговизны стоимости услуг специальной ассенизаторской техники. Такой тип можно использовать лишь тогда, если в доме вы проживаете сравнительно нечасто.
Канализация септик в частном доме. Как правильно установить септик в частном доме: виды, особенности и монтаж
8 мин.
Канализация
Для многих горожан загородный дом становится мечтой, воплощенной в реальность. Однако для того, чтобы он был настолько же комфортным, как и квартиры в многоэтажных домах, хозяевам приходится изрядно потрудиться. Если с обустройством водопровода обычно не возникает ни малейших проблем, то организация автономной системы для сбора стоков нередко вызывает много вопросов. Чтобы создать локальную канализацию, многие хозяева выбирают герметичную, безопасную, практичную емкость — септик. Эта очистная станция не только собирает сточные воды, но и фильтрует их. Но чтобы система работала эффективно, важен ее корректный монтаж. Поэтому владельцам необходимо узнать заранее, какие требования предъявляют к сооружению, как правильно установить септик в частном доме.
Что такое септик?
Эти конструкции появились не так давно. Раньше их заменяли выгребные ямы, в которые либо устанавливали емкость, либо оставляли их как есть. Такие решения давно непопулярны, главные их недостатки — постоянное загрязнение почвы, неприятные запахи на участке, небольшой объем жидких отходов, которые можно переработать.

Септик — герметичное сооружение, состоящее из нескольких камер, соединенных трубами. Его предназначение — сбор и последующая очистка сточных бытовых вод. Отработанная жидкость в этой системе отстаивается, постепенно очищается, перетекает из одного отсека в другой. Чем больше количество отделений, тем чище становится вода. Очистительные системы бывают разных видов, размеров, методы фильтрации тоже могут немного отличаться. Выбор сооружения зависит от грунта на участке, от свободного места, от желания хозяев потратить ту или иную сумму на обустройство эффективной очистки.
Септик имеет несколько функциональных отсеков. Сначала отработанная вода по канализационным трубам попадает в первую камеру. Там происходит первичное отстаивание. Самые крупные частицы оседают на дно, а жир, наоборот, всплывает на поверхность. Затем эта отстоявшаяся жидкость следует во второй отсек. В нем таким же образом отсеиваются более мелкие частицы. Вода с более высоким уровнем очистки, наконец, следует в фильтрационный колодец, где она окончательно очищается от всех примесей, а затем уходит в грунт. Третья камера есть не у всех сооружений. Все зависит от типа конструкции.
Разновидность сооружений

Перед тем как перейти к вопросу, как правильно установить септик в частном доме, необходимо познакомиться с типами конструкций, так как вариантов есть довольно много — от самых простых до максимально сложных, оснащенных биофильтрами. Септики продаются полностью готовыми к установке, а их монтажом обычно занимаются специалисты. Но в любом правиле возможны исключения: если познакомиться с требованиями и порядком работ, то все этапы можно провести самостоятельно.
Септиков сейчас существует три основных разновидности, отличаются они принципом работы системы.
Накопительные
Это простейший вариант, который является базовым для остальных видов систем очистки. В этом случае используется емкость, в которую поступают жидкие отходы. По большому счету эта та же выгребная яма, для ее опорожнения требуется ассенизаторская машина. Эта конструкция приемлема только для домов, где не живут постоянно.

Штраф за канализацию в частном доме. Какое наказание следует за самовольный слив отходов
Многих владельцев частных домов или дач интересует, какой штраф за слив канализации в канаву может быть установлен виновникам. Это вполне правомерный вопрос, так как вред от этого наносится не только жителям соседних домов. В сложных случаях такая ситуация приравнивается к локальной экологической катастрофе.
Ответственность за подобные действия определена в ст.8.2 КОАП РФ. Штраф за слив канализации в канаву или другие участки рельефа составляет:
- для физических лиц — от 1 до 2 тыс. руб.;
- для людей, занимающих определенные должности — от 10 до 30 тыс. руб.;
- ИП — 30-50 тыс. руб.;
- для предприятий — 100-250 тыс. руб.