Каркасно-щитовой дом своими руками. Построить каркасно-щитовой дом своими руками
- Каркасно-щитовой дом своими руками. Построить каркасно-щитовой дом своими руками
- Щитовой дом своими руками: пошаговая инструкция. В чем заключается технология строительства каркасного дома: поэтапно с картинками
- Как построить каркасный дом 6х6 своими руками. Каркасный дом 6х6 своими руками: пошаговая инструкция
- Современный каркасный дом своими руками. Строим каркасный дом своими руками с нуля
- Своими руками каркасный дом. Как быстро и недорого построить каркасный дом своими руками
Каркасно-щитовой дом своими руками. Построить каркасно-щитовой дом своими руками
Щитовой дом своими руками – специальное сооружение, которое собирается из плоских многослойных каркасных щитов. За счет того, что щиты в основном производятся в заводских условиях, собираются на объекте они по типу конструктора, в итоге на процесс строительства может уйти меньше месяца.

Каркасно-щитовой с мансардой.
Каркасно-щитовой дом в Московской области является одним из актуальных предложений, а также и для других регионов нашей страны. Также технология каркасно-щитового строительства довольно популярна во всем мире за счет простоты возведения и оперативности работы по монтажу.
Каркасно-щитовые дома своими руками являются очень надежными и способны справляться с повышенными нагрузками, поэтому они часто строятся в сейсмически нестабильных районах. Кроме того, в каркасно-щитовом доме оптимальная температура и зимой, и летом, за счет чего можно значительно сэкономить на отоплении. По типу, как будут возводить каркас щитового дома принято подразделять его на виды:
- Деревянный каркас. Сборка каркасной коробки ведется из пиломатериалов. Главное преимущество – с деревом легко работать, для распилки не требуется специализированный инструмент, недостаток – все деревянные конструкции необходимо обработать специальными растворами против возгорания, грибков, паразитов.
- Металлический каркас. Возводится из уголков и труб квадратного сечения. Недостатки – для работы необходимы более сложные инструменты, стоимость конструкции будет выше, чем в случае возведения деревянного каркасника. Достоинство – постройка получается более прочной и максимально устойчивой.
- Каркас из ЛСТК. Конструкция имеет легкий вес и не требует дополнительной обработки, выделяется продолжительным сроком службы. Недостаток – высокая стоимость.

Строительство каркасно-щитового.
Каркасно-щитовые дома в Москве и других регионах нашей страны считаются оптимальным вариантом для дачного и загородного строительства. Такая конструкция довольно быстро возводится, не требует значительных затрат на строительство и отличается повышенной прочностью.
На современном рынке представлено множество проектов, которые могут удовлетворить запросы любого покупателя. В первую очередь необходимо посмотреть как строится каркасно-щитовой дом своими руками на фото или на
Еще одно преимущество – скрытая прокладка коммуникаций, за счет чего можно реализовать любые дизайнерские проекты во внешней и внутренней отделке. Среди недостатков строительства щитовой постройки выделяют:
- Дерево необходимо подвергать дополнительной защите от грызунов и грибка.
- Готовый каркасно-щитовой дом сложно перепланировать, поэтому надо заранее детально продумать планировку.
- Достаточно внушительный вес щитовых конструкций, поэтому потребуется брать в аренду кран для их монтажа.
Щитовой дом своими руками: пошаговая инструкция. В чем заключается технология строительства каркасного дома: поэтапно с картинками
Строительный рынок последние несколько лет заполонили так называемые каркасные дома, которые еженедельно в огромном количестве возводятся как фирмами, так и своими руками.
Причина такой любви к «каркасникам» кроется в простоте возведения и темпах строительства.
Поэтапное строительство каркасного дома позволяет за один сезон смонтировать полноценный жилой дом, который будет достаточно презентабельно выглядеть, и отличаться привлекательной ценой и экономичностью в обслуживании. Технология проста для понимания и реализации своими руками.

Каркасный дом своими руками
В чем суть строительства каркасного дома
Как понятно из названия, технология заключается в формировании некоего каркаса из дерева (досок или бруса) или металла, с постепенной поэтапной обшивкой его слоями из пленок, мембран, утеплителей и пр.
Такая многослойная конструкция стен позволяет добиться хороших тепловых характеристик при достаточно тонких стенах.

Стена дома в разрезе без дополнительного утепления пенопластом
Какие же материалы формируют стену?
- утеплитель минеральная вата
- утеплитель листы пенопласта
- гидроизоляция в виде пленки или мембраны
- пароизоляция в виде диффузионной мембраны
- листы ОСБ
- внешняя и внутренняя отделка
Утепление каркасного дома , как мы написали выше, лучше делать двух видов. Изнутри утепляем дом минеральной ватой, а снаружи – листами пенопласта.
Листы пенопласта позволят улучшить звукоизоляции, они являются отличной ветрозащитой и при снижении свойств минеральной ваты со временем (такое может произойти при попадании влаги или росы внутрь стен) позволят сохранить тепловые характеристики дома.

Утепление дома своими руками с помощью матов
Гидроизоляция необходима для защиты утеплителя от влаги, которая поступает снаружи в виде осадков.
Ее необходимо укладывать внахлест, фиксируя специальной липкой лентой для утеплителя. Это позволить сделать 100-процентную защиту от воды.

Гидроизоляция стен изоспаном в каркасном доме
Пароизоляция фиксируется с внутренней стороны стены, и позволяет стенам «дышать».
Капельки влаги, которые могут конденсироваться в стене, спокойно выводятся в комнаты, благодаря чему утеплитель служит гораздо дольше.
При использовании качественных мембран, риск образования грибка на стенах, черных пятен плесени и других побочных эффектах герметичных стен снижается до минимума.
А устройство правильной вентиляции каркасного дома полностью убирает эти риски.

Пароизоляция стен изнутри дома с помощью мембраны своими руками
Листы ОСБ прибиваются поверх всей конструкции, и являются основой, к которой будут крепиться отделочные материалы.
Каждый этап работ можно выполнять своими руками благодаря легкости строительного материала. Технология достаточно проста, а начинать ее необходимо со строительства каркаса.

Обшивка дома ОСБ-плитами
Первый этап строительства: фундамент
Как и любое другое строительство, каркасный дом начинается с возведения фундамента.
Фундамент может быть:
- ленточный
- столбчатый
- свайный
Остальные виды мы рассматривать не будем, так как они используются крайне редко.
В чем суть этих фундаментов?
Ленточный представляет собой монолитный фундамент из бетона, который в жидком состоянии заливают под несущие внешние и внутренние стены.
Для этого необходимо нанести разметку с помощью кольев и веревки, пометить места будущих стен, вырыть траншеи своими руками или экскаватором (минитрактором).
В траншею установить опалубку, которая может быть съемной, несъемной, приобретенной в магазине, взятой в аренду или сколоченной из досок или фанеры своими руками.
Готовую опалубку гидроизолируем обычной пленкой изнутри и заливаем цементную смесь для ленточного фундамента.
Когда она застынет, необходимо снять опалубку и проверить геометрию. При перепадах по высоте –нанести дополнительный слой цемента для выравнивания.

Ленточный фундамент своими руками
Столбчатый фундамент представляет собой столбы, которые устанавливаются в определенных местах: по углам, в местах перекрытия, на расстоянии друг от друга не более 2-2,5 метров.
Столбы могут быть заливные из цемента или сборные из блоков. Заливные делаются также, как при ленточном фундаменте, только вырываются не траншеи, а ямы, в которые устанавливается опалубка квадратной или прямоугольной формы. Опалубка также гидроизолируется.

Столбчатый фундамент под дом
Не забывайте при заливных видах фундамента использовать укосины, так как часто жидкий цемент настолько тяжел, что раздвигает опалубку, сколоченную своими руками.
Важно: не забудьте утопить арматуру в наливных фундаментах или сетку, чтобы сделать его более крепким. Также необходимо на данном этапе установить анкерные болты.
Как построить каркасный дом 6х6 своими руками. Каркасный дом 6х6 своими руками: пошаговая инструкция
Технология каркасного строительства домов — современная, экономичная, несложная — заслуженно завоевала популярность в Москве.
Существует несколько способов возведения таких домов, и один из них — каркасно-рамочный — заключается в сборке каркаса прямо на площадке.
Этот метод подходит для воплощения любого дизайн-проекта.
А его простота позволяет обходиться своими силами, не привлекать специалистов-строителей и тяжёлую строительную технику.
В статье подробно описывается пошаговая инструкция по сбору своими руками каркасного дома размером 6х6.
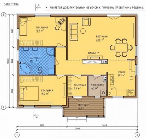
Проект каркасного дома 6х6
Планируя возведение частного малоэтажного жилья в Москве своими руками, можно принимать за основу среднее время постройки дома по каркасной технологии. Оно составляет максимум 2 месяца.
Можно возвести не только жилой дом, но и гараж, баню и любые другие виды строений. Соблюдая все пункты инструкции, можно добиться отличной шумо-, звуко- и теплоизоляции.

План каркасного дома 6 на 6
Считается, что строительство своими руками всегда требует расходов на 10-20% процентов больше запланированной суммы.
Но, даже если учитывать этот факт, каркасное строение потребует гораздо меньше затрат, чем кирпичное или блочное здание. А сведённые к минимуму теплопотери помогут сэкономить на коммунальных платежах.
В проектной организации или у частных дизайнеров можно выбрать готовый стандартный проект каркасного жилища (одноэтажного 6х6, двухэтажного, с мансардой, с гаражом) или заказать индивидуальный вариант.
Преимущество распространённого проекта 6х6 очевидно, ведь стандартная длина доски как раз составляет 6 м.
Процесс строительства, не осложнённый дополнительными проблемами по поиску нестандартных материалов, пойдёт гораздо быстрее.
Фундамент для каркасного дома 6х6
Для каркасных домов пошаговая инструкция предусматривают один из следующих типов фундамента:
- ленточно-столбчатый;
- ленточный;
- свайный;
- монолитный.
Первый вариант фундамента каркасного дома 6х6 связан с вбиванием свай и применяется в местности, где летом появляются грунтовые воды, а зимой почва сильно промерзает.
Устанавливайте этот тип фундамента в 3 этапа.
- Сделайте траншеи по всему периметру будущего дома.
- Поставьте железобетонные столбы с определённым интервалом, забивая их на всю глубину промерзания.
- Залейте траншеи цементом.
Если вы предпочли второй вариант, сделайте траншеи и укрепите их железными прутьями.
Для третьего вида фундамента — монолитного — нужно установить цементную платформу.
Каркас пола каркасного дома 6х6
Следующий этап пошаговой инструкции — конструирование каркаса пола.
- Для того, чтобы древесина не пропитывалась влагой от бетонного основания, необходима гидроизоляция. Покройте основание битумной мастикой или гидроизолом.
- По периметру фундамента зафиксируйте доски (лежни) из хорошо просушенной древесины.
- Между ними положите доски обвязки способом на ребро через каждые 40-50 см.
- К этим доскам прикрепите лаги — доски, равномерно передающие нагрузку на фундамент.
- Заложите листы утепления (например, плиты пенополистирола).
- Затем поверх утеплителя положите черновой деревянный пол и вразбежку закройте его листами фанеры.
Возведение стен каркасного дома 6х6
Каркас дома 6х6 собирается из брусьев, и от того, насколько прочно ли они скреплены, будет зависеть долговечность строения.
Самыми надёжными считаются крепления типа шип-паз или вырубки. Для уверенности производят дополнительную фиксацию с помощью стальных уголков, держателей, пластин.
Сборка каркаса 6х6 начинается с возведения вертикальных стоек фасада и внутренних перегородок с шагом 40-60 см. Кроме качества соединения, важны и характеристики бруса.
Рекомендуется использовать материал заводского производства, а не самостоятельно обработанный. Ведь чем лучше качество обработки, тем точнее будет подгонка элементов будущего дома 6х6.

Каркасный дом 6х6 одноэтажный
Строительство крыши каркасного дома 6х6
Форму и количество скатов крыши можно выбрать любые. Как правило, большинство предпочитает простую двускатную кровлю.
Целесообразно устроить под крышей мансарду. Для этого, монтируя стропильную систему, нужно установить дополнительное утепление.
Важно правильно рассчитать толщину бруса: она зависит от нагрузки на кровлю, а также нужно брать в расчёт снег, который будет оседать зимой.
Внутренняя и внешняя отделка каркасного дома 6х6
Когда каркас и кровля каркасного дома 6х6 сделаны, приходит черёд утеплять фасады. На рынке представлено множество современных материалов с высокими показателями тепло- и звукоизоляции.
Самые популярные утеплительные материалы — минераловата и пенополистирол. Утеплитель крепится между стойками каркаса и закрепляется монтажной пеной.
Фасад обшивают сайдингом, фасадной плиткой, отделывают кирпичом, наносят на поверхность краску или декоративную штукатурку.
Внутреннюю поверхность стен отделывают, как и любой другой дом, обоями, керамической плиткой.
Пол покрывают линолеумом, ламинатом или любыми другими напольными отделочными материалами.
Источник: https://gorizont-pro.ru/novosti/kak-stroitsya-karkasnyy-dom-nizhnyaya-obvyazka-i-pol
Современный каркасный дом своими руками. Строим каркасный дом своими руками с нуля
Итак, весна не за горами, поэтому настало самое время подумать о начале строительства своего дома.
Проще всего построить каркасный дом своими руками, для которого не надо нанимать дополнительной спец техники, выбирать подходящую для работ погоду или нанимать бригаду.
Ниже вы узнаете, как построить каркасный дом своими руками, мы постараемся дать самую подробную, пошаговую инструкцию.
Так же вы сможете прикинуть стоимость вашей будущей постройки, перед тем, как начато строительство.

Строим каркасный дом своими руками с нуля
План-проект каркасного дома
Первое, с чего должна начаться подготовка и строительство вашего дома – это план-проект.
Чертеж можно нарисовать самостоятельно, а можно заказать в специальных фирмах, которых сегодня достаточно много.
В целях экономии можно купить готовый проект, или воспользоваться бесплатными типовыми проектами, которые можно скачать в интернете.

Проект каркасного дома
Если вы решили проект рисовать самостоятельно, подумайте, хватит ли вам знаний и умений. Как правило, после наброска эскиза и плана комнат начинаются проблемы.
Если вы знаете, что сможете нарисовать в проекте разводку труб, электричества, указать места розеток и пр. , то вы справитесь с самостоятельными чертежами.
Если обо всем этом вы имеете смутные представления, лучше с зарисовками, которые вы набросаете дома, обратиться к специалистам.
Они также помогут вам подобрать материалы и даже рассчитают примерную стоимость будущей постройки.

Проект с эскизом
Схема дома предлагается в интернете бесплатно, используйте ее для вдохновения.
Самостоятельные проекты можно рисовать для дачных домиков, которые не имеют сложные коммуникации и системы проводки электричества.

Еще один проект с эскизом
Стоимость проекта составляет от 500 рублей до 150 000рублей. Средний проект обойдется вам в районе 5 000 рублей.
Первый этап: подготовка и фундамент
Первым этапом в строительстве каркасного дома является подготовка участка и устройство фундамента.
Для жилого дома чаще всего выбирают ленточный фундамент, хотя легкие деревянные дома при подходящих для строительства почвах (песчаных) могут ставиться и на столбчатый.
Кроме того, последние несколько лет набирают популярность свайно-винтовые фундаменты, однако из-за низкого качества произведенных в нашей стране свай предпочтение все-таки отдается ленточным.

Ленточный фундамент под каркасный дом
Прежде всего, следует расчистить территорию и снять плодородный слой почвы. По возможности необходимо избавиться от перепадов. Далее копаем траншею под опалубку.
Глубина траншеи должна быть не менее 60 см, то есть ниже точки промерзания. Если глубина небольшая, то из-за сезонного движения почв фундамент будет подниматься и опускаться, что спровоцирует его ранее разрушение. Ширина фундамента должна быть минимум 30 см.

Дом на свайном фундаменте
В траншее следует установить опалубку. Выбор опалубки зависит от вашего кошелька, свободного времени и желания приложить руку к ее созданию. Желающие сэкономить могут собрать опалубку из старых досок.
Естественно между досками остаются щели, в которые может проникнуть жидкий цемент во время заливки фундамента. Решить эту проблему можно с помощью пленки, которой выстилаются стенки опалубку.
Чтобы во время заливки опалубка не сломалась (так как тяжелый цемент давит на стенки с большой силой), устанавливают распорки. В подготовленную таким способом траншею укладывают арматуру.
В это же время должны быть установлены анкерные болты, на которые потом будут насажены доски или брус для нижней обвязки.
Анкерные болты также можно устанавливать в уже готовый фундамент, просверлив под них отверстия. Однако этот способ считается менее надежным.

Столбчатый фундамент для каркасного дома
Когда все эти манипуляции сделаны, можно заливать цемент. Он должен быть не слишком жидким, по консистенции – как густая сметана. Используя лопату разравнивает поверхность, стараясь, чтобы уровень поверхности будущего фундамента был ровным.
Фундамент должен застывать несколько недель. Если в это время начинаются дожди, то фундамент стоит укрыть пленкой. Незастывший цемент боится заморозков, поэтому все эти работы стоит выполнять тогда, когда температура не опускается ниже 0 градусов.
Через 3 недели опалубку, если вы использовали съемную, можно снимать. Несъемные опалубки, продающиеся в магазинах, трогать не надо. Они выполнят функцию дополнительной защиты основы под дом от внешних факторов. Но и стоимость их гораздо выше, чем тех, которые можно сделать своими руками.

Опалубка для ленточного фундамента, построенная своими руками из досок
Стоимость самостоятельно построенного фундамента с материалами составит около 2-3 тыс. долларов. Строительство фундамента от специалиста обойдется минимум в 2 раза дороже.
Схема различных видов фундаментов есть в нашей статье .
Возводим каркас дома
Строительство каркаса начинается с обвязки. Сделать ее можно из бруса или доски. Обвязка – это первый деревянный слой, который укладывается на фундамент.
Своими руками каркасный дом. Как быстро и недорого построить каркасный дом своими руками
Каркасный дом – это прекрасная возможность обзавестись собственным комфортным жильем за приемлемые деньги и в короткий срок. Но чтобы первый сильный ветер или пучение грунта не сложили его как карточный домик, необходимо знать четкую последовательность выполнения работ и некоторые секреты каркасного строительства. Приводим пошаговую инструкцию, как правильно.

Дизайн-проект и чертеж дома
Существенно сократить сроки строительства, избежать многих ошибок и уменьшить расход материалов вам поможет дизайн-. Но это не только проработка интерьера комнат. Дизайн-проект включает в себя и чертежи . Для фундамента, стропильной системы и каркаса стен они просто необходимы.
Чертежи помогают рассчитать расход строительных материалов и нагрузку на конструктивные элементы. В них отражены размеры всех деталей и узлов, их пропорции и способы соединения, разводка инженерных коммуникаций.

Для разработки дизайн-проекта и чертежей вы можете обратиться к профессиональным проектировщикам или попробовать освоить специализированные программы. Для примера: ArchiCAD, Arcon, WoodEngine, CadWork. Однако учтите, что некоторые программы требуют покупки лицензионного ключа и время на освоение.
Укладка фундамента под каркасный дом
Каркасный дом может быть самостоятельно возведен вами на плитном, свайном, столбчатом или ленточном фундаменте. Каждый имеет свои достоинства и недостатки, подходит для определенного типа грунта. Как определить, какой из них выбрать?
Анализ грунта на участке под строительство
Фундамент, подобранный в соответствии с особенностями грунта, – не просто надежная основа всего строения. Это еще и рациональное использование ваших денежных средств. Не всегда каркасному дому нужен дорогостоящий плитный илиглубокого заложения.

Сделать правильный выбор поможет анализ земли , взятой со строительного участка. Что он поможет определить:
- Глубину залегания грунтовых вод. Если они протекают близко к поверхности почвы, придется отказаться от устройства погреба.
- Качественный состав земли (мелкий песок, гравий, глина и др.). Наилучший вариант для строительства –гравийный грунт, наихудший – мелкопесчаный.
- Глубину промерзания грунта. Чем она больше, тем более трудоемкими и дорогостоящими будут работы по закладке фундамента.
Для исследования можно самому выкопать яму глубиной не менее полутора метров, взять пробы земли и отнести их в лабораторию. Менее трудоемкий вариант – приглашение инженеров-геологов непосредственно на строительную площадку.
Особенности ленточного фундамента
Ленточный фундамент представляет собой замкнутый контур из армированного бетона. Его прокладывают под несущими стенами дома по всей их длине.

Несмотря на трудоемкость и дороговизну укладки, ленточное основание является оптимальным вариантом для каркасного дома. Оно имеет большую несущую поверхность, позволяет обустроить подвал и выполнить строительные работы даже на пучинистом грунте.
Последовательность возведения ленточного фундамента:
- Рытье траншеи и укладка песчаной подушки на ее дно.
- Гидроизоляция стенок траншеи.
- Монтаж деревянной опалубки.
- Сборка и установка армирующей сетки.
- Заливка опалубки бетоном и его уплотнение.

Высота ленточного фундамента должна быть минимум в 2 раза больше его ширины. При таких условиях в нем не возникает поперечная деформация.
Свайно-винтовой фундамент – простое и доступное основание для дома
Свайно-винтовой фундамент позволяет без опыта строительства возводить жилой дом на слабых и участках с неровным рельефом. Он становится надежной опорой для стен, так как сваи прочно цепляются за твердые породы ниже уровня промерзания грунта.

Винтовые сваи – металлические стержни, на заостренные концы которых приварены лопасти. Такая конструкция позволяет просто вкрутить их в землю, как сверло. Это можно сделать с помощью привлеченной специальной техники или вручную. Но в последнем случае понадобится не менее трех человек.
Укладка столбчатого фундамента
Столбчатое основание возводят только на стабильных грунтах с высокой несущей способностью.
Работы выполняют пошагово:
- По выбранному периметру в земле бурят круглые скважины.
- В них устанавливают связанный из арматуры металлический каркас.
- Опускают в скважины опалубку из обсадных труб.
- Обрезают надземные элементы по одному уровню.
- Заливают скважины бетоном и уплотняют его.

Высота оголовков (надземная часть столбов) не должна быть меньше 400 мм. В противном случае древесная обшивка пола будет гнить от постоянного воздействия влаги.
Плитный фундамент – когда немалые вложения оправдывают себя
Плитный фундамент по праву считается самым дорогостоящим. Это связано с большой несущей площадью, которая является главным достоинством монолитного основания.
Построенный на такой плите дом защищен от перекосов, ведь даже при воздействии сил морозного пучения он двигается вместе с фундаментом.

Технология укладки основания предполагает
- Снятие верхнего слоя почвы (плодородного).
- Укладку геоткани, засыпку песчано-гравийной подушки и ее трамбовку.
Высота плитного основания обычно составляет 100 мм .