Дизайн ванной комнаты совмещенной с туалетом. Дизайн ванной, совмещенной с туалетом (230+ фото): 12 правил интерьера
- Дизайн ванной комнаты совмещенной с туалетом. Дизайн ванной, совмещенной с туалетом (230+ фото): 12 правил интерьера
- Дизайн ванной комнаты совмещенной с туалетом 3 кв м. Дизайн ванной комнаты – фото и идеи для помещения площадью 3 кв м со стиральной машиной и без унитаза
- Дизайн совмещенной ванной комнаты 4 кв м. 6 Правил дизайна ванной комнаты 4 кв.м
- Дизайн душевой с туалетом. (+50 фото) Планировка санузла с душевой в частном доме
- Дизайн ванной комнаты совмещенной с туалетом в хрущевке. Дизайн ванной в хрущевке 2022-2023: 300+ фото реальных решений и советы от мастера
- Дизайн ванной комнаты совмещенной с туалетом 5 кв м. Как спрятать стиральную машину в интерьере ванной комнаты 5 кв. м
Дизайн ванной комнаты совмещенной с туалетом. Дизайн ванной, совмещенной с туалетом (230+ фото): 12 правил интерьера
Совмещенный санузел — популярное решение, которое вновь входит в современные тренды. Однако, чтобы спроектировать дизайн ванной с туалетом правильно, необходимо знать ряд тонкостей и нюансов.
В статье рассмотрим основные правила проектировки совмещенного санузла и узнаем, какой стиль выбрать для такого помещения.
12 правил по дизайну ванной комнаты с туалетом
Чтобы совмещенный санузел вышел удачным, необходимо помнить о следующих правилах опытных дизайнеров.
Несколько зон
Если будете использовать керамическую плитку для отделки стен, то рекомендуется сделать несколько зон с разной плиткой. Помещения, выполненные в одном стиле, выглядят бедновато, а использование плиток с различным рисунком позволит обойти этот недостаток.
Белый цвет
Вокруг умывальника следует использовать отделочный материал белого цвета (плитка, обои). Связано это с использованием воды — на таких материалах она будет оставлять разводы. При этом белый цвет хорошо скрывает, тогда как другие цвета — хуже.
Не используйте черный цвет
В объединенном санузле противопоказано использовать черный цвет, поскольку он создает ненужный мрак и визуально сужает пространство. Однако у этого правила есть исключение — черную плитку можно использовать для отделки унитаза, если другие стены выполнены в другом цвете.
Унитаз с инстоляцией
В помещении рекомендуется ставить унитаз, встраиваемый в инсталляцию. Так вы получите хороший выигрыш в свободном пространстве, что критично для ванных комнат.
Конечно, отдельностоящий унитаз будет стоить дороже, однако вам придется потратить деньги на отделку пола вокруг него, поэтому выигрыш в цене будет минимальным.
Места хранения
В помещении должно быть побольше ящичков, полочек, простой мебели с выдвижными отсеками. Там можно будет спрятаться ванные принадлежности — например, мыло, запасное полотенце, стиральный порошок. Закрытый отсек под ванной — еще одно место для хранения принадлежностей.
Расхламление пространства
Рекомендуется по максимуму спрятать ванные принадлежности (включая полотенца). На виду рекомендуется оставить только необходимый минимум — мыло, стакан с зубной щеткой и пастой, пару ежедневных кремов и полотенце. А вот моющие средства (шампунь, пахучий гель, пасту для бритья) следует спрятать.
Освещение
Используйте несколько вариантов освещения. Оптимальным вариантом будет совмещение мощного верхнего и слабенького нижнего освещения. Хотя при желании можете поэкспериментировать. Например, можете сделать отдельные лампы для зеркала или ванны.
Душевая кабина и ванна
Если в ванном помещении есть душевая кабинка, то от ванны рекомендуется отказаться. Практика показывает, что при наличии душевой ванной пользуются редко (реже 1 раза в месяц). Дополнительная сантехника будет отнимать свободное пространство, что особенно критично в случае маленькой комнаты.
Дизайн ванной комнаты совмещенной с туалетом 3 кв м. Дизайн ванной комнаты – фото и идеи для помещения площадью 3 кв м со стиральной машиной и без унитаза
Кажется, для ванной комнаты 3 кв м сложно создать эффектный дизайн – места не так уж много, поэтому приходится решать, в первую очередь, практические вопросы. Если для унитаза предусмотрено собственное изолированное пространство, на 3 кв м можно освободить место для стиральной машины, а от стационарной ванны отказаться в пользу душевой кабины. Мы решили познакомить вас с секретами обустройства ванной площадью 3 кв м на конкретном и очень удачном примере. Ванная комната в проекте дизайнера Елены Юзько навевает морские ассоциации благодаря бело-синей палитре и фактуре плитки, которая напоминает волны.
Ольга Шангина | Photography Сохранить фото
Если в доме нет маленьких детей, которым требуется ванная комната с традиционной планировкой, душевая кабина удачно экономит место. Угловая модель удачно становится даже на 3 кв м, занимает минимум места и оставляет пространство для движения. Таким образом, дизайн ванной без унитаза становится образцом эргономичной планировки: все на своих местах, а небольшая площадь в 3 кв м перестает быть проблемой и становится источником возможностей.
Ольга Шангина | Photography Сохранить фото
Даже при небольшой площади ванной дизайн не должен уходить на второй план: 3 кв м заиграют по-новому, если выбрать цвет и фактуру главными инструментами декора. Например, вместо привычного керамогранита стандартного формата можно использовать в ванной рельефную плитку. В нашем примере ванной комнаты на 3 квадратах дизайнер Елена Юзько оформила одну стену белой плиткой с синим бордюром, вторую – синим с белым. Этот простой прием контраста выгодно разнообразит дизайн ванной комнаты – фото хорошо передает свойства фактуры, на которую сделали ставку при создании дизайн-проекта.
Ольга Шангина | Photography Сохранить фото
По словам дизайнера, у плитки не было готовых бордюров, но это недоразумение не могло помешать воплотить в жизнь творческие планы: для ванной комнаты в спокойных тонах бордюры нарезали вручную. Пол выложен плиткой близкого оттенка голубого: таким образом дизайн ванной становится цельным, обретает завершенность.
Ольга Шангина | Photography Сохранить фото
Раковина с подстольем, под которым которым находятся системы хранения и стиральная машина, “утоплена” в ванной комнате в неглубокой нише. Оживить интерьер ванной комнаты 3 кв м помогает желтый кант, обрамляющий зеркало. Ящик для белья в ванной также поместится под столешницей: главное, чтобы планировка ванной позволяла свободно открывать и закрывать дверцы.
Ольга Шангина | Photography Сохранить фото
Несмотря на то, что санузел в квартире раздельный, помещение туалета оформили в тех же оттенках: палитру составили на основе белого, серого и голубого цветов. Нижнюю часть стен туалета выложили модной плиткой « кабанчик » – эту тенденцию можно смело перенести и в дизайн маленькой ванной, так как плитку такого формата удобно укладывать и резать.
Дизайн совмещенной ванной комнаты 4 кв м. 6 Правил дизайна ванной комнаты 4 кв.м
Т.к. площадь маленькая, а функциональная нагрузка высокая, на 1-ом месте находится не визуальный дизайн, а грамотное зонирование комнаты. По такому же принципу делается и ванная в хрущевке . На 4 кв.м даже если использовать саму дорогую плитку и сантехнику, но не соблюсти правила ниже, интерьер ванной комнаты получится посредственный.
- Обязательно спрятать и встроить все технические моменты: стиральную машину, бойлер, лючок к счетчикам.
- Закрытые места хранения для средств гигиены. Только с дополнительным шкафом можно поддерживать порядок в маленькой совмещенной ванной. Иначе — россыпь средств гигиены и перманентный беспорядок.
- Монолитный интерьер. Не должно быть труднодоступных мест, дальних углов, щелей между раковиной и стеной. Совмещенный санузел очень быстро загрязняется из-за высокой нагрузки. При этом в нём очень тяжело убирать т.к. на 4 метрах особо не развернёшься.
- Как следствие из прошлого пункта — туалет только подвесной инсталляцией. Обычный унитаз занимает много места, имеет некрасивый стык, вокруг него невозможно нормально убрать т.к. он генерирует кучу труднодоступного неиспользуемого пола вокруг себя.
- Максимум 2 вида плитки на стенах. Кроме плитки цвета будут у мебели, сантехники, стиральной машины, полотенец, коврика. Если использовать ещё и более 2-ух видов плитки, для дизайна маленькой ванной комнаты совмещенной с туалетом будет явный перебор.
- Светлые цвета всего: плитки, мебели, полотенец. Как минимум сантехника вся белая, стиральная машина тоже, если использовать тёмные цвета в отделке, будет слишком много контрастов для такой небольшой площади.


Дизайн душевой с туалетом. (+50 фото) Планировка санузла с душевой в частном доме
Если санузел будет плохо обустроен – это негативно скажется на общем впечатлении от помещения, ⛲ даже если все остальные комнаты будут иметь идеальную планировку и дизайн. Поэтому так важно предусмотреть все до мелочей.
С чего начать планировку?
Продумывание планировки санузла может показаться простой задачей, но это только на первый взгляд. На самом деле, этот процесс требует учета многих факторов и выполнения ряда последовательных действий.
Первым делом необходимо обсудить предполагаемый результат с другими членами семьи, узнать их пожелания и привычки. Также стоит учитывать возможность появления новых жителей квартиры.



После сбора мнений членов семьи можно приступать к подготовке проекта нового пространства. Это невероятно важный этап, поскольку уже в этот момент нужно продумать все до мелочей. В зависимости от дизайна санузла строители будут выбирать разные способы технической реализации проекта.
Помимо дизайна стоит продумать процесс водоотведения: выбрать место вывода труб, внешний вид защитных решеток. После заполнения помещения техникой и мебелью что-то поменять уже будет проблематично.


Зачастую владельцы квартиры приходят к решению объединить ванную с уборной. Тогда процесс перепланировки будет следующим:
- Освободить помещения от мебели и сантехники, убрать облицовку пола и стен.
- Перенос и замена двери. Для дополнительной экономии пространства можно установить раздвижную дверь. Это особенно актуально для квартир небольшой площади.
- Подготовительные работы. Сюда входит перенос коммуникаций, монтаж перегородок, ниш, шкафов из гипсокартона. Сейчас самое лучшее время для проверки расположения осветительных приборов и внесения возможных изменений. На этом этапе полезно проверить вентиляционные каналы и очистить их при необходимости.
- Установка сантехники – раковины, ванной, унитаза и дополнительной техники, которая необходима жильцам.
- Отделка стен, пола и потолка. Чаще всего стены облицовывают плиткой или мозаикой, для пола можно также выбрать плитку, но с шершавой или ребристой поверхностью.
- Монтирование осветительных приборов.
- Расстановка мебели и наполнение помещения аксессуарами.


Требования к планировке санузла в жилом доме
Процесс планировки санузла должен производиться с учетом эргономики и строительных норм и правил.
Минимальная площадь:
- Уборная с унитазом – 1,2 кв.м.
- Уборная с унитазом и небольшой раковиной – 1,5 кв.м.
- Ванная комната с раковиной, ванной и стиральной машиной – 3,3 кв.м.
- Совмещенный санузел с ванной, унитазом, раковиной и стиральной машиной – 3,8 кв.м.
Свободное расстояние:
- Между биде и унитазом – от 20 см.
- Между полотенцесушителем и ванной или душевой кабиной – от 50 см.
- Между раковинами – от 25 см.
- Перед душевой кабиной или ванной – от 70 см свободного пространства, в идеале – от 1 метра.
- Перед унитазом – от 60 см свободного пространства.
- Вокруг унитаза – от 25 см.
- Перед раковиной – от 70 см, если она расположена в нише, то не менее 90 см.
Способ открывания двери. Только наружу, сам вход в санузел должен располагаться в коридоре, расположение двери в кухне или жилой зоне недопустимо.
Способ расположения сантехники:
- Линейный. Техника располагается вдоль одной стены. Этот способ подходит для узких прямоугольных помещений.
- Радиальный. Техника располагается вдоль нескольких стен. Такой вариант применим к помещениям по форме приближенным к квадрату.



Чтобы увеличить количество вариантов расположения техники и мебели, можно совместить уборную и ванную комнату. В этом случае необходимо узаконить перепланировку в БТИ.
Отделочные материалы
Важно уделить особое внимание выбору отделочных материалов для душевой комнаты в частном доме.
Пол
Напольное покрытие должно быть нескользким, влагоустойчивым и прочным, так как на него часто попадают брызги. Традиционным материалом для отделки пола является плитка. Это могут быть классические однотонные модели или более яркие решения с принтами и рисунками. А также встречаются варианты с имитацией натуральной древесины, камня или кирпичной кладки.
Можно использовать и другие отделочные материалы, например, ламинат или наливные полы. Специалисты рекомендуют использовать комбинирование, отделав область возле кабинки плиткой.

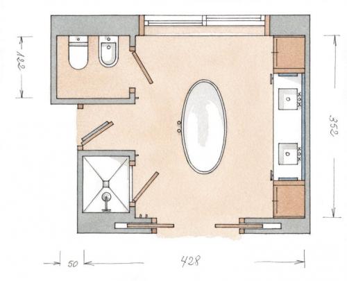
Дизайн ванной комнаты совмещенной с туалетом в хрущевке. Дизайн ванной в хрущевке 2022-2023: 300+ фото реальных решений и советы от мастера
Выбор стиля оформления
Для того, чтобы интерьер ванной комнаты действительно получился органичным и слаженным, нужно позаботиться о том, чтобы всего его компоненты и детали звучали в унисон единому выбранному стилю оформления. И если вы думаете, что понятие «стиля» неприменимо к дизайну маленькой ванной комнаты в хрущевке, то ниже у вас будет предостаточно возможностей для скорого изменения ошибочного априорного мнения.
Модерн
В оформленной в современном стиле ванной комнате делается вполне очевидная ставка на неброские поверхности и матовые текстуры. Мебель имеет выраженные геометрические контуры. Такая упорядоченность здорово организует пространство, позволяя едва ли не на физическом уровне оценить продуманность каждого его элемента.



Минимализм
Популярный стиль оформления как нельзя лучше подходит для ограниченного пространства ванных в хрущевках, где счет ведется даже не на квадраты, а буквально на сантиметры. Как и с модерном, здесь также делается ставка на четко обозначенные линии и очень строгое размещение предметов в пространстве.

С той лишь разницей, что минимализм налагает очень серьезные ограничения на количество деталей — декоры явно будут лишними. И тяготеет к стерильной цветовой гамме. Ослепительно белый цвет — фирменная его черта.

Очень часто аскетическое оформление интерьера разбавляется симпатичными натуральными текстурами. Например, деревом или камнем.

Забудьте об обычных тумбочках, опирающихся на пол — только подвесная техника, здорово экономящая пространство. Это справедливо, в том числе, и для унитаза.
Из категории «было-стало»: объединили туалет с ванной и получили вполне комфортное пространство за счет выбора ассиметричной ванны и четкого следования канонам минималистичного интерьера.

Классика
Светлые, но ничуть не стерильные оттенки с деликатной игрой полутонов создают в оформленной по классическим лекалам ванной комнате чудное приподнятое настроение и уют. Такой стиль интерьера так и хочется обозвать сбалансированным: цветовой палитра состоит преимущественно из золотистых и кремовых тонов, которые эффектно подсвечиваются сдержанным освещением.


Скандинавский
Для маленьких ванных комнат и туалетов хорошо подходит скандинавский стиль. Он прост и легок в исполнении, без излишеств, но приятен и умиротворен. Трепетное отношение к морской тематике сформировало предпочтения в выборе светло-синих, бледно-зеленых цветов наряду с обилием белого. В интерьере применяются натуральные материалы, присутствие древесины обязательно. Вещи хранятся на полках в коробках, корзинах, банках.

Прованс
По-весеннему нежный прованс, без сомнения, понравится романтическим натурам. Для этого стиля характерны мягкие пастельные оттенки, мелкие цветочные узоры, винтажная мебель. В целом он создает ощущение воздушности и деревенской простоты.

Хай-тек и лофт
Оформленные таким образом ванные нечасто встретишь в хрущевках: все-таки они требуют большего пространства и крайне избирательны к наполнению. Здесь также не увидеть большого количества деталей: если какой-то предмет и помещается в интерьере, то он выполняет прикладную функцию, а не просто занимает место в пространстве.
Для этих стилей характерен подчеркнутый аскетизм и настойчивое обращение к промышленной тематике.
На фото пример замечательный пример использования плитки, имитирующей состаренный бетон. Вариант на любителя — как и сам лофт в целом.

Японский
Этот стиль рационально организовывает небольшое пространство. Лаконичный, умиротворенный, с четкими геометрическими пропорциями. В отделке санузла применяются природные материалы. Интерьер прост, функционален, графичен и упорядочен, что отвечает японскому мировоззрению.
Дизайн ванной комнаты совмещенной с туалетом 5 кв м. Как спрятать стиральную машину в интерьере ванной комнаты 5 кв. м
Совмещенный санузел площадью 5 «квадратов» почти всегда позволяет не только разместить здесь ванну или душевую кабину, но и найти место под технику – стиральную машину и водонагреватель. Увы, в большинстве случае дизайн «нафаршированной» ванной комнаты утверждает на 5 этих кв. м догмат функционала над эстетикой. Это понятно: аппарат что водонагревающий, что стиральный – машина громоздкая, сугубо технологичная, да и чисто стилистически – «заноза». Чтобы дизайн комнаты не страдал, технику лучше спрятать. Как это сделать в санузле 5 кв. м – поучимся на примере эффектного проекта Макса Касымова.
Max Kasymov Interior/Design Сохранить фото
Итак, Москва, квартира 34 кв. м с одной комнатой, кухней и совмещенным санузлом 5 кв. м. Хозяйка – деловая женщина – мечтала увидеть получить «уютный современный интерьер». Небольшая перепланировка (пространства кухни и комнаты теперь разделяет стеклянная перегородка, появилась гардеробная) никак не повлияла на габариты ванной комнаты.
Экстерьер ванной в эко-стилистике: снаружи санузел площадью 5 метров отделан шпоном и выглядит как теплый деревянный короб. Фото: Сергей Ананьев
Max Kasymov Interior/Design Сохранить фото
Ванная комната площадью 5 кв. м совсем не напугала дизайнера – у него самого санузел 2 кв. м. Напротив, Макс Касымов увидел здесь возможность сделать эффектный дизайн ванной без помех для функционала.
Вся техника и места для хранения спрятаны в оригинальном шкафу, который выглядит как глухая деревянная стена в ванной.
Темные акценты придают объема и глубины ванной – фото: Сергей Ананьев.
Max Kasymov Interior/Design Сохранить фото
За сдвижными панелями из тикового шпона скрыты «ячейки»: внизу - для стиральной машины, вверху – для водонагревателя, в центре – с зеркальным фасадом – для косметики и парфюмерии. Такими же панелями зашит и короб с коммуникациями в ванной комнате – справа от центральной секции еле заметен технический люк. А вот инсталляция подвесного унитаза скрыта за черными ребристыми панелями.
Max Kasymov Interior/Design Сохранить фото
Интерьер ванной строится на сочетании цветов, фактур и форм: ребристое дерево и гладкое зеркало, теплый шпон и сверкающее стекло, куб-унитаз и цилиндр-умывальник, рельефная рейка на стене и мелкая «сетка» на потолке. Формы при этом – чистые, никаких рам, подсветок и подчеркиваний. Это сделано сознательно: чистота – залог легкости, лишние детали и линии «перегружали» бы лаконичный интерьер ванной комнаты 5 кв. м.
Max Kasymov Interior/Design Сохранить фото
Зеркало от пола до потолка создает ощущение перспективы – кажется, будто в ванной не 5 скромных кв. метров, а больше.
Для душевой зоны в ванной комнате выбрали стеклянные стены — они не «съедают» пространство и почти незаметны.
Источник: https://mebel-doma23.ru/novosti/dizayn-sovmeshchennoy-vannoy-s-tualetom-planirovka-i-zonirovanie