Как сделать схему разводки проводки в квартире своими руками. Как правильно произвести монтаж электропроводки в квартире
- Как сделать схему разводки проводки в квартире своими руками. Как правильно произвести монтаж электропроводки в квартире
- Проводка в квартире своими руками от щитка. Какой должна быть разводка
- Как узнать схему проводки в квартире. Типовые схемы расположения электропроводки в квартире
- Электропроводка в квартире своими руками: пошаговая. Составление схемы разводки электропроводки
- Схема проводки в квартире. Начало всех работ — схема
- Нарисовать схему электропроводки онлайн. Платные приложения с демоверсиями
- Проводка в квартире без штробления. Проблемы со старыми домами
- Проводка в квартире своими руками с чего начать. Когда необходимо менять проводку
Как сделать схему разводки проводки в квартире своими руками. Как правильно произвести монтаж электропроводки в квартире
Электропроводка в квартире прокладывается после завершения основных строительных работ в новостройках. До проведения работ по отделке стенных поверхностей приглашается бригада специалистов, которые должны заняться монтажом электропроводки в квартирах заново отстроенного здания.
Нередки случаи, когда по желанию вселяющихся жильцов эти работы организуются и проводятся самими новоселами, желающими сделать разводку в помещениях на собственный вкус. Другая причина самостоятельного проведения монтажных работ – полное обновление проводки в собственной квартире или в связи с переездом на новое место жительства.
ЭЛЕКТРОПРОВОДКА В КВАРТИРЕ
Публикуемая статья предназначена для тех, кто решил самостоятельно заняться монтажом электрической проводки, а приводимые в ней сведения должны помочь им избежать серьезных ошибок. При проведении этих работ необходимо строго придерживаться требований и положений действующих нормативов (ПУЭ, в частности). В этой регламентирующей документации четко оговаривается в какой последовательности и каким образом проводится монтаж электропроводки в новостройках и какие материалы при этом следует применять.
Особенности этого способа защиты сети и потребителя в аварийной ситуации не позволяют организовать полноценное заземление, что угрожает пользователям любой современной квартиры.
Особенности этого способа защиты сети и потребителя в аварийной ситуации не позволяют организовать полноценное заземление, что угрожает пользователям любой современной квартиры.
В наше время широкое распространение получила система заземления TN-C-S, которая обеспечивает более высокий уровень электробезопасности чем система TN-C. Кроме того система TN-C-S обеспечивает защиту от обрыва нуля.
Для организации заземления по системе TN-C-S потребуется не только новый ввод силового кабеля, содержащего три отдельных провода (ноль N, фаза и заземляющая шина PE), но и соответствующая электропроводка.
Искусственно организованное расщепление PE и N проводников на колодке подъездного щитка не может считаться нормальным заземлением, так как не обеспечивает требуемого уровня безопасности. Для полноценного заземления нужна отдельная жила, соединенная с местным или повторным заземляющим контуром .
В условиях многоквартирного дома сделатьочень сложно, но при желании вполне реально. Для этого следует объединить жильцов подъезда и общими усилиями сделать на улице (на газоне у стены дома, например) заземляющую стальную конструкцию. От нее до каждого этажного щитка потребуется протянуть стальную шину, фиксируемую на сварку или медный проводник.
В этом случае и электрическая проводка примет совершенно иной вид. Она обустраивается посредством трехжильного медного провода и обновленного набора установочных изделий (розеток, выключателей и т. п.). В конструкции каждой из них должна быть предусмотрена дополнительная клемма, неофициально называемая «земляной». Для удобства распознавания различных проводников в трехжильном кабеле применяется цветовая маркировка, соответствующая действующим стандартам (ГОСТ) и требованиям ПУЭ.
Проводка в квартире своими руками от щитка. Какой должна быть разводка
Стоит отметить, что составление схемы имеет свои секреты. Эти секреты касаются правильности прокладки кабелей и их разводки. Отметим, как правильно делать разводку проводов.
Итак, электричество в частный дом поступает через электрический счетчик. После него устанавливается распределительный щит. Именно от этого щита и начинается разводка различных проводов. Каждый из них может называться контуром.
Количество этих контуров напрямую зависит от количества комнат частного дома и электрических устройств, которые планируется использовать. В небольшом частном доме может быть всего два контура. Один из них назначается для розеток, другой – для осветительных приборов.
Полезный совет: во время составления любой схемы проводки независимо от размеров частного дома всегда должна быть отдельная разводка на освещение и отдельная разводка на розетки.
Причиной этого является то, что осветительные приборы и подключенные приборы к розеткам имеют разные мощности. В результате для питания светильников нужны более тонкие провода, чем для питания холодильника, микроволновой печи или любого другого электрического устройства.
По сути дела, этот совет можно назвать обязательным. Это позволит сэкономить на закупке кабелей. В противном случае, то есть, если к одной разводке подключать и розетки, и светильники, то при перегорании кабеля или замыкании вы не сможете использовать любой прибор или светильник, которые подключены к этому проводу.

Следует иметь в виду, что лучше организовать такую схему проводки, которая будет предусматривать электромонтаж большего количества контуров, чем требует частный дом. Это позволит уменьшить нагрузку на провода и устранит потребность в прокладке дополнительной разводки в будущем.
Обязательным правилом является оснащение каждого контура автоматическим выключателем. Группа контуров должна подключаться и к дифференциальному реле (УЗО). Как выключатель, так и УЗО монтируются в распределительном щитке.
При составлении схемы нужно учесть еще один нюанс: есть электроприборы, которые имеют большую мощность (водяной насос или электрическая плита). Для них нужно использовать кабель с большим сечением. Конечно, этот кабель будет отдельным контуром.
Если частный дом состоит из нескольких этажей, то электричество на каждый этаж должно подаваться через отдельную разводку. Специалисты рекомендуют производить подключение комнат по отдельности.
Как узнать схему проводки в квартире. Типовые схемы расположения электропроводки в квартире
Жилые помещения для людей постоянно совершенствуются. В них все больше появляется электрических приборов, улучшающих жизнь. Потребление электроэнергии возрастает, а проложенные при строительстве провода вырабатывают ресурс: металл и изоляция стареют, теряя свойства от перегрузок, нагревов, ультрафиолета и механических воздействий.
Эксплуатируемая со времен СССР алюминиевая проводка давно нуждается в замене. Возросшие требования безопасности отменили систему TN-C, которая не предусматривала заземление корпусов электроприборов, применение системы выравнивания потенциалов, защиту от токов утечки.
Владельцы старых квартир не всегда представляют, как у них в помещениях размещены провода, ведь вариантов их прокладки много.
Виды схем
Основная классификация электропроводки выполняется по виду монтажа:
открытая;
закрытая.
Первый способ позволяет визуально наблюдать прохождение трасс. Он более доступен, чаще всего применяется в домах из дерева.
Труднее обнаружить провода, спрятанные в стены, пол или потолок: их не видно. В каждом здании их прокладывали по-разному, но можно выделить принципы, которые учитывают срок строительства, материалы стен, технологии монтажа.
Алюминиевая электропроводка однокомнатной квартиры
Такая схема распространена, применяется давно, хорошо подходит для большего количества помещений, проста для понимания и реализации.
В старых домах на каждом этаже расположен электрический щиток со счетчиком, пакетным переключателем для снятия напряжения при работах с приборами учета и защитными автоматами. Все оборудование секционировано для каждой квартиры по отдельности.

Рис. 1. Вариант старой электропроводки однокомнатной квартиры
На картинке для наглядности показано по две распределительные коробки в каждой комнате, но, скорее всего, цепи розеток и освещения коммутируются через одну.
Никакого контура заземления здесь не предусмотрено. В схеме используются исключительно ноль и фаза, причем нулевой провод никогда и нигде не должен разрываться коммутационными аппаратами. Он подводится напрямую ко всем потребителям через распределительные коробки, а берется от счетчика.
Для соединения проводов использованы, скорее всего, простые скрутки со сваркой или без нее, хотя могут встречаться клеммники под винт. К месту сборки нуля подходит больше всего проводов.
Фаза от счетчика поступает на автоматические выключатели. В нашем примере один питает все розетки, а другой — светильники комнат. Если квартира оборудована электроплитой, то на нее напряжение поступает через отдельный автомат, а провода использованы усиленной мощности: вплоть до 10 мм2.
Возможны вариации схемы:
вместо автоматов использованы предохранители ;
электрики при монтаже проводов после счетчика перепутали направления фазы с нулем (схема не теряет работоспособности, но более опасна);
добавлена группа автоматов и потребители запитаны по другой схеме, например, для коридора.
В каждом конкретной схеме следует внимательно разбираться, вполне возможно наличие перемычек, добавочных проводов, даже монтаж без распределительных коробок.
Понять принцип проектирования схемы помогает простой способ:
включить все приборы освещения и задействовать электроприборы в розетках;
поочередно отключать потребители автоматами в распределительном щитке и наблюдать за погасшими светильниками и отключившимися приборами в розетках;
анализировать изменения, записать или запомнить информацию, сделать выводы.
Виды скрытой разводки
На практике магистрали прокладывают:
по потолку или внутри него;
под полом;
комбинированно.
Схема расположения проводов внутри потолка
Она раньше широко использовалась в зданиях из кирпича и бетонных панелей, как основной вариант проводки. В современном строительстве ее тоже часто используют.
Все трассы с проводами из распределительного щитка направляются вертикально поверх стены или внутри ее по штробам либо вмонтированным трубопроводам. Внутренности потолочных плит обычно изготовлены с каналами для проводки, но допускается штробление или навесной монтаж для подвесных и натяжных потолков.
Таким же способом выполняется подвод к светильникам, всем выключателям и электрическим розеткам, расположенных на стенах.

Рис. 2. Вариант схемы прокладки электропроводки внутри потолка
При грамотном подходе к монтажу вся проводка ориентируется в перпендикулярных плоскостях: этим исключаются повреждения изоляции и металла при будущих сверлениях стен для закрепления на них различных предметов. Горизонтальные магистрали от потолка нельзя опускать ниже 15 см по тем же причинам.
Распределительные коробки закрепляются за своими автоматами для подачи напряжения на ближайшую точку. Монтаж в них выполняется по схемам расключения.
Схема расположения проводов под полом
Такой вариант стал использоваться в новостройках при жестком бетонном основании и создании под напольным покрытием прочных магистралей из труб с последующей заливкой растворами. Такие меры надежно предохраняют изоляцию и металл от механических повреждений.
Кабели и провода в стенах для розеток и светильников защищаются трубами или монтажными коробами .
Электропроводка в квартире своими руками: пошаговая. Составление схемы разводки электропроводки
Разводка электрики в квартире начинается с составления плана разводки сети. Монтаж электропроводки по имеющемуся расчетному чертежу выполнять гораздо проще и целесообразнее по ряду преимуществ:
- схема электросети позволит заранее спланировать необходимое оборудование и средства;
- наличие схемы позволит точно определить мощность входного ввода;
- чертеж дает понимание монтажному персоналу о потенциально пожароопасных узлах проводки для принятия мер по их перепланировании или принятия дополнительных мер безопасности;
- схема позволит выполнить монтаж планово, с проверкой завершения полного цикла.
Примеры схем для однокомнатной квартиры
Электротехники считают, что если суммарная нагрузка на электросеть квартиры не превышает показатель 25 А, то есть возможность и даже целесообразность по стоимости выполнить планировку сети одним контуром на один автомат. Такой способ – типичная типовая схема прошлого, когда в контур включены были осветительные элементы с силовыми розетками . Сегодня от этих приемов отошли и монтаж ведут по независимым отдельным контурам. Пример проводки однокомнатной квартиры приведен на рисунке 3.

Рис. 3. Схема электроснабжения однокомнатной квартиры
На чертеже видно грамотное распределение нагрузки сети однокомнатной квартиры на несколько отдельных контуров со своими УЗО. Такая система обеспечит безаварийную работу проводи и корректную работу оборудования без посадки напряжения.
Для двухкомнатной квартиры
Отличие чертежа для работ по монтажу снабжения двухкомнатной квартиры от однокомнатной состоит в большем количестве контуров в плане разводки. Здесь возможны некоторые компоновки. На рисунке 4 приведен пример такой схемы.
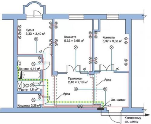
Рис. 4. Схема электроснабжения двухкомнатной квартиры
На примере наглядно видны несколько контуров освещения, а также отдельно выделенные защищенные цепи для кухни, комнат и другого мощного оборудования.
Для трехкомнатной квартиры
На рисунке 5 приведен пример чертежа, который часто применяют для квартир с количеством комнат три и более, где из одного распределительного щита будет выходить уже довольно большое количество проводников.
Рисунок 5. Пример схемы электроснабжения для трехкомнатной квартиры
Особенность данного варианта – это отдельные контуры, заключенные в отдельные блоки со своей защитой. В данном примере 2 блока (25 А и 40 А соответственно). Такой способ позволяет разделить зоны кабельной продукции, делает систему более удобной и практичной.
Схема проводки в квартире. Начало всех работ — схема

Хотелось бы начать этот раздел с аналогии. Что является основой для хорошего крепкого дома? Конечно же, фундамент. Так вот, своеобразным фундаментом надёжного и качественного электроснабжения является грамотно составленная схема электропроводки в квартире. Многие совершенно напрасно этим пренебрегают и на это есть веские причины:
- Во-первых, монтаж электропроводки в квартире вам будет делать гораздо легче, когда на схеме отображается практически конечный результат. Согласитесь, это довольно редко, когда на первом этапе ремонта люди могут представить себе, что получится в конце. А с электрической схемой это возможно, потому что на ней будут отображены все коммутационные аппараты, элементы освещения и стационарные бытовые электроприборы.
- Во-вторых, схема электрической проводки в квартире поможет вам составить чёткий план выполнения работ – с чего начать монтаж проводки, в каком направлении двигаться, что оставить на завершающий этап.
- В-третьих, когда у вас на руках есть готовая схема расположения элементов электрики в квартире, можно легко определиться с количеством материалов – розеток, выключателей, распределительных коробок, подрозетников, проводов, кабелей.
- И самое главное, когда уже будут полностью окончены монтажные и ремонтные работы, у вас останется схема разводки электропроводки в квартире. Ни в коем случае её не выбрасывайте. Если понадобится просверлить где-то в стене отверстие под картину или фоторамку, вы достанете схему и посмотрите, каков путь пролегания проводов, чтобы не напороться и не повредить токопроводящую жилу. Также многие заклеивают иногда распределительные коробки обоями, чтобы не портить внешний вид комнаты. Вообще-то этого делать нельзя, но если уж и заклеили, вы всегда сможете глянуть на схеме, где находится коробка. При необходимости каких-то работ, срежете кусочек обоев, получите доступ к коробке, а потом заклеите вновь.
Нарисовать схему электропроводки онлайн. Платные приложения с демоверсиями
Казалось бы, что специализированные программы это исключительно прерогатива крупных разработчиков, которые делают софт на коммерческой, платной основе. В какой-то мере так и есть – признанным лидером считается программа AutoCAD, возможности которой позволяют не просто начертить схему электропроводки, но и работать над проектами, которые требуют участия сразу нескольких специалистов. Создаваемая схема доступна каждому из них для внесения правок в режиме онлайн, которые сразу же будут доступны другим сотрудникам компании. Первоначальные версии программы позиционировались больше как простой «электронный кульман», но со временем она развилась в мощный инструмент, состоящий из нескольких блоков для специалистов различного профиля, в том числе и электриков.

Отечественным аналогом является NanoCAD – это тоже программа для рисования, которая, по отзывам пользователей, обладает не меньшим функционалом, но приятно радует стоимостью, которая в несколько раз ниже, чем у AutoCAD.
Несмотря на то, что обе эти программы изначально делались на платной основе, у каждой из них есть бесплатная версия, хоть и с урезанным функционалом.
Даже в таком виде они позволяют нарисовать схему для монтажа одно или трехфазной электропроводки в квартире или для дома.
Графический редактор для составления схем проводки и рисования печатных плат Eagle – также существует в платной и бесплатной версиях. Программа позволяет работать в ручном и автоматическим режимах – причем полноценная однолинейная схема электропроводки не проблема даже для бесплатной версии. В отличие от предыдущих программ может использоваться на ПК с операционными системами семейства Linux (NanoCad написана исключительно для Windows, а AutoCAD может работать и из-под IOs или Android).

Эльф – целый программный комплекс САПР от компании «Лира-Сервис». Для инженера-электрика интересными будут такие ее возможности как создание чертежной документации, большой набор условных обозначений и возможность использовать свои, расчет прокладки труб в монолитных панельных конструкциях, определение длины проводов и многие другие. Среди главных преимуществ программы пользователи отмечают быстрое создание спецификаций и сравнительную легкость в освоении функционала.
Проводка в квартире без штробления. Проблемы со старыми домами
Строительство хрущевок пришлось на 1958-1985 гг. в рамках урбанизации. Электролинии в них отличаются в зависимости от серии застройки:
- Здания периода 1963 года – места для распределительной коробки, штробления, соединения проводов оставались на усмотрение электрика;
- Панельные дома 1965 года – разводка провода и скрытая укладка осуществлялись в каналах панельных плит;
- Многоэтажки 1974 года – относятся к типовой постройке по требованиям Единого каталога стройдеталей. Проводку по причинам низкого качества каналов в плитах прокладывали в ниши под полом верхних этажей, выводя кабели через сквозную штробу перекрытия.

Типовые расположения каналов электропроводки
В 60-х – 70-х гг. не предполагали такого количества электроприборов, поэтому сеть выдерживала максимальную нагрузку в 3,5 кВт. Суммарная мощность современных чайника и утюга составляет 4 кВт.
Схема электропроводки в хрущевке двухкомнатной стандартной планировки включала несколько ламп, утюг, радиоприемник. Алюминиевый кабель, популярный во времена Хрущева, также имел недостатки:
- со временем разламывался при незначительных изгибах;
- требовал полной замены 1 раз в 20 лет;
- под напряжением подвергался электрокоррозии, что становилось причиной возгораний.
В 1960-1980 гг. было принято заземлять электролинию по схеме с глухо заземленной нейтралью. В конце ХХ века в РФ принимается схема TN-C-S, которой хрущевки не соответствуют.
Скрутки проводов и неизолированные участки из-за применения метода ветвления предусматривают полную замену алюминиевого кабеля на медный.
Проводка в квартире своими руками с чего начать. Когда необходимо менять проводку
Конечно, новая проводка потребуется в только что сделанной квартире, но покупка нового жилья – это не единственная причина, когда стоит задуматься о смене проводки.
Также обратить внимание стоит на то, как сегодня подключены электроприборы в уже имеющейся квартире, в которой электросеть размещалась по установленным ГОСТам. Ведь тогда не было расчёта на то, что совсем скоро появится столько электроприборов, которые будут постоянно использоваться, и им постоянно не будет хватать розеток.
Из-за этого недостатка в доме начинают появляться удлинители и новые линии поверх стен, что не только эстетически неприятно, но и может быть опасно, если подключать много техники сразу. Особенно это касается тех ситуаций, когда используются тройники или даже сразу несколько тройников, подключающихся друг к другу и к одной несчастной розетке. Такие нагромождения – прямая дорога к короткому замыканию и пожару.
*(Появления подобной картины в доме — яркий намёк на то, что проводку пора менять).
Или же может возникнуть иная проблема – алюминиевые провода. Такие, в целях экономии, нередко использовались при строительстве многоэтажек, когда на их возведение несколько лет назад был особый бум. Алюминий неплохо проводит электричество, но у него есть пара серьёзных недостатков:
- Алюминий слишком мягкий. То есть его очень легко деформировать при внешнем воздействии, он может и вовсе сломаться. А ремонт по тем же причинам произвести непросто, так как не получится нормально поменять только участок.
- Химические реакции. Когда по алюминию постоянно проходит ток, это провоцирует электрохимические реакции в проводах, которые повышают их хрупкость. И через 15–20 лет, что очень небольшой срок для электропроводки, провода могут стать настолько хрупкими, что в них начинают появляться внезапные обрывы. А если попытаться починить провод и сделать новые скрутки, ничего не получится – провода будут ломаться в руках.
- Коррозия. Алюминий не настолько устойчив к влажности, как хотелось бы, а потом даже небольшое количество воды приведёт к электрокоррозии. И даже если снаружи провода будут выглядеть целыми, внутри они могут быть уже настолько испорчены, что даже небольшая нагрузка заставит их ломаться или искрить.
*(Чтобы проводка прослужила как можно дольше, лучше выбирать медь, а не алюминий)
Подводя вопрос с алюминием к итогу: если проводка сделана из этого металла, его лучше полностью заменить на медь, которая в разы надёжнее. Конечно, медь, благодаря своим свойствам, стоит дороже. Однако, проводка делается не ежегодно, а раз на несколько десятилетий, поэтому здесь можно не экономить.