Как собрать каркас дома из бруса. Проект каркасного дома из бруса
Как собрать каркас дома из бруса. Проект каркасного дома из бруса
Уже оставив позади половину строительства, могу с уверенностью сказать, проще заранее рассчитать все размеры и предусмотреть возникновение возможных проблем на бумаге, не мучаясь в дальнейшем на стройплощадке подгоняя материалы. И нет никакой сложности в том, что бы найти готовый проект каркасного дома из бруса в интернете, что то особенное можно заказать в соответствующей организации. Не экономьте, это вернется вам отсутствием проблем на стройплощадке и прекрасным каркасным дачным домом из бруса.
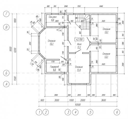
Планировка первого этажа:

Второй этаж:

Так выглядит дачный участок до начала строительства. На нем все как на нашем проекте каркасного дома из бруса. Проведена разметка под место входа водопровода в дом и место вывода канализации ведущей к нашему септику. Очень важный момент не забыть все это сделать сразу и цена каркасного дома из бруса будет намного ниже при проведении работ до заливки фундамента.

Фундамент у нас ленточный 600 мм глубиной и 300 мм шириной, дом легкий и не несет такой нагрузки на фундамент как кирпичный поэтому можно было сделать и на сваях – он немного дешевле, но я решил не экономить делать ленточный, он более надежный.

Так выглядят блоки из 12 милимметровой арматуры – основа нашего фундамента.


За основу была взята 12 миллиметровая арматура. Из нее смонтированы треугольные блоки и залиты бетоном на уровень земли.

Дальше опалубка из доски 25/150, вершина опалубки выставлена горизонтально.
Льем бетон в опалубку.

Следующий этап укладка бетонных блоков, делаем три ряда.
Начинают вырисовываться проходы между нашими комнатами и вентиляционные хода, или продухи, кажется так их называют по научному. Вот так и строятся каркасные дома из бруса своими руками.



Расходы на этом этапе строительства нашего каркасного дома составляют :
Септик, переливной, два колодца по четыре кольца каждый ( материал и работа ). 29000 рублей.
Монтирование канализации от дома к септику ( материал и работа). 6500 рублей
Материалы для фундамента ( арматура, бетон, блоки, цемент и песок). 70 000 рублей.
Работа по заливке фундамента. 70 000 рублей.
На первом этапе было потрачено. 175 500 рублей.
Обвязка из бруса 100х100. Сборка каркаса из бруса для дома
Работу ведут в следующей последовательности:
- Пиломатериалы подрезают до нужного размера в соответствии с планом обвязки фундамента.
- Оформляют торец каждого элемента согласно конфигурации узла.
- Обрабатывают древесину огне- и биозащитой.
- Настилают на фундамент 2 слоя гидроизоляционного материала, например, рубероида на битумной мастике.
- Раскладывают брус в проектное положение и проверяют длины диагоналей обвязки: их равенство свидетельствует об отсутствии перекоса, т. е. в плане обвязка образует прямоугольник.
- Проверяют уровнем ее горизонтальность, при необходимости корректируют положение элементов подкладками или клиньями.
- Соединяют пиломатериалы между собой гвоздями длиной 150-200 мм, углы усиливают оцинкованными уголками или болтами.
- Прикручивают собранную конструкцию к фундаменту, используя анкерные болты или закладные шпильки.

Каркас из бруса соединяют между собой гвоздями.
В углах брус соединяют между собой следующими методами:
- коренным шипом;
- в полдерева;
- встык.
В длину элементы соединяют методом «в лапу».
Вырубку производят бензопилой или с помощью ножовки и плотницкого топора.
Порядок устройства основания из сплоченной доски:
- Готовят внешние планки по всему периметру: обрабатывают антисептиком и огнезащитной пропиткой, подрезают до нужного размера и оформляют торцы в соответствии с конструкцией узла.
- Настелив на фундамент гидроизоляцию, выкладывают их в проектное положение (на ребро).
- Замеряют длины диагоналей, и если те равны, приколачивают доски друг к другу длинными гвоздями.
- В том же порядке устанавливают внутренние слои обвязки.
- Стягивают доски шпильками.
- Прикручивают их к фундаменту.
Каркас из бруса 150х150. Нижняя обвязка
По сути, самым важным этапом строительства каркасного дома является сборка каркаса. Можно сказать, что с его возведением дом на 70% готов. Подразумевается, что к началу сборки уже готов. Что ж, приступаем к возведению каркаса. Вначале делаем нижнюю обвязку — периметр нашего дома. У нас есть такой фундамент:
Укладываем подкладочный рубероид в 3 слоя на цоколь и подпорные столбики и начинаем делать нижнюю обвязку. Она собирается из бруса сечением 150х150 мм, предварительно тщательно обработанного биозащитным составом — так как это единственное незащищенное и контактирующее с атмосферой место. Углы и стыки соединяются в пол бревна. Места соединений обрабатываются биозащитой и, чтобы не оставалось мостиков холода, до скрепления пропениваются. Пока пена не застыла, брусья соединяются либо 120 мм гвоздями, правда при их забивании не застывшая пена может полностью выдавиться, либо 127 мм саморезами по дереву. Чтобы они легче заворачивались, имеет смысл предварительно просверлить под них отверстия в верхнем бревне. В итоге получим такую картину:
Обращаю внимание, что, соединяясь с обвязкой, подпорная балка краем лежит еще и на цоколе. Так как брусья необходимо укладывать как можно ближе к краю цоколя, то все размеры должны быть тщательно выдержаны. Ошибка в пару сантиметров и вы получите ступеньку, на которой будет скапливаться вода, и обвязка будет постоянно мокнуть и, как следствие, гнить. Места соединений 6 и 3 м кусков, лежащих на фундаменте не принципиальны, так как они полностью лежат на цоколе, и вертикальная нагрузка на них распределяется равномерно по всей длине. Брусья обвязки, идущие по наружной стороне веранды, скрепляются на краю 3-х метровой выступающей части фундамента, то есть в районе угла прихожей. Здесь как раз необходимо подобрать брус длиной больше стандартных 9-ти метров. Кроме того, крепить обвязку к цоколю я намеренно не стал — к чему лишние дырки в брусьях, а итоговая масса конструкции (по моим прикидкам 10 тонн) не даст сдвинуться дому даже под действием урагана. Кстати, мой дом уже пережил пару почти ураганов. Разрушить или хотя бы сдвинуть неприкрепленный к фундаменту каркас ветру, валившему вековые деревья, не удалось.