Разводка канализации по подвалу частного дома. Особенности устройства канализации в подвале
- Разводка канализации по подвалу частного дома. Особенности устройства канализации в подвале
- Простая канализация в частном доме. Как сделать канализацию в частном доме?
- Канализация в частном доме своими руками – быстро и без проблем. Описание устройства, какие бывают виды и схемы (20 Фото & Видео) +Отзывы
- Схема сантехники в частном доме. Схема подключения воды в частном доме
- Схема канализации в одноэтажном частном доме. Какую канализацию лучше сделать в частном доме
- Канализация в частном доме: схема. Как сделать схему канализации в доме своими руками
Разводка канализации по подвалу частного дома. Особенности устройства канализации в подвале
На фото канализация в подвале
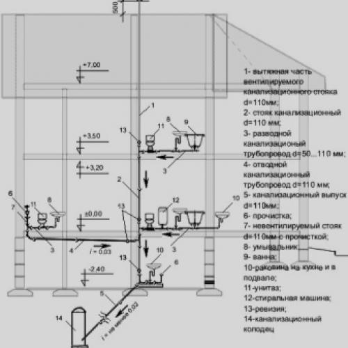
При разработке проекта частного дома очень важно продумать, как рационально использовать всю площадь дома, включая подвал. В подземной части здания спальню или гостиную обустроить нельзя, но туда можно поместить кухню, тренажеры для занятия спортом, сауну и т.д. Часто в этих комнатах устанавливаются сантехнические устройства или механизмы, потребляющие воду: раковины, унитазы, мойки и т.д. Особенностью канализации в подвале дома является расположение труб — они всегда находятся ниже уровня наружной системы водоотвода. Поэтому перед обустройством подземных помещений разработайте план подвала с водоснабжением и канализацией и размещением изделий для вывода стоков наружу. Основные элементы конструкции системы указаны ниже.
Насосы для канализации предназначены для поднятия жидкости из подвала. Они выбираются в зависимости от типа стоков, которые условно делятся на умерено-загрязненные и сильно загрязненные. К последнему виду относятся жидкости с твердыми примесями, например, поступающие из туалета. С ними хорошо справляются насосы, оборудованные измельчителями. Специальные ножи перемалывают твердые фрагменты до состояния, при котором они легко перемещаются вместе с потоком. К другому виду стоков относится просто грязная вода из умывальника, ванной, из кухни и т.д. Она легко перекачивается обычным центробежным или дренажным насосом. При незначительном объеме удаляемой жидкости (до 1 м3в час) используют изделия малой мощности, подключаемые к каждой канализационной точке. Большое количество воды от бассейнов, стиральных машин и т.д. выводится насосными станциями высокой производительности, способными выкачать до 10 м3в час. С помощью этих устройств можно удалять также стоки из одной трубы, в которую они поступают со всего дома. Типичными образцами насосных станций для канализации подвала являются изделия типа Сололифт. В комплект приспособления входят: накопительная емкость, фильтр, обратный клапан и другие элементы. При выкачивании большого количества жидкости, например, из бассейна, лучшим вариантом является обыкновенный насос.
Простая канализация в частном доме. Как сделать канализацию в частном доме?
Обеспечение комфорта и качественной жизни в загородном доме является важным моментом для любого владельца такой постройки. Одним из факторов, которые позволяют обеспечить комфортную жизнь, является удобство оттока использованной воды и продуктов жизнедеятельности. Правильно рассчитанная на стадии проектирования и впоследствии правильно построенная канализация в частном доме будет залогом длительной эксплуатации, при которой не возникнет никаких проблем. Подобную конструкцию можно создать своими руками, если подойти к вопросу с максимальной ответственностью.

Основные требования
Во избежание каких-либо проблем в процессе создания канализации в собственном доме, лучше всего максимально следовать в данном процессе всем требованиям и стандартам, что расписаны в нормативной документации – СНиП. В этом случае все точно будет функционировать безотказно на протяжении длительного периода времени.
В какой угодно постройке, где проложен водопровод и есть забор воды, должна быть выполнена система, которая будет выводить стоковые массы. Механизмы водоотвода должны быть созданы и на участках. В целом такая сеть сможет не только обеспечить комфортную жизнь, но и не навредит экологии, а также существенно увеличит время пользования зданием.
Обычно канализация состоит из следующих систем:
- ливневой, которая отводит воду;
- наружной;
- внутренней.
Их необходимо проложить так, чтобы были соблюдены различные строительные сантребования к канализации в собственном доме.
Среди таких требований можно назвать:
- обеспечение нормального очищения;
- отсутствие риска в вопросе затопления постройки;
- обеспечение необходимого объема сточных вод;
- герметичное накапливание и транспортировка сточных вод.
Если говорить о требованиях к внутренним системам такого типа, то состоять они должных из следующих элементов:
- стояка, к которому прикрепляются все трубы;
- разведения труб, что осуществляет перекачивание сточных вод в направлении стояка;
- сантехприборов для водоотвода.


По нормам в механизме, часть которого расположена в постройке, должно быть достаточно места для свободного транспортирования жидкости от мест, где осуществляется слив до труб, которые осуществляют вывод за пределы постройки. При прокладывании канализации внутри постройки используют трубы из чугуна либо каких-то полимеров. На выходе размер такой трубы должен составлять 11 сантиметров. Естественно, что в данном механизме должна быть еще и вентиляция. Обычно ее проводят через стояк. Над каждым элементом делают вытяжное место, выходящее на крышу.


Если говорить о проекте наружных систем, то его создание осуществляется с учетом требований, прописанных в СНиП за номером 2.04.03-85.
По этому нормативному документу следует учесть следующие моменты:
- в механизме должны устанавливаться колодцы для обслуживания и очищения;
- для вычищения стоков нужна установка с применением биометодов;
- если речь идет о самотечной сети, то применяют полимерные, керамические или асбестоцементные трубы;
- трубы, которые размещены за границами постройки, должны быть в диаметре около пятнадцати сантиметров и заложены на уровне десяти-двенадцати сантиметров;
- если в строении мало этажей, то можно скооперировать несколько домов в единую сеть;
- если нельзя устроить самотечную систему, то лучше сделать выбор в пользу напорной канализации.


Еще один важный момент – подбор конструкции. Это действительно важно при проектировании канализационной автономной сети.
Тут могут быть три варианта септиков, которые используются:
- аэротенки;
- накопительный септик;
- очистной.
Теперь скажем о них чуть подробнее. Аэротенки – новейшие решения с использованием нескольких очистительных методик. После применения подобного септика жидкость очищается почти до 100-процентного значения. Воду можно легко выводить в землю, водоем и применять для полива. Септик накопительной категории является улучшенным вариантом выгребной ямы, в которой очистка не осуществляется, а лишь собираются стоки. Когда септик наполняется до определенного уровня, появляется необходимость его очистки. Обычно это осуществляется при помощи специального ассенизаторского оборудования.
Если говорить об отличиях от выгребной ямы, то никакой фильтрации в грунт в этом случае не осуществляется. Это значит, что никакого вреда экологии не наносится. Но все же данный вид септика применяется в последние годы крайне нечасто по причине дороговизны стоимости услуг специальной ассенизаторской техники. Такой тип можно использовать лишь тогда, если в доме вы проживаете сравнительно нечасто.
Канализация в частном доме своими руками – быстро и без проблем. Описание устройства, какие бывают виды и схемы (20 Фото & Видео) +Отзывы
Канализацию в частном доме можно сделать различными способами. Чтобы не запутаться в многообразии выбора, стоит разобраться в вопросе. Существуют следующие системы отведения стоков.
Автономные – такие системы не имеют подключения к централизованным канализационным трубам и другой инфраструктуре. Чаще всего используются в дачных поселках, отдаленных районах. Такой тип канализации обслуживается непосредственно жителями дома, для которого он построен.
2. Централизованные – общественные системы отвода стоков, как правило, в собственности муниципалитета. Это большая и разветвленная сеть коммуникаций, которая обслуживает одновременно от нескольких домов, до целых кварталов. В частных домах в городской черте, есть возможность подключения к централизованным веткам по согласованию с местными властями.

Бетонный сливной колодец
Сливной колодец — дешевый, относительно недорогой выбор. Но имеет ряд недостатков возможное появление неприятного запаха, высокую скорость заполнения и риск загрязнения подземных вод

Сливной колодец
— такой вариант выполняет несколько функций. Помимо водоотведения также частичную переработку отходов. В емкостях септиков сточные воды отстаиваются, а органические отходы частично разлагаются под действием бактерий.дороже, чем колодец, но зато избавляет от неприятного запаха и не загрязняет воды
— своего рода очистительное сооружение, только рассчитанное на один дом. Подобные станции обладают высокой производительностью и самым высоким уровнем очистки стоков. Из недостатков высокая стоимость строительства и обслуживания
Технические средства, материалы
Для создания любой канализационной системы вам понадобятся строительные материалы и инструменты. Ниже представлены самые необходимые.
Краткий список материалов:
- канализационные трубы. Виды труб более подробно рассмотрены в следующем параграфе
- соединительные элементы (переходники, гофрированные трубы, уголки). При помощи данных средств подключают унитазы, раковины, другие сантехнические приборы к сливу или системе подачи воды
- герметизирующее средство. Можно применять герметики на силиконовой основе
- смесь для цемента. Особенно пригодится при обустройстве внешней канализации
- песок
- лопаты . Лопаты пригодятся на весь период работ, от первичной разметки до рытья котлована под колодец
- ведра
- острый нож
- ключи, отвертки
- труборез (ножовка с тонкими зубьями)
- хомуты для крепления. При монтаже внутренней канализации хомуты незаменимы
- рулетка
- уровень

Трехсекционный септик
Электрические инструменты, которые могут пригодиться:
- болгарка . Применяют для резки металла. Если при строительстве будут применяться металлические трубы, нужного размера можно добиться, обрезав их
- перфоратор . Коммуникации внутри дома будут проходить через стены и напольное покрытие. Отверстия в них можно сделать при помощи перфоратора
- шуруповёрт . Трубы нужно будет крепить к стенам
Набор инструментов, необходимых материалов сильно зависит от объема работ, выбранного тип канализации. Но вышеперечисленные, как правило, применяются всегда.
Вы определили тип системы отведения стоков, запаслись нужным инструментом, можно переходить строительству. Начнем с внутридомовых коммуникаций.
Внутренняя канализация

Пластмассовые трубы
– это все трубы, разводки, подключения, находящиеся внутри дома. Унитазы, раковины, ванные, другая сантехника требует подвода и отвода воды.
При строительстве внутренних коммуникаций нужно учесть ряд вопросов.
Схема сантехники в частном доме. Схема подключения воды в частном доме
Первый этап обустройства внутреннего водоснабжения частного дома – разработка схемы. Вам нужно будет определить, сколько придется размещать точек горячего и холодного водоснабжения и где они будут находиться. Чем больше мокрых зон в доме, тем сложнее будет выглядеть схема. Параллельно желательно нарисовать и схему водоотведения. В идеале всем этим лучше заниматься не просто до начала монтажа системы водоснабжения дома, но и до строительства дома. Так вы сможете проложить трубы скрыто в полу и стенах, сделать более грамотную разводку и сэкономить много денег.
Кроме того, схема поможет рассчитать точное количество материалов, труб и фитингов, а также будет проще подобрать бойлер для горячей воды.
Совет! При проектировании дома нужно обратить внимание на несколько моментов. Во-первых, в 2-х и более этажных домах санузлы должны располагаться строго друг над другом. Если трубы водоснабжения еще можно провести под потолком или сделать скрытую проводку в полах, то со 110-ой трубой канализации это сделать не выйдет. Во-вторых, мокрые зоны (котельная, кухня, санузел) желательно располагать с одной стороны дома, а не так что кухня с одной стороны коридора, а котельная с санузлом – с другой. Это позволить сделать тройниковую разводку с возможностью слива воды из системы самотеком в холодное время года.
По возможности запланируйте в доме небольшую комнату под котельную или техпомещение. В ней будет удобно разместить узел автоматики, гидроаккумулятор, котел системы отопления. Зачастую в двухэтажном доме для котельной выделяют пространство под лестницей.
Наличие техпомещения желательно:
- При обустройстве скважины с адаптером, так как автоматика и гидробак размещаются в доме.
- При обустройстве колодца с насосной станцией, так как станция шумит и занимает много места.
- При горячем водоснабжении от системы отопления.
Схема канализации в одноэтажном частном доме. Какую канализацию лучше сделать в частном доме
Устройство канализации в частном доме состоит из разводки по помещениям и наружной сети. Внутри система может включать в себя один или несколько вертикальных стояков, к которым примыкают трубы с меньшим диаметром. По этим трубам, обязательно располагаемым с уклоном, сточная вода движется самотёком от точек расхода до места общего слива.
Устройство самотечной канализации в строящемся доме
Какие нюансы учесть при разводке труб
Попадая в стояк, вода под действием гравитации опускается вниз и поступает во внешний трубопровод большего диаметра, соединённый либо с центральной магистралью, либо с локальным накопительным или очистным сооружением.
При разработке схемы нужно учитывать несколько простых правил:
- Лучший вариант разводки для частного владения – это когда в схеме присутствует всего один стояк. А это возможно только тогда, когда санузел и кухня сконцентрированы в одной части дома и их разделяет только перегородка. Именно поэтому в квартирах эти помещения чаще всего располагаются рядом.
- К стояку идёт подводящая труба, к которой, как на фото снизу, подсоединяются все сантехнические приборы. Уклон труб диаметром до 80 мм должен составлять порядка 2 см на 1 м/п.
- Точки слива воды из приборов должны располагаться так, чтобы унитаз находился к стояку ближе всего – в этом случае, место его присоединения к отводной трубе окажется в самой низкой точке. Это важно, так как в противном случае стоки из унитаза могут попадать в отверстия для слива из других приборов.
Стояк в санузле
Совет: на трубе, идущей от посудомоечной машины и кухонной раковины, желательно установить жироуловитель.
Схема с жироуловителем
- По возможности, нужно избегать лишних поворотов трубопровода, так как именно в этих местах чаще всего и случаются засоры. Но если без них не обойтись, поворот нужно сделать как можно более плавным. Так, чтобы получить прямой угол, используют либо 3 колена по 30, либо 2 по 45 градусов.
Колено в 45 градусов
На заметку: чтобы не огибать дом, выход трубопровода из него должен располагаться с той стороны, где находится автономное очистное сооружение или центральный трубопровод.
Ввод канализации в дом в непосредственной близости от септика
Какие материалы лучше использовать
Сегодня уже не только в частном строительстве, но и в многоэтажках, для сборки канализационных трубопроводов используют не тяжёлую чугунину, а лёгкий, прочный и недорогой пластик, стыки которого заделываются полимерным герметиком.
Ассортимент смазок и паст для канализационных труб велик
При соединении сливного отверстия санитарного прибора с отводной трубой, очень важно устраивать гидрозатворы, роль которых играют U-образные трубы. Постоянно находящаяся в их изгибе вода является препятствием для проникновения в помещение зловонных запахов из канализации.
Пример устройства гидрозатвора
Ниже приведены сечения труб (в миллиметрах) для монтажа ветвей разводки, в зависимости от вида санитарного оборудования:
- ванна, раковина и душевой слив, если труба общая – 50;
- если всё по отдельности – 40;
- биде — 30 или 40;
- унитаз – 100
Примечание: эти цифры актуальны при условии, что унитаз находится в 1 метре от стояка, а остальные точки слива – не дальше 3-х. Если эти расстояния больше, диаметр труб придётся увеличивать.
Для стояка, в который идёт не только вода из кухни, но и стоки из туалета, трубы берут диаметром 100 или 110 мм. Такое же сечение должно быть у любого стояка в. Если же в доме туалета нет, а только душ и кухонная мойка, трубы размером 50 мм для установки стояка вполне достаточно.
Канализация в частном доме: схема. Как сделать схему канализации в доме своими руками
Такой документ представляет собой план действия в графическом исполнении. Проект канализации дает возможность правильно сосчитать потребность в материалах для монтажа канализационной системы для своего дома.
Смотреть видео
Основанием для составления схем водостоков является проект здания , на котором четко обозначаются места установки сантехнических приборов и их наименования, что позволяет правильно подбирать материалы.Факторы, влияющие на состав и устройство канализации в доме
Чтобы определить размеры и размещение основных элементов при устройстве канализации в частном доме, нужно обязательно, определить уровень потребления воды. При расчете используются усредненные данные потребления.
В первом приближении можно использовать норматив в количестве 100 литров на человека. При проектировании следует придерживаться основного правила размещения основного наружного оборудования канализации на расстоянии не ближе 4-х метров от границы участка и не ближе 10 метров от жилого строения.
При этом расстояние до ближайшего водозабора (колодец или скважина) должно составлять не менее 35 метров .
Если на вас пожалуются соседи, то проверяющие органы (санитарно-эпидемиологическая служба) требовать будет, чтоб расстояние было не менее указанной выше цифры!
Ниже представлен пример проекта.

Целью составления плана является расположение основного оборудования системы водоотведения, определения сечения канализационных отводов и подбор соответствующих фитингов для устройства самотечной водосливной сети.