Устройство внутренней канализации в частном доме. Что необходимо знать перед проектированием
- Устройство внутренней канализации в частном доме. Что необходимо знать перед проектированием
- Какие трубы нужны для канализации в частном доме. Классификация канализационных труб по диаметру Существуют некоторые стандартные значения диаметров труб, которые используются при монтаже канализации. Так для общего вывода канализации применяются трубы диаметром 100-110 мм, а внутренние сети создаются из 50-мм труб.
- Как устроена канализация в многоквартирном доме. Устройство канализационной системы в многоквартирном доме
- Канализация в частном секторе. Как сделать канализацию в частном доме?
Устройство внутренней канализации в частном доме. Что необходимо знать перед проектированием
Для проектирования системы нужно дать ответы на такие вопросы:
- Есть ли возможность подключиться к городской магистрали, придётся ли производить только сбор канализационных отходов или необходимо организовать ещё и их очистку?
- Какой объём сточных вод будет перерабатываться? Это зависит как от количества и сезонности проживающих в доме людей, так и от наличия и разновидности водоразборных точек.
Рисунок для наглядности — расход воды в сутки
- Следует выяснить глубину, на которую промерзает почва. Это нужно для правильного заглубления канализационного выпуска.
- УГВ – отметка, на которой располагается зеркало грунтовых вод (как проводятся инженерно-геологические изыскания читайте в статье). Если они расположены высоко, на приусадебном участке может сооружаться ещё и канализация для сбора ливневых стоков.
- Необходимо оценить, способствует ли рельеф участка тому, чтобы стоки могли сливаться самотёком. В противном случае, придётся задействовать фекальный насос , и нужно сразу определить место, где он должен быть установлен.
Как правильно сделать канализацию в частном доме, если придётся пользоваться насосом
- При устройстве очистных сооружений, нужно сразу определиться с их типом, рассмотреть возможность доступа ассенизационной техники (как проводится откачка и чистка септиков читайте в статье).
- Необходимо точно установить тип грунта на участке, в соответствии с которым принимается решение либо по устройству дренажного колодца , фильтрационных траншей или полей.
- Требуется начертить схему с указанием всех видов сантехнического оборудования. При этом надо учитывать вариант прокладки трубопровода: внутри пола или поверхностно, чтобы понимать, придётся ли производить какие-либо демонтажные работы.
Для чего нужна схема с разводкой внутренней сети? В первую очередь, чтобы правильно рассчитать количество необходимых материалов и точно определить место их нахождения в системе.
Какие трубы нужны для канализации в частном доме. Классификация канализационных труб по диаметру Существуют некоторые стандартные значения диаметров труб, которые используются при монтаже канализации. Так для общего вывода канализации применяются трубы диаметром 100-110 мм, а внутренние сети создаются из 50-мм труб.
Поскольку общий выводной канал системы обычно монтируется через унитаз, то объяснить такую разницу диаметров можно двумя факторами:- именно в туалете осуществляется единовременный слив большого количества воды;
- унитаз является единственным сантехническим устройством, которому приходится пропускать крупные фракции отходов, способных засорить трубы меньшего диаметра.
Второй нюанс заключается в том, что большая производительность канализации необходима, если одновременно будет осуществлен слив из всех сантехнических приборов, причем объем жидкости должен быть максимальным. Конечно, такая ситуация возникает редко, поэтому диаметр канализационной трубы для частного дома может быть довольно небольшим.Кроме того, нужно еще и понимать, как работает канализационная система в момент смыва. Когда он осуществляется, в систему попадает не только вода, но и определенное количество воздуха. Если диаметр канализации в частном доме большой, то проблем не будет, а вот в слишком узкой трубе может возникнуть излишнее давление, поскольку для воздуха там будет очень мало места. В результате внутреннее давление вытеснит этот воздух наружу, пробив гидрозатворы сантехники. Если повезет, то в помещение попадет только характерный канализационный запах, избавиться от которого будет проблематично. Гораздо хуже будет, если в жилые помещения начнут возвращаться стоки – сведение комфорта в доме будет гарантированно сведено к нулю.

- При обустройстве канализационной системы со стандартной нагрузкой достаточно использовать трубы с максимальным диаметром, не превышающим 100 мм. Конечно, такой вариант подходит только в том случае, если количество сантехники в доме не слишком велико. Обычно выполняют монтаж канализации из пластиковых труб .
- Сантехника, из которой необходимо выводить только воду и мелкие частицы грязи, может подключаться к канализации посредством 50-мм труб.
- Нужно всегда помнить о том, что в процессе эксплуатации трубы могут заиливаться и засоряться. Особенно это касается металлических изделий, внутренние стенки которых сильно подвержены такому влиянию.
- Для многоэтажных домов с количеством этажей до 5 можно использовать стояки диаметром 100 мм, а вот дома с большей этажностью необходимо оборудовать 150-мм трубами.
- Соединение нескольких вертикальных стояков с их последующим выводом в одну горизонтальную сеть нужно оборудовать трубами диаметром до 200 мм, поскольку нагрузка на конструкцию в таком случае будет довольно высока.
- Пластиковые трубы практически не подвержены внутренним засорениям, поэтому они являются гораздо лучшим решением при выборе материала для обустройства канализации. Выбирая между металлическими и пластиковыми изделиями, предпочтение стоит отдать второму варианту. Этот фактор позволяет менять чугунные трубы одного диаметра на пластиковые, диаметр которых будет на шаг меньше.
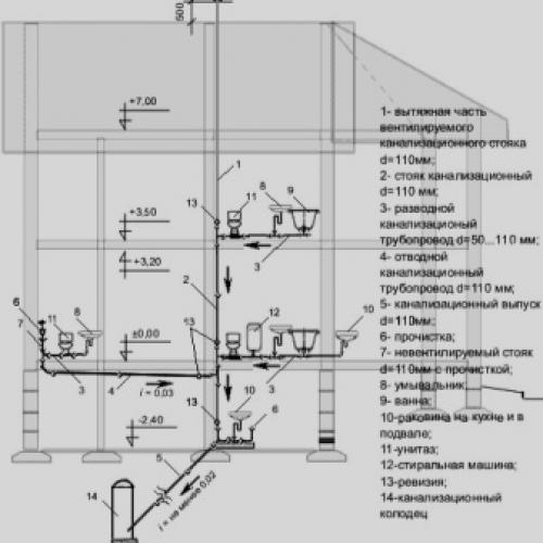
Как устроена канализация в многоквартирном доме. Устройство канализационной системы в многоквартирном доме
В стандартных конструкциях, которые были построены в СССР, санузел находится рядом с кухней, иногда за стеной. Трубы идут из кухни в ванную и туалет, переходят в общий стояк, тянущийся на крышу для вентиляции канализации. Конструкция устроена просто и легко очищается при появлении засоров.
Все детали находятся под наклоном, чтобы жидкость сама текла в канализацию. Уклон разный для каждого диаметра трубопровода. До начала монтажа проводят расчеты и рисуют схему.
Наклон для тонких деталей должен быть больше, чем для толстых элементов:
- для 40-50 мм – не меньше 3%;
- для 85-100 мм – 2%.
Если в процессе расчетов допущена ошибка в виде меньшего уклона, то в участках слабого сгиба образуется засор, который не даст полноценно использовать водопровод. При устройстве системы на каждый метр трубы уклон должен составлять 3 см. Все работы проводят в соответствии со СНиП, иначе засор в раковине может стать причиной капитального ремонта канализации во всем здании.
В домах, которые были построены не так давно, систему монтируют аналогичным образом, но с большим количеством стояков. Благодаря этому кухню и санузел можно располагать в разных местах квартиры. Схему канализационной системы составляют, условно разделяя монтаж на этапы разводки. Первой является вертикальная разводка, когда системы труб располагают вертикально. Это позволяет сточным водам самотеком перейти в следующий канализационный канал. Трубопроводы не засоряются за счет большого диаметра элементов.
По СНиП в одном подъезде должно быть установлено 3-5 стояков, в каждом из которых есть фановая труба. Она монтируется в любом высотном сооружении и здании, где больше 2 этажей.
Конструкция предотвращает попадание неприятных канализационных запахов в помещение и возникновение гидроударов. В вертикальной разводке есть прочистки, которые устанавливают через 2-3 этажа.
Они представляют собой окошки, через которые можно прочистить трубопровод при его засорении. Через этаж монтируют ревизию в виде небольшого окна, через которое осматривают засор, а через прочистку его удаляют. На стояке должно быть установлено достаточное количество ревизий и прочисток. Это позволит быстро решить проблему за счет прямого доступа к системе канализации в многоквартирном доме.
В горизонтальную разводку входят все трубопроводы, через которые идут сточные воды от сантехнического оборудования и бытовой техники. В этом виде разводки образуется засорение из-за того, что канализационные трубы монтируют не под нужным углом.
При использовании жилого помещения на сантехнические устройства ставят сифоны, препятствующие проникновению газов в помещение. Это приспособление также необходимо периодически очищать от скопившейся грязи.
В подвале устанавливают другую цепь канализации, которую называют лежневкой. Она может находиться в верхней области, внизу или крепиться к стене. К стояку присоединяют один конец лежневки, а второй тянется к колодцу, проходя под фундаментом. В подвальном помещении многоквартирных домов при соединении лежневки и системы труб устанавливают прочистку. На этот момент обращают внимание при утверждении сантехнического плана здания.
К этой конструкции у собственников нет доступа, поэтому при образовании на данном участке засора придется вызывать коммунальные службы, чтобы устранить проблему. При этом виновника искать не будут. На завершающем этапе монтируют колодцы, из которых стоки перетекают в центральную канализационную систему.
Когда здание расположено в низине и стоки не перетекают сами в колодец, сооружают герметичный коллектор. В нем устанавливают фекальный насос. Этот прибор принудительно перемещает сточную жидкость в колодец, из которого она перетекает в центральную систему. Рядом с ней должен располагаться люк, через который проводят экстренное устранение засоров.
Пример схемы канализации дома.
Для канализации понадобятся трубы из разного материала, к которым относят пластик, чугун, асбестоцемент и бетон. Для внутренних коммунальных сетей подойдет скрытая установка.
Для этого используются штробы, каналы, шахты и коробы. Для защиты трубопровода применяют гидроизоляционный рулонный материал.
В любой конструкции есть ливневая канализация, которая необходима для отвода осадков. Она состоит из большого количества деталей и предотвращает затопление крыши и подмытие фундамента.
Система может быть внешней и внутренней. В первом случае она монтируется из труб, воронок и лотков, которые крепятся к нижним краям скатов. Во втором – вода скапливается на крыше и отводится через трубопровод, который скрывают снаружи, в стене здания.
В многоэтажных домах принято монтировать ливневку внутреннего типа. Она служит долгое время и не портит вида многоквартирного дома. Систему устанавливают на плоских крышах и на конструкциях со скатом.
Канализация в частном секторе. Как сделать канализацию в частном доме?
Обеспечение комфорта и качественной жизни в загородном доме является важным моментом для любого владельца такой постройки. Одним из факторов, которые позволяют обеспечить комфортную жизнь, является удобство оттока использованной воды и продуктов жизнедеятельности. Правильно рассчитанная на стадии проектирования и впоследствии правильно построенная канализация в частном доме будет залогом длительной эксплуатации, при которой не возникнет никаких проблем. Подобную конструкцию можно создать своими руками, если подойти к вопросу с максимальной ответственностью.

Основные требования
Во избежание каких-либо проблем в процессе создания канализации в собственном доме, лучше всего максимально следовать в данном процессе всем требованиям и стандартам, что расписаны в нормативной документации – СНиП. В этом случае все точно будет функционировать безотказно на протяжении длительного периода времени.
В какой угодно постройке, где проложен водопровод и есть забор воды, должна быть выполнена система, которая будет выводить стоковые массы. Механизмы водоотвода должны быть созданы и на участках. В целом такая сеть сможет не только обеспечить комфортную жизнь, но и не навредит экологии, а также существенно увеличит время пользования зданием.
Обычно канализация состоит из следующих систем:
- ливневой, которая отводит воду;
- наружной;
- внутренней.
Их необходимо проложить так, чтобы были соблюдены различные строительные сантребования к канализации в собственном доме.
Среди таких требований можно назвать:
- обеспечение нормального очищения;
- отсутствие риска в вопросе затопления постройки;
- обеспечение необходимого объема сточных вод;
- герметичное накапливание и транспортировка сточных вод.
Если говорить о требованиях к внутренним системам такого типа, то состоять они должных из следующих элементов:
- стояка, к которому прикрепляются все трубы;
- разведения труб, что осуществляет перекачивание сточных вод в направлении стояка;
- сантехприборов для водоотвода.


По нормам в механизме, часть которого расположена в постройке, должно быть достаточно места для свободного транспортирования жидкости от мест, где осуществляется слив до труб, которые осуществляют вывод за пределы постройки. При прокладывании канализации внутри постройки используют трубы из чугуна либо каких-то полимеров. На выходе размер такой трубы должен составлять 11 сантиметров. Естественно, что в данном механизме должна быть еще и вентиляция. Обычно ее проводят через стояк. Над каждым элементом делают вытяжное место, выходящее на крышу.


Если говорить о проекте наружных систем, то его создание осуществляется с учетом требований, прописанных в СНиП за номером 2.04.03-85.
По этому нормативному документу следует учесть следующие моменты:
- в механизме должны устанавливаться колодцы для обслуживания и очищения;
- для вычищения стоков нужна установка с применением биометодов;
- если речь идет о самотечной сети, то применяют полимерные, керамические или асбестоцементные трубы;
- трубы, которые размещены за границами постройки, должны быть в диаметре около пятнадцати сантиметров и заложены на уровне десяти-двенадцати сантиметров;
- если в строении мало этажей, то можно скооперировать несколько домов в единую сеть;
- если нельзя устроить самотечную систему, то лучше сделать выбор в пользу напорной канализации.


Еще один важный момент – подбор конструкции. Это действительно важно при проектировании канализационной автономной сети.
Тут могут быть три варианта септиков, которые используются:
- аэротенки;
- накопительный септик;
- очистной.
Теперь скажем о них чуть подробнее. Аэротенки – новейшие решения с использованием нескольких очистительных методик. После применения подобного септика жидкость очищается почти до 100-процентного значения. Воду можно легко выводить в землю, водоем и применять для полива. Септик накопительной категории является улучшенным вариантом выгребной ямы, в которой очистка не осуществляется, а лишь собираются стоки. Когда септик наполняется до определенного уровня, появляется необходимость его очистки. Обычно это осуществляется при помощи специального ассенизаторского оборудования.
Если говорить об отличиях от выгребной ямы, то никакой фильтрации в грунт в этом случае не осуществляется. Это значит, что никакого вреда экологии не наносится. Но все же данный вид септика применяется в последние годы крайне нечасто по причине дороговизны стоимости услуг специальной ассенизаторской техники. Такой тип можно использовать лишь тогда, если в доме вы проживаете сравнительно нечасто.