Правила обустройства ванной комнаты в частном доме. Планировка и зонирование
- Правила обустройства ванной комнаты в частном доме. Планировка и зонирование
- Дизайн маленькой ванной комнаты с душевой кабиной в частном доме. Не выбиваться из стиля
- Душевая комната в частном доме. (+50 фото) Планировка санузла с душевой в частном доме
- Маленькая ванная комната в частном доме. Ванная, как прачечная
- Бюджетный ремонт ванной в частном доме
Правила обустройства ванной комнаты в частном доме. Планировка и зонирование
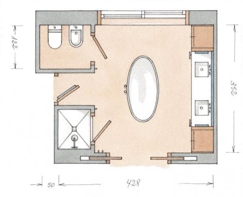
Ванная – комната не менее важная, нежели остальные помещения в жилище. Здесь так же необходимо позаботиться о красивом оформлении и продуманном зонировании пространства. В частном доме эта задача оказывается особенно важной.
Если в доме не один, а несколько этажей, ванные обычно располагают под нежилыми помещениями как можно ближе к спальням. Должен иметь место свободный доступ к шахтам вентиляции. В ванной может присутствовать окно, и это вовсе не дань моде, а ощутимая экономия электроэнергии в светлое время суток и неплохое проветривание.
В большинстве случаев окно выходит во двор.
Все особенности планировки ванной комнаты в частном доме отражаются в проекте ее дизайнерского оформления. Используя специальные приложения и компьютерные программы, есть возможность визуализации указанных проектов в удобном 3D-формате.
Квадратура ванной в частном домостроении напрямую зависит от конкретных предпочтений хозяев, но она не может быть менее, указанной в СНиПе . Самый маленький туалет или ванная могут иметь размеры: ширина – 0,8 м, глубина – 1,2 м. В процессе определения площади важно брать в учет размеры сантехнического оборудования и предметов мебели, которые планируется поставить в помещении.
Если санузел имеет достаточные размеры, то в нем обычно делают разделение площади на определенные функциональные зоны. Существует несколько способов зонирования имеющегося пространства. Для этого применяются различные средства и конструкции.
- Архитектурное зонирование. Здесь идеально подойдут перегородки разных типов, ниши и даже подиумы. Выбирать определенный вариант следует исходя из квадратуры комнаты.
- Световые средства зонирования. В качестве таковых могут выступать светильники точечного типа, особые лампы с поворотными механизмами, красивые бра подходящего стиля и дизайна.
- Существует и цветовое зонирование. Для этого хорошо подходит красивая плитка с глянцевой поверхностью, декоративная штукатурка, шикарный мрамор.
Чаще всего для зонирования пространства в ванной комнате используются именно архитектурные виды перегородок.
Ниши, перегородки и ширмы не теряют своей популярности и актуальности уже очень много лет. Подходят и современные раздвижные перегородки из стекла. Их ставят между ванной и раковиной, в результате чего интерьер становится более изящным и элегантным. Востребованы и ниши из гипсокартона. Их часто дополняют и украшают различными сувенирами, статуэтками, вазами с цветами.
Если прибегать к цветовому зонированию ванной в частном доме, то стоит использовать подходящие облицовочные покрытия, имеющие различные оттенки и текстуры.
А направленный свет разного уровня интенсивности поможет выделить выигрышные стороны интерьера, сделать помещение более объемным визуально.
Дизайн маленькой ванной комнаты с душевой кабиной в частном доме. Не выбиваться из стиля
Для того чтобы ванная комната смотрелась гармонично и целостно, душевая кабина в ней, подобно предмету мебели в любом другом помещении, не должна выбиваться из общего стиля. А поскольку кабины сами по себе довольно лаконичны в дизайне и безлики, лучше всего они будут смотреться в современных и минималистичных стилях.
1. Ванная с душевой кабиной в стиле хай-тек
Первым на ум тут же приходит стиль хай-тек. Строгий, сдержанный, но при этом функциональный, он как нельзя более кстати подойдет для размещения душевой кабины. Главное, чтобы она не слишком отличалась от остальной мебели и сантехники в комнате, в которой, как правило, преобладают стекло, плитка, зеркала и металлы. Хай-тек предполагает также использование неброской палитры и геометрических фигур при оформлении интерьера.
Фото ReRooms
2. Ванная с душевой кабиной в стиле лофт
Стиль лофт умудряется сочетать множество самых различных элементов, от труб и металлов до дерева. И такое разнообразие отлично подойдет для ванной комнаты с душевой кабиной, которую вполне можно подобрать под стать всей обстановке, выбрав, например, застекленный вариант душа с имитацией кованых вставок. А вот от перегородок при этом лучше отказаться, поскольку для стиля лофт важно наличие пространства и отсутствие какой-либо загроможденности.
Фото ReRooms
3. Ванная с душевой кабиной в стиле сканди
Оформить маленькую ванную комнату можно и в скандинавском стиле, для которого характерны свет, уют и домашняя простота. В этом случае предпочтение стоит отдать отделке белого и бежевого цветов, а в качестве ярких акцентов использовать узоры из мозаики или кафельной плитки. Жизни ванной комнате придаст и дерево, которое можно использовать как в той же отделке, так и в качестве материала для мебели.
Финальными штрихами в дизайн проекте интерьера станут мягкое освещение и украшения, например в виде плетеных корзинок, коврика или аккуратно сложенных полотенец.
Фото ReRooms
4. Ванная с душевой кабиной в классическом стиле
Для классики лучше всего использовать открытую или застекленную душевую кабину, а саму ванную комнату обустроить в светлых сдержанных цветах, например белом, сером или светло-голубом. Они подчеркнут роскошь выбранного стиля, как и отделка натуральным материалом (камнем или мрамором) и соответствующая дизайну мебель. Придать лоска такой ванной помогут и предметы декора: зеркала в изящных рамах, ковры, замысловатые золотые или серебряные светильники.
Душевая комната в частном доме. (+50 фото) Планировка санузла с душевой в частном доме
Если санузел будет плохо обустроен – это негативно скажется на общем впечатлении от помещения, ⛲ даже если все остальные комнаты будут иметь идеальную планировку и дизайн. Поэтому так важно предусмотреть все до мелочей.
С чего начать планировку?
Продумывание планировки санузла может показаться простой задачей, но это только на первый взгляд. На самом деле, этот процесс требует учета многих факторов и выполнения ряда последовательных действий.
Первым делом необходимо обсудить предполагаемый результат с другими членами семьи, узнать их пожелания и привычки. Также стоит учитывать возможность появления новых жителей квартиры.



После сбора мнений членов семьи можно приступать к подготовке проекта нового пространства. Это невероятно важный этап, поскольку уже в этот момент нужно продумать все до мелочей. В зависимости от дизайна санузла строители будут выбирать разные способы технической реализации проекта.
Помимо дизайна стоит продумать процесс водоотведения: выбрать место вывода труб, внешний вид защитных решеток. После заполнения помещения техникой и мебелью что-то поменять уже будет проблематично.


Зачастую владельцы квартиры приходят к решению объединить ванную с уборной. Тогда процесс перепланировки будет следующим:
- Освободить помещения от мебели и сантехники, убрать облицовку пола и стен.
- Перенос и замена двери. Для дополнительной экономии пространства можно установить раздвижную дверь. Это особенно актуально для квартир небольшой площади.
- Подготовительные работы. Сюда входит перенос коммуникаций, монтаж перегородок, ниш, шкафов из гипсокартона. Сейчас самое лучшее время для проверки расположения осветительных приборов и внесения возможных изменений. На этом этапе полезно проверить вентиляционные каналы и очистить их при необходимости.
- Установка сантехники – раковины, ванной, унитаза и дополнительной техники, которая необходима жильцам.
- Отделка стен, пола и потолка. Чаще всего стены облицовывают плиткой или мозаикой, для пола можно также выбрать плитку, но с шершавой или ребристой поверхностью.
- Монтирование осветительных приборов.
- Расстановка мебели и наполнение помещения аксессуарами.


Требования к планировке санузла в жилом доме
Процесс планировки санузла должен производиться с учетом эргономики и строительных норм и правил.
Минимальная площадь:
- Уборная с унитазом – 1,2 кв.м.
- Уборная с унитазом и небольшой раковиной – 1,5 кв.м.
- Ванная комната с раковиной, ванной и стиральной машиной – 3,3 кв.м.
- Совмещенный санузел с ванной, унитазом, раковиной и стиральной машиной – 3,8 кв.м.
Свободное расстояние:
- Между биде и унитазом – от 20 см.
- Между полотенцесушителем и ванной или душевой кабиной – от 50 см.
- Между раковинами – от 25 см.
- Перед душевой кабиной или ванной – от 70 см свободного пространства, в идеале – от 1 метра.
- Перед унитазом – от 60 см свободного пространства.
- Вокруг унитаза – от 25 см.
- Перед раковиной – от 70 см, если она расположена в нише, то не менее 90 см.
Способ открывания двери. Только наружу, сам вход в санузел должен располагаться в коридоре, расположение двери в кухне или жилой зоне недопустимо.
Способ расположения сантехники:
- Линейный. Техника располагается вдоль одной стены. Этот способ подходит для узких прямоугольных помещений.
- Радиальный. Техника располагается вдоль нескольких стен. Такой вариант применим к помещениям по форме приближенным к квадрату.



Чтобы увеличить количество вариантов расположения техники и мебели, можно совместить уборную и ванную комнату. В этом случае необходимо узаконить перепланировку в БТИ.
Отделочные материалы
Важно уделить особое внимание выбору отделочных материалов для душевой комнаты в частном доме.
Пол
Напольное покрытие должно быть нескользким, влагоустойчивым и прочным, так как на него часто попадают брызги. Традиционным материалом для отделки пола является плитка. Это могут быть классические однотонные модели или более яркие решения с принтами и рисунками. А также встречаются варианты с имитацией натуральной древесины, камня или кирпичной кладки.
Можно использовать и другие отделочные материалы, например, ламинат или наливные полы. Специалисты рекомендуют использовать комбинирование, отделав область возле кабинки плиткой.

Маленькая ванная комната в частном доме. Ванная, как прачечная
Если позволяет место и техническое решение, зарезервируйте место для стиральной машины в шкафу, гардеробной, прихожей или кухонном гарнитуре. Когда ничего не остается и требуется вписать стиралку в ванную комнату, можно выбирать из узких моделей и моделей с верхней начинкой.

Предварительно продумайте, нельзя ли все технологические устройства (бойлер, стиральная и/или сушильная машины) сосредоточить в одном месте (в идеале в углу, нише) и спрятать, например, за раздвижной стеной, занавеской.
- Главный недостаток маленькой ванной — это нехватка места, необходимость подбирать мебель и сантехнические работы с расчетом до миллиметра, невозможность реализовать многие дизайнерские решения.
- Выбор сантехники и мебельного оборудования пропорционален санузлу. Не нужно опираться на дизайн понравившейся модели, обратите внимание на размер. Например, большая раковина будет выглядеть неуместно и громоздко, не говоря уже о занимающей много места.
- Если вам необходимо разместить стиральную машину в ванной, ее можно установить под раковиной. У этого решения есть некоторые особенности: систему хранения придется перенести на более высокие уровни, для комфортного использования нужно правильно выбрать высоту и глубину всей конструкции.

Даже в миниатюрной ванной комнате стоит постараться разместить хотя бы часть мебели, так как она предоставит ценное место для хранения косметики и туалетных принадлежностей.

Например, можно использовать пространство над раковиной и повесьте там шкаф, дверца которого образует зеркало. Популярным предметом мебели для ванных комнат является тонкий высокий шкаф с полками, которые, например, могут заполнить пространство за дверью.

Поскольку он узкий и высокий, он не занимает слишком много места. Если в него поместится тумба под умывальник, это будет здорово, потому что вы получите довольно много места для хранения вещей, необходимых в ванной комнате.
Бюджетный ремонт ванной в частном доме
Превратить свою ванную из невыразительной ничего собой, не представляющую в ванную в которой приятно находиться.
Хочу, с удовольствием, показать процесс как она трансформируется.
Итак, пойдем, чтобы увидеть как делался ремонт ванной комнаты в частном доме "До и после" фотографии и узнать о проекте.
Ну, приступим… Работы много, но как говорится в пословице, с охотой можно и в камень гвоздь забить.
Убираем ванну, отрезаем батарею.
Водопровод и канализация
Из полипропилена разводим трубы водоснабжения и отопления (на полотенцесушитель)
Вместо ванной будут сделана душевая кабина своими руками , поэтому выкладываем подиум из кирпича и в него монтируем канализацию со сливным трапом.Заодно в полу будет проходить труба отопления, которая в отопительный период будет служить своеобразным теплым полом.
Электрика
Устанавливаем три розетки. Для водонагревателя, стиральной машины и рядом с зеркалом. При установке розеток и работе с электропроводкой надо соблюдать меры безопасности; учитывая повышенную влажность помещения, электропроводка должна быть только скрытой, а все места соединения проводов тщательно заизолированы. Сами розетки должны быть влагозащищенными.
Кроме того отдельно тянем провод на электровентилятор установленный на потолке
Свет в ванной. Много света не бывает.
- Функциональное освещение над зеркалом и ночная подсветка
- Интерьерное освещение ниши за унитазом
- Фоновое освещение охватывает всю комнату потолочным светильником (здесь светильник пока не установлен)
Стены
Облицовка стен гипсокартоном
Для определения количества материалов можно воспользоваться программой расчета гипсокартонных конструкций
Облицовываем стены влагостойким гипсокартоном . Шпаклюем стыки. Устанавливаем новую дверь.
Теперь уже можно на время стирки установить стиральную машину. Но придется несколько раз во время ремонта убирать и ставить ее снова, пока не положим плитку и не покрасим стены
Клеим стеклообои на влагостойкий клей
Потолок
Устанавливаем вентиляционный воздуховод диаметром 125мм под электровентилятор . Тщательно пропениваем монтажной пеной и силиконовым герметиком зазоры и по деревянному каркасу монтируем потолок из пластиковых панелей цвета белый глянец.
Пол
В душевой кабине решено сделать мозаичный пол из остатков керамической плитки.