Проект санузла в частном доме и на даче. Оптимальный размер ванной комнаты в частном доме. Как определить размеры санузла
- Проект санузла в частном доме и на даче. Оптимальный размер ванной комнаты в частном доме. Как определить размеры санузла
- Планировка туалета и ванной в частном доме. Требования к планировке санузла в жилом доме
- Туалет и душевая кабина в частном доме. (+50 фото) Планировка санузла с душевой в частном доме
- Сколько стоит сделать санузел в частном доме. Сколько стоит поставить септик в зависимости от его разновидности
- Санузел в частном доме своими руками. ООбшивка, монтаж потолка и пола в санузле
- Санузел в частном доме с чего начать. «Классический» санузел внутри дома
- Санузел в частном доме под ключ. Как заказать ремонт ванной комнаты с оплатой за результат
- Планировка раздельного санузла в частном доме. Планировка санузла — лучшие примеры и варианты дизайна современных санузлов в доме и квартире (120 фото-идей)
- Дизайн туалета в частном доме. Санузел в частном доме
Проект санузла в частном доме и на даче. Оптимальный размер ванной комнаты в частном доме. Как определить размеры санузла
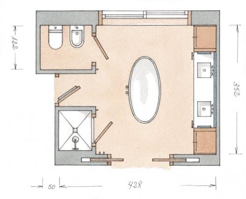
Отдавать слишком много площади дома санузлу так же неразумно, как устраивать ванную в тесном помещении. Согласно действующим СНИПам, минимальная площадь совмещенного санузла 3,8 кв. м.

Но такое микропомещение, напоминающее тесные санузлы в хрущевках, не позволяет говорить ни о каком комфорте. Но основной санузел в доме должен быть удобным и просторным – из таких вещей и складывается образ жизни. Просторная, комфортная ванна комната полностью соответствует философии загородной жизни – за город мы переезжали, в том числе, и для того, чтобы принимать ванну, любуясь крупными хлопьями снега за окном.
Оптимальная площадь санузла в частном доме для семьи из 4 человек– от 8 кв.м.
Посмотрим, как получилась эта цифра.
Примерная площадь, которая требуется:
- для душевой кабины – 2-2,5 кв.м;
- для раковины – 0,9 – 1 кв.м;
- для унитаза 1,2 – 1,8 кв.м.
Опыт участников FORUMHOUSE показывает, что ванная комната в частном доме никогда не бывает слишком большой.
Roberta
У меня помещение под санузел 5,5 кв.м: душевая кабина, раковина, унитаз, ящик для грязного белья, еще навесной шкафчик. Больше ничего не помещается, если не впихивать. И 15 кв.м. разойдутся на «ура», а может и не хватить!
При планировании санузла необходимо учитывать следующие параметры:
| Расстояние от ванны (душевой кабины) до другого предмета сантехники | Не менее 0,7 м, оптимально – 105 см. |
| Расстояние от раковины до другого предмета сантехники. | Не менее 70 см. |
| Расстояние между умывальником и унитазом. | Не мене 25 см. |
| Свободное пространство перед унитазом | 70 см. |
| Свободное пространство слева и справа от продольной оси унитаза | 40 см. |
| Минимальное расстояние между унитазом и биде | 25 см. |
| Расстояние между ванной (душем) и полотенцесушителями (вешалками) | 50-70 см. |
| Расстояние от пола до умывальника. | От 80 см. |
Планировка туалета и ванной в частном доме. Требования к планировке санузла в жилом доме
Процесс планировки санузла должен производиться с учетом эргономики и строительных норм и правил.
Минимальная площадь:
- Уборная с унитазом – 1,2 кв.м.
- Уборная с унитазом и небольшой раковиной – 1,5 кв.м.
- Ванная комната с раковиной, ванной и стиральной машиной – 3,3 кв.м.
- Совмещенный санузел с ванной, унитазом, раковиной и стиральной машиной – 3,8 кв.м.
Свободное расстояние:
- Между биде и унитазом – от 20 см.
- Между полотенцесушителем и ванной или душевой кабиной – от 50 см.
- Между раковинами – от 25 см.
- Перед душевой кабиной или ванной – от 70 см свободного пространства, в идеале – от 1 метра.
- Перед унитазом – от 60 см свободного пространства.
- Вокруг унитаза – от 25 см.
- Перед раковиной – от 70 см, если она расположена в нише, то не менее 90 см.
Способ открывания двери. Только наружу, сам вход в санузел должен располагаться в коридоре, расположение двери в кухне или жилой зоне недопустимо.
Способ расположения сантехники:
- Линейный. Техника располагается вдоль одной стены. Этот способ подходит для узких прямоугольных помещений.
- Радиальный. Техника располагается вдоль нескольких стен. Такой вариант применим к помещениям по форме приближенным к квадрату.
Чтобы увеличить количество вариантов расположения техники и мебели, можно совместить уборную и ванную комнату. В этом случае необходимо узаконить перепланировку в БТИ.
Как выбрать сантехнику и расположить ее в совмещенном санузле в квартире
Первоочередной задачей является выбор набора сантехники для конкретного помещения. Как правило, даже в небольшое помещение устанавливают раковину, унитаз и ванну, либо душевую кабину.
В зависимости от площади комнаты и пожеланий владельцев, можно увеличить количество базовых предметов сантехники и дополнить их другой техникой, например, биде.

Биде подвесное Uni Chrome белое X01517
23 920 ₽
Все предложения
Чтобы помещение смотрелось гармонично, важно добиться сочетания всех объектов друг с другом. Элементы сантехники должны быть изготовлены из одного материала, в одной цветовой гамме, либо иметь одинаковую фактуру.
Подвесные, угловые или встроенные модели сантехники позволят грамотно задействовать пространство небольшого помещения.
В целом расположение сантехники может быть любым, все зависит от фантазии владельцев или дизайнера. Однако соблюдение правил эргономики, рассмотренных ранее, позволит расставить все элементы на комфортном расстоянии друг от друга. Только в этом случае планировка санузла может считаться качественной.
Лучшие проекты ванных комнат с туалетом
Умывальник
Один из главных атрибутов любого санузла. Различают целый ряд конструкций:
- Тюльпан. Округлая чаша, расположенная на высокой «ноге», в которой скрыты все коммуникации. Раковина выглядит элегантно и эстетично, ее довольно просто установить и удобно обслуживать.
- Кувшинка. Раковина крепится к стене и зачастую размещается над стиральной машиной и вплотную к ванне. Такой вариант оправдан, если под умывальником расположены трубы, препятствующие установке техники типа «тюльпан», либо в небольшой ванной.
- Подвесная. Раковина крепится к стене и оснащена отверстием для установки смесителя, за счет чего ее можно расположить в любом месте санузла. Коммуникации можно скрыть, тогда умывальник автономен, компактен и выглядит эстетично.
- Встраиваемая. Умывальник монтируется в столешницу или мебель. Изделие выглядит эстетично и стильно, а также обеспечивает дополнительную функциональность помещения – вещи можно разместить на полках и в ящиках. Все коммуникации будут также скрыты мебелью.
- Накладная. Умывальник, размещаемый вместе со столешницей. Внешне это выглядит так, будто раковина стоит на столе.
- Мини-мойка. Умывальник, шириной не более 50 см. Конструкция обычно крепится непосредственно к стене. Этот вид раковины удобно установить в небольшой уборной.
Форма умывальника:
- Овальная.
Туалет и душевая кабина в частном доме. (+50 фото) Планировка санузла с душевой в частном доме
Если санузел будет плохо обустроен – это негативно скажется на общем впечатлении от помещения, ⛲ даже если все остальные комнаты будут иметь идеальную планировку и дизайн. Поэтому так важно предусмотреть все до мелочей.
С чего начать планировку?
Продумывание планировки санузла может показаться простой задачей, но это только на первый взгляд. На самом деле, этот процесс требует учета многих факторов и выполнения ряда последовательных действий.
Первым делом необходимо обсудить предполагаемый результат с другими членами семьи, узнать их пожелания и привычки. Также стоит учитывать возможность появления новых жителей квартиры.



После сбора мнений членов семьи можно приступать к подготовке проекта нового пространства. Это невероятно важный этап, поскольку уже в этот момент нужно продумать все до мелочей. В зависимости от дизайна санузла строители будут выбирать разные способы технической реализации проекта.
Помимо дизайна стоит продумать процесс водоотведения: выбрать место вывода труб, внешний вид защитных решеток. После заполнения помещения техникой и мебелью что-то поменять уже будет проблематично.


Зачастую владельцы квартиры приходят к решению объединить ванную с уборной. Тогда процесс перепланировки будет следующим:
- Освободить помещения от мебели и сантехники, убрать облицовку пола и стен.
- Перенос и замена двери. Для дополнительной экономии пространства можно установить раздвижную дверь. Это особенно актуально для квартир небольшой площади.
- Подготовительные работы. Сюда входит перенос коммуникаций, монтаж перегородок, ниш, шкафов из гипсокартона. Сейчас самое лучшее время для проверки расположения осветительных приборов и внесения возможных изменений. На этом этапе полезно проверить вентиляционные каналы и очистить их при необходимости.
- Установка сантехники – раковины, ванной, унитаза и дополнительной техники, которая необходима жильцам.
- Отделка стен, пола и потолка. Чаще всего стены облицовывают плиткой или мозаикой, для пола можно также выбрать плитку, но с шершавой или ребристой поверхностью.
- Монтирование осветительных приборов.
- Расстановка мебели и наполнение помещения аксессуарами.


Требования к планировке санузла в жилом доме
Процесс планировки санузла должен производиться с учетом эргономики и строительных норм и правил.
Минимальная площадь:
- Уборная с унитазом – 1,2 кв.м.
- Уборная с унитазом и небольшой раковиной – 1,5 кв.м.
- Ванная комната с раковиной, ванной и стиральной машиной – 3,3 кв.м.
- Совмещенный санузел с ванной, унитазом, раковиной и стиральной машиной – 3,8 кв.м.
Свободное расстояние:
- Между биде и унитазом – от 20 см.
- Между полотенцесушителем и ванной или душевой кабиной – от 50 см.
- Между раковинами – от 25 см.
- Перед душевой кабиной или ванной – от 70 см свободного пространства, в идеале – от 1 метра.
- Перед унитазом – от 60 см свободного пространства.
- Вокруг унитаза – от 25 см.
- Перед раковиной – от 70 см, если она расположена в нише, то не менее 90 см.
Способ открывания двери. Только наружу, сам вход в санузел должен располагаться в коридоре, расположение двери в кухне или жилой зоне недопустимо.
Способ расположения сантехники:
- Линейный. Техника располагается вдоль одной стены. Этот способ подходит для узких прямоугольных помещений.
- Радиальный. Техника располагается вдоль нескольких стен. Такой вариант применим к помещениям по форме приближенным к квадрату.



Чтобы увеличить количество вариантов расположения техники и мебели, можно совместить уборную и ванную комнату. В этом случае необходимо узаконить перепланировку в БТИ.
Отделочные материалы
Важно уделить особое внимание выбору отделочных материалов для душевой комнаты в частном доме.
Пол
Напольное покрытие должно быть нескользким, влагоустойчивым и прочным, так как на него часто попадают брызги. Традиционным материалом для отделки пола является плитка. Это могут быть классические однотонные модели или более яркие решения с принтами и рисунками. А также встречаются варианты с имитацией натуральной древесины, камня или кирпичной кладки.
Можно использовать и другие отделочные материалы, например, ламинат или наливные полы. Специалисты рекомендуют использовать комбинирование, отделав область возле кабинки плиткой.

Сколько стоит сделать санузел в частном доме. Сколько стоит поставить септик в зависимости от его разновидности
Как правило, стоимость монтажа наружной канализации под ключ составляет 10-20 % от цены самого сооружения. Естественно, один из самых важных факторов, влияющий на ценообразование – это размеры емкости, поскольку от величины конструкции зависит объем подготовительных и земляных работ.
Различают 4 варианта автономных канализаций:
- Выгребная яма (отстойник) — самая простая и, на первый взгляд, кажущаяся дешевой канализация. Однако такая канализация не отвечает санитарным, экологическим нормам. Например, построенная канализация из бетонных колец, даже с герметизированными швами, со временем дает течь и засоряет грунт. Если рядом есть колодец, вскоре он станет непригодным для использования. У этого способа есть еще один недостаток: очень быстро заиливается дно. После этого приходится закапываться еще на одно кольцо, что влечет за собой дополнительные траты. Обойдется такая конструкция заказчику в 17000-18000 руб .
При получении разрешения на установку бетонного септика могут возникнуть проблемы: даже современные модели, изготовленные из качественных гидрофобных материалов, часто не соответствуют действующим нормативным документам –и
К преимуществам подобных конструкций относят:
- — удобная и недорогая альтернатива локальной канализации , если ей планируется пользоваться редко. Например, на даче не для постоянного проживания. Если пользоваться канализацией регулярно, придется часто вызывать ассенизаторскую машину, которая стоит от 2000 руб. за один вызов. Средняя цена на установку такой дачной канализации невысокая — от 17000 руб . + во столько же обойдется сама емкость.

- Септик с почвенной доочисткой (энергонезависимый) — более качественная очистка по сравнению с накопителем и выгребом. В среднем стоимость монтажа начинается от 18000 руб. + от 22000 руб. септик. Но еще потребуются затраты на земляные работы по обустройству систем дополнительной фильтрации. Подробнее смотрите в этой таблице.

Санузел в частном доме своими руками. ООбшивка, монтаж потолка и пола в санузле
После установки профиля можно приступать к обшивке гипсокартоном. Вначале необходимо подготовить основание: при помощи клёпок к уже имеющимся П-образным профилям крепятся такие же, видоизменяя их так, чтобы было удобно прикреплять листы гипсокартона.
Гипсокартон можно крепить при помощи саморезов. Стоит заранее определиться с размещением проводки и при установке листов гипсокартона просверлить в них отверстия под провода. Поверх гипсокартона можно уложить кафельную плитку.
Потолок в санузле лучше сделать подвесной: так можно с удобством замаскировать все вентиляционные элементы.
Схема гидроизоляции пола ванной комнаты в деревянном доме
Схема гидроизоляции пола ванной комнаты в деревянном доме
Пол обустраивается по-разному: в зависимости от типа основания. Если основание бетонное – пол делается таким же, как и в каменном доме. Если основание – деревянные лаги, то вначале укладывается утолщённая водостойкая фанера, затем гидростеклоизол, армированная стяжка и, наконец, плитка.
Кроме того, санузел в деревянном доме нуждается в тщательной гидроизоляции. Если средства позволяют – можно уложить полимерный пол, если же бюджет ограничен – можно своими руками нанести водоотталкивающую смесь или приклеить водостойкое напольное покрытие.
Предварительная отделка ванной в деревянном доме должна выполняться тщательно: необходимо выровнять, очистить пропитать антисептиком и заделать трещины в полу перед непосредственной укладкой гидроизоляционного слоя и финишного покрытия.
Санузел в частном доме с чего начать. «Классический» санузел внутри дома
Прежде всего, следует определиться с местоположением будущего туалета. Лучше всего выбирать размещение у наружной стены. Желательно, чтобы предполагаемая точка была как можно ближе к выгребной яме. В таком случае Вам понадобится меньшее количество канализационных труб. К тому же, вероятность образования засоров по причине слишком длинной протяженности труб с небольшим углом наклона отпадет автоматически.
Определившись с расположением, можно приступать к обустройству помещения. Сделайте перегородки, которые будут отделять туалет от других помещений. В качестве материала можно использовать ОСБ, фанеру и подобные им материалы. Стены следует защитить от попадания влаги (с внутренней стороны). Для этого их обрабатывают водостойким лаком, краской, либо обшивают пластиковыми панелями.
Важно! Чтобы обустроенный санузел получился теплым, внутрь каркаса следует заложить утеплитель, например: минеральную вату или пенопласт.
В наружных стенах и в полу проделывают технические отверстия — для прокладки сантехнических труб и водопровода. Выполнить разводку труб по санузлу можно также наружным методом, закрепив трубы на стенах.
Для данного помещения крайне важно сделать вентиляцию. Как вариант: под потолком проделывают и обустраивают вентиляционный канал. Очень эффективно справляется с поставленной задачей электровентилятор. Запитать его лучше от отдельного выключателя. Небольшой подрез под дверью улучшит работу вентиляции.
Справка! Подреза размером 5-10 мм будет достаточно.
Санузел в частном доме под ключ. Как заказать ремонт ванной комнаты с оплатой за результат
6 простых шагов, гарантирующих качественный ремонт ванной комнаты под ключ опытными плиточниками в Москве.
- 1. Для начала - оставьте заявку на сайте нашей компании, позвоните, напишите нам любым удобным способом, сделайте заказ ремонта ванны.
- 2. К вам приедет замерщик, в удобное для вас время. Его задача - выполнить обмер помещения, учесть особенности, ваши пожелания и требования, предложить дизайн-проект на выбор или согласовать выезд дизайнера для создания нового интерьера ванной. Посоветуем какую выбрать плитку, российского производителя или европейского, подберем вариант раскладки. Как только вы определитесь с проектом - приходит время следующего этапа.
- 3. Сметчик после замеров и на основании выбранного вами дизайн-проекта, сообщит сколько будет стоить отделка ванной и туалетной комнаты с материалами и сантехникой. В тот же день или даже через месяц - заключаете договор с замерщиком на основе проведенных расчетов. Важно: мы берем деньги только после сдачи всех работ, когда ремонт полностью закончен.
- 4. Мы привозим материалы, профессиональный инструмент и оборудование на объект, приходят специалисты, начинаем ремонт ванной комнаты и туалета.
- 5. По окончании строительных работ - мы уберем весь мусор, выполним уборку и предложим проверить качество отделки. После проверки - вы подписываете акт выполненных работ, свидетельствующий о том, что вас всё устраивает и услуги оказаны в полном объеме.
- 6. Оплачиваете услуги в полном объеме или в соответствии с графиком платежей по рассрочке, кредиту.
Планировка раздельного санузла в частном доме. Планировка санузла — лучшие примеры и варианты дизайна современных санузлов в доме и квартире (120 фото-идей)
Помещение санузла является самым маленьким по своим размерам. Но размер никак не отражает значимость данного помещения. Если вы решили сделать полноценный ремонт в этом помещении, то вам стоит со всей серьезностью отнестись к поставленной задаче. Пошаговая инструкция, как развести.

Ведь утреннее посещение данного помещения должно настраивать вас на активный образ жизни, а вот вечернее посещение наоборот должно вас успокоить и настроить на спокойное приготовление к грядущему сну.
При помощи специализированных форумов и дизайнерских сайтов вы можете ознакомиться с различными вариантами благоустройства санузла.

Существует огромное количество фотографий и

Их всего два: совмещенный и раздельный варианты. При раздельном варианте существуют два помещения это ванная комната и туалет. При совмещенном варианте все сантехническое оборудование находится в одной комнате.

Иногда в квартирах, где присутствует раздельный вариант, хозяева специально ломают стену, чтобы визуально расширить пространство. Но каждый хозяин решает сам, какой из вариантов, ему более приемлем.

Совмещенный вариант
Увеличенное пространство совмещенного санузла дает возможность превратить санузел в удобное и комфортное помещение.
У совмещенного варианта существует масса плюсов. Увеличенная площадь, возможность установки более крупного оборудования, отсутствие второй двери, экономия материалов на ремонте убранной стены.

Несмотря на такие плюсы, существуют и некоторые минусы. Если ваша планировка предусматривает раздельный вариант, а вы решили сделать совмещенное помещение, то вам придется узаконить свое решение в БТИ.

Стоит внимательно проверить, не является ли стена, которую вы хотите убрать, несущей. Это конечно маловероятный случай, но удостовериться придется.

Совмещенный вариант будет не совсем удобен, если у вас большая семья. Если кто-то решит принять ванну, то маловероятно, что кто-то сможет воспользоваться туалетом.

Если минусы вас не пугают, то можете приступать к планировке совмещенного санузла. Старайтесь сразу предусмотреть какое оборудование вам необходимо и как наиболее выгодно и удобно его расположить.

Маленький санузел
Если изначально проект вашей квартиры предусматривает маленький санузел, не стоит сильно расстраиваться. Существует масса дизайнерских решений, в которых при использовании умелой планировки ваш маленький санузел превратится в удобное и комфортабельное помещение, способное удовлетворить все ваши запросы.

В данном случае можно порекомендовать отказаться от ванны и установить душевую кабину. Такая замена при оставшейся функциональности сможет значительно увеличить свободное пространство.

Раздельный вариант санузла
Если раздельный вариант вас полностью устраивает, то это не означает, что вам не требуется проводить какую-либо планировку. За счет маленького объема помещений планировка может показаться сложным делом.
На специализированных форумах есть масса различных идей и решений, которые помогут вам осуществить правильную планировку раздельного варианта санузла.

Расположение закрытых полок в туалете, которые не только скрывают сантехнические трубы, но и помогают спрятать всевозможные баночки и емкости с различной химией.

Дизайн туалета в частном доме. Санузел в частном доме
Где расположить санузел в деревянном доме, кирпичном или бетонном? Как правильно его обустроить и оформить? Этими вопросами задаются многие владельцы загородных участков, отведенных под строительство.
Проектирование уборной в частном доме – этап на самом деле ответственный и имеющий массу нюансов. Определенные правила придется соблюсти как при выборе размеров туалета , так и его месторасположения. Существуют также нормы, касающиеся размещения сантехнических приборов и подбора отделочных материалов для этого помещения .
Размеры и месторасположение
Понятие «удобство во дворе» постепенно уходит в прошлое. Сегодня даже владельцы небольших дачных домов в деревне предпочитают обустраивать туалет прямо в здании. Сделать это при наличии на рынке такого оборудования, как септики и простые в монтаже трубы ПВХ, несложно. Конечно, при составлении проекта расположение, дизайн и размеры санузла в частном доме следует выбирать так, чтобы пользоваться этим помещением было приятно и удобно.
Invalid Displayed Gallery
Выбор размера
Согласно нормативам СНиП на подсобные помещения, к которым относится и санузел, должно приходиться не более 20% площади дома. Размеры совмещенной уборной — не меньше 3.8м2, отдельной ванной комнаты – 3.3м2, туалета – 1.5м2.
Минимальную площадь обычно выбирают, обустраивая санузел на даче. И это неудивительно, ведь построенный своими руками летний дом, редко отличается большими размерами.