Устройство отмостки вокруг дома своими руками. Отмостка своими руками: пошаговая инструкция и советы для строительства
- Устройство отмостки вокруг дома своими руками. Отмостка своими руками: пошаговая инструкция и советы для строительства
- Бетонная отмостка вокруг дома. Как правильно сделать отмостку из бетона?
- Самая простая отмостка. Разновидности отмосток
- Мягкая отмостка вокруг дома. Устройство мягкой отмостки Вариантов устройства мягкой отмостки немало — гравий или щебень, бурсчатка или плитка и даже газонная трава. Но в основе всегда будет
- Отмостка своими руками: пошаговая инструкция. Пошаговая инструкция для начинающих, как правильно сделать отмостку вокруг частного дома своими руками
- Правильная отмостка. Содержание:
- Отмостка вокруг дома размеры. Требования
- Бюджетная отмостка своими руками. Как правильно сделать отмостку вокруг дома своими руками быстро и недорого?
- Отмостка вокруг дома цены. Стоимость услуг на строительство отмостки
Устройство отмостки вокруг дома своими руками. Отмостка своими руками: пошаговая инструкция и советы для строительства
Самым надежным способом защиты фундаментной части дома является отмостка своими руками: пошаговая инструкция для строительства данной конструкции настолько проста, что вы легко сможете обойтись без помощи квалифицированных специалистов. Следуя простым и понятным рекомендациям, вы сможете соорудить капитальную защиту для фундамента собственного дома с минимальными затратами и тем самым предотвратить повреждение основания поверхностными водами.

Обратите внимание! Строительство вокруг дома бетонной отмостки, имеющей целостное покрытие, дает практически 100%-ную гарантию защиты от воздействия влаги. Ни один другой материал не располагает подобными возможностями. В противном случае ради дополнительного усиления придется обустраивать многоярусную конструкцию «пирога», что само по себе сложно и повлечет существенные затраты.
Основание здания находится под воздействием различных природных факторов:
- низкие температуры;
- избыток влаги;
- повреждения механического свойства вследствие вспучивания почвы.
От того состояния, в котором находится фундаментная часть коттеджа, зависит устойчивость всей постройки, поэтому защита должна быть капитальной и надежной. Именно эта функция является основной для отмостки, защитные свойства которой распространяются и на цокольную часть дома.
Бетонная отмостка вокруг дома. Как правильно сделать отмостку из бетона?

Даже прочнейший фундамент не может долго противостоять влаге и перепадам температуры. Влага быстро приводит к тому, что нагрузка на дренажную систему и гидроизоляцию дома увеличивается. Чтобы этого избежать, устанавливают отмостку из бетона. Сделать это довольно просто и самостоятельно. Именно этому будет посвящена эта статья.


Помимо выполнения основных функций (сохранение конструкции от разрушительного влияния влаги), покрытие становится зоной для пешеходов. К тому же отмостка придает частному дому особую красоту и законченный вид. Однако перед непосредственной заливкой отмостки нужно проанализировать особенности конструкции и рекомендации по её установке.


Устройство
Бетонные отмостки характеризуются конструкционной простотой, и для самостоятельного изготовления будут необходимы нижеописанные материалы.
- Подушка (пирог). Необходимо провести подсыпку перед сливанием раствора в конструкционные пазы. Эту роль часто выполняют песок (крупной и средней зернистости), щебенка, гравий мельчайшего диаметра или смесь гравия и песка. Если в качестве подложки использовать мелкий песок, может произойти большая усадка. Из-за сильной усадки конструкция может пойти трещинами. Самым надежным вариантом является подсыпка из двух слоев: сначала засыпается щебёнка или гравий, которые уплотняют грунт, а потом всыпается песок.
- Укладка арматуры. Арматурная сетка в конструкции обеспечивает дополнительную прочность. Размеры пазов обычно варьируются – или 30 на 30 см или периметр в 50 на 50 см. Диаметр арматуры составляет 6-8 мм, однако, базируется всё на разновидности почвы.
- Опалубка. Конструкция обязательно должна быть дополнена направляющими из прямых досок. Опалубку устанавливают по всей площади покрытия. Ширина направляющих – 20-25 мм. Опалубка позволяет ликвидировать растекание состава.
- Раствор бетона. Создание конструкции требует использования бетона особого состава.
Самая простая отмостка. Разновидности отмосток
Перед тем как правильно сделать отмостку вокруг дома своими руками или заказать её строительство, нужно определиться с разновидностью. Можно назвать три варианта устройства верхнего покрытия:
Жесткое покрытие. Представляет собой монолитную ленту из бетона или асфальтобетона. В первом случае, создавая отмостку своими руками, делают опалубку, проводят обязательное армирование, а во втором, ни опалубка, ни, соответственно, армирование не требуется, благодаря стойкости асфальтобетона на изгибающие нагрузки.
Обустройство основания и заливку отмостки вокруг дома проводят по такой же технологии, что и для дорожек, но с учетом выполнения обязательного требования по уклону от цоколя.
Защита от воды происходит за счет водонепроницаемости обоих видов бетона. Поэтому важно, чтобы на поверхности не было трещин и разрывов покрытия. Вторая особенность – между отмосткой и цоколем необходим зазор, компенсирующий температурное расширение монолитного покрытия.
Полужесткое покрытие. Делают из тротуарной плитки, клинкерного кирпича или брусчатки. Устройство и способ укладки проводят по аналогии с тротуарами и площадками из этих материалов с обязательным созданием гидроизоляционного слоя в составе отмостки:
- водонепроницаемой геомембраны, при укладке на сухую песчано-цементную смесь;
- бетонного монолитного основания.
Мягкое покрытие. Классический вариант – обустройство верхнего слоя из утрамбованного слоя плотной (водоупорной) глины. Как сделать отмостку такого типа, знают многие: её делали раньше вокруг деревенских домов, да и сейчас такое решение периодически применяется как «эконом-вариант» вокруг небольших дачных домиков, но с верхним слоем из декоративного (цветного) гравия. Для улучшения гидроизоляции между глиной и щебнем можно уложить водонепроницаемую пленку. Нужно понимать, что отмостка - это не просто декор, сильно экономить на ней не стоит.
Сейчас набирает популярность новый вид мягкой отмостки вокруг дома на основе профилированной мембраны . Общий порядок работ здесь следующий:
Мембрану закладывают в траншею с глубиной 25-30 см.
Дно траншеи трамбуют с уклоном от фундамента.
Поверх мембраны раскатывают слой фильтрующего геотекстиля с заходом на стенку основания дома.
Ручной культиватор Вихрь К-4
1 590 ₽
Колесо 4х10
2 213 ₽

Роторная косилка РК-850В-18 Huter
18 690 ₽

Роторная косилка РК-850Р Huter
14 490 ₽
Культиватор Ресанта БМК-7.0
28 390 ₽

Грунтозацеп 600/130 для МК-9500,МК-11000,МК-13000,МК-15000 для окучивания (шестиг.32 мм)(комп.2 шт.)
5 090 ₽

Удлинители колёсной оси HUTER (2шт)
Затем насыпают дренажный слой из щебня и песка, а поверх него – плодородный грунт, который засевают газонной травой или высаживают декоративные растения.
Такую отмостку еще называют скрытой. Это красивое решение, но с существенным недостатком - по мягкому покрытию не рекомендовано ходить. Впрочем, всегда можно дополнительно организовать тропинку.
Мягкая отмостка вокруг дома. Устройство мягкой отмостки Вариантов устройства мягкой отмостки немало — гравий или щебень, бурсчатка или плитка и даже газонная трава. Но в основе всегда будет
защитно-дренажная мембрана. Состав пирога может меняться в зависимости от технологии и желаемого результата, но суть одна — при попадании воды в грунт около фундамента мембрана отводит ее в сторону от дома или в дренажные трубы. И в наших широтах можно разбить клумбу прямо у стены дома. Фото ТЕХНОНИКОЛЬ Для эффективного дренажа в мягких отмостках многими застройщиками применяется профилированная дренажная мембрана PLANTER Geo от ТЕХНОНИКОЛЬ.
 И в наших широтах можно разбить клумбу прямо у стены дома. Фото ТЕХНОНИКОЛЬ Для эффективного дренажа в мягких отмостках многими застройщиками применяется профилированная дренажная мембрана PLANTER Geo от ТЕХНОНИКОЛЬ.как работает planter geo
planter geo — это полимерное полотно с конусообразными выступами высотой 8,5 мм, которое изготавливается из полиэтилена высокой плотности (hdpe). к верхнему краю выступов термически прикреплен геотекстиль typar sf27 от компании dupont. этот материал позволяет создавать более эффективные решения по сравнению с традиционными методами строительства. он стабилизирует пирог отмостки, предотвращает прорастание сорняков, фильтрует жидкость, попадающую в каналы мембраны. таким образом, предотвращается их засорение. без геотекстиля каналы забиваются грунтом и сором, и эффективность водоотведения падает. именно по этой причине для отмосток используют только мембрану с качественным геотекстилем! Профилированная дренажная мембрана PLANTER Geo от ТЕХНОНИКОЛЬ
 Профилированная дренажная мембрана PLANTER Geo от ТЕХНОНИКОЛЬ PLANTER Geo позволяет использовать различные виды финишного покрытия (гравий, тротуарную плитку , газон ).
 Галька или гравий по периметру дома защитит стены от грязных брызг во время дождя. Фото ТЕХНОНИКОЛЬ
 Галька или гравий по периметру дома защитит стены от грязных брызг во время дождя. Фото ТЕХНОНИКОЛЬ Этот материал нельзя назвать новинкой, так как он довольно давно используется и в частном, и в коммерческом строительстве по всей стране. PLANTER Geo имеет ряд важных качеств (эластичность, стойкость к перепадам температур, инертность), которые позволяют применять его в различных регионах вне зависимости от климатических особенностей и особенностей грунтов.
Популярность материалу обеспечивает и простота его монтажа. Процесс не займет много времени, справиться с укладкой мембраны несложно и в одиночку, а ходить по отмостке можно сразу после окончания работ.
Важно! Если в вашем доме эксплуатируемый подвал, фундаменту обязательно нужна гидроизоляция. Практика показывает, что лучшим решением является использование обмазочных, наплавляемых или же самоклеящихся битумно-рулонных материалов. Также при строительстве дома используют и гидроизоляцию из полимерных мембран, например ПВХ мембраны. Самоклеящаяся гидроизоляция фундамента хорошо подходит частной застройке, где требуется осуществить простой монтаж, с сохранением максимальной надежности. Причем здесь мягкая отмостка? Она частично «разгружает» гидроизоляцию, благодаря тому, что отводит лишнюю воду с поверхности.
Отмостка своими руками: пошаговая инструкция. Пошаговая инструкция для начинающих, как правильно сделать отмостку вокруг частного дома своими руками
Для всех домов, которые фундаментом уходят в грунт, требуется отмостка. Благодаря ей основание строения остаётся цельным, менее подвержено промерзанию и появлению трещин.
Несмотря на то, что элемент это довольно простой, не все строители удостаивают его должным вниманием. Часто приходится переделывать или создавать ее с нуля своими руками.
Чтобы выполнить технологический процесс правильно, нужно ясно представлять функции отмостки, знать нюансы строительства.
Как грамотно, очень просто и недорого сделать отмостку вокруг частного дома, садового, около домика на даче своими руками, расскажем в статье.
Целесообразность самостоятельного изготовления
Считается, что отмостка необходима всем строениям, которые стоят на фундаменте. И всё же, профессионалы советуют создавать ее и вблизи домов на сваях. Дождь и талая вода способны без труда поникнуть под здание, образовать там болото, со всеми вытекающими последствиями.
Как строительный элемент отмостка проста в исполнении и не требует особых знаний , только соблюдение порядка действий и точность в расчетах параметров.
Для чего нужен этот элемент, почему не стоит откладывать его строительство:
-  Гидроизоляция. Фактически отмостка – это искусственно созданный уклон в сторону от основания строения.Осадки, которые выпадают в непосредственной близки от стен здания, и без неё впитываются в грунт, проникают к бетонному фундаменту и подмывают строительный материал, создавая трещины. В результате дом меняет положение, кренится, а трещины поднимаются выше. 
- Теплоизоляция. Застывающая от холода внутри грунта вода расширяется и создаёт давление на фундамент. Отмостка – это дополнительное утепление верхнего слоя почвы, она не пропускает кислород внутрь, сохраняет тепло на полу, цокольном и первом этаже. Благодаря отсутствию полноценной циркуляции воздуха в почве не размножаются микроорганизмы.
- Завершённый внешний вид . Этот элемент здания один из финальных штрихов, выглядит как рамка вокруг дома, завершает процесс.
- Удобство. Отмостку используют как дорожку вокруг дома, можно ставить на неё лестницу, чтобы подобраться к фасаду и т.п.
Разделяются отмостки на жёсткие, полужёсткие и мягкие. С последними вручную совладать проще, они состоят из гидроизоляции, подушки и финишного материала (дренаж, газон).
Жёсткая отмостка заливается бетоном, асфальтом или цементной смесью . Самостоятельно построить ее можно, но проблематично. Потребуется нанимать технику (и уметь ей управлять), к тому же такое покрытие смотрится грубовато, со временем теряет презентабельный вид.
Самый оптимальный вариант – полужёсткая отмостка. Это тонкий слой бетонной смеси и тротуарная плитка. Материал имеет массу оттенков, смотрится красиво, долговечный. Сделать его самостоятельно дешево и не составит проблемы.
Какие правила и нюансы нужно учесть при строительстве?
Что нужно знать заранее:
- Работы по строительству отмостки проводятся до облицовки цоколя и после завершения отделочных работ со стенами. Причины: между этим элементом и стеной строения должен оставаться компенсаторный шов. Это расстояние 2-3 см, даётся на случай усадки или физических изменений материала, из которого сделан дом (касается древесины). Облицовка цоколя будет перекрывать шов и вода, скатывающаяся по стенам, не попадёт в стык.
- Выкладывают отмостку по периметру всего здания, за исключением крыльца.
- Ширина зависит от грунта. Для упругого до 1,5 м, для рыхлого до 2 м. В любом случае, покрытие должно превышать на 20 см ширину свеса кровли (нормы обозначены в СНиП 2.02.01-83 ).
- Глубина равна половине глубины промерзания грунта в конкретном регионе. Для средней полосы России это 30-40 см, на юге до 20 см.
- Обязательно обладать уклон на 2-3 градуса от стены здания уже на этапе рытья траншеи. Верхнее покрытие укладывается также под наклоном, иначе смысл отмостки теряется.
- Необходимо проложить слой гидроизоляции и теплоизоляции, слои должны подниматься на 20 см стены здания.
- Дно траншеи опрыскивается химическими соединениями, препятствующими росту растений и размножению микроорганизмов (гербицидами).
- Для отвода воды от основания строения используют водостоки и дренажные трубы. В зависимости от количества осадков в регионе, укладывают их по углам дома и дополнительно по периметру отмостки. Они работают как профилактика от луж и образования болот на стыке с почвой.
- Компенсационный шов не оставляют пустым, внутрь укладывается эластичный материал (рубероид, пенопласт и пр.) и засыпается полоской песка.
- Если отмостка планируется из бетона, обязательно устанавливают демпферные швы по всему периметру на расстоянии 2-3 метра. Это доски шириной 2,5 см, ставят их вертикально, чтобы бетон не был монолитным по всей длине и не трескался от мороза.
Правильная отмостка. Содержание:
Любой из домовладельцев (бани, гаражи и другие постройки тоже считаются) очень хочет, чтобы его строение как можно реже требовало ремонта. И в первую очередь беспокоит сохранность фундамента. Для этого важно не только грамотно спланировать и правильно построить, нужно еще отвести воды — грунтовые и осадки. Отведением грунтовых вод занимается дренажная система, а осадки удаляются при помощи отмостки. Эта оснастка имеет не самое сложное устройство: отмостку любого типа несложно сделать своими руками. Работы и затрат не очень много, а задач она решает несколько.
Зачем нужна отмостка?
Мы давно привыкли, что вокруг дома должна быть дорожка: она придает всей планировке законченный вид. Особенно, если сочетается с отделочными материалами, которыми оформлено здание. Кроме того, это практично: по дорожке можно ходить. А то, что дорожка и есть отмостка, и основное ее назначение отвод воды — это удачное сочетание свойств и качеств материалов и продуманной конструкции.

Основная функция отмостки фундамента — отводить от него осадки
Если смотреть с утилитарной точки зрения, то отмостка отводит дождевые и талые воды от фундамента. Вторая очень важная практическая задача, которую с ее помощью можно решить — утеплить фундамент. Если под дорожку положить утеплитель, она будет защищать дом от промерзания, что намного снизит затраты на отопление.
Когда нужно делать отмостку? Сразу по завершении отделки наружных стен, но до того, как сделана отделка цоколя. Почему так? Потому что между отделкой отмостки и стеной дома обязательно оставляют компенсационный зазор. Это — отличная дорожка для воды, которая стекает по стене дома (попадает на стены при косом дожде, например). Но не делать этот зазор нельзя — разрушится фундамент. Герметично заделать щель тоже нереально. Выход — сделать так, чтобы вода в любом случае в зазор не попала. Этого можно достигнуть только при условии, если отделка цоколя будет нависать над швом. Тогда вода будет стекать на несколько сантиметров дальше от шва, а потом попадать в водоотводящие канавки. Сделать это можно только в том случае, если сначала организовать отмостку, а потом довести до ума цоколь.
Зачем нужна отмостка фундамента, когда ею заниматься, разобрались, теперь осталось понять, как ее правильно сделать.
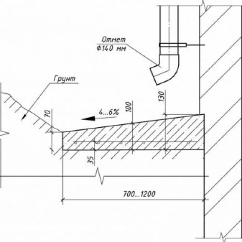
Отмостка вокруг дома размеры. Требования
Специальные требования, прописывающие соотношения размеров отмостки и свеса крыши, не прописаны ни в одном ГОСТе. Нормативные обязательства по ширине выноса отмостки на 0,2–0,3 см по сравнению с выносом карниза можно считать рекомендательными, и во время сооружения конструкции вокруг дома ориентироваться на эти данные не требуется. Обязательными считаются только 2 минимальных показателя ширины с учетом грунта:
- на песчаных почвах — от 0,7 м;
- на глинистых они начинаются от 1 метра.


Эти данные указаны в документе СП для надзорных органов. В тех случаях, когда у двухэтажных домов не имеется водостоков, кровельные свесы должны быть не менее 60 см.
Если строение находится на песчаных почвах, то разница между параметрами отмостки и кровельного свеса может равняться 0,1 см и при этом не вступать в противоречие с нормативными требованиями.
Из этого следует, что указанные параметры в 20-30 см – это всего лишь среднее и наиболее удобное соотношение отмостка-кровельный свес для большинства вариантов.
Что касается просадочных почв, то к ширине отмостки предъявляют несколько иные условия:
- I тип — ширина от 1,5 м;
- II тип — ширина от 2 метров.


Несмотря на указанные рекомендации, отмостка должна превышать величину рва на 40 см, причем угол склона варьируется от 1 до 10º. Когда дом установлен на просадочных почвах, то минимум уклона должен составлять 3º. Внешний край выше почвенного горизонта не менее 5 см.

Бюджетная отмостка своими руками. Как правильно сделать отмостку вокруг дома своими руками быстро и недорого?

При возведении жилых сооружений одним из завершающих видов стройки становится обустройство отмостки вокруг дома своими руками. Устройство полосы шириной 60-120 см, которая примыкает к цокольной основе или фундаменту, выполняется после фасадной отделки здания либо цоколя.
Зачем нужна отмостка?
На устойчивость дома влияет состояние фундамента и цокольной части. Целостность и надёжность – это ключевые характеристики для покрытия, обустроенное по всему периметру постройки.
Главные задачи полосы, которая вплотную окружает строение :
- Отведение вод после таяния снега или дождя от стен и основания сооружения для недопущения снижения его каркасной жёсткости;
- Декоративная деталь благоустройства участка, своеобразный тротуар по периметру здания после облицовки его тротуарной плиткой, натуральным или искусственным камнем;
- Приостановка смещения грунта из-за сдвигов земляных слоёв, просадки почвы либо её вспучивания. Отмост снижает напряжение на дом при возникновении этих процессов;
- Исключается рост растительности или газонной травы вблизи стен строения. Снижается риск повреждения основания корневой системой кустарников и деревьев;
- Сохранение температуры фундаментной части, особенно при обустройстве утеплённой отмостки вокруг дома своими руками. В холодное время к фундаменту выдвигаются высокие требования – температура нужна стабильная, без резких скачков.

Требования к отмостке
Главные параметры, которые применимы для возведения узкой полосы по периметру строения, регламентируются нормативами СНиПа. Благодаря нормам можно построить по правильной технологии долговечные конструкции.
Таблица 1.1 – Параметры по СНиПу
| Наименование | Особенности | 
| Ширина | Параметр задаётся в зависимости от структуры почвы и длины свеса карниза кровли. На обычных почвах ширина на 20 см должна быть шире карнизной части (но не меньше 60 см). Тогда сток воды с крыши не размоет грунт, и она не будет застаиваться под зданием. На сыпучих почвах ширина нужна не меньше 90 см. | 
| Уклон | Если полоса возводится из щебня и булыжника, то уклон поперёк от оси строения в диапазоне 5-10 % (на 1 см до 10 см). Для бетона и асфальта уклон 3-5 %. Чем выше процент уклона, тем легче отводиться воде, но в качестве тротуарной дорожки сама конструкция становится неудобной. | 
| Глубина | Уровень углубления рассчитывают с учётом линии промерзания грунта зимой. Устанавливается величина глубины по имеющимся в свободном доступе таблицам. | 
| Зазор между стеновой частью и заливаемого раствором сооружения | Назначение зазора при устройстве отмостки вокруг дома своими руками — защитная функция от повреждений и разрушений гидроизоляционных материалов стен. Без зазора брусчатая или плитная дорожка под воздействием низких температур будет давить на стену. Если ходить по такой тропинке, то начнётся без зазоров её оседание и произойдёт повреждение изоляции наружной части фундамента. Компенсационный шов делают 1-2 см и заполняют герметиком, песком и другими синтетическими средствами. | 

Защита дому нужна по всему его периметру. Участок забетонированного крыльца исключают, т. к. он выступает в роли усиливающей конструкции.
Правильная «подушка» по периметру дома
При выборе любого типа выкладки полосы возле здания важно правильно уложить подстилающий пласт – подушку. Исключением станет только монолитная бетонная укладка.
Ключевые компоненты подушки :
- глина;
- песок;
- земля.
При обустройстве конструкции по мягкому типу поверх делают щебневый пласт. Для полужесткой полосы сверху подушки дополнительно насыпают щебень и песок, а потом укладывают плитку.

Если конструкция жёсткая, то устраивают песчано-гравийный подстилающий слой :
- засыпают песок;
- сверху укладывают щебёнку;
- монтируют утеплитель;
- армируют и потом уже приступают к бетонным работам.
Чтобы сделать отмостку вокруг дома своими руками, важно следовать пропорциям при замесе раствора.
Какой бетон нужен для мощённой полосы?
На качество и долгий период эксплуатации заливки влияют соотношения компонентов и технологии замеса.
Таблица 1.2 – Пропорции для бетонной смеси

У бетона особенные требования к количеству жидкости. Лишняя вода разбавит смесь и понизит прочность раствора, т. к. цементная мука медленно, но уверенно выйдет в верхний слой, распределив плотность компонентов неравномерно.
Рекомендовано применять пропорции жидкости к цементу — 1:2.
Приготовление бетона :
- В бетономешалку или иную ёмкость засыпают цемент;
- Заливают воду и перемешивают компоненты до момента появления цементного молочка;
- Порциями засыпают песок и составляющие смеси смешивают;
Информация! Делают «перекур» 5 минут перед засыпкой каждого последующего ингредиента. Так можно получить хорошую бетонную смесь для заливки.
Отмостка вокруг дома цены. Стоимость услуг на строительство отмостки
Отмостка - это покрытие по периметру строения, выполненная из любого водонепроницаемого материала, проходящая полосой вокруг дома с направленным уклоном от строения. Отмостка предназначена для защиты фундаментов основания от паводков и дождевых вод. Строительство отмостки является обязательным условием не зависимо от типа и вида фундамента. Обустройство отмостки входит в перечень мероприятий по предотвращению намокания грунта в основании строений.
Главное назначение отмостки - защитить грунт от намокания, который теряет свои несущие свойства во влажной среде. Также с помощью отмостки можно решить проблемы промерзания грунта для мелкозаглубленных фундаментов. Чаще всего материалом для строительства отмостки служит бетон, но последнее время с приходом на строительный рынок новых современных материалов, качественную отмостку можно выполнить с использованием декоративного щебня, посадкой газона и других декоративных материалов
Услуги
| Наименование работ | Ед.изм. | Цена/рубли | 
|---|---|---|
| Отмостки, дорожки, площадки | ||
| Отмостка бетонная | мп | от 2900 руб. | 
| Отмостка утепленная (ЭПП -50 мм.) | мп | от 3450 руб. | 
| Отмостка утепленная (ЭПП -100 мм.) СНИП | мп | от 3600 руб. | 
| Отмостка бетонная свайного фундамента | мп | от 2900 руб. | 
| Отмостка Отмостка из брусчатки по готовому бетонному основанию | мп | от 2100 руб. | 
| Отмостка из брусчатки с подготовкой основания ПГС | мп | от 2900 руб. | 
| Установка садового бордюра | мп | от 400 руб. | 
| Мягкая отмостка | мп | от 1900 руб. | 
| Въезд на участок ( труба 6 мп ) | кт | от 45000 руб. | 
| Бетонные площадки | м2 | от 3000 руб. | 
| Демонтаж отмостки | мп | от 800 руб. | 
| Утепление цоколя фундамента (ЭПП 50 мм.) | мп | от 1350 руб. | 
| Дренажные работы | ||
| Кольцевой дренаж фундамента | мп | от 1900 руб. | 
| Дренаж участка поверхностный | мп | от 1600 руб. | 
| Колодцы ревизионные (смотровые) | шт | от 6500 руб. | 
| Устройство сборочного колодца из бетонных колец, устройство основания, монтаж плиты перекрытия, врезка в колодец, обвязка КНС. | шт | от 45000 руб. | 
| Перевозка земли тачкой на расстояние (25-50 м) | м3 | от 750 руб. | 
| Перевозка земли тачкой на расстояние (60-100 м) | м3 | от 950 руб. | 
| Ливневая канализация | ||
| Устройство ливневой трубы, с подготовкой разуклонки основания | мп | от 850 руб. | 
| Монтаж дождеприемника, установка основания, герметизация соединений | шт | от 2600 руб. | 
| Прокладка канализации | мп | от 850 руб. | 
| Прокладка водопровода | мп | от 2500 руб. | 
| Установка лотков линейного водоотвода | мп | от 1700 руб. | 
| Малые архитектурные формы | ||
| Устройство подпорных стен из бетона | мп | от 5000 руб. | 
| Устройство ступеней крыльца или входных групп из бетона | м3 | от 17500 руб. | 
| Устройство водоотводных лотков из бетона | мп | |
| Заезд на участок с ливневой трубой до 6м. | кт | от 35000 руб. | 
Источник: https://domastroevo.ru/novosti/materialy-dlya-otmostki-vokrug-doma-trebovaniya