Чертежи садовых беседок для дачи из дерева и других материалов. Чертежи и размеры для самых красивых беседок
- Чертежи садовых беседок для дачи из дерева и других материалов. Чертежи и размеры для самых красивых беседок
- Чертеж беседки 4х4. Беседка 4х4: что учесть при планировании и строительстве
- Чертеж беседки 3х4 из металла. Беседки из металла: чертежи, фото и подсказки по возведению
- Проекты беседок с чертежами. Беседки своими руками: чертежи и размеры, схемы, эскизы и проекты конструкций
- Простая беседка из дерева своими руками. Беседки с полом и без него
Чертежи садовых беседок для дачи из дерева и других материалов. Чертежи и размеры для самых красивых беседок
Садовая беседка, сделанная своими руками, способна стать центром притяжения всех членов семьи и друзей на отдыхе на даче. Обычно беседки мастерят из деревянных реек и вагонки. Крышу кроют мягкой черепицей, шифером или жестяными листами.

Можно выделить самые популярные беседки по форме:
- прямоугольные;
- квадратные;
- округлые;
- шестигранные;
- трапециевидные.
Это самые простые и эффектные варианты для садовой беседки, которую можно смастерить своими руками на участке довольно быстро. Чертежи и фото самых простых и красивых вариантов приведены далее.


Есть несколько основных этапов в строительстве беседки, которые важно соблюдать:
- Подготовка места. Следует очистить площадь под беседку, выровнять ее. Если легкое архитектурное сооружение возводится на грунте, то лучше убрать чернозем и засыпать камнем, щебенкой. Для защиты от растений, которые могут прорасти под полом, можно застелить участок под беседкой рубероидом.
- Затем нужно сделать фундамент или основание пола из лагов или кольев.
- После выложить балки пола.
- Возвести основание стен.
- Настелить пол.
- Обшить стены.
- Сделать каркас крыши и покрыть ее.
Размеры всех деталей можно взять из чертежей и фото уже готовых беседок или рассчитать по собственной задумке.




Затем следуют декоративные работы. Можно сделать решетки на оконных проемах, обшить стены внутри вагонкой, покрасить их. Рассмотрим самые красивые и интересные варианты беседок с пошаговыми инструкциями для их возведения.
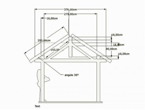
Чертеж беседки 4х4. Беседка 4х4: что учесть при планировании и строительстве
Беседка 4 на 4 ‒ удобный вариант строения для летнего отдыха на природе. При грамотном выборе месторасположения отлично впишется в пространство сада или вблизи дома на дачном участке. Беседка площадью в 16 кв.м считается средней по размеру. Но если разместить компактно мебель, то здесь может отдыхать до 15 человек. Разберем по шагам, как самому с нуля собрать каркасную конструкцию таких размеров. Пользователи также ищут: В фотогалерее собраны готовые варианты открытых и закрытых беседок четыре на четыре из различных материалов, с интересными вариантами комбинирования материалов, способов отделки. Чтобы правильно выбрать место, нужно учесть ряд рекомендаций: Беседка в 16 кв. м отлично впишется в ландшафт даже небольшого дачного участка. Тип конфигурации конструкции стоит выбирать исходя из частоты, сезонности использования. Создание проекта на бумаге позволит четко увидеть размеры и расположение каждого элемента, выполнить расчет количества материалов. На чертеже получиться изобразить вид конструкции в собранном виде. Отличным помощником в создании проекта станут компьютерные программы, в которых можно создать беседку в формате 3D. Ключевые элементы, которые нужно изобразить на чертеже: Поскольку беседка будет квадратной формы, крыша чаще всего создается четырехскатная вальмового типа, реже односкатная. При создании каркаса беседки самыми популярными материалами считаются следующие: Для обшивки стенок применяются: Фото: собираем каркас из брусаИдеи проектов беседок 4*4 с фото
При планировке стоит учесть, какой обзор и вид будет открываться из беседки.Проектирование: чертеж, схема
Материалы для изготовления
Для настила крыши чаще используются:
- рубероид;
- металлочерепица;
Большинство владельцев дач все же останавливают свой выбор именно на пиломатериалах. Беседка из дерева отлично впишется в любой стиль ландшафта, станет отличным архитектурным дополнением участка.
Чтобы деревянная конструкция прослужила дольше, и не начала деформироваться,, перепада температур, все ее элементы. Если внутри или рядом будет расположен мангал, то стоит еще и нанести слой антипирена ‒ это повысит защиту дерева от внезапного возгорания.
Чертеж беседки 3х4 из металла. Беседки из металла: чертежи, фото и подсказки по возведению
Виды используемых материалов для сборки
Используемый материал может быть довольно разнообразным учитывая вид металла и обшивки. Для каркаса чаще всего используют следующие профили: тубы круглой или квадратной формы, металлопрофиль или уголок.
Работать лучше с неокрашенным металлом дабы избежать вредных испарений во время работ сваркой. Лакокрасочными материалами можно покрыть беседку по завершении работ.
Для крыши и стенок существует широкий выбор материала. Наиболее популярны, поликарбонат, листы металлопрофиля или вагонки, при желании могут быть решетки из дерева или сварные парапеты. Если для вас это лишнее или нужно сократить бюджет, то можно сделать и без ограды, получится не менее красиво.
Крыша и стенки беседки накрыты поликарбонатом
Если позволяет бюджет, то можно заказать кованную ограду. Такое решение не заставит вас разочароваться и будет смотреться очень красиво. Пример на фото ниже.
Красивая кованная беседка
Кроме прочего можно украсить интерьер беседки плетущимися растениями. Они будут органично смотреться и не требуют большого ухода, нужно только следить чтобы побеги не разрослись куда не надо.
Выбор формы конструкции
При этом шаге всё опять же упирается в фантазию проектировщика, но есть и стандартные решения. Наиболее часто беседка металлическая встречается четырехугольного типа, так как они проще в сборке, но не менее популярны и многогранные сооружения, так как в них легко можно уместить большое количество народа, да и выглядят они эстетичнее.
Стеклянная беседка выполненная в виде купола
На фото выше мы видим оригинальную куполообразную форму. Выполнена беседка из металла и поликарбоната, так как этот материал легко гнется и принимает нужную форму. Но будьте осторожны и не переусердствуйте.
Типы конструкций
Вида всего два: открытый и закрытый. Но вариантов реализации очень много.
Выбирая закрытый тип обычно зашивают стены беседки от пола до потолка. От капризов матушки природы они конечно защищают, но стоит учесть, что в жаркую понадобится достаточная вентиляция.
Закрытая от непогоды беседка
Открытое же сооружение преимущественно удобно в летнее время. Имея достаточно света и хороший обзор окружающей среды, вы сможете полностью почувствовать дыхание природы. К тому же этот вариант требуем меньшего бюджета ввиду отсутствия стен.
Бюджетный вариант беседки — открытая
Также металлические беседки для дачи или дома разделяют на стационарные и переносные. Переносные можно разобрать и вне сезона хранить в сарае. Общий каркас конечно состоит из сваренных между собой деталей, но для скрепления между собой своего рода модулей обычно используют болты.
Составление и расчет проекта
Перед началом нужно есть и просчитать все детали. Строительство не должно доставить сюрпризов. Поэтому обратите внимание на особенности почвы для постройки здания и мангала в беседке, метраж необходимых труб или профиля для скелета, вид обшивки, украшения и растения, наличие дополнительных сооружений.
Проекты беседок с чертежами. Беседки своими руками: чертежи и размеры, схемы, эскизы и проекты конструкций
Как построить беседку своими руками? Проекты, фото, чертежи разных по форме и дизайну сооружений имеются в несметном количестве в интернете. Но можно разработать самостоятельно свой индивидуальный вариант. Для тех, кто не уверен, что сможет грамотно подготовить все схемы или кто выбрал слишком сложную конструкцию, рекомендуется воспользоваться готовыми чертежами.
Составление проекта беседки включает в себя несколько этапов: создание эскиза будущей постройки и составление рабочих чертежей. Схемы и эскизы дадут возможность уже на этой стадии спланировать расположение беседки относительно участка, наметить расстановку мебели и оборудования, зафиксировать места подвода коммуникаций и определиться с расходом строительного материала.

Эскиз открытой беседки возле водоема
Составить рабочий проект максимально корректно позволят некоторые рекомендации:
- выбирают тип сооружения: открытый или закрытый;
- тщательно продумывают дизайн беседки, который должен соответствовать по стилю имеющимся строениям и определяются с материалами конструкции;
- выбирают место будущей постройки на территории участка;
- габариты беседки на чертеже должны соответствовать размерам отведенного места. В чертеже указывают высоту, длину, ширину сооружения, места расположения опорных стек, входа, а также форму и высоту ограждения;
- включают в проект чертежи с проекциями: фасадное изображение, разрезы, планировку и схемы технических узлов конструкции. Отображают все размеры и формы беседки;

3D-проект прямоугольной деревянной беседки
- если предполагается закрытая постройка, прописывают схему вентиляции;
- отдельно разрабатывают рабочий план фундамента с указанием его типа (ленточное, столбчатое или плитное основание);
- описывают схемы конструктивных узлов: указывают размеры и места установки дверей, окон, лестницы;
- отдельно выполняют схему крыши с обозначением ее размеров, конфигурации, углов наклона, высоты, материала покрытия;
- указывают технологию возведения стен, крыши, мангала (если предполагается). Для беседок с каминами, печами, мангалами прилагают план порядовой укладки кирпичей с указанием всех размеров оборудования;
- выполняют схемы электропроводки и водоснабжения;

Проект оригинальной беседки с печью-мангалом
- разрабатывают план размещения светильников, мебели и оборудования;
- составляют спецификацию на строительные материалы, включая крепежные элементы, обрабатывающие пропитки и метизы.
Чем тщательнее будет выполнен проект, тем точнее будут расчеты необходимого количества материалов, легче будет производить строительство и выше вероятность, что конструкция будет надежной и крепкой. Используйте в подготовке базового проекта фото, чертежи беседок для дачи своими руками, которыми с удовольствием делятся умельцы.
Источник: https://doma-na-veka.ru/stati/proekt-besedki-s-barbekyu-chertezhi-s-razmerami-kakie-byvayut-besedki
Простая беседка из дерева своими руками. Беседки с полом и без него
Существуют беседки с полом, а также беседки, смонтированные на открытой площадке или площадке, где сделана бетонная стяжка или выложена тротуарная плитка. Если строить беседку просто на земле, тем более деревянную, то нужно принять меры для защиты деревянных конструкций, особенно в местах, которые контактируют с грунтом. Если беседка из металла, то придется защитить ее от ржавчины.

Деревянная беседка без пола, сооруженная из дерева. У нее имеется одна особенность: крыша четырехугольная, а сама беседка со скошенными углами.
Строительство беседки с полом предполагает установку фундамента. В основном, ограничиваются столбчатым фундаментом, который делают из кирпича или бута, заливают бетоном или же монтируют на фундаментных блоках. Как вариант, можно использовать большие камни (валуны) и на них опереть всю постройку, если таковые имеются в распоряжении. Такой фундамент подходит для легких, каркасных построек из дерева или из металла. Если постройка капитальная, из кирпича, то столбчатым фундаментом вряд ли удастся ограничиться: придется лить бетонный ленточный фундамент, хотя и в упрощенном варианте. Достаточно заглубить фундамент на 20-30 см.

Беседка из дерева, но с деревянным полом, установленная на опорах.
Чтобы выложить плитку в беседке, придется пол залить бетоном, но предварительно утеплив пол пенопластом, например, а также уложив слой гидроизоляции. После этого можно уложить плитку, причем половую морозостойкую. При этом, следует сделать так, чтобы пол выходил за пределы беседки сантиметров на 50 и эти 50 см должны быть выложены под уклоном, чтобы на плитке не удерживалась влага. Если беседка не закрытая, то вся плитка должна иметь уклон. Если влага на плитке не будет задерживаться, то плитка будет стоять достаточно долго.