Какая глубина фундамента под забор. Глубина заложения
- Какая глубина фундамента под забор. Глубина заложения
- Глубина фундамента под гараж. Залить ленту или забить сваи: как правильно сделать фундамент под гараж своими руками?
- Нужно ли армировать фундамент под забор из профнастила. Изготовление
- Нужен ли фундамент под забор. Подбираем оптимальный фундамент для различных конструкций заборов
- Глубина фундамента под кирпичный забор. Возведение фундамента для кирпичного забора
Какая глубина фундамента под забор. Глубина заложения
Глубина заложения зависит от различных природных факторов. Есть несколько типов основы под ленточный фундамент:
- Мелкое заложение. Его используют, когда забор небольшой по высоте и выполнен из легких материалов, например, из профлиста, древесины, сетки и т.д. Глубина залегания не более 0,5-0,7 м. Хорошо подходит для грунта с низким показателем пучинистости;
- Глубокое заложение. Используется, когда забор возводится из тяжелых материалов, таких как кирпич, камень и т.д. Уровень залегания фундамента зависит от глубины промерзания грунта (индивидуально для каждого региона). Глубина залегания фундамента должна быть на 0,3-0,4 м ниже уровня промерзания. Для такого типа фундамента потребуется больше строительных материалов, поэтому этот вариант недешевый. Стоит учесть данный фактор при составлении проекта и сметы.
Для правильного подбора основания, его размера и глубины заложения, необходимо учитывать некоторые важные параметры.
Во-первых, нужно знать основные конструктивные особенности ограждения, вес его основных составляющих. Стоит учесть нагрузку, действующую на опорные столбы.
Во-вторых, необходимо провести геодезические и геологические исследования, что поможет определить тип грунта, его состав, уровень промерзания и наличие грунтовых вод. Принимая во внимание полученные результаты уже можно подобрать нужный тип фундаментного основания.
Важно учесть вероятность просадки почвы, особенно если почва нестабильна под воздействием сезонных погодных изменений. Весной, когда тает снег, возможно незначительное подмывание грунта. После того как подобран размер фундамента и учтены все факторы, можно приобретать арматуру для усиления каркаса.
Предъявляемые требования к конструкции:
- Необходимо обеспечить устойчивость заграждающей конструкции;
- Нагрузки, так же, как и вес, должны распределяться равномерно по всему периметру;
- Под действием внешних сил конструкция не должна просаживаться и деформироваться;
- При сильном воздействии ветра необходимо обеспечить сохранение устойчивости конструкции.
Глубина фундамента под гараж. Залить ленту или забить сваи: как правильно сделать фундамент под гараж своими руками?
Гаражные постройки, в целом относящиеся к малоэтажным и хозяйственным, нуждаются в надежном основании из-за повышенных влажностных, вибрационных, а в ряде случаев – и весовых нагрузок.
Работы по его заложению могут выполняться своими силами. Чем руководствоваться при выборе опорной конструкции, как сделать основание самостоятельно и что нужно подготовить для работы — читайте далее.
Выбор основания
Требования к основанию типичны для закрытых, но не отапливаемых построек – конструкция должна выдерживать вес стен гаража без смещения и защищать их от подсоса грунтовой влаги. К конструктивным особенностям относят потребность в воротах (нагрузка на фундамент может быть неравномерной), заложении смотровой ямы и достаточном воздухообмене в нижней зоне.
Решение о типе основания принимается исходя из:
- Весовых нагрузок. Традиционным материалом для постройки гаража является шлакоблок, кирпич и газобетон, нуждающиеся в устойчивом и ровном фундаменте как минимум со средними несущими способностями.
Каркасные конструкции могут устанавливаться на облеченных основаниях.
- УГВ и необходимости принятия дополнительных мер по отводу влаги от фундамента. Выбранный тип фундамента должен обеспечивать достаточную защиту транспорта и инструмента от коррозии.
- Планировки гаража. При необходимости заложения внутри гаража смотровой ямы, цокольного этажа или подвала предпочтение отдается ленточным и комбинированным разновидностям.
- Состава и однородности грунта. При высоких рисках смещения конструкций силами морозного пучения фундамент приходится углублять ниже линии промерзания или принимать доп.меры по его изоляции и укреплению.
Непосредственное влияние грунтов
Параметры грунта оказывают прямое влияние на вид и глубину размещения основания под бокс. В частности:
- На скальных и плотных грунтах без посторонних включений гаражные постройки в принципе не нуждаются в фундаменте и могут закладываться поверх цокольных лент или незаглубленных плит.
- На грунтах с крупнообломочными включениями, не имеющих цельной структуры фундамент имеет ленточное илиисполнение и углубляется ниже нулевой отметки на 40-50 см.
- На сыпучих, но не пластичных песчаных грунтах тип и глубина фундамента зависят от УГВ и весовых нагрузок. Такие грунты считаются самыми распространенными, уплотняемыми, но не пучинистыми. При низком УГВ углублять основание нет необходимости, оптимальный фундамент подбирается исходя из веса и площади гаража.
- Грунты с высокой долей чешуек глины склонны к усыханию или разбуханию при разной влажности, что в свою очередь приводит к смещению конструкций при смене сезонов.
Помимо пучинистости такая почва имеет неоднородную структуру и считается малоподходящей для строительства. Достаточная для гаража устойчивость в таких случаях достигается при заложении фундаментов свайного типа, с поднятием ростверка выше линии грунта.
- Торфяники и аналогичные переувлажненные грунты с высокой долей органики в составе имеют самые низкие несущие способности. Выдержать вес гаража на них может лишь плавающая теплая плита (с рядом ограничений по весу) или свайные конструкции, опирающиеся в устойчивые слои.
В особо сложных случаях под этими же типами фундаментов приходится менять весь грунт в.
Нужно ли армировать фундамент под забор из профнастила. Изготовление
Сделать фундамент под забор своими руками несложно. Нужно только заранее произвести все необходимые расчеты и четко придерживаться пошаговой инструкции при выполнении работ.
Расчет
Чтобы рассчитать, на какую глубину необходимо укладывать фундамент под средней тяжести и тяжелые заборы, необходимо учесть следующие факторы: особенности конструкции забора, глубину промерзания почвы, уклон местности, структуру грунта и высоту пролегания грунтовых вод.
Для того, чтобы расчет был правильным, необходимо рассчитать площадь фундаментного основания. Так, если мы имеем фундамент длиной 50 метров и предполагаемой шириной 30 см, то мы легко можем определить его площадь (15 м2), которая в дальнейшем станет основой для расчета глубины основания.
Кроме того, необходимо определить надежную площадь фундамента, которая определяется путем деления давления надземной части на фундаментное основание, скорректированное на коэффициент надежности, на сопротивление грунта и коэффициент условий работы.
Заливка
На пучинистых глинистых грунтах лучше всего выполнять комбинированный тип основания. Перед тем, как залить столбчато-ленточный фундамент под забор, необходимо сначала вырыть траншею соответствующей расчету глубины и ширины. В местах установки столбов произвести бурение отверстий для установки столбов.
Далее по всему периметру будущего основания забора выполняется деревянная опалубка. На дно каждой ямы под столбы укладывается сложенный в два слоя рубероид. Далее устанавливают столбы и проводят армирование фундаментной ленты сеткой из арматуры.
Теперь можно начинать лить бетон. Правильно его заливать – горизонтальными слоями. Если не получается за один раз залить всю ленту, то нельзя допускать, чтобы в одном месте опалубка была залита до верха, а в другом ее бы не было вообще. Бетон будет сохнуть 3-5 дней.
Ленточный мелкозаглубленный фундамент делать еще легче. Он закладывается выше уровня промерзания грунта. Поэтому такое основание восприимчиво к сезонным движениям грунта. Такое основание больше подойдет для устройства на участках, где грунт имеет однородную структуру по всей площади ограждения.
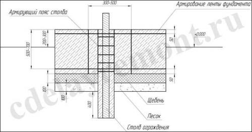
Для устройства такого фундамента выкапывают неглубокую траншею (0,5-0,7 м), на дно которой укладывают песок (0,15 м) и утрамбовывают его. Сверху насыпают слой щебня (0,15 м). Щебень с песком являются своего рода дренажным основанием, благодаря которому от фундамента будет отводиться вода. Далее в траншее пробуриваются лунки для столбов глубиной 0,3-0,4 м.
Далее столбы соединяют арматурой при помощи сварки. Устанавливают опалубку. После этого приступают к заливке бетона, придерживаясь общих правил, описанных выше. После того, как бетон будет залит, обязательно следует еще раз удостовериться в том, что столбы стоят ровно.
Существует еще один альтернативный вариант устройства фундамента – из старых автомобильных покрышек. Но он довольно противоречив и не встречает широкого применения в устройстве оснований под заборные конструкции.
Чтобы фундамент под забором прослужил долго, необходимо не только правильно его залить, но и защитить от атмосферных осадков. А для этого необходимо выполнить отмостку или отлив, представляющий собой проходящий по всему периметру фундамента порожек с уклоном в сторону, противоположную фундаментному основанию.
Отлив можно делать как одновременно с заливкой фундамента, так и после. Для этого по всей линии забора на ширину около 0,5 м и глубину 0,15 м откапывается траншея, которая засыпается щебенкой и утрамбовывается. При выполнении отлива одновременно с фундаментом из него в сторону отмостки выпускаются арматурины. Если отлив делается после устройства основания забора, то в нем делаются отверстия и в них вставляются прутья арматуры.
На участке с уклоном
Если необходимо вести строительство конструкций забора на участке с большим уклоном, то фундамент под него не должен быть наклонным. В таких случаях выстраивают ступенчатое основание, каждый участок которого является строго горизонтальным. В самом низком месте фундамент выполняют в уровень с почвой. Переход с уровня на уровень делается уступами. Длина уступов должна быть больше их высоты не меньше, чем в 2 раза. Высота должна составлять не менее 0,6 м.
Нужен ли фундамент под забор. Подбираем оптимальный фундамент для различных конструкций заборов
Принимая решение о строительстве ограждения, стоит заранее подумать о необходимости основания для него. Под массивные постоянные конструкции оно обязательно, а чтобы получить надежный фундамент для забора, важно учесть множество факторов.

В этой статье мы разберем, какие основания подходят для разных оград, как они делаются и не только.
Для чего нужен фундамент
Качественно возведенный фундамент ‒ гарантия длительного срока службы всего сооружения, защита от негативных воздействий внешней среды.
Он нужен, чтобы поддерживать забор, придавать конструкции устойчивости, жесткости.

Выполняемые функции:
- Равномерное распределение нагрузки по всей длине забора . За счет этого даже со временем ограждение не начнет проседать.
- Защита от размывания грунта, затопления . Основание не дает почве вымываться из-под забора, а при весеннем таянии снега задерживает воду и не дает ей попадать под конструкцию.
- Поддержание сооружения . Фундамент защищает от деформации, проседания, преждевременной порчи столбов или материалов.
- Придание эстетичности . Забора с основанием выглядит аккуратнее и красивее.
Чтобы изгородь прослужила как можно дольше без необходимости ремонта, надо сделать ей прочное основание.
Что учесть при выборе фундамента

Есть несколько ключевых факторов:
- особенности рельефа участка и вид грунта;
- глубина, уровень залегания грунтовых вод;
- наличие поблизости водоема, подземных источников;
- вес будущего забора;
- возможная ветровая нагрузка;
- насколько далеко находится автомобильная, железная дорога;
- предполагаемый уровень проседания почвы во время температурно-влажностных изменений.
Полезно будет пообщаться с владельцами соседних участков, которые уже успели возвести забор, узнать реальную ситуацию, получить практические рекомендации.
Для каких ограждений основание не нужно
В этом этапе работ нет необходимости, если изгородь устанавливается временно: для очертания границ строительных площадок, при ремонте или если в будущем на этом месте планируется обустройство массивного постоянного ограждения.

Многие виды легких заборов возводят без фундамента, например, из сетки-рабицы, сварных изделий, деревянных досок, штакетника, профнастила. Столбы просто вбивают грунт, утрамбовывают или частично бетонируют.
Бутование опор отлично показывает себя на пучинистых почвах с высоким уровнем грунтовых вод. По весне, зимой их не выдавливает из земли.
Виды фундаментов, подходящие для заборов
Рекомендуем ознакомиться с вариантами оснований для различных почв, конструкций оград. Многие из них можно сделать своими руками.
Ленточный
Подходит к обустройству на песчаных, болотистых, неустойчивых грунтах. Препятствует смещению, деформации сооружения.
Следует применять под заборы из кирпича, дерева, камня, профлиста, с коваными конструкциями, из блоков.

Фото: готовая опалубка с армированием и направляющими для кладки кирпича
Толщина ленты подбирается исходя из заборного материала. Для деревянных, секций из профнастила хватит показателя в 50 см. Под кирпичную кладку, кованые или сварные пролеты толщину увеличивают до 80‒100 см.
Делается по всей длине будущей конструкции.
Среди плюсов отмечают:
- высокую прочность, а значит, долговечность;
- надежность;
- возможность усиления арматурным каркасом, трубами, что придает опорам больше устойчивости;
- всю работу можно сделать самому;
- не нужно привлекать спецтехнику.
Очевидный минус ‒ большой расход материалов, в частности, бетона, что приводит к увеличению стоимости строительства.

Схема установки забора из металлопрофиля на ленточном фундаменте.
Бывает несколько видов ленты:
- Из железобетона . Подходит для песчаных грунтов. По периметру подготовленной траншеи возводят опалубку. Собирают металлический каркас из проволоки, который выполняет функцию армирования. Укладывают его в траншею и заполняют доверху смесью из цемента, песка, щебня.
- Из бутобетона . Используется на каменистых почвах. Технология схожа с первым видом, за исключением применения крупных камней, булыжников.
- Из кирпича . Брать нужно полнотелый керамический или шамотный вид. Белый силикатный не подойдет, поскольку под действием влаги начнет быстро крошиться. В остальном процедура схожа с предыдущими типами.
Армированная лента гораздо надежнее, долговечнее, чем просто бетонная. Прутки проволоки повышают сцепляемость материала, устойчивость к внешним воздействиям.
Тематический материал
Столбчатый

Схема монтажа ограждения из металлопрофиля на столбчатом основании
Предназначен для легких ограждений из:
- профлиста;
- поликарбоната;
- металлических сеток (рабицы, сварной);
- деревянных досок, штакетника;
Это оптимальный вид фундамента на пучинистых грунтах.
Отличается от ленточного тем, что не нужно рыть траншею. Каждая опора по отдельности закрепляется в почве.
Важное условие ‒ заглубление должно быть ниже уровня промерзания земли.
Глубина фундамента под кирпичный забор. Возведение фундамента для кирпичного забора
Чтобы кирпичный забор не накренился, не потрескался, сооружение фундамента – необходимо. Фундамент – конструкция для распределения нагрузки от несущей кладки на грунт. Чем массивнее кирпичная кладка, тем прочнее должна быть основа.
В зависимости от высоты, толщины забора, качества грунта, глубины промерзания почвы, рельефа ограждаемой территории, фундамент выбирают из следующих видов:
- ленточный;столбчатый;каменный;ленточно-столбчатый.
Предназначен для заборов высотой 1–2 метра, толщиной в полкирпича, кирпич, на устойчивых почвах с глубоким залеганием грунтовых вод. В зимний период такие земли промерзают неглубоко. Рельеф с перепадами не более полуметра.
Для комбинированных заборов из кирпичных столбов, промежутки между которыми заполнены деревянным, кованным забором, металлической сеткой, листовыми щитами.

Чем глубже промерзает почва, более подвижна из-за песка, грунтовых вод, чем крупнее, массивнее кирпичный столб, тем больше заглубляют сваю.
Выбирают для заборов с высотой 1,5–2,5 метра, устанавливаемых на зыбучих, подвижных землях, с близким залеганием грунтовой воды, в районах с суровыми зимами, глубоким промерзанием почвы. В случае перепада высот рельефа, ленту фундамента сооружают ступеньками.
Предварительно выбирается тип фундамента по принципам, описанным в ранее, расчищается территория, выполняется разметка.

Самый простой в строительстве тип фундамента это столбчатый. Для его установки столбы устанавливают через каждые 2–3 метра где планируется возводить столбы самого забора.
Далее, разберем более сложные в реализации остальные типы фундамента, возведение которых, целесообразно выполнять с использованием строительной техники.
Для распланировки используется бечевка и колышки.

По внешнему и внутреннему периметру будущей траншеи вбиваются колышки, между ними натягивают бечевку. Так обеспечивается идеальная ровность. Ширина не меньше 50 см.
Для ленточно-столбчатого дополнительно отмечают места под столбы на расстоянии 2–3 метра друг от друга.
По разметке выкапывают траншею и выемки под столбики на глубину не меньше 80 см ниже дна траншеи.

По разметке выкапывают траншею глубина которой должна на 20–30 см превышать глубину промерзания поверхностного слоя грунта. Если не соблюсти это правило даже армированный фундамент при промерзании грунта может деформироваться что приведет к разрушению забора. Для средних широт достаточная глубина составляет около 40 см.
Столбики зарывают на глубину не меньше 80 см ниже дна траншеи.
Раствор замешивают из песка, щебня, цемента марки М300-M400, воды в соотношении 3:5:1:0,7 соответственно. Он должен получиться вязким.
На дно засыпается слой песка. Толщина подушки 10–15 см. Песок смачивается водой, утрамбовывается.
Укладывается арматура, металлические пруты диаметром 0,7–1,5 см. Два на дно, два – ближе кверху. Присыпается крупным щебнем.
Вся конструкция заливается цементным раствором.

Чтобы не образовывались пустоты, во время заливки смесь необходимо протыкать лопатой, утрамбовывая, плотно усаживая. Верхний слой поверхности выравнивается кельмой.Если база для забора ленточно-столбчатая, первоначально делают столбики в углублениях, затем ленту основы.Для каменной базы полость заполняется камнем и заливается бетонным раствором.Перед тем как положить первый ряд кирпичей, поверхность фундамента, освобожденного от опалубки, обрабатывают битумной мастикой (гидроизоляция). Поверхность укрывают 1-2 слоями рулонной гидроизоляции (рубероид или подобные материалы).
Забор из кирпича сохранит первоначальный привлекательный вид не один десяток лет, если основа для него возведена качественно. Выполняя фундаментные работы, следует тщательно следить за всеми этапами и обязательно использовать качественные материалы.
Источник: https://gorizont-pro.ru/stati/idealnyy-fundament-pod-kirpichnyy-zabor-fundament-pod-kirpichnyy-zabor