Сколько стоит построить дом и сколько нужно денег. Расходы
- Сколько стоит построить дом и сколько нужно денег. Расходы
- Сколько стоит построить дом 80 кв м. Способы экономии
- Сколько стоит построить небольшой дом. Сколько стоит построить маленький домик? И правда ли что небольшой дом дешевле большого?
- Сколько стоит построить дом самому. Самостоятельное строительство – доводы «за» и «против»
- Сколько стоит построить дом форум 2020. Параметры выбора оптимального стенового материала для дома
- Сколько нужно денег, чтобы построить дом 10 н. «Да невозможно построить дом из газобетона меньше чем за миллион рублей» так ли это? Подробная смета моей стройки
Сколько стоит построить дом и сколько нужно денег. Расходы
Рассчитывал построить дом на деньги, вырученные от продажи квартиры. Составил приблизительную смету на постройку, по мере углубления в тему строительства редактировал ее, но все равно не вписался на 10—15% , поэтому чистовая отделка идет до сих пор. Мебель в смету не вошла.
Квартиру продал за 1 050 000 Р , землю купил за 70 000 Р , весь остаток потратил на дом. По ходу строительства пришлось добавить еще 50 000 Р . Остальной ремонт делал уже из дополнительных средств, которые заработал позже.
Отопление у меня только электрическое. В СНТ газа нет, да и окупается он лишь в том случае, если сразу приобретаешь дом, где уже все подведено.
Я рассчитывал жить в доме постоянно, так как после продажи квартиры других вариантов у меня просто не было. Но во время стройки я познакомился с девушкой и в итоге зиму жил у нее в квартире, а в доме только поддерживал температуру около +15 °C. У меня стоит двухтарифный счетчик электроэнергии, поэтому я купил программируемые обогреватели и настроил их так, чтобы ночью они работали на 100%, а днем — на 50%, и чем теплее становилось на улице, тем реже я их включал. Греющий кабель для водопроводной трубы из скважины тоже работал по таймеру — по 30 минут раз в три часа.
В итоге за январь 2019 года счет за электроэнергию мне пришел где-то на 2 тысячи рублей. А этой теплой зимой я платил вообще не больше полутора тысяч в месяц, хотя при строительстве рассчитывал, что на электричество будет уходить пять-шесть тысяч.
Дом не регистрировал. В оформлении по дачной амнистии мне отказали, потому что дом стоит на землях сельхозназначения. Это можно сделать только через суд. Пока идет процесс оформления в БТИ.
Сколько стоит построить дом 80 кв м. Способы экономии
Нынешние цены на стройматериалы привели к тому, что даже ремонт дома может вскоре приобрести статус «дорого». Строительство настоящего загородного дома в этих условиях кажется безнадежным занятием, но специалисты уверяют, что построить загородный дом для обычных людей все же возможно.
Первый вариант, который поможет сэкономить, касается характеристик выбранного проекта. Такой план нужно рассчитывать рационально и практично. В этом случае помните, что архитекторам важно представить вам проект, но никак не снизить ваши затраты. В большинстве случаев специалисты предлагают красивые большие здания с яркими фасадами, и многих очаровывает дизайнерский образ. Но наша работа — построить более дешевый дом.
Качественный и недорогой дом не должен быть таким:
- Слишком маленьким, прежде всего, дом должен соответствовать вашим потребностям.
- Быть неудобным.
- Дом не обязательно должен быть из плохого сырья. Для строительных работ можно приобрести недорогие, но качественные материалы.

Сегодня много бюджетных проектов:
- Можно сделать план этажа прямоугольной формы с двускатной крышей;
- Постройте одноэтажное здание без дорогих потолков, большого количества окон и лестниц. Такая схема сэкономит много денег.
- Строить дом можно без подвала или цоколя, этот стандарт экономит в среднем около 30% затрат.
- Можно исключить создание на фасаде необычных и оригинальных элементов, например, арок, эркеров, колонн.
- Декорируйте стены простейшими способами.
- Оштукатурить фасад следует цементно-известковой смесью.
Найдите время, чтобы выбрать проект, который поможет вам сэкономить на строительных работах. Это не единственный способ снизить затраты.
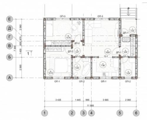
Сколько стоит построить небольшой дом. Сколько стоит построить маленький домик? И правда ли что небольшой дом дешевле большого?

Последнее время особым спросом пользуются проекты загородных домов небольшой площади.
«А какая стоимость за м2 у Ваших домов, на какую сумму мы должны рассчитывать?»
Правда ли, что небольшой домик, значит недорогой. И, да и нет! В итоговой стоимости, конечно, чем меньше дом, тем он будет дешевле. Но в переводе на стоимость «квадратного метра» он может оказаться золотым .
Основная задача статьи – объяснить почему, дом на 50 м2, не будет в 2 раза дешевле , чем дом на 100 м2. Пропорции в стоимости будут совсем другие.
Давайте разбираться, почему же так получается.
Площадь и периметр
Проще всего про это представить на простом примере.
На картинке ниже, 2 дома. На первый – большой дом 10 на 20 метров, а второй наш маленький домик 4 на 6.

Представьте, что это 2 дома – 10х20м и 4х6м
Теперь займемся математикой:
«Красный дом» 10х20 = 200 квадратных метров
«Синий дом» 4х6 = 24 квадратных метра
Разница в площади – в 8 раз ! А, что с периметром?
У красного дома он (20+10)*2 = 60м
У синего — (6+4)*2=20м
Разница в периметре – всего в 3 раза, при том, что площадь отличается в 8!
Это говорит о том, что в домах с одинаковой высотой стены, площадь дома будет отличаться в 8 раз, а площадь наружных стен всего в 3 раза.
То есть в маленьком домике, как не парадоксально это звучит – больше стен.
Это касается не только стен. Все что привязано к длинам, а не площадям дома, так же будет меняться не пропорционально.
Например, если фундамент ленточный – то бетона и арматуры в ленту так же уйдет в 3 раза меньше, а не в 8. И таких технических моментов можно найти достаточно много.
Если в первом доме 3 спальни 2 туалета и кухня гостиная и то же самое во втором, то площади комнат будут различаться больше – чем площадь перегородок.
Вывод 1
При уменьшении площади дома, не все конструкции дома уменьшаются кратно уменьшению площади. Соответственно и цена не будет уменьшаться кратно площади.
Транспортные расходы
Многие люди недооценивают стоимость «доставок», а при нынешних расценках на перевозки, они сжирают заметную долю бюджета.
Когда дом небольшой, то материалов, естественно, меньше. При этом не факт, что уменьшится количество доставок и их стоимость. Конечно, логистику можно оптимизировать, но далеко не все материалы получится привезти «одной машиной».
К примеру, вряд ли кому-то придет в голову одной машиной везти окна и пиломатериал или арматуру.
Соответственно разница в доставке окон на большой дом и на маленький, особенно если расстояние большое, будет либо незначительной, либо вообще равняться нулю. Ситуация может быть парадоксальной – когда стоимость перевозимого материала ниже, чем стоимость его доставки.
Вывод 2
В процентном соотношении, логистика при строительстве маленького дома, может составлять больший % от стоимости сметы, чем при строительстве большого.
Инженерные коммуникации
Дом – это же не только коробка. Инженерные коммуникации, как правило, не зависят от площади дома.
Посмотрим на примере:
Септик , обычно цена очистных сооружений зависит от объема, а объем зависит от проживающих людей. Если в доме – постоянно живет только 3 человека, то стоимость септика будет одинаковой, вне зависимости от его размеров
Бойлер , ведь в доме нет централизованной горячей воды – так же больше зависит от кол-ва проживающих и от кол-ва точек водоразбора, чем от площади.
Отопительный котел , разница в цене может совсем чуть-чуть отличаться в зависимости от мощности.
Электропроводка , пусть будет дом на 100 и на 200 м2, с одинаковым набором помещений, только разной площади (в первом все будет меньше) – маловероятно, что в доме 200 м2 будет в 2 раза больше электроточек – выключателей и розеток. А соответственно будет одинаковый электрощит и его стоимость. Да, кабелей в большом доме будет больше – но остальное, весьма вероятно, будет стоить так же.
Вывод 3 .
Разница в стоимости инженерных коммуникаций будет не такая уж большая.
Фиксированные траты
Есть вещи, стоимость которых либо вообще не зависит от площади дома, либо зависит крайне незначительно. Давайте возьмем, для примера, небольшой дом .

Типичный маленький домик.
В нем совокупная площадь всех помещений – порядка 70 м2.
Представим, что мы сделаем такой дом с той же планировкой, но на 140м2 .
Будут большие спальни по 20м2, большая кухня-гостиная на 50м2 и те же второстепенные помещения, только побольше.
А теперь посмотрим:
- Количество межкомнатных дверей – останется одинаковым
- Количество кроватей – останется одинаковым
- Плита и там и там, будет одна – даже если дом будет еще больше.
- Холодильник и там и там будет один
Этот список, вы можете продолжить сами, думаю, наберете много интересного.
Вывод 4
Существует большое количество трат, которые вообще не зависят от размеров дома – будь дом большой или маленький.
Архитектурные особенности
Еще один немаловажный пункт, о котором почему то не все задумываются. Не так давно, нам прислали запрос на строительство «небольшого домика» . Мы рассчитали примерную стоимость, в ответ нам сказали «считаем цену завышенной для такого маленького домика».
Сколько стоит построить дом самому. Самостоятельное строительство – доводы «за» и «против»
При наличии возможности заказать строительство «под ключ» у профессионалов без кавычек экономится и драгоценное время, и не менее ценные нервы – профи умеют строить быстро и качественно, и за ними не нужен тотальный контроль. Но далеко не каждый может позволить себе обратиться в известную, зарекомендовавшую себя фирму, которая за соответствующие своему уровню деньги построит дом надлежащего качества. Привлечение наемных рабочих обходится значительно дешевле, но в этом случае имеет место быть «русская рулетка». Есть ответственные, надежные исполнители, которым можно доверить строительство своего дома, но также есть масса и других наемников, которым знание технологий, а зачастую и здравый смысл заменяет уже ставший легендарным посыл – «все так делают, и ничего».
Антипов Игорь
Участник FORUMHOUSE
Представляете – что построят неграмотные строители под руководством неграмотного прораба неразбирающемуся в строительстве заказчику? Я видел много таких строений и грустные глаза людей, купившихся на «невысокие», по сравнению с фирмами, расценки. А на фирменное строительство у многих просто нет денег – люди посмотрят заоблачные расценки и ставят крест на строительстве.
В большинстве случаев при подготовке к строительству решение обойтись своими силами по максимуму продиктовано скромным бюджетом. И экономия существенная.
Антипов Игорь
Затраты на стройматериалы составляют иногда меньше половины всех расходов. Цену дома вполне реально снизить на 30-40 %, а иногда и больше. Постройтесь сами, всей семьей – дом, построенный своими руками, это не просто строение, это член семьи.
Еще один аргумент в пользу строительства своими силами – уверенность в качестве.
SDim
Участник FORUMHOUSE
Тут есть еще один фактор – я точно знаю, что я для себя сделаю гораздо аккуратнее, чем любой гастарбайтер или даже сотрудник из приличной конторы.
Как у медали две стороны, так и у самостоятельного строительства есть противники, также достаточно четко обосновывающие свою позицию. Основных доводов два – каждый должен заниматься своим делом, и пока тратишь время на строительство, упускаешь возможность больше заработать. Про уровень подготовки исполнителей уже упоминалось, не всем везет на добросовестных наемников. Что касается заработка, экономия – тоже прибыль, а с основной деятельностью вполне реально совмещать. И заработать, сэкономив, можно весьма солидную сумму, которая на стройке никогда лишней не будет, особенно, когда не в ущерб качеству.
PiZZa
Участник FORUMHOUSE
Экономия подразумевает кучу физических и эмоциональных затрат, но это не значит, что обязательно получится хуже. На этапе планирования дома мне рассчитали фундамент по моей задумке. Обойдя с этим расчетом несколько городских контор, не нашел суммы за реализацию меньше 400 тысяч рублей. В итоге решился все делать сам, потратил два месяца – работал в свободное время. Расходы на материал составили 90 тысяч, плюс еще десять на технику и мелочевку. В результате уставший, но довольный и с экономией 300 тысяч, а сэкономил – равно заработал. Зарплата же у меня много меньше 150 тысяч в месяц. Реально экономить, когда есть желание и время.
Источник: https://gorizont-pro.ru/stati/skolko-stoit-postroit-kottedzh-pod-klyuch-samomu-iz-kirpicha-blochnyy
Сколько стоит построить дом форум 2020. Параметры выбора оптимального стенового материала для дома
Какой бы материал не рассматривался в профильной теме или статье, всегда найдутся «знатоки» и приведут кучу доводов против:
- «Газобетон и теплая керамика – только для сараев»;
- «Брус и бревно – обязательно не сгорит, так сгниет»;
- «Каркасники – времянки и неликвид»;
- «Кирпич – анахронизм»;
- «Монолит – вредно для здоровья из-за арматурного каркаса»;
- «Несъемная пенопластовая опалубка – сомнительная экологичность из-за вредного пенополистирола»…
Продолжать можно долго, при желании недостатки найдутся абсолютно у всего. Материалов и технологий для возведения дома, наделенных исключительно достоинствами, в реальности не существует. Но если подходить к выбору комплексно, оценивая по ключевым параметрам, гораздо больше шансов закончить стройку новосельем. А не консервацией до будущих времен плавно стремящихся к бесконечности. Из чего лучше строить дом для постоянного проживания, зависит от ряда факторов.
- Регион жительства – по климату Сочи и окрестности никогда не сравнятся с Московской областью, даже с учетом потепления, наблюдающегося последние годы. Отличается температурно-влажностный режим, разная ветровая нагрузка, разные требования и к конструктиву капитального дома, и к фасадным материалам. А в некоторых регионах к этому прибавляется и сейсмическая опасность, несколько ограничивающая выбор материалов и технологий.
- Энергоноситель – отапливаться электричеством, твердым или жидким топливом, совсем не то, что отапливаться магистральным газом при условии адекватной стоимости подключения. Чем дороже энергоноситель, тем энергоэффективнее должен быть дом и тем меньше объемы потребления.
- Эксплуатационная нагрузка – ухаживать так или иначе необходимо за каждым домом, из чего бы он ни был построен, но периодичность проведения работ и их объемы напрямую зависят от технологии и стеновых материалов. Постройка в 200-300 квадратов в несколько этажей при определенных условиях может требовать меньше внимания, чем средний одноэтажный дом, площадью до 100 м².
Сколько нужно денег, чтобы построить дом 10 н. «Да невозможно построить дом из газобетона меньше чем за миллион рублей» так ли это? Подробная смета моей стройки
Встретил знакомого и он стал мне доказывать, что 100 квадратов минимум 2-3 миллиона рублей.
Добрый день, уважаемые читатели!
Больше всего люблю поспорить с диванными строителями, или работниками мини контор, где ко всему делают небольшую наценочку процентов в 200.
Вот и вчера встретил в строительном магазине одноклассника, не виделись лет 15 примерно, с того времени как стал жить за городом.
Он работает в компании, которая занимается бутилированной водой, на машине ее возят, мы сами в офис подобную заказываем, живет в квартире в городе, это я к тому, что со строительством он знаком на уровне обывателя.
Разговаривали долго пока разговор не зашёл о стройке, и он решил со мной поспорить.
Разговор пересказывать не буду, а приведу цифры затрат на строительство коробки одноэтажного дома площадью 100 м2.
Фундамент МЗЛФ, стены -газобетон, крыша- металлочерепица.
Также приведу сроки.
Фундамент:
Работы по выемке плодородного грунта и рытьё траншей — 6 часов, стоимость 10 400 рублей.
Устройство подушки из щебня и засыпка песка, с послойной трамбовкой — 3 дня ( работали 3 человека) если делать одному, то может уйти до 7 дней.
Стоимость материалов:
геотекстиль 250-й — 5 800 рублей.
щебень разных фракций 2 машин (20/40 и 10/20) мелкий засыпан поверх для удобства укладки утеплителя. Стоимость 24 000 рублей.
Песок — 2 машины. Стоимость — 10 000 рублей.
Аренда виброплиты — 1 800 рублей.
В моем случае ещё работа двух человек — 4 500 рублей.
Утеплитель: я покупал утеплитель под всю площадь, и под отмостку.
Для фундамента брал пенополиуретан, а для отмостки обычный пенопласт — стоимость материалов — 32 000 рублей.
Работа — 2 дня.
Арматурный каркас.
Арматура и вязальная — 25 000 рублей.
Нарезка арматуры и устройство металлокаркаса — 4 дня.
Устройство опалубки.
Я использовал доски толщиной 25 мм, можно использовать и 40 мм, низ был скручен на шпильках, верх стянут на досках.
Внутри все закрыто пленкой, объём бетона необходимого для фундамента — 8 кубов.
Стоимость материалов — доска и саморазвития 12 500 рублей. Шпилька и крепёж 3 500 рублей.
Работа у меня заняла 4 дня ( с привлечением двух человек) стоимость 7 500 рублей.
Заливка бетона.
Бетон М 22,5 8,5 м3 — двумя машинами+ труба стоимость — 34 000 рублей.
Для заливки привлёк 3 человек — стоимость работы 5 000 рублей.
Затем пока фундамент набирал прочность, я засыпал вовнутрь 4 камаза песка — стоимость 20 000 рублей , одновременно сделал отсыпку для отмостки. На все ушло 2,5 недели, срок был обусловлен фундаментом, поэтому делал не спеша.
Демонтаж опалубки — 2 дня.