Выбор мебели для мальчика от 3 лет: основные принципы и советы
- Выбор мебели для мальчика от 3 лет: основные принципы и советы
- Связанные вопросы и ответы
- Что нужно учитывать при выборе мебели для мальчика от 3 лет
- Какие материалы наиболее подходящие для мебели для мальчика от 3 лет
- Какие функции должна выполнять мебель для мальчика от 3 лет
- Какие стили мебели наиболее популярны для мальчиков от 3 лет
- Дизайн детской комнаты для мальчика по возрасту
- До 3-х лет. Комната 10 кв. м для малыша
- 3-5 лет. Детская 29 кв. м для маленького мальчика
- 5-7 лет. Интерьер 12,5 кв. м для дошкольника
- 7-14 лет. Дизайн комнаты 14 кв. м для школьника
- 14-19 лет. Детская 14 кв. м для мальчика-подростка
- В каком стиле лучше оформить детскую для мальчика?
- 1. Современный (минимализм)
- 2. Лофт
- Как выбрать мебель, которая будет соответствовать возрасту и интересам мальчика
- Как сделать детскую комнату безопасной для мальчика от 3 лет с помощью мебели
- Какие особенности должна иметь мебель для мальчика от 3 лет, чтобы она была удобной и функциональной
- Какие факторы влияют на выбор мебели для мальчика от 3 лет
Выбор мебели для мальчика от 3 лет: основные принципы и советы
Советы по выбору мебели для детской комнаты в зависимости от возраста ребенка. Оформление спальни школьника, полезные рекомендации и советы дизайнеров. Какая мебель должна быть в комнате трехлетнего малыша.
Оформление детской комнаты требует очень ответственного подхода. Цвет и форма мебели влияют на активность головного мозга и настроение малыша. Кроме того, для развития художественного вкуса ребенка должны окружать красивые и правильно подобранные интерьерные предметы. При выборе мебели необходимо учесть возраст малыша и позаботиться о его безопасности.

Мебель от года до трех лет
В этом возрасте комната для ребенка является целым миром, в котором должно быть уютно и тепло. В интерьере должны быть яркие детали, а вот на тематике зацикливаться нет необходимости.

Для детской комнаты нужно подобрать удобную кроватку и комод для вещей
Из предметов мебели малышу необходима кроватка, пеленальный столик и комод. Все предметы можно подобрать в едином стиле и цвете.

Оформление интерьера комнаты для ребенка до трех лет

В комнате можно расположить удобное кресло, в котором сможет отдохнуть мама
Выбор мебели для ребенка от трех до пяти лет
По мнению психологов, именно в этом возрасте формируется любознательность, возникают личные предпочтения и увлечения. Узнав о любимых героях мультфильмов ребенка, можно дополнить интерьер детской их изображениями. Яркие цвета в интерьере помогут познакомить ребенка с окружающим миром.

Яркое оформление комнаты для ребенка до пяти лет

Оформление комнаты по мотивам фильма Гарри Поттер

Оформление комнаты для девочки в морском стиле

Фиолетовые акценты в комнате для двух детей

Посередине комнаты можно разместить ковер для проведения игр
Мебель для ребенка от семи до восьми лет
Для первоклассника потребуется полноценное рабочее место с качественным освещением. Необходимо заменить маленький столик на функциональный письменный с учетом роста ребенка.

Уютное оформление детской комнаты в бежевом цвете

Оригинальное оформление комнаты для ребенка 7-8 лет
Для детской комнаты необходимо зонирование. Желательно организовать деление пространства таким образом, чтобы с рабочего места не был виден уголок для игр, иначе школьник будет отвлекаться от выполнения домашних заданий.


Связанные вопросы и ответы:
Вопрос 1: Какие типы мебели наиболее подходящие для мальчика от 3 лет
Ответ: Для мальчика от 3 лет наиболее подходящими типами мебели являются детское кресло, детское кровать, детское стул и детское стол. Эти типы мебели должны быть безопасными, удобными и функциональными. Кресло должно быть наклонным, чтобы мальчик мог сидеть на нем комфортно, а кровать должна быть достаточно просторной, чтобы мальчик мог спокойно спать. Стул и стол должны быть на высоте, чтобы мальчик мог легко работать на них.
Вопрос 2: Какие материалы наиболее подходящие для мебели для мальчика от 3 лет
Ответ: Для мебели для мальчика от 3 лет наиболее подходящими материалами являются дерево, металл и пластик. Дерево является наиболее традиционным материалом для мебели, и оно также является наиболее устойчивым и долговечным. Металл также является устойчивым и долговечным материалом, но он может быть более дорогим. Пластик является более дешевым и легким материалом, но он может быть менее устойчивым.
Вопрос 3: Какие цвета наиболее подходящие для мебели для мальчика от 3 лет
Ответ: Для мебели для мальчика от 3 лет наиболее подходящими цветами являются светлые и яркие цвета, такие как белый, синий, зеленый и красный. Светлые цвета делают комнату более светлой и просторной, а яркие цвета делают комнату более веселой и радостной.
Вопрос 4: Какие функции наиболее важны для мебели для мальчика от 3 лет
Ответ: Для мебели для мальчика от 3 лет наиболее важными функциями являются безопасность, удобство и функциональность. Мебель должна быть безопасной, чтобы мальчик не получил травмы. Она должна быть удобной, чтобы мальчик мог использовать ее легко. И она должна быть функциональной, чтобы мальчик мог использовать ее для различных целей.
Вопрос 5: Как выбрать мебель для мальчика от 3 лет
Ответ: Чтобы выбрать мебель для мальчика от 3 лет, важно учитывать его возраст, рост, предпочтения и потребности. Важно также учитывать размер комнаты, где будет находиться мебель. Важно также учитывать материалы, которые используются для изготовления мебели, и цвета, которые наиболее подходящие для мальчика.
Вопрос 6: Как сохранить мебель для мальчика от 3 лет в хорошем состоянии
Ответ: Чтобы сохранить мебель для мальчика от 3 лет в хорошем состоянии, важно регулярно ее чистить и ухаживать за ней. Важно также избегать нанесения на мебель повреждений, таких как царапины, пот и пятна. Важно также избегать нанесения на мебель химических веществ, таких как уксус и сок. Важно также избегать нанесения на мебель сильных ударов и нагрузок.
Что нужно учитывать при выборе мебели для мальчика от 3 лет

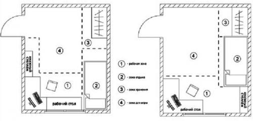
Обустройство детской зависит от площади комнаты, геометрических размеров, освещенности в течение дня, количества и возраста детей. Кроме этого необходимо продумывать меблировку на перспективу, ведь малыши быстро растут, а приобретать новые гарнитуры через пару лет будет накладно. Дизайнеры редакции Homius выделили 10 правил расстановки мебели в детской, которые помогут сделать комнату более комфортной и функциональной.

Расстановка мебели для двух деток в прямоугольной комнате
Планируем расстановку на бумаге
Предварительно необходимо всё спланировать на бумаге: начертить план помещения в масштабе с обозначением окон и дверей , а также радиаторов отопления . Затем нужно определить месторасположение основных секторов:
- письменного стола ;
- зоны отдыха;
- сектора хранения предметов гардероба;
- игровой и спортивной зоны .
В зависимости от возраста ребёнка определяют оптимальную площадь для каждого сектора. Например, дошкольникам основное пространство отводят под игровую зону, для письменного стола и шкафа нужно совсем мало места. Со временем понадобится полноценный рабочий стол с оргтехникой и вместительный шкаф для хранения одежды, игровая зона заменяется спортивным уголком .
Совет! Можно использовать специальные онлайн-программы для планирования размещения модульных групп. Второй вариант: нарисовать все предметы мебели в масштабе на бумаге, вырезать их и моделировать разные сценарии расстановки вручную.



Какие материалы наиболее подходящие для мебели для мальчика от 3 лет
- все элементы выполнены в одном дизайне, поэтому комната выглядит модно;
- максимальная эргономичность, высокий уровень уюта;
- экономия финансов, поскольку доставка, сборка занимает мало времени;
- разнообразие дизайнерских решений и различное количество предметов в наборе для комнат любой площади.
- Модульные. Выделяются повышенным уровнем функциональности, поскольку состоят из самых необходимых элементов. К примеру, кровать трансформер , встроенный шкаф с выдвижными ящиками для хранения белья и одежды. Подходят для помещений любого метража.
- Корпусные. Отличаются усиленной жесткости каркасом, большинство устройств регулируются по высоте, тем самым продлевается срок использования мебели, ведь дети растут быстро.
- Мягкий уголок. Диван, кресла, а также пуфики – самый легкий и доступный способ сделать детскую уютной.
- Тематическая. Огромный выбор модульных и корпусных гарнитуров различного тематического дизайна, в том числе использование рисунков с героями из мультфильмов и комиксов – принцессы, супер-герои, животные, домашние питомцы, а также встречаются модели с изображением саванны, джунглей. Особым спросом пользуются кровати в виде машинок, имеющие колеса и реалистически мигающие фары.
- Игровая. Присутствие такой мебели в комнате формирует у ребенка стремление к творческому развитию. Для меблировки характерны особые размеры и яркая расцветка. Стандартный набор включает стол, стул либо горку из пластикового материала. Существуют и нетипичного дизайна комплекты, которые впечатляют интересными идеями – элементы в виде королевской башни, пиратского корабля, прочее.
- Новорожденный. Меблировка состоит из кроватки, комода, пеленального столика и игрового манежа. Палитра – розовый, лазуревый, белый и другие пастельные оттенки. Мебель таких оттенков хорошо смотрится в интерьере, оформленного в стиле классики, прованс и кантри.
- 3-6 лет. Для малыша необходимы мини-диван или односпальная кровать, стол, стульчики и малогабаритные шкафчики для одежды. Предпочтительные цвета – темно-голубой, светлая лазурь, а также приглушенный зеленый, розовый, лимонный, морской волны.
- 7-10 лет. Для полноценного комфорта сыну или дочке потребуется раскладной диван (или кровать), комоды, письменный стол, стулья, шкафы для белья, гардероба и других вещей, стеллаж или полки для книг. Мебель подбирается в яркой цветовой гамме, которая лучше всего сочетается с интерьерным стилем кантри, классическим.
- Подросток. Диван или тахта, комод, стеллажи с полками для учебников и гаджетов, шкаф-купе, компьютерный стол. Если владелицей комнаты является девочка, дополнительно ставится туалетный столик. Цвет меблировки – все оттенки синего и серого в сочетании с белым, серебристым, перламутром и золотистым. Неплохо смотрится бежевый и кофейно-молочный гарнитур в интерьере в стиле лофт, скандинавском и хай-тек.
Детская комната нуждается в ответственном подходе к выбору мебели. Грамотно организованная меблировка позволит создать все условия для комфортного проживания ребенка. Особое внимание стоит уделить качеству, экологичности и функциональной надежности мебельных конструкций, при этом не в ущерб внешней привлекательности изделий. Удачно подобранная красивого дизайна детская мебель смотрится не только стильно и атмосферно, но и прививает детям хороший вкус, способствует становлению личности маленького человека.

Лучшее решение – корпусная мебель
Хорошим вариантом считаются гарнитуры, которые не только украшают комнату, но и способствуют умственному и физическому развитию ребенка. Известные бренды предлагают мебельные комплекты для ребят разной возрастной категории.

Преимущества корпусных гарнитуров:
Особенности гарнитуров для детских
Ведущие зарубежные и российские производители мебели предлагают вариации мебельных систем для детской комнаты:
Современные версии детской мебели
Сегодняшний рынок мебели детской категории представлен обширным ассортиментом. Предлагаемые конструкции можно разделить на 2 основных направления:

Секреты выбора мебели для детской
Независимо от личных предпочтений в отношении мебели в детскую комнату, она подбирается с учетом возраста ребенка. Для дошкольника вполне подойдет среднего размера гарнитур, для детей постарше понадобятся немного другие системы, которые будут полностью удовлетворять их запросы:
Какие функции должна выполнять мебель для мальчика от 3 лет
Выбор подходящей детской мебели - это не просто выбор симпатичного дизайна. Необходимо учитывать несколько факторов, чтобы мебель эффективно выполняла свои функции, обеспечивая безопасность и комфорт ребенка. Вот несколько ключевых критериев, на которые следует ориентироваться при выборе:
Безопасность: Сертификация и качество материалов
Прежде всего, безопасность должна быть вашим главным приоритетом. Всегда проверяйте наличие сертификатов, подтверждающих соответствие мебели стандартам безопасности. Ищите нетоксичные покрытия и материалы, не содержащие вредных химических веществ. Деревянная мебель часто является надежным вариантом, но убедитесь, что она хорошо обработана, чтобы избежать заноз. Металл и пластик должны быть гладкими и не иметь острых краев.
Эргономика: Соответствующий размер и функциональность
Эргономика детской мебели имеет решающее значение для физического развития ребенка. Мебель должна соответствовать размерам ребенка, позволяя ему удобно пользоваться ею, не напрягая тело. Разумным выбором могут стать регулируемые элементы, которые адаптируются к росту ребенка. Например, стулья с регулируемой высотой и парты с откидывающимися поверхностями могут значительно улучшить комфорт ребенка.
Долговечность и прочность: Материалы, устойчивые к износу
Долговечность - еще один важный фактор. Дети активны и могут подвергать свою мебель сильному износу. Выбирайте прочные и долговечные материалы. Для кроватей и шкафов отлично подойдут твердые породы дерева, такие как дуб и клен, а металлические столы могут выдержать множество воздействий.
Ориентируясь на эти критерии, вы сможете принять взвешенное решение, которое в долгосрочной перспективе принесет пользу и вам, и вашему ребенку.
Какие стили мебели наиболее популярны для мальчиков от 3 лет
Каждый ребенок — это отдельная Вселенная, полная тайн и постоянно меняющаяся. Идолжен соответствовать его возрасту, отражать вкусы и интересы, способствовать формированию личности, стимулировать интеллектуальное и творческое развитие. В этой статье с фото 2021-2022 года, которую вы прочтете за 7 минут, мы расскажем о том, как создать уютное и функциональное пространство для мальчика любого возраста.
Дизайн детской комнаты для мальчика по возрасту
Оформление и функционал детской комнаты для мальчика, в первую очередь, зависят от возраста ребенка. Если малышу достаточно комфортабельной кровати и небольшого игрового уголка, то школьнику, и тем более подростку, потребуется рабочее место, зона для отдыха и общения с друзьями, а также место для занятий спортом и творчеством.
До 3-х лет. Комната 10 кв. м для малыша
Интерьер маленькой детской комнаты 10 кв. м для малыша лучше реализовать в светлой гамме: в приоритете теплые молочные, сливочные и кремовые оттенки, которые можно сочетать с холодным белым. Из функциональных зон в комнате необходимо обустроить спальное место, систему хранения и игровой уголок, подобрав для них максимально безопасную и устойчивую мебель. На пол можно положить простой в уходе, гипоаллергенный и приятный в тактильном плане ковер. А для мамы потребуется удобное кресло.
3-5 лет. Детская 29 кв. м для маленького мальчика
Дизайн детской комнаты для маленького мальчика 3-5 лет — площадка для игр и познания мира. Она должна быть безопасной, уютной, с мотивирующей обстановкой. Отличная идея оформления такой комнаты — использование дизайнерских обоев со сказочным сюжетом и ярких цветовых акцентов. Но фон лучше выбрать светлый, например, небесно-голубой. И, конечно, необходимо наполнить комнату функциональными элементами: уголком для игр со столиком для творчества и грифельной доской, встроенной системой хранения.
5-7 лет. Интерьер 12,5 кв. м для дошкольника
Окружающий дошкольника интерьер должен как можно лучше отражать индивидуальность ребенка, ведь в этом возрасте активно формируется личность. Кроме того, стоит предусмотреть побольше мест для хранения развивающих игрушек и книг (ребенок будет активно ими пользоваться, так что все полки и ящики должны быть в доступе и легко открываться). Понравится дошкольнику-непоседе и компактный скалодром.
7-14 лет. Дизайн комнаты 14 кв. м для школьника
Приоритетной зоной в интерьере детской комнаты 14 кв. м для мальчишки-школьника 7-14 лет является рабочее место, которое лучше расположить у окна и укомплектовать книжными полками, стеллажом, шкафом. Не менее важно обустроить зону для отдыха. Ее можно совместить с местом для сна, добавив к кровати большое кресло, и обособить легкой перегородкой-ширмой. А для физического развития надо купить модульный спортивный уголок, который поместится даже в маленькой комнате.
14-19 лет. Детская 14 кв. м для мальчика-подростка
Интерьер комнаты 14 кв. м для мальчика-подростка — это отражение его внутреннего «я», так что, скорее всего, ребенок захочет поучаствовать в оформлении помещения. С ним можно обсудить цветовое решение и планировку, выбор мебели и текстиля. А подбор декора, например, постеров с изображением любимых киногероев или персонажей комиксов, можно полностью доверить хозяину «апартаментов».
В каком стиле лучше оформить детскую для мальчика?
Для декорирования детской для мальчика чаще всего выбирают следующие стили:
1. Современный (минимализм)
Лаконичный современный интерьер в нейтральных тонах с минималистичным «чердаком» и уютным чилаутом универсален, практичен и подходит для мальчиков любого возраста. А его главное достоинство в том, что он вариативен — обстановку можно трансформировать и дополнять новыми элементами, не меняя общей концепции дизайна. В комнате площадью 15,5 кв. м на фото нужное настроение создают яркие обои (ими выделили акцентную стену с ТВ-зоной), синий диван, ковер с геометрическим рисунком и солнечно-желтые римские шторы.
2. Лофт
Харизматичный лофт чаще выбирают уверенные в себе мальчики-подростки с задатками лидеров. В таком интерьере присутствуют брутальные нотки — их дают фактурные материалы, например, состаренный кирпич или обработанное вручную дерево. Интересным дополнением для лофтового интерьера станет винтажная люстра цвета меди или латуни, дизайнерский ковер и яркое кресло для рабочего уголка. А сделать обстановку более атмосферной поможет стилизованное изображение циферблата на стене, дающее отсыл к лондонскому Биг-Бену.
Как выбрать мебель, которая будет соответствовать возрасту и интересам мальчика

Как правильно выбрать и установить мебель для детской комнаты для мальчика? Для оформления помещения нужно подходить основательно: в первую очередь она должна быть уютной и комфортной для ребёнка. От этого зависит его настроение, ведь в ней малыш будет проводить большую часть времени. Кроме этого, она должна быть безопасной, мальчики очень подвижны, и ничто не должно травмировать их во время игр. Прежде чем выбрать мебельные группы, следует учитывать, сколько детей будет проживать, их возраст, пол , а также стиль . Какие основные требования и на что обратить внимание при выборе мебельных групп, сегодня расскажем в этой публикации.

Уютная комната для двух мальчиков
Критерии выбора мебели для детской комнаты мальчика
Чтобы выбрать мебель для мальчика, важно учитывать основные требования, с помощью которых помещение будет не только комфортным, но и безопасным .
Основное требование: устойчивость и надёжность
Это важный критерий, поскольку мальчики очень активны и не отличаются аккуратностью. При выборе мебели руководствуются следующими критериями:
- углы и грани детской мебели мальчика должны быть закруглены, особенно это касается маленькой комнаты ;
- желательно отказаться от предметов кустарного производства, отдавая предпочтение сертифицированным изделиям;
- все элементы должны быть хорошо закреплены, чтобы в процессе активных игр ничто не травмировало ребёнка;
- вся мебель должна быть изготовлена из экологически чистых материалов. Идеальный вариант – натуральное дерево или его более дешёвый аналог – МДФ.
Это важно! На безопасности ребёнка экономить нельзя. Только проверенные производители могут гарантировать высокое качество мебели согласно ГОСТам.
Комфортная эксплуатация
Мебель в первую очередь должна соответствовать возрасту ребёнка. Нельзя покупать предметы на вырост, для малыша производители дополняют кровать защитными бортиками . Современные модульные группы могут расти вместе с мальчиком. Специальные встроенные механизмы позволяют регулировать высоту стола, стула или длину кровати. Все мебельные группы должны быть комфортными в эксплуатации, чтобы ребёнок мог без труда использовать их.
Красивый дизайн
Основной критерий при выборе мебели для мальчика: она должна ему нравиться. Он ещё не понимает всех технических составляющих, например, насколько полезен ортопедический матрас . Старый письменный стол у него вызовет откровенную неприязнь, это отразится на успеваемости и характере. Нужно учитывать современные тенденции и мнение ребёнка при оформлении детской, только такая комната будет для него комфортной. Можно предложить сделать тематический дизайн , например, морской или автомобильный, в такую комнату мальчик с радостью позовёт друзей.

Грамотно подобранная мебель в комнату мальчика-подростка
Какая бывает мебель в детскую комнату для мальчика: фотопримеры готовых интерьеров
После того как родители определились, какая комната будет отведена под детскую, нужно начинать её обустраивать. Выбор мебельных групп зависит от площади. Для совсем маленьких помещений обратите внимание на. Это может бытьили. Для больших комнат можно рассматриватьсо спальным и рабочим местом,и игровой зоной. Примеры дизайна детской мебели для мальчика представлены в нашей фотоподборке.
Это важно! Правильно обставленная комната будет способствовать развитию творческих способностей мальчика и становлению его характера.
Самое важное для ребёнка − здоровый сон
Кровать должна быть удобной, нужно выбрать такую высоту, чтобы под ней могли разместиться выдвижные ящики для хранения.
Совет! Обязательно нужно выбрать ортопедический матрас по размерам кровати. Желательно купить и дополнительный съёмный чехол.
Каркас должен быть изготовлен из натуральной древесины или МДФ, это прочные и экологически чистые материалы. Все поверхности должны легко чиститься, чтобы с детства приучать ребёнка к.


Как сделать детскую комнату безопасной для мальчика от 3 лет с помощью мебели
Выбор детской мебели – ответственное мероприятие, от которого напрямую зависит здоровье, психическое самочувствие и настроение вашего ребенка. Чтобы территория самого маленького члена семьи была безопасной, уютной и красивой, важно учесть каждую деталь: от цвета изделий до покрытия.
Все о том, как выбрать правильную и красивую детскую мебель далее в статье. Читайте!
Сырье – первое, на что стоит обратить внимание при оформлении детской.
Потому что от материала изготовления зависит:
- здоровье ребенка;
- срок службы изделия;
- надежность и практичность использования;
- внешний вид.
Качество материала также влияет на цену детской мебели: натуральное сырье стоит дороже искусственного. Стоит ли платить больше?
Рассмотрим особенности детской мебели из:
ЛДСП
Это ламинированная древесно-стружечная плита, которая является наиболее популярной при производстве мебельных изделий.
Благодаря ламинированию данный материал может похвастаться:
- красивым внешним видом, стилизованным под настоящую древесину;
- широким выбором цветов;
- продолжительным сроком службы (min 10 лет);
- отличной стойкостью к царапинам и другим механическим повреждениям;
- хорошей защитой от воздействия горячих предметов и влаги;
- ценой, доступной для людей со средним достатком.
Что касается недостатков: ЛДСП хрупкий материал, поэтому склонен к появлению сколов. Кроме этого, при производстве плиты используют формальдегидные смолы, которые вредны для здоровья человека. Поэтому советуют выбирать детскую мебель из ЛДСП класса Е1 с закрытыми кромками – такое покрытие делает материал абсолютно безопасным даже для малышей.
МДФ
Это древесно-стружечная плита со средней плотностью, которая подходит для производства любых предметов меблировки.
Изготовление детской мебели из МДФ имеет такие плюсы:
- экологичность и безвредность для человека;
- отличная стойкость к влаге (до 80%), высоким температурам и механическим воздействиям;
- защита от появления грибка и других вредных образований;
- эксплуатационная прочность и надежность;
- внешняя презентабельность и богатая палитра цветов;
- длительный срок служб (при правильном уходе – от 12 лет).
Детская мебель из МДФ очень качественная и при этом стоит на 60-70% дешевле деревянных изделий. Для улучшения характеристик, материал покрываютили окрашивают/краской.
Натуральное дерево
Деревянная детская мебель выглядит поистине благородно и солидно. Ни один искусственный материал не сможет в точности передать неповторимую фактуру и узор настоящего дерева.
Кроме внешней презентабельности древесина:
- является 100% экологически чистым и гипоаллергенным материалом;
- выделяется длительным периодом эксплуатации (служит столетиями);
- отличается высокой прочностью (мягкие породы выдерживают до 500 кг, твердые – до 300 кг);
- позволяет создавать детскую мебель под заказ в любом дизайнерском исполнении;
- легко реставрируется и ремонтируется (можно кардинально изменить дизайн, поменяв фурнитуру и покрытие).
К недостаткам детской мебели из массива дерева можно отнести: высокую стоимость и слабую защиту от влаги.
Ротанг и бамбук
Современные производители делают на заказ ротанговую или бамбуковую детскую мебель практически любого дизайна.
Такие плетеные предметы обстановки пользуются бешеной популярностью, потому что:
- выдерживают нагрузки до 500 кг;
- являются экологически чистыми;
- простые в уходе и практичные в использовании;
Детская мебель из ротанга / бамбука также очень удобная, но стоит недешево.
Какие особенности должна иметь мебель для мальчика от 3 лет, чтобы она была удобной и функциональной
Корпусная мебель пользуется сегодня большим спросом. Обуславливается такая популярность отличными качественными характеристиками мебели, ее универсальностью и многофункциональностью. Но для того, чтобы такая мебель прослужила как можно дольше, не потеряв свои первоначальные качества, нужно выполнять несколько простых правил и советов.
Прежде всего, мебель прослужит долго, когда она правильно собрана. Если Вы не обладаете достаточными знаниями и умениями касательно сборки мебели, можно обратиться к специалистам, которые помогут собрать Вам как кухню, так и .
Для сохранения хорошего внешнего вида корпусной мебели I >, лучше не стоит ставить ее около тепловых и обогревательных приборов, а также под прямые солнечные лучи. Высокая температура пагубно сказывается на внешнем облике корпусной мебели, за исключением специальных материалов, которые способны выдерживать высокую температуру. Нормальная комнатная температура плюс отсутствие солнечных лучей – и Ваша мебель сохранится дольше.
Стоит упомянуть о правильном уходе во время уборки. Сейчас на прилавках магазинов продается достаточное количество разнообразных средств для чистки мебели. Покупать стоит только то, что максимально подходит под тип Вашей мебели. Так, например, для полированной и гладкой корпусной мебели подойдут любые аэрозоли. Для мебели с большим количеством металлических ставок нужно приобретать специальное средство, которое предотвращает коррозию. Для глянцевых и стеклянных поверхностей можно приобрести обычные порошки для чистки стекол, не оставляющие разводов. Правильно подобранное средство для чистки мебели – это важно для сохранения мебели в хорошем состоянии.
Также не стоит забывать и о соблюдении правил эксплуатации. Относитесь как можно бережнее к шкафчикам и дверцам, не стоит прилагать больших физических усилий, чтобы их открыть. А для того, чтобы механизм не заедал, нужно периодически смазывать поручни передвижения специальным маслом. Так же не стоит перегружать корпусную подвесную мебель. Не стоит забывать, что перегруз ведет к срыванию петель, из-за чего вся мебель может оказаться на полу.
Если следовать всем правилам и советам, то можно сохранить первозданный внешний вид своей корпусной мебели как можно дольше.
Надеемся, Вам понравилась данная статья, и она поможет Вам сохранить свою любимую мебель в первозданном виде долгие годы.
Мебель магазина «не такие как все» будет служить Вам долгие годы, ведь это действительно качественная корпусная мебель из Белоруссии и Украины. Наша мебель — это то, что вы так давно ищите!
Почему стоит выбрать именно нас:
в нашем магазине существует большой выбор корпусной мебели на любой вкус;
в среднем, срок изготовления мебели составляет 3 дня;
вся мебель изготавливается на заказ с учетом всех Ваших пожеланий;
наш магазин предоставляет бесплатно услуги замерщика;
мы предоставляем услуги доставки и сборки мебели.
Кроме того, на наши цены приятно смотреть! Убедитесь в этом сами – заходите на наш сайт ntkvmebel . ru . Или заходите в гости по адресу: г. Москва, Рязанский проспект, д. 30 к.2. Мы всегда рады Вас видеть!
С уважением, Ваш мебельный магазин «не такие как все».
Какие факторы влияют на выбор мебели для мальчика от 3 лет
Выбрать растущий стул с регулируемыми параметрами родителям бывает непросто. Поможем подобрать оптимальный вариант и узнаем мнение эксперта
Лучшие детские растущие стулья. Фото: shutterstock.com
Детская мебель должна быть безопасной и удобной. Правильная посадка влияет на несовершенную, развивающуюся костную систему, поэтому важно обеспечить ребенку условия для удобного и правильного сидения. Растущие стулья как раз удовлетворяют эту потребность.
Мы подготовили подборку лучших детских растущих стульев в 2024 году, а также узнали советы эксперта по выбору оптимального варианта.
Что такое растущие стулья
Растущие стулья — это стулья с регулировкой высоты сидения. Подобная мебель — практичный и функциональный вариант для семьи с одним или несколькими детьми. Параметры стульев регулируются: изменяться может высота и глубина сиденья и подножки, спинки. Использовать растущие стулья можно в течение долгого времени.
Конфигурация правильного стула помогает ребенку сидеть ровно, распределяет нагрузку на костную систему, тем самым способствуя профилактике сколиоза . А малышей на таких стульях удобно кормить . Да и самому ребенку нравится находиться на одном уровне со взрослыми, тем самым ощущая себя полноправным членом семьи.
Многие бренды предусмотрели дополнительные аксессуары — подушки, ремни безопасности. Предлагаются также коконы для младенцев, которые крепятся на растущий стул.
Детям постарше нравится самим забираться на стул, тем самым проявляя свою самостоятельность и независимость. Детсадовцы и школьники могут с комфортом выполнять задания, рисовать или мастерить поделки.
Обычно стулья выдерживают нагрузку в 100 кг и более, поэтому могут использоваться и взрослыми. Сборка стульев, как правило, проста и в среднем занимает от 10 до 20 минут.
Выбор редакции
Рейтинг составлен на основе мнения редакции КП. Рекомендации и дополнения по рейтингу вы можете отправить на почту family@kp.ru . Для обсуждения вопросов рекламного сотрудничества звоните по телефону +7 (495) 637-65-16 (по будням с 9:00 до 18:00).
Растущий стул для детей Rumbik IQ
Растущий стул для детей Rumbik IQ. Фото: market.yandex.ru
Высота сиденья этого растущего стула регулируется на 5 уровней, а высота подножки — на 9 уровней. Металлический крепеж способствует крепкой фиксации деталей. Благодаря пазам, сиденье и подножку легко переставлять. Спинка анатомическая, соответствует изгибу позвоночника.
Стул высокопрочный, изготовлен из шлифованной березовой фанеры шириной 18 мм. Высота стула — 80 см. Благодаря натуральному покрытию маслом и воском он легко моется. В ассортименте — 6 расцветок, а значит, стул получится вписать в любой интерьер. Дополнительно предлагаются аксессуары: ремень безопасности и различные чехлы на сиденье и спинку.
Основные характеристики
Плюсы и минусы
Благодаря частым шагам пазов насчитывается 45 вариантов расположения сиденья и подножки.
По отзывам пользователей, встречаются непрокрашенные торцы элементов.
Продолжить далее
Рейтинг топ-5 детских растущих стульев по версии КП
Растущие стулья способствуют формированию правильной осанки. Они занимают мало места и помогают создать условия для развития ребенка. Помните, что качественные стулья должны иметь сертификат безопасности.
Растущий стул «Конек Горбунек», модель «Комфорт»
Растущий стул «Конек Горбунек». Фото: market.yandex.ru
Стул имеет 4 положения сиденья и 11 положений подножки, которые регулируются по высоте и глубине. Изогнутая ортопедическая спинка и 3 дополнительные перекладины помогают распределить нагрузку. Металлический крепеж с инновационной технологией KG-Fix крепко фиксирует сиденье, подножку и спинку и не позволяет стулу со временем расшатываться.
С дополнительными аксессуарами может использоваться для детей от 6 месяцев. Цветовая палитра стула включает 26 различных оттенков. В линейке — 3 разновидности конструкции: «Стандарт», «Комфорт», «Премиум».
Основные характеристики
Плюсы и минусы
Широкое основание стула (50 см) увеличивает его устойчивость; богатая палитра расцветок.
Пользователи отмечают, что отверстия для крепежных элементов могут быть чрезмерно окрашены, из-за чего болты проталкиваются с трудом.