Какой должна быть высота полков в бане и ширина. Содержание статьи
- Какой должна быть высота полков в бане и ширина. Содержание статьи
- Ширина полков в бане. Длина и ширина полков
- Высота полков в бане от пола. Расстояние между полками разных конструкций
- Оптимальная ширина полка в бане. Пошаговое руководство
- Правильные полки в бане. Как изготовить полок в баню своими руками: подробная инструкция, чертежи, сборка и эксплуатация
- Размеры полков в парной. Размеры полков в парилке бани: Чертежи, фото, видео
- Высота полка в русской бане. Оптимальные размеры полков
Какой должна быть высота полков в бане и ширина. Содержание статьи
При составлении проекта бани самое важное – это определиться с оптимальными размерами парилки. Длина и ширина этого помещения, высота его потолков, а также высота и размеры полок должны быть подобраны правильно
Иначе париться в бане будет не только неудобно, но и небезопасно. В этой статье я во всех подробностях расскажу вам о том, что именно следует учитывать при выборе размеров парилки.
— Бюджетные. В этом случае парилка совмещается с моечной.— Стандартные. В таких сооружениях эти два помещения разделены.
Важно: Делать парилку на одного человека крайне не рекомендуется. Рассчитывайте ее таким образом, чтобы внутри могло разместиться хотя бы двое
Ведь температура воздуха в парной очень высокая и кому-нибудь однажды может просто стать плохо.
Длина и ширина парилки в бюджетной бане
В случае с бюджетной постройкой, оптимальные комфортные размеры парилки определяются с учетом количества посетителей. На одного моющегося должен приходиться хотя бы 1м полезной площади. Помимо этого, в расчет принимаются такие параметры, как:
- Размеры печи. Стандартная ее площадь составляет 1м 2. Данную цифру (плюс небольшое пространство вокруг печи) из полезной площади нужно вычесть.
- Размеры полок. О том, какими их стоит сделать, я расскажу немного позже. Их площадь из полезной также вычитается.
При составлении чертежа учитывайте и то, что даже в самой маленькой баньке длина хотя бы одной стены не должна быть меньше двух метров.
Совет: Проще всего с высотой определиться так. Попросите самого высокого члена вашей семьи встать у стены и поднять руку вверх. На уровне кончиков его пальцев поставьте отметку. Измерьте получившуюся высоту. Этот параметр и берется за основу при составлении проекта.
Слишком высокими парилки устраивать также не рекомендуется, поскольку пар при этом будет расходоваться нерационально. Чаще всего расстояние от пола до потолка в парилке составляет 2.2 — 2.4м.
Как определить ширину и высоту полок
С размерами этих непременных атрибутов любой бани определиться не особенно сложно. При выборе габаритов полок учитывайте такие параметры:
- Минимальная длина лавки – 1.5м. В этом случае на ней можно будет лежать, подогнув ноги. Наиболее же удобная длина зависит от роста посетителей парилки. Чаще всего в банях устанавливаются лавки длиной 1.8м.
- Наиболее распространенная ширина нижних полок – 40см. Сидеть на таких лавках очень удобно. Оптимальная ширина для верхнего полога – 95см.
Важно определиться не только с длиной и шириной полок, но и с их высотой. Данный параметр зависит прежде всего от высоты парилки
Наиболее удобная высота нижней лавки – 40см. Если же ярусов планируется соорудить больше двух, разница между ними может варьироваться в пределах 60см. О том, как правильно сделать полки в парилке смотрите тут .
Ну и напоследок ознакомьтесь с некоторыми полезными рекомендациями, которые, возможно, помогут вам сделать баню более удобной для посещения:
- Соотношение площадей раздевалка*парная*моечная принимается, как 2*1*1.5.
- Для того чтобы в пар в парной сохранялся лучше, ее полы стоит сделать немного повыше, чем в моечной (на 0.2м).
- Если баня достаточно просторная, установите в ней полочку для пожилых людей. Она должна быть широкой (не менее 0.5м) и длинной 1.8-2м. Как видите, определиться с оптимальными размерами парной не особенно сложно.
Ширина этой комнаты зависит от количества посетителей, высота потолка – от их роста. Размеры же полок подбирайте, исходя из габаритов самой парилки.
Ширина полков в бане. Длина и ширина полков
Во многих банях устанавливают полки ступенчатого типа. Они могут быть 2- и даже 3-уровневыми – этот нюанс зависит от высоты потолков. Минимальный показатель ширины полков составляет 40 см. Этого вполне достаточно, чтобы посетитель парилки присел и насладился паром. Некоторые владельцы банных комплексов при оснащении парилки лавками выбирают их ширину в 50-60 см. На таких вариантах скамеек принято сидеть. Конечно, маленький ребенок сможет и прилечь, но дети не всегда посещают подобные заведения.
На самом деле в традиционной русской бане сидеть не принято. Посетители должны париться в положении лежа. А чтобы у человека не возникало чувства дискомфорта, ширина лежачего полка должна составлять как минимум 85 см. Самый максимум равен 120 см. На таких широких полках удастся раскинуть руки и ноги. Однако самой распространенной считается ширина 60 см. Это расстояние вполне комфортно для сидения, но вот прилечь на такую ширину полка практически невозможно.

Максимально в русской бане должно располагаться 2 полка. Многоярусные конструкции, предполагающие лежать прямо под потолком, ставятся в современных банях и саунах. А все потому что принцип парения в традиционной русской бане во многом отличается от современных городских парилок.
Итак, приемлемая ширина сидячего вида полков составляет 40 см. Показатель ширины лежачей лавки колеблется в пределах 85-120 см. Теперь необходимо разобраться с длиной лавок, минимальный показатель которых составляет 2 м. В миниатюрных парных длина скамейки и вовсе может не достигать 185 см. Но если строить банный комплекс для личной эксплуатации, предпочтительно прислушиваться к советам опытных банщиков. Они же рекомендуют держать длину 2 м за самый минимум. В идеале длина полков должна составлять 2,2-2,5 м, где легко поместится даже самый высокий посетитель.

Немаловажным является толщина полков. Идеальным показателем является 6-8 см. Это гораздо больше, чем толщина продаваемых в строительных магазинах досок, которые используются для обустройства лавок саун. Однако в русской бане показатель толщины полок играет важную роль. Чем он больше, тем лучше аккумулирует тепло и отдает его посетителю парилки.
Если парное помещение в бане имеет большую квадратуру, то и мебель можно устанавливать крупных размеров. Этот нюанс зависит от желания владельца бани. Главное, не поставить в крупногабаритной парилке миниатюрные полки или, напротив, в маленькой парной попробовать вместить крупноразмерные скамейки.

Высота полков в бане от пола. Расстояние между полками разных конструкций
Ширина полков в бане может отличаться, когда строитель собирается делать перепланировку. Также учитывается расстановка в помещении. Размеры полка в бане для узких помещений составляют скромные 33-40 см.
Отступ в данном случае зависит от дизайна. К примеру, если высота полков в сауне до 40 см, можно с уверенностью экспериментировать. Часто строители пытаются сделать небольшое количество мест, но чтобы люди могли разместить без стеснения.
Если полки в бане размеры большие, всегда встает вопрос прохода. Некоторым удается достигнуть баланса, но очень не хочется заниматься перепланировкой. Когда высота полка в бане от пола более 50 см, создается впечатление, что второй ярус уже не поставить.
Человеку будет неудобно взбираться по конструкции. Иногда размеры полок в парилке умышленно занижают. Как только человек хочется не лежать, а посидеть между ярусами, оказывается, что места совсем впритык.
Не спасает, даже если ширина полков в парилке будет большой. Все равно головной убор соприкасается со вторым ярусом, и это приносит дискомфорт.
Угловые
Если рассматривать угловые конструкции, интересует высота полога в бане. По стандартам допускается от 40 см, но люди часто жалуются, что этого не достаточно. Возникает желание произвести расширение.

У полок в баню размеры зависят от конструкции. Часто дополнительные перегородки становятся причиной того, что ярусы смотрятся уплотненными. В узких помещениях размеры полога в парилке всегда зависят от ширина. Если она до 30 см, даже при малой высоте есть возможность высокому человеку немного отклониться вперед и комфортно расположиться. варьируется от 30 до 35 см. Если стенка с декоративными элементами, лучше увеличивать данный параметр. Экспертов всегда интересует у Подходя с точки зрения стилистики, лучше учитывать пространство в помещении.
Существуют простые способы определения размеров. Когда человек заходит в помещение, на сидение отводится до 30%. Иногда строители делают сложной формы в надежде сэкономить место. Такой вариант для может быть оправдан, однако будет потрачено много времени.
Оптимальная ширина полка в бане. Пошаговое руководство
Изготовление полок начинают с составления четкого плана. Чтобы избежать финансовых проблем, связанных с перестройкой бани , покупкой нового материала, важно выполнять работу поэтапно, по заранее подготовленному проекту. После того как сауна, банный комплекс, все его элементы построены, нужно приступить к обустройству внутреннего помещения парной.
Для изготовления каркаса для полок в бане годятся бруски с сечением 50х50 мм либо 50х80 мм . Иногда, когда предусмотрено использование настила из тяжелых досок, мастера используют бруски с сечением 50х100 мм либо 100х100 мм и больше. Заготовки для настила после окончательной обработки должны иметь толщину не менее 25 мм . Чем толще, тем она должна быть шире. Мастера рекомендуют закупать доску, ширина которой в 4 раза превышает толщину, а также советуют придерживаться этого правила при любых изменениях параметров.
Из инструментов понадобится:
- дрель;
- рулетка;
- киянка;
- стамеска;
- шуруповёрт;
- ножовка по дереву;
- шлифовальная машинка.
Рассмотрим подробнее, как сделать полок в бане своими руками пошагово. Для этого поможет тщательно спланированная инструкция.
Установка стоек
Собирая каркас для лежака, важно помнить, что чем меньше сечение брусков, тем чаще их устанавливают по отношению друг к другу. Например, при сечении бруска 50х50 мм , расстояние делают не более 600 мм . Такая мера связана с необходимостью создать крепкую, устойчивую конструкцию. Для верхней лежанки длиной около двух метров используют брусья высотой 100-115 см . Сечение стоек должно быть не менее либо . Мастера, учитывая такие размеры, рекомендуют делать .
Опорные брусья для полок, которые закрепляются вдоль стены, монтируют при помощи шуруповёрта и дюбель-шурупов, располагаемых примерно в 10 см друг от друга. Вертикальные стойки необходимо дополнительно установить и прикрепить металлическими уголками к полу.
Как один из вариантов крепления мастера выбирают сборную конструкцию опоры под лежак. Это стойки, соединенные саморезами с горизонтально расположенными брусками. досок, которые примыкают к стене. Между досками, которые примыкают к стене, с помощью деревянных отрезков, делают зазор в несколько миллиметров для циркуляции воздуха.
Правильные полки в бане. Как изготовить полок в баню своими руками: подробная инструкция, чертежи, сборка и эксплуатация
Парная – сердце, в которой установлено 2 важных элемента: печь и полок. Одна греет, на другом сидят или лежат, принимая банные процедуры. И если с печкой все понятно – она должна прогревать помещение до определенной температуры, то с полоком из дерева надо разобраться. Особенно, если стоит задача – сделать полок в баню своими руками.
Выбор прочного материала для полока в баню
Классический материал для изготовления полока в баню – дерево. Ему замены до сих пор не нашли. Поэтому не стоит возобновлять поиски среди современных материалов. Просто надо знать, какую породу для этого сооружения нужно использовать.
Чаще полок делают из осины, ольхи или липы. Причины:
- высокая плотность сосредоточения волокон на единицу объема;
- низкая теплопроводность материала;
- смолы в древесине присутствую, но в малых количествах;
- легко переносят высокие температуры.
С недавних пор на российском рынке древесины появилась африканская порода под название абаши. Цена высокая, характеристики уступают осине.
Из хвойных пород можно использовать кедр. В нем присутствует смола, которая начнет выделяться при высоких температурах, что негативно скажется на качестве использования полока в бане.
Чтобы избежать такого, нужно правильно выбирать пиломатериал из кедра. Обычно смола присутствует в местах, где происходит стык основного ствола с ответвлениями. То есть чем меньше сучков в материале, тем меньше будет смоляных выделений.
Характеристики по породам дерева:
- Осина. Важно для полока в баню выбирать качественный материал, потому что в осиновых досках могут скрываться невидимые дефекты, которые под действием перепадов влажности и температуры перейдут в категорию видимых. А это скажется впоследствии на снижении качества полока в бане.
- Липа – лучший вариант. Материал красивый, долго сохраняет гладкость, легко обрабатывается, что важно при сооружения полока своими руками. Выделяет приятный запах.
- Ольха. Ее использовали с незапамятных времен. Можно сказать, что это традиционная древесина, используемая в банях. Она практически не впитывает в себя влагу, поэтому редко трескается. Если изготавливать полки в баню своими руками на длительный срок эксплуатации, то это один из лучших вариантов. Ольха бывает черной и светлой, цвет практически не изменяется со временем.
- Береза. Пиломатериал из этого дерева самый дешевый. И хотя береза считается мебельным деревом, в экстремальных условиях бани она прослужит недолго. Трещины, коробление, отслоение – не полный список, чего можно ожидать.
- Дуб – самый крепкий и прочный, но дорогой, поэтому его популярность среди владельцев бань низкая.
- Клен – не самая популярная порода дерева для бань. Он просто недооценен. Его преимущества: не боится влажности, широкая палитра оттенков, красивая фактура, срок службы большой, цена в среднем сегменте.
- Кедр тоже стоит немалых денег, но по прочности не уступает дубу. Легко выдерживает высокую влажность и температуру бани, под действием которых выделяет приятный запах.
- Лиственница. Достоинства: высокая прочность и плотность, не боится повышенных влажности и температур, длительный срок службы (другие породы с ней не сравняться). Недостатка два: высокая цена, сложность в обработке. Последний важен, если изготовление полока проводится своими руками.
Пошаговая инструкция
В первую очередь надо выбрать тип полока. Их три:
- скамейка, она же лавка;
- лежанка;
- шезлонг.
Последние стали устанавливать в банях, как дань популярности, хотя практичность у них низкая. Два других обычно компонуют в один полок. Скамейки устанавливают внизу, лежаки вверху. К примеру, если полок – это двухярусная конструкция, то две нижние полки – скамейки, верхняя – лежанка. Лежак – это широкая полка, на которую можно лечь и расслабиться. На ней же происходят банные процедуры – отхлещивают вениками, моют и прочее.
Что касается пошаговой инструкции, то после выбора типа полока нужно определиться с размерами деревянного сооружения, Здесь все зависит от размеров парилки в бане и места установки конструкции. Лучше сделать чертеж в масштабе, где указываются и размеры, и место расположения.
Далее приобретаются необходимые материалы в том количестве, что указаны в чертеже. Это касается не только пиломатериалов, но и крепежных изделий, пропиток. Последний этап – сборка конструкции.
Размеры полков в парной. Размеры полков в парилке бани: Чертежи, фото, видео

В данной статье, на примере конкретного объекта, мы расскажем и покажем наиболее удачное расположение полков в парной. Разеберм на какой высоте и какой ширины лучше сделать парильный стол. А также продемонстрируем, что у нас получилось в итоге.
Размеры полков в парилке бани: Чертежи, фото,
В данной статье, на примере конкретного объекта, мы расскажем и покажем наиболее удачное расположение полков в парной. Разеберм на какой высоте и какой ширины лучше сделать парильный стол. А также продемонстрируем, что у нас получилось в итоге.
Планировка полков в парной
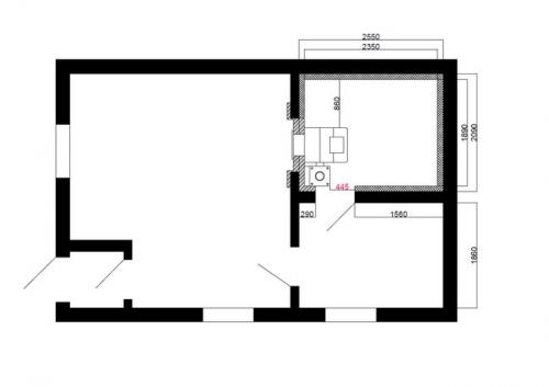
Изначально нам был прислан вот такой чертеж от заказчика:

К этому чертежу мы получили следующий перечень заданий:
- Установить чугунную печь в облицовке;
- Установить керамический дымоход;
- Расположить двухуровневые полки, на которых было бы удобно как полежать попариться, так и просто посидеть погреться.
Изучив данный чертеж более детально мы пришли к выводу, что спланирована баня не очень удачно, т.к. дверь, которая вела из моечной в парную, мешала организовать печную зону с дымоходом в данном углу:

Довольно распространенная ошибка при планировке помещений в бане.
А вот эта перегородка съедала довольно большую и полезную площадь парной:

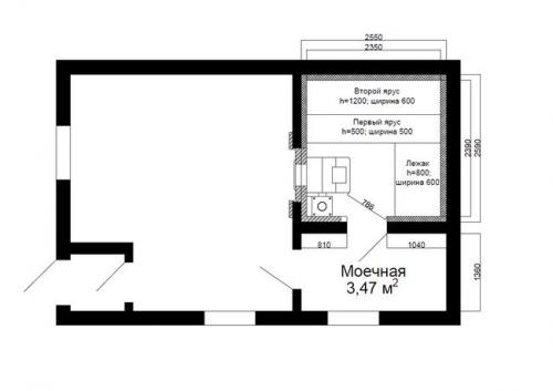
Если бы мы установили печь с дымоходом в центре парной, то мы не смогли бы уже вместить полноценные полки ни по одной стене, ни по второй. В первом случае мы получили бы узкий лежак, часть которого находилась бы за печью, и он был бы попросту не функционален:

Во втором случае лежак получался довольно коротким, а двухуровневые полки обрезанными и неудобными:

Венцом всего этого неудобства был бы маленький проход из-за печной зоны, который составлял бы чуть меньше полуметра:

Так никуда не годилось и мы приняли решение вынести перегородку в моечную на 500мм и сместить дверной проем:

После этого у нас в парной все встало на свои места. Печная зона была организована в углу и не съедала полезного пространства. Полноценный широкий лежак у нас обосновался по правой стене, а двухуровневые полки для сидения встали на свое место:

Плюсом стало и то, что проход в парную увеличился. Моечная комната при этом стала площадью 3,5 м², что вполне достаточно для того, чтобы помыться и повесить обливное ведро.
Как правило, мы всегда стараемся делать полки из двух блоков, которые делят парную на зоны. Одна зона служит одноуровневым полноценным широким лежаком, а вторая двухярусными полками для сидения:

Высота и ширина лежака в парной
Высота лежака
Лежак делается на высоте 750-850 мм от уровня пола, где будет стоять парильщик. Данная высота взять неспроста и для каждого человека она индивидуальна. Рассчитывается эта высота по следующей формуле: замеряем высоту от пола до средней фалагни указательного пальца и на этой отметке делаем высоту лежака.
На такой высоте при работе вениками руки парильщика будут согнуты под углом 90 градусов, и процедура парения не будет забивать руки и суставы. Вам не нужно будет слишком сильно задирать руки вверх или наоборот стоять в согнувшемся состоянии над человеком, который лежит на полке.
Здесь работает то же правило, что и при работе за компьютером, если Ваши руки согнуты под углом 90 градусов, то продолжительная работа не будет оказывать негативного последствия на Ваше здоровье.
Хотим сразу Вас предупредить, что не стоит брать эту формулу как единственную прописную истину при расчете высоты лежака, т.к. подходит не для всех случаев. Но в большинстве своем она работает на отлично.Ширина лежака
Ширина, так же как и высота рассчитывается индивидуально. Основной критерий при выборе ширины — это простор и свобода. Минимальная ширина, которую мы рекомендуем делать это 700 мм. Средняя 800-900мм.
При ширине 800-900 мм у Вас не будут свисать с полков руки, и Вы не будете их плотно прижимать к телу по швам. Вы будете находиться полностью в расслабленном состоянии, а не балансировать на грани падения, как канатоходец.
Предела у ширины лежака нет. Если Вам удобно лежать на полке шириной метр — делайте метр.Длина лежака
Длину лежака рекомендуем делать исходя из формулы: рост человека + 20 см. Это позволит полностью вытянуть ноги, оттянуть носки и не упираться головой в стену.
Высота и ширина полков для сидения
Теперь поговорим о второй части наших полков — это двухуровневые полки для сидения.
Высота полка в русской бане. Оптимальные размеры полков
Оптимальные размеры полков зависят от их ярусности. Так, в России самый распространенный вариант – полки в 3 яруса. Дело в том, что такое их количество взято из финской бани, где на полках сидят, а не лежат. Однако для русской бани такой вариант плох, так как большое количество ярусов будет мешать парильщику.
Правильнее было бы при обустройстве русской бани ограничиваться 1-2 ярусами. Ширина полка должна быть достаточной для комфортного размещения на нем человека.
В русской бане высота полка должна максимально соответствовать росту человека. Высота подбирается с таким расчетом, чтобы парящийся без труда мог улечься, а парильщику не пришлось нагибаться, было удобно работать руками. Обычно она составляет 70-80 сантиметров, то есть полок размещают так, чтобы его высота соответствовала уровню косточки большого пальца опущенной руки.
Если оставить расстояние между полком и потолком парной в 110 сантиметров, то на ней будет удобно не только лежать, но и сидеть, так как потолок мешать не будет.
Кроме такого параметра, как высота, при изготовлении банных полков стоит помнить о длине и ширине. Подбираются они обычно с тем расчетом, чтобы парящийся в парилке человек не упирался головой в стену и чтобы у него не свисали ноги.
Стандарты размеров полок в обычной русской бане таковы: в ширину – 90 см, в длину – 220 см. Опираясь на эти данные, скамьи и полки размещают вдоль стен сауны. При этом следует ориентироваться на размеры и конфигурацию парного помещения бани. Если площадь позволяет, то можно сделать двухместные полки.
В ситуации, если размеры парной небольшие, имеет смысл применить вариант «купе». В этом случае полок и скамья будут примыкать к одной стене. Сам полок откидывается и фиксируется. Это делается для удобства сидения. После окончания банных процедур, его возвращают в исходное положение.
Совет от мастера!Однако существует и стационарный вариант расположения полка. При нем полок крепится стационарно, а нижняя скамья является выдвижной.