Покритикуйте расположение полков в конкретной парной. Полок в парилке: что это такое и для чего используется? Инструкция, как крепить откидной, съемный и угловой полок (105 фото)
- Покритикуйте расположение полков в конкретной парной. Полок в парилке: что это такое и для чего используется? Инструкция, как крепить откидной, съемный и угловой полок (105 фото)
- Правильные полки в бане. Пошаговое руководство
- Расчет полков в парилке. Особенности
- Размеры полков в парной. Размеры полков в парилке бани: Чертежи, фото, видео
Покритикуйте расположение полков в конкретной парной. Полок в парилке: что это такое и для чего используется? Инструкция, как крепить откидной, съемный и угловой полок (105 фото)
Основными атрибутами любой парной комнаты является печь и полки или пологи. Зачастую полки в парилке имеют вид лестницы. По форме и виду они могут различны.
Многоступенчатые полки возможно сделать в просторной парилке, в парной небольшого размера делают одноярусные полки. Полки должны быть такого размера, чтобы на них можно было не только сидеть, но и лежать.
Специфика полков
По сути своей полок — это деревянный настил, своеобразная лавка, которая расположена вдоль стены парилки. Изготавливая полки нужно принимать во внимание габариты людей, которые будут посещать парилку.
Каждый посетитель должен иметь возможность свободно лежать на полке. Многоярусность полков обусловлена тем, что горячий воздух поднимается вверх: под потолком парной всегда жарче, чем в метре от пола.

Таким образом каждый посетитель парилки может выбрать комфортную для себя температуру, отдыхая на первом или втором ярусе полков. Многоярусность полков не ограничивается двумя ярусами, их может быть больше. Все зависит от предпочтения хозяина бани.

Простая конструкция полка
Условно полки можно разделить на три типа:
- Скамейки являются наиболее популярными;
- Лежанки. Редко встречаются в парилках;
- Шезлонги. Функциональные раскладные кресла, которые можно использовать как лежак и как кресло для сиденья.
Конструкция любого полка очень проста. Не желательно использовать декоративные элементы, потому что они могут травмировать посетителей парной. Полки делаются по принципу: чем проще, тем лучше. Обычная прямоугольная форма наиболее популярна для полков.
Материал для полка в парилке
Для изготовления полков лучше всего использовать древесину листовых пород, так как материал из хвойных пород выделяют смолы при нагревании. Это может стать причиной ожога и токсического отравления.
Для полков подойдет:
- Осина, которая является лиственной породой. Древесины легко приобрести, она прочна, долговечна, устойчива к гниению. Некоторые люди утверждают, что осиновые доски обладают целебными свойствами.
- Липа, которая является не только качественным, но и недорогим материалом. Липовая древесина обладает низкой теплопроводимостью. Пологи из липы имеют привлекательный вид. Липовая древесина проста в обработке и монтаже. За такими пологами просто ухаживать. Единственный недостаток в том, что со временем липовый полок темнеет.
- Клен. По своим характеристикам схож с липовой древесиной. Элементы из кленовой древесины долговечны и со временем не деформируются.
- Древесина из тополя отличается светлым оттенком. Тополь прост в обработке, но менее прочен, чем липа или клен.
- Африканский дуб Абаши. Зачастую мебель для бани изготавливают именно из этой древесины. Объясняется это тем, что материал обладает высокой влагоустойчивостью, пониженной теплопроводимостью и устойчивостью к воздействию высоких температур.
- Доски из ольхи очень прочные, устойчивы к деформации. Древесина из ольхи обладает низкой теплопроводимостью, поэтому материал считается наиболее подходящим для изготовления полков для парилки.
Правильные полки в бане. Пошаговое руководство
Изготовление полок начинают с составления четкого плана. Чтобы избежать финансовых проблем, связанных с перестройкой бани , покупкой нового материала, важно выполнять работу поэтапно, по заранее подготовленному проекту. После того как сауна, банный комплекс, все его элементы построены, нужно приступить к обустройству внутреннего помещения парной.
Для изготовления каркаса для полок в бане годятся бруски с сечением 50х50 мм либо 50х80 мм . Иногда, когда предусмотрено использование настила из тяжелых досок, мастера используют бруски с сечением 50х100 мм либо 100х100 мм и больше. Заготовки для настила после окончательной обработки должны иметь толщину не менее 25 мм . Чем толще, тем она должна быть шире. Мастера рекомендуют закупать доску, ширина которой в 4 раза превышает толщину, а также советуют придерживаться этого правила при любых изменениях параметров.
Из инструментов понадобится:
- дрель;
- рулетка;
- киянка;
- стамеска;
- шуруповёрт;
- ножовка по дереву;
- шлифовальная машинка.
Рассмотрим подробнее, как сделать полок в бане своими руками пошагово. Для этого поможет тщательно спланированная инструкция.
Установка стоек
Собирая каркас для лежака, важно помнить, что чем меньше сечение брусков, тем чаще их устанавливают по отношению друг к другу. Например, при сечении бруска 50х50 мм , расстояние делают не более 600 мм . Такая мера связана с необходимостью создать крепкую, устойчивую конструкцию. Для верхней лежанки длиной около двух метров используют брусья высотой 100-115 см . Сечение стоек должно быть не менее либо . Мастера, учитывая такие размеры, рекомендуют делать .
Опорные брусья для полок, которые закрепляются вдоль стены, монтируют при помощи шуруповёрта и дюбель-шурупов, располагаемых примерно в 10 см друг от друга. Вертикальные стойки необходимо дополнительно установить и прикрепить металлическими уголками к полу.
Как один из вариантов крепления мастера выбирают сборную конструкцию опоры под лежак. Это стойки, соединенные саморезами с горизонтально расположенными брусками. досок, которые примыкают к стене. Между досками, которые примыкают к стене, с помощью деревянных отрезков, делают зазор в несколько миллиметров для циркуляции воздуха.
Расчет полков в парилке. Особенности
Традиционную деревенскую баню невозможно представить без полков: зачастую многоярусных, напоминающих широкоступенчатую лестницу. По-другому такие полки называются пологами. Они являются неотъемлемой частью любой парной.


Полок, или полог представляет собой деревянный настил – своеобразную вытянутую многоярусную лавку, расположенную вдоль одной или нескольких стен помещения. Чтобы в парилке можно было расслабиться, такие полки изготавливаются с тем расчетом, что даже крупный высокий человек сможет спокойно лежать на них. К тому же многоярусный полок позволяет отдыхающим самостоятельно выбирать наиболее комфортный для них температурный режим.


Банные полки можно разделить на три типа. Наиболее распространенным вариантом считаются полки, используемые в качестве скамеек; они подходят и для небольших парных, так и для вместительных крупных помещений. Лежанки не столь популярны, как скамейки, но тоже встречаются в самых разных банях. И, наконец, третий вид банных полков – шезлонги. Они практически не отличаются от пляжных шезлонгов, и их с равным успехом можно использовать и как лежанку, и как кресло, что делает их очень функциональными, хотя и далекими от традиционного оформления бани.


Конструкция полка предельно проста. Декоративные элементы не приветствуются, так как могут стать причиной травм, да и просто выбиваются из традиционного внешнего оформления парилки. Простота и небольшой выбор форм полков легко объясняется: под баню принято отводить небольшое помещение, которое можно легко, быстро и достаточно экономично и без расходования лишних ресурсов прогреть. Потому и наиболее любимой мастерами является обыкновенная прямоугольная форма полков.


Источник: https://gorizont-pro.ru/novosti/vysota-polkov-v-bane-razmery-polkov-v-parilke-saune-chertezhi
Размеры полков в парной. Размеры полков в парилке бани: Чертежи, фото, видео

В данной статье, на примере конкретного объекта, мы расскажем и покажем наиболее удачное расположение полков в парной. Разеберм на какой высоте и какой ширины лучше сделать парильный стол. А также продемонстрируем, что у нас получилось в итоге.
Размеры полков в парилке бани: Чертежи, фото,
В данной статье, на примере конкретного объекта, мы расскажем и покажем наиболее удачное расположение полков в парной. Разеберм на какой высоте и какой ширины лучше сделать парильный стол. А также продемонстрируем, что у нас получилось в итоге.
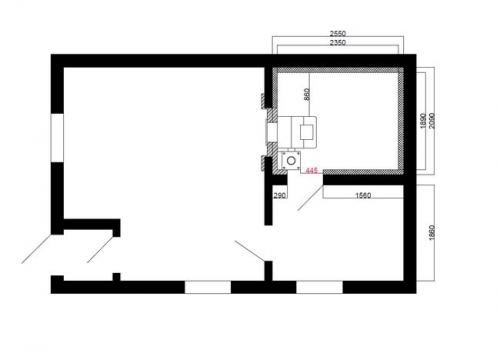
Планировка полков в парной
Изначально нам был прислан вот такой чертеж от заказчика:

К этому чертежу мы получили следующий перечень заданий:
- Установить чугунную печь в облицовке;
- Установить керамический дымоход;
- Расположить двухуровневые полки, на которых было бы удобно как полежать попариться, так и просто посидеть погреться.
Изучив данный чертеж более детально мы пришли к выводу, что спланирована баня не очень удачно, т.к. дверь, которая вела из моечной в парную, мешала организовать печную зону с дымоходом в данном углу:

Довольно распространенная ошибка при планировке помещений в бане.
А вот эта перегородка съедала довольно большую и полезную площадь парной:

Если бы мы установили печь с дымоходом в центре парной, то мы не смогли бы уже вместить полноценные полки ни по одной стене, ни по второй. В первом случае мы получили бы узкий лежак, часть которого находилась бы за печью, и он был бы попросту не функционален:

Во втором случае лежак получался довольно коротким, а двухуровневые полки обрезанными и неудобными:

Венцом всего этого неудобства был бы маленький проход из-за печной зоны, который составлял бы чуть меньше полуметра:

Так никуда не годилось и мы приняли решение вынести перегородку в моечную на 500мм и сместить дверной проем:

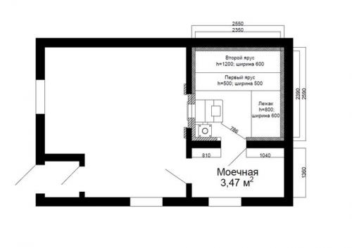
После этого у нас в парной все встало на свои места. Печная зона была организована в углу и не съедала полезного пространства. Полноценный широкий лежак у нас обосновался по правой стене, а двухуровневые полки для сидения встали на свое место:

Плюсом стало и то, что проход в парную увеличился. Моечная комната при этом стала площадью 3,5 м², что вполне достаточно для того, чтобы помыться и повесить обливное ведро.
Как правило, мы всегда стараемся делать полки из двух блоков, которые делят парную на зоны. Одна зона служит одноуровневым полноценным широким лежаком, а вторая двухярусными полками для сидения:

Высота и ширина лежака в парной
Высота лежака
Лежак делается на высоте 750-850 мм от уровня пола, где будет стоять парильщик. Данная высота взять неспроста и для каждого человека она индивидуальна. Рассчитывается эта высота по следующей формуле: замеряем высоту от пола до средней фалагни указательного пальца и на этой отметке делаем высоту лежака.
На такой высоте при работе вениками руки парильщика будут согнуты под углом 90 градусов, и процедура парения не будет забивать руки и суставы. Вам не нужно будет слишком сильно задирать руки вверх или наоборот стоять в согнувшемся состоянии над человеком, который лежит на полке.
Здесь работает то же правило, что и при работе за компьютером, если Ваши руки согнуты под углом 90 градусов, то продолжительная работа не будет оказывать негативного последствия на Ваше здоровье.
Хотим сразу Вас предупредить, что не стоит брать эту формулу как единственную прописную истину при расчете высоты лежака, т.к. подходит не для всех случаев. Но в большинстве своем она работает на отлично.Ширина лежака
Ширина, так же как и высота рассчитывается индивидуально. Основной критерий при выборе ширины — это простор и свобода. Минимальная ширина, которую мы рекомендуем делать это 700 мм. Средняя 800-900мм.
При ширине 800-900 мм у Вас не будут свисать с полков руки, и Вы не будете их плотно прижимать к телу по швам. Вы будете находиться полностью в расслабленном состоянии, а не балансировать на грани падения, как канатоходец.
Предела у ширины лежака нет. Если Вам удобно лежать на полке шириной метр — делайте метр.Длина лежака
Длину лежака рекомендуем делать исходя из формулы: рост человека + 20 см. Это позволит полностью вытянуть ноги, оттянуть носки и не упираться головой в стену.
Высота и ширина полков для сидения
Теперь поговорим о второй части наших полков — это двухуровневые полки для сидения.