Канализация загородного дома своими руками. Как организовать канализацию на даче с септиком
- Канализация загородного дома своими руками. Как организовать канализацию на даче с септиком
 - Водопровод и канализация в частном доме своими руками. Проект водопровода и канализации дома
 - Разводка канализации в частном доме. Этап №2 — монтаж внутреннего трубопровода
 - Внутренняя канализация в частном доме своими руками. Как сделать канализацию в частном доме?
 - Канализация в частном доме нормы. Канализация: общие требования
 - Канализация в частном доме, как правильно сделать. Что необходимо знать перед проектированием
 - Слив в частном доме своими руками. Консервация колодца на зиму
 
Канализация загородного дома своими руками. Как организовать канализацию на даче с септиком
Если дача будет посещаться в основном на выходные, строить какую-либо сложную систему не имеет смысла. Самый разумный вариант в таком случае — установить накопительную емкость, или сделать выгребную яму, но обязательно — герметичную. Так как посещения будут редкими, очистка потребуется нечасто, а чтобы она нужна была еще реже, используют биопрепараты, которые ускоряют разложение органики, заодно уменьшая объемы стоков.

Схема организации автономной канализации с септиком и полем фильтрации
При более активном использовании дачного участка, канализация для дачи нужна более серьезная. Разумный выбор — ставить септик, делать по инструкции поля фильтрации или ставить поглощающий колодец. Септик лучше брать заводской, по возможности — стеклопластиковый . Он, конечно стоит достаточно много денег, но самодельные септики, хоть и обходятся при строительстве дешевле, требуют постоянного ремонта во время эксплуатации, да и кроме всего, большая их часть страдает негерметичностью. Дело ведь идет о даче, и все, что попадает в грунт, оказывается в результате у вас на столе — в виде воды, если водоснабжение из колодца или скважины, а потом в виде урожая, который вы этой водой поливаете.
Если точно решено делать септик своими руками, есть несколько вариантов:
- Монолитный бетонный. Можно добиться высокого уровня герметизации, но объем работ большой, требует большого количества времени.

Такой септик на даче можно построить из кирпича или бетона
 - Кирпичный. Не лучший вариант, так как на пучинистных грунтах может быть разрушен. Может использоваться при условии, что стенки будут оштукатурены. Добиться герметичности можно при помощи современных гидроизоляционных обмазочных материалов.
 - Септик из бетонных колец. При грамотном исполнении хорошо работает, но без проблем эксплуатируется на грунтах, не склонных к пучению. На глинах и суглинках кольца часто сдвигаются с места, нарушается герметичность. Ремонт — сложное и неприятное мероприятие.
 - Из металла. Герметичность на высоком уровне, но до тех пор, пока металл не разъест, а произойдет это довольно скоро.
 
Проще всего сделать септик на даче из бетонных колец. Объем его должен быть достаточно большой — считается, что в таком устройстве должно быть место для накопления трехсуточного запаса сточных вод. Расход в сутки принимается по 200-250 литров на человека, общий расход считается по количеству находящихся на даче единовременно с некоторым запасом на случай приезда гостей. На семью из 3-4 человек обычный объем септика — 2,5-3 куба.
Водопровод и канализация в частном доме своими руками. Проект водопровода и канализации дома
Всем, кто решится создать своими силами систему подвода воды и отвода стоков, придется столкнуться с одной проблемой. В строительстве частного дома техника используется лишь для обустройства фундамента, остальные работы выполняются вручную. Поэтому и точность соответствующая.
Всем, кто собрался провести сантехнику в частном доме своими руками, нужно быть готовым к постоянной корректировке проекта, внесениям изменений по измеренным «вживую» размерам цокольной части стен и внутренних помещений. Схему укладки следует сделать обязательно, но действовать придется во многом методом подгонки по месту.
Привязка канализации к сантехнике
План прокладки канализационных труб проще всего сделать по эскизам планировки помещений. Каждое частное домовладение имеет свою специфику расположения комнат. Поэтому нужно будет снять кальку с плана дома и предварительно нанести точки установки сантехники в ванной комнате и санузле с учетом возможности прокладки канализационных труб.
В простейшем случае канализация в частном домовладении состоит из одной трубы, в которую по мере удаления от канализационного стояка врезана следующая сантехника:
- унитаз;
 - биде;
 - умывальник;
 - ванна или душевая кабина;
 - кухонная мойка.
 
При выборе мест под умывальник, туалет и ванну нужно учитывать индивидуальные предпочтения и особенности анатомии жильцов, но приведенный план расположения сантехники в частном жилье считается оптимальным и наиболее распространенным.
Если придется ставить ванну и кабину до прокладки канализации в частном доме (такое тоже бывает), то нужно дополнительно измерить уровни пола в санузле и ванной комнате.
Визуально кажется, что пол в туалете и ванной комнате находится на одном уровне. На самом деле это не совсем так. Нужно будет составить схему и пересчитать высоту патрубка канализации под ванну и унитаз, чтобы не получилось, что после установки сантехники слив окажется ниже уровня канализационных стоков.
План водопровода
Укладка водопроводных труб проще канализации. Большая часть сантехники в частном доме подключается к «воде» с помощью гибкой подводки, поэтому расположение выводов не столь критично, как в случае канализационных стоков.
Исключением может быть подключение ванны. В этом случае участок водопровода от водяного счетчика до смесителя ванны рекомендуется делать трубой сечением не менее ¾ дюйма.
Разводка канализации в частном доме. Этап №2 — монтаж внутреннего трубопровода
Хороший отвод воды, в первую очередь, зависит от устройства внутреннего трубопровода коттеджа. После установки сантехнической фурнитуры, ее надо будет подключить к единой канализационной трубе, по которой стоки пойдут в очистные отстойники.
Монтаж трубопровода
Первым делом необходимо определиться с типом труб . Лучше приобретать изделия из поливинилхлорида (ПВХ), поскольку чугунные и металлические варианты требуют сварочных работ.
Процесс электрической сварки чугунных труб для неопытного обывателя может стать «камнем преткновения» на пути к положительному результату. Чугун – хрупкий металл, и резкое охлаждение стыкового шва неминуемо приведет к появлению микротрещин.
Пластиковые трубы обладают массой достоинств, в числе которых:
- небольшая масса;
 - простота монтажа;
 - доступная цена;
 - большой выбор переходников и отводов;
 - инертность к агрессивным средам;
 - долговечность.
 
Монтаж начинается с кухни. Самая удаленная точка, обычно это место под установку кухонной раковины, располагается выше всех последующих.
Последним подключается туалет (унитаз), сточная труба которого расположена ближе всего к центральному стоку.
Благодаря большому выбору фасонных изделий из ПВХ монтаж производится очень быстро. Наличие уплотнителя надо проверять на складе перед выпиской товара
Целесообразно объединить в один стояк кухню и ванную комнату. Для подключения всех точек сброса воды, кроме туалета, используется труба сечением 50 мм. Для туалета – 110 мм.
Значение угла наклона зависит от диаметра трубы. Для 50 мм разность высот двух точек, удаленных друг от друга на 1 метр, составляет 30 мм. Это значение строго зафиксировано в нормативной документации.
При меньшей разности вода будет застаиваться. При большем значении твердые фракции налипнут на стенках трубы, а за счет возросшей скорости сброса велика вероятность срыва ближайшего гидрозатвора .
Внутренняя канализация в частном доме своими руками. Как сделать канализацию в частном доме?
Обеспечение комфорта и качественной жизни в загородном доме является важным моментом для любого владельца такой постройки. Одним из факторов, которые позволяют обеспечить комфортную жизнь, является удобство оттока использованной воды и продуктов жизнедеятельности. Правильно рассчитанная на стадии проектирования и впоследствии правильно построенная канализация в частном доме будет залогом длительной эксплуатации, при которой не возникнет никаких проблем. Подобную конструкцию можно создать своими руками, если подойти к вопросу с максимальной ответственностью.

Основные требования
Во избежание каких-либо проблем в процессе создания канализации в собственном доме, лучше всего максимально следовать в данном процессе всем требованиям и стандартам, что расписаны в нормативной документации – СНиП. В этом случае все точно будет функционировать безотказно на протяжении длительного периода времени.
В какой угодно постройке, где проложен водопровод и есть забор воды, должна быть выполнена система, которая будет выводить стоковые массы. Механизмы водоотвода должны быть созданы и на участках. В целом такая сеть сможет не только обеспечить комфортную жизнь, но и не навредит экологии, а также существенно увеличит время пользования зданием.
Обычно канализация состоит из следующих систем:
- ливневой, которая отводит воду;
 - наружной;
 - внутренней.
 
Их необходимо проложить так, чтобы были соблюдены различные строительные сантребования к канализации в собственном доме.
Среди таких требований можно назвать:
- обеспечение нормального очищения;
 - отсутствие риска в вопросе затопления постройки;
 - обеспечение необходимого объема сточных вод;
 - герметичное накапливание и транспортировка сточных вод.
 
Если говорить о требованиях к внутренним системам такого типа, то состоять они должных из следующих элементов:
- стояка, к которому прикрепляются все трубы;
 - разведения труб, что осуществляет перекачивание сточных вод в направлении стояка;
 - сантехприборов для водоотвода.
 


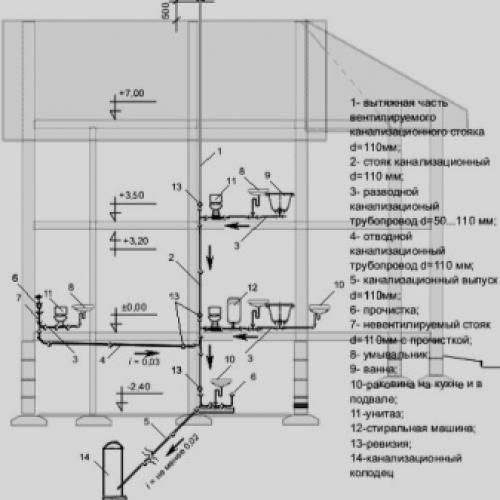
По нормам в механизме, часть которого расположена в постройке, должно быть достаточно места для свободного транспортирования жидкости от мест, где осуществляется слив до труб, которые осуществляют вывод за пределы постройки. При прокладывании канализации внутри постройки используют трубы из чугуна либо каких-то полимеров. На выходе размер такой трубы должен составлять 11 сантиметров. Естественно, что в данном механизме должна быть еще и вентиляция. Обычно ее проводят через стояк. Над каждым элементом делают вытяжное место, выходящее на крышу.


Если говорить о проекте наружных систем, то его создание осуществляется с учетом требований, прописанных в СНиП за номером 2.04.03-85.
По этому нормативному документу следует учесть следующие моменты:
- в механизме должны устанавливаться колодцы для обслуживания и очищения;
 - для вычищения стоков нужна установка с применением биометодов;
 - если речь идет о самотечной сети, то применяют полимерные, керамические или асбестоцементные трубы;
 - трубы, которые размещены за границами постройки, должны быть в диаметре около пятнадцати сантиметров и заложены на уровне десяти-двенадцати сантиметров;
 - если в строении мало этажей, то можно скооперировать несколько домов в единую сеть;
 - если нельзя устроить самотечную систему, то лучше сделать выбор в пользу напорной канализации.
 


Еще один важный момент – подбор конструкции. Это действительно важно при проектировании канализационной автономной сети.
Тут могут быть три варианта септиков, которые используются:
- аэротенки;
 - накопительный септик;
 - очистной.
 
Теперь скажем о них чуть подробнее. Аэротенки – новейшие решения с использованием нескольких очистительных методик. После применения подобного септика жидкость очищается почти до 100-процентного значения. Воду можно легко выводить в землю, водоем и применять для полива. Септик накопительной категории является улучшенным вариантом выгребной ямы, в которой очистка не осуществляется, а лишь собираются стоки. Когда септик наполняется до определенного уровня, появляется необходимость его очистки. Обычно это осуществляется при помощи специального ассенизаторского оборудования.
Если говорить об отличиях от выгребной ямы, то никакой фильтрации в грунт в этом случае не осуществляется. Это значит, что никакого вреда экологии не наносится. Но все же данный вид септика применяется в последние годы крайне нечасто по причине дороговизны стоимости услуг специальной ассенизаторской техники. Такой тип можно использовать лишь тогда, если в доме вы проживаете сравнительно нечасто.
Канализация в частном доме нормы. Канализация: общие требования
5.1.1 Система канализации одноквартирного дома присоединяется к централизованной или групповой наружной сети, а при их отсутствии или в случаях, если это предусмотрено в задании на проектирование, устраивается в качестве автономной. Решение по выбору индивидуальной системы канализации должно быть согласовано с местным органом Госсанэпиднадзора, а при сбросе сточных вод в поверхностный водоем - также с местным органом природоохраны.
5.1.2 Система канализации включает: присоединенная к централизованной или групповой сети - внутреннюю сеть канализации , выпуск из дома и отводящий трубопровод; автономная - внутреннюю сеть канализации , выпуск из дома, отводящий трубопровод, септик и очистные сооружения; в зависимости от принятой схемы канализации наружная сеть может включать фильтрующий колодец, поля фильтрации, насосные установки, очистную установку заводского производства.
 Автономную систему канализации допускается устраивать с использованием люфт-клозетов или биотуалетов и выгреба.
5.1.3 Агрегаты, изделия и материалы, применяемые при устройстве системы канализации , должны удовлетворять требованиям 4.1.4.
5.1.4 При устройстве выпуска из дома, прокладке трубопроводов и установке приборов должны соблюдаться требования 4.1.5.
5.1.5 При проектировании и устройстве системы канализации должны соблюдаться общие требования СНиП 2.04.01, СНиП 2.04.03, СНиП 3.05.01 и СНиП 3.05.04, а также дополнительные требования настоящего Свода правил.
Канализация в частном доме, как правильно сделать. Что необходимо знать перед проектированием
Для проектирования системы нужно дать ответы на такие вопросы:
- Есть ли возможность подключиться к городской магистрали, придётся ли производить только сбор канализационных отходов или необходимо организовать ещё и их очистку?
 - Какой объём сточных вод будет перерабатываться? Это зависит как от количества и сезонности проживающих в доме людей, так и от наличия и разновидности водоразборных точек.
 
Рисунок для наглядности — расход воды в сутки
- Следует выяснить глубину, на которую промерзает почва. Это нужно для правильного заглубления канализационного выпуска.
 - УГВ – отметка, на которой располагается зеркало грунтовых вод (как проводятся инженерно-геологические изыскания читайте в статье). Если они расположены высоко, на приусадебном участке может сооружаться ещё и канализация для сбора ливневых стоков.
 - Необходимо оценить, способствует ли рельеф участка тому, чтобы стоки могли сливаться самотёком. В противном случае, придётся задействовать фекальный насос , и нужно сразу определить место, где он должен быть установлен.
 
Как правильно сделать канализацию в частном доме, если придётся пользоваться насосом
- При устройстве очистных сооружений, нужно сразу определиться с их типом, рассмотреть возможность доступа ассенизационной техники (как проводится откачка и чистка септиков читайте в статье).
 - Необходимо точно установить тип грунта на участке, в соответствии с которым принимается решение либо по устройству дренажного колодца , фильтрационных траншей или полей.
 - Требуется начертить схему с указанием всех видов сантехнического оборудования. При этом надо учитывать вариант прокладки трубопровода: внутри пола или поверхностно, чтобы понимать, придётся ли производить какие-либо демонтажные работы.
 
Для чего нужна схема с разводкой внутренней сети? В первую очередь, чтобы правильно рассчитать количество необходимых материалов и точно определить место их нахождения в системе.
Слив в частном доме своими руками. Консервация колодца на зиму
Для подготовки дачи к зиме насос из колодца требуется убрать, систему освободить от воды. Если оставить помпу на зиму, она может замерзнуть или ее украдут.
Подготовка колодца к зиме заключается в утеплении. Если в нем замерзает вода, шахта повреждается. При плохой гидроизоляции между стыками железобетонных колец образуется ледяная пробка. Ствол в этом случае перекашивается, потребуется ремонт.
Вероятность замерзания колодца зависит от его глубины – чем ниже уровень воды, тем меньше такая возможность. Если сооружение в низине, где водоносный пласт в 1-2 м от поверхности, колодец промерзает через стенки ствола. Если он из дерева, то мороз не страшен. Но большинство шахт сейчас железобетонные, риск замерзания больше.
Утепляют прежде всего ствол колодца на входе. Хорошо надстроить оголовок, который также защитит от снега, листьев. Самый теплый материал – деревянный сруб с крышей. Если используют МДФ, тонкие доски, требуется дополнительное утепление термоизоляционными материалами.
На зимний период в ствол можно установить утеплительную крышку. Ее место – ниже промерзания почвы, но выше воды.
- Из фанеры вырезают 2 диска по внутреннему размеру шахты. Нижний покрывают водостойкой краской, оборачивают пленкой, чтобы предохранить от гниения.
 - Подвешивают диск в стволе на тросах. Сверху укладывают теплоизолятор.
 - Второй диск опускают, чтобы не доходил до утеплителя на 0,5 м. На нем еще слой теплоизоляционного материала. Между фанерными дисками образуется воздушная прослойка, повышающая качество утепления.
 
Колодец закрывают крышкой, чтобы не попадал мусор.
Если вода близко к поверхности, она обязательно зимой замерзнет. Утепление входа не принесет желаемого результата – холод проникнет сквозь стенки.
Поступают таким образом:
- вокруг шахты на глубину 1 м роют котлован шириной 0,5 м;
 - оборачивают верхнее кольцо утеплителем;
 - траншею засыпают слоем щебенки толщиной 0,5 м;
 - сверху забрасывают землей.
 

Подготовка колодца к зиме.
Подготовленный к зиме колодец весной сразу готов к эксплуатации. В него опускают насос, подключают к водопроводу и электричеству, начинают пользоваться.
Как показывает практика, сделать слив из душа на даче, бани или кухни, которыми пользуются не круглогодично, а лишь в теплый период, любому мужчине, обладающему простейшими сантехническими навыками, совсем не сложно. Ознакомьтесь с инструкцией, посмотрите тематической
Об организации на даче своими руками слива из душа, бани и кухонной раковины и пойдёт речь в данном материале.
