Зачем нужен фановый стояк канализации в частном доме. Как определить, требуется ли установка фановой трубы
- Зачем нужен фановый стояк канализации в частном доме. Как определить, требуется ли установка фановой трубы
- Канализация без фановой трубы. Функциональные особенности
- Фановый стояк или клапан. Что лучше: клапан или фановый стояк
- Фановый стояк в многоэтажном доме. Нужна ли фановая труба в частном доме?
- Канализационный стояк в частном доме. Как сделать канализацию в частном доме?
- Нужна ли фановая труба в частном одноэтажном доме. Фановая труба: нюансы монтажа и подключения
- Фановая труба в одноэтажном доме. Необходимость применения фановых труб
- Зачем канализационный стояк выводят на крышу. Что это такое
- Фановый стояк в одноэтажном доме. Правила монтажа
Зачем нужен фановый стояк канализации в частном доме. Как определить, требуется ли установка фановой трубы
В этом вопросе гадать не нужно: нормами СНиП 2.04.01-85 все четко регламентировано. Если дом не относится к категориям «одноэтажный» и «частный», он должен быть оборудован фановым стояком.
Нужен ли фановый стояк в одноэтажном и двухэтажном доме
Как мы уже определились, если дом двухэтажный и к тому же многоквартирный, вентиляционный канализационный контур нужен обязательно.
А вот с одноэтажным, пусть даже частным домом, все не так однозначно. Фановый стояк в частном одноэтажном доме может потребоваться, если при одномоментном сбросе стоков жидкость полностью, пусть и ненадолго, перекрывает сечение канализационной трубы. В этом случае велика вероятность срыва гидрозатворов сантехнического оборудования и выброса сточных газов в помещение.
В обозначенную зону риска входят дома, в которых:
- Больше одного этажа и при этом на каждом оборудован санузел, пусть даже с отдельной канализационной веткой.
- Диаметр сточных стояков меньше 110 мм.
- К системе общедомовой канализации подключены джакузи или бассейны.
- Септик удален от дома на расстояние ближе 8 метров.
- Не выдержан норматив уклона сточного трубопровода .
Даже если у вас одноэтажный дом, но при этом в нем обустроено несколько санузлов, подключение фановой трубы обязательно.

Как проверить есть ли в доме фановая сточная труба
Нет ничего проще:
- Если вы счастливый владелец квартиры, расположенной на последнем этаже многоэтажного дома, просто зайдите в санузел, в котором расположен канализационный стояк. Если от него вверх уходит труба, все замечательно. Кстати, нелишним будет подняться на чердак и убедиться, что эта труба выведена за пределы кровли.
- Если же вам не так повезло и квартира расположена несколько ниже, просто прислушайтесь к звукам, издаваемым канализацией. Характерное хлюпанье — сигнал того, что фановой трубы либо нет вообще, либо она забита.
- Систематический срыв гидрозатворов и зловонный аромат также укажут на проблемы с вентиляционной системой канализации.
Можно ли обойтись без нее
В очень редких случаях — да. Но тогда канализационная магистраль должна оборудоваться обратным или вакуумным клапаном (аэратором). Что лучше, рассмотрим ниже.
Канализация без фановой трубы. Функциональные особенности
При резком сливе большого объема воды в трубопровод малого сечения часто происходит разрушение труб, гидравлический удар. Поэтому фановая труба для канализации в частном доме является неотъемлемым элементом внутренних инженерных сетей. За счет ее использования канализация в частном доме имеет дополнительный приток воздуха, а дополнительно конструкция исключает перепады давления.
Многоквартирный дом без фановой трубы способен функционировать только с установкой душевой кабины, где расход воды является небольшим. Стандартная ванная относится к пиковым расходам, во время сброса стоков с санитарного прибора сечение труб максимально заполнено, приток свежего воздуха становится минимальным.

Функциональные особенности фановых труб
Подобная ситуация в домах без фановой трубы провоцирует затопление первых этажей здания в момент массового слива воды. Установка дополнительной конструкции позволит продлить жизненный цикл канализационного стояка, особенно пластикового, а также выровняет работу домой вентиляции в канализационных трубах.
Многие мастера советуют сузить диаметр трубопровода, мотивируя отсутствием расходы на чердаке дома. Нормативные документы, а также опыт эксплуатации инженерных сетей в частном секторе и многоквартирных домах вынуждает отказаться от таких манипуляций.
Канализационные трубопроводы от санитарного узла, где установлен унитаз, являются диктующими. Сливной патрубок унитаза имеет сечение 110 мм, стояк бытовой канализации обязан повторять его размер или быть больше. Если на стояке установлено два унитаза и две ванны, необходимо провести гидравлический расчет пропускной способности стояка.
Фановый стояк или клапан. Что лучше: клапан или фановый стояк
Существует альтернатива фановому стояку – это воздушный клапан. Клапан может монтироваться как на какие-то горизонтальные участки трубопровода, так и на основной стояк. Принцип работы воздушного клапана основан на механическом действии воздушного давления при его значительном уменьшении в системе канализации.
При появлении этой ситуации на мембрану или шток воздушного клапана воздействует разница внешнего и внутреннего давлений, в итоге происходит открытие клапана и система нормализируется. Его установка имеет ряд основных достоинств:
- простой монтаж. Если планируется установка на основной стояк, то можно воспользоваться специальными переходниками с одного размера на другой;
- нет необходимости выводить отдельный трубопровод вне дома.
Зачастую вертикальную магистраль стояка устанавливают лишь в чердачное помещение, и здесь уже ставят воздушный клапан. Однако, невзирая на эти достоинства, его установка может повлечь некоторые проблемы:
- есть эксплуатационные температурные границы. Идеальный диапазон 10-45°С. При снижении температуры на его поверхности возможно образование льда, что привет к поломке оборудования;
- как и какой-либо механизм, воздушный клапан может просто напросто сломаться, и система контроля не будет работать.
воздушный клапан может реагировать лишь на определенные перепады давления. Установка фановой трубы выполняет роль выравнивания гораздо плавней, при этом его работа почти не зависит от разницы внутренней и наружной температур;Выбор определенного варианта нормальной компенсации давления в трубопроводе будет зависеть от внутреннего канализационного проекта. Для квартир желательно использовать воздушный клапан, а для индивидуальных построек – фановый стояк.
Фановый стояк в многоэтажном доме. Нужна ли фановая труба в частном доме?
Сегодня большинство частных домов оборудованы туалетными и ванными комнатами. Но ими можно пользоваться лишь при правильном обустройстве. Чтобы все сантехнические системы функционировали качественно, жилые комнаты не наполнялись неприятными запахами из канализации или сливного бачка, необходимо установить фановый стояк с обратным клапаном, вовремя проводить прочистку труб, осуществлять ремонт. А если фановый стояк вышел из строя, нужно вовремя осуществить его замену. При таких условиях сточные воды внутренней канализации будут незаметно уходить в канализационную систему, а пользование санузлом принесет удовлетворение.
Многие спрашивают, нужна ли фановая труба в частном доме, если жилище оснащено хорошей вентиляцией, одним унитазом, а все члены семейства – достаточно аккуратные люди? Ответ банально прост: нужна, более того – необходима.

Существует мнение, что устройство монтируют только при наличии нескольких санузлов. Это не так. Связано это с тем, что жизнь людей сопровождается выделением отходов органического происхождения. А поскольку законов природы никто не отменял, то распад масс сопровождается выделением газов, которые накапливаются во внутренней канализации. Для водных стоков, которые находятся под некоторым давлением, важно, чтобы этот параметр был ниже. Когда же отсутствует стояк для отведения газов, куда они должны деваться? Правильно, неприятные запахи из канализации будут распространяться по комнатам.

Схема монтажа фановой трубы в частном доме
Начальной точкой отсчета качественной канализационной системы является система слива. А конечной – вытяжная труба, которая обязательно должна выходить на крышу. Высота фановой трубы над кровлей не должна превышать 30-35 см.
Важно! Не все знают, что фановую трубу нельзя выводить на чердак, поскольку большое количество влаги, исходящей из нее, будет отрицательно влиять на деревянные детали, кровельное покрытие.
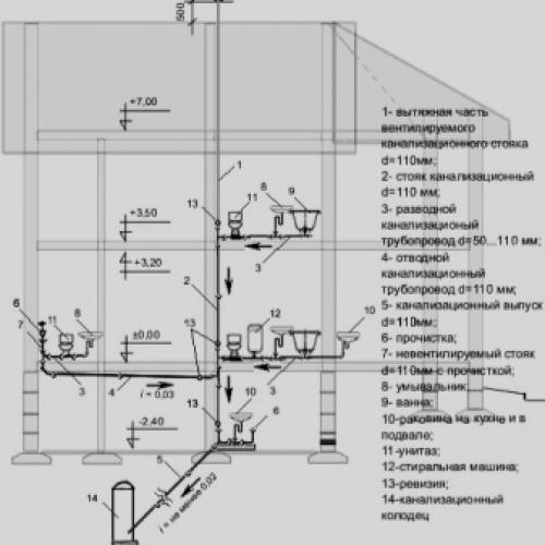
Канализационный стояк в частном доме. Как сделать канализацию в частном доме?
Обеспечение комфорта и качественной жизни в загородном доме является важным моментом для любого владельца такой постройки. Одним из факторов, которые позволяют обеспечить комфортную жизнь, является удобство оттока использованной воды и продуктов жизнедеятельности. Правильно рассчитанная на стадии проектирования и впоследствии правильно построенная канализация в частном доме будет залогом длительной эксплуатации, при которой не возникнет никаких проблем. Подобную конструкцию можно создать своими руками, если подойти к вопросу с максимальной ответственностью.

Основные требования
Во избежание каких-либо проблем в процессе создания канализации в собственном доме, лучше всего максимально следовать в данном процессе всем требованиям и стандартам, что расписаны в нормативной документации – СНиП. В этом случае все точно будет функционировать безотказно на протяжении длительного периода времени.
В какой угодно постройке, где проложен водопровод и есть забор воды, должна быть выполнена система, которая будет выводить стоковые массы. Механизмы водоотвода должны быть созданы и на участках. В целом такая сеть сможет не только обеспечить комфортную жизнь, но и не навредит экологии, а также существенно увеличит время пользования зданием.
Обычно канализация состоит из следующих систем:
- ливневой, которая отводит воду;
- наружной;
- внутренней.
Их необходимо проложить так, чтобы были соблюдены различные строительные сантребования к канализации в собственном доме.
Среди таких требований можно назвать:
- обеспечение нормального очищения;
- отсутствие риска в вопросе затопления постройки;
- обеспечение необходимого объема сточных вод;
- герметичное накапливание и транспортировка сточных вод.
Если говорить о требованиях к внутренним системам такого типа, то состоять они должных из следующих элементов:
- стояка, к которому прикрепляются все трубы;
- разведения труб, что осуществляет перекачивание сточных вод в направлении стояка;
- сантехприборов для водоотвода.


По нормам в механизме, часть которого расположена в постройке, должно быть достаточно места для свободного транспортирования жидкости от мест, где осуществляется слив до труб, которые осуществляют вывод за пределы постройки. При прокладывании канализации внутри постройки используют трубы из чугуна либо каких-то полимеров. На выходе размер такой трубы должен составлять 11 сантиметров. Естественно, что в данном механизме должна быть еще и вентиляция. Обычно ее проводят через стояк. Над каждым элементом делают вытяжное место, выходящее на крышу.


Если говорить о проекте наружных систем, то его создание осуществляется с учетом требований, прописанных в СНиП за номером 2.04.03-85.
По этому нормативному документу следует учесть следующие моменты:
- в механизме должны устанавливаться колодцы для обслуживания и очищения;
- для вычищения стоков нужна установка с применением биометодов;
- если речь идет о самотечной сети, то применяют полимерные, керамические или асбестоцементные трубы;
- трубы, которые размещены за границами постройки, должны быть в диаметре около пятнадцати сантиметров и заложены на уровне десяти-двенадцати сантиметров;
- если в строении мало этажей, то можно скооперировать несколько домов в единую сеть;
- если нельзя устроить самотечную систему, то лучше сделать выбор в пользу напорной канализации.


Еще один важный момент – подбор конструкции. Это действительно важно при проектировании канализационной автономной сети.
Тут могут быть три варианта септиков, которые используются:
- аэротенки;
- накопительный септик;
- очистной.
Теперь скажем о них чуть подробнее. Аэротенки – новейшие решения с использованием нескольких очистительных методик. После применения подобного септика жидкость очищается почти до 100-процентного значения. Воду можно легко выводить в землю, водоем и применять для полива. Септик накопительной категории является улучшенным вариантом выгребной ямы, в которой очистка не осуществляется, а лишь собираются стоки. Когда септик наполняется до определенного уровня, появляется необходимость его очистки. Обычно это осуществляется при помощи специального ассенизаторского оборудования.
Если говорить об отличиях от выгребной ямы, то никакой фильтрации в грунт в этом случае не осуществляется. Это значит, что никакого вреда экологии не наносится. Но все же данный вид септика применяется в последние годы крайне нечасто по причине дороговизны стоимости услуг специальной ассенизаторской техники. Такой тип можно использовать лишь тогда, если в доме вы проживаете сравнительно нечасто.
Нужна ли фановая труба в частном одноэтажном доме. Фановая труба: нюансы монтажа и подключения

Трубопроводы канализации хорошо известны современным людям. Но отводить наружу требуется не только сами сточные воды и твердые частицы – не меньшую неприятность доставляют различные запахи, бороться с которыми помогает как раз фановая труба.
Особенности
Фановая труба – это такой фрагмент канализации, который связывает стояк, отводящий нечистоты, с атмосферой. Благодаря такой конструкции понижается опасность сточных вод, исключается скопление дурных «ароматов». Только в одноэтажных постройках допускается отсутствие подобного технического узла. А вот когда этажей хотя бы два, либо в доме размещается больше одного санитарного узла, без него обходиться нельзя, иначе масштабный выброс воды из бачка и провоцируемое им разрежение в отводе спровоцирует ухудшение атмосферы в доме.
Действующие нормативы предписывают ставить фановую трубу в следующих случаях:
- в домах с количеством оснащенных водопроводом и канализацией уровней больше одного;
- в том случае, если поперечное сечение стояков составляет 5 см и более;
- если дом оборудован бассейном или иным резервуаром, сбрасывающим существенное количество стоков;
- в том случае, когда септик находится рядом с жилищем.
Виды
Для канализации можно применять фановые трубы, выполненные из чугуна либо пластмассы. Чугун совместим исключительно с чугуном, пластик же гораздо универсальнее, поэтому пластмасса рекомендуется при ремонте и замене поломанных деталей. Металлические изделия в настоящее время редко используются еще и потому, что они недостаточно гибкие и ассортимент их слишком скуден. Чаще всего монтаж производится в канализационную магистраль диаметром 110 мм.
Профессионалы считают, что фановые магистрали из разнородных материалов не слишком прочны. В идеале все детали канализации должны быть подобраны из одной субстанции. Если такое решение невозможно, то стоит проконсультироваться у квалифицированных инженеров, как будет вести себя то или иное сочетание применяемых материалов. Фановая труба может иметь практически любую геометрию – допустимо вести ее по вертикали либо по горизонтали. Есть даже отдельные варианты, которые монтируются под наклоном.
Стоит отметить, что фановая магистраль должна быть крупнее по сечению, нежели основная трасса. Поэтому выбор относительно легкого и весьма прочного пластика получает дополнительный перевес над использованием чугунной линии сброса запахов.

Выход из любой фановой системы непременно размещается за границей жилого дома, иначе никакие усилия не помогут справиться с появившимися вредными запахами.
При монтаже как чугунных, так и пластмассовых трубопроводов используются те же изделия, что и для сточных каналов:
- фитинги;
- трубы;
- отводы;
- манжеты из резины;
- переходные блоки;
- хомуты (с их помощью магистраль крепится на стены и иные поверхности).


Устройство
Фановая труба в частном доме образуется индивидуальными отводами на сливные точки и стояки. Если жилище довольно большое, а ванные и туалетные комнаты удалены друг от друга, то нужна схема с несколькими фановыми стояками – это поможет избежать размещения длинных горизонтальных участков трубопровода с их неизбежно ослабленной тягой. Если несколько отводов соединяются в единый контур, то рекомендуется монтировать трубу с незначительным уклоном. Стоит понимать, что размещение исходного участка в теплой комнате, а финального – на улице, крайне полезно для интенсивного воздушного обмена.
Чем быстрее происходит переток воздуха по такому каналу, тем лучше поддерживается свежая атмосфера в жилище. Так как ключевая часть фановых труб ставится вертикально, то нужно внимательно подойти к закреплению конструкций. Присоединение достигается за счет хомутов из металлических материалов. Некоторые специалисты считают необходимым монтаж звукоизоляции фановых труб за счет рулонов минеральной ваты и плитных конструкций.
Фановая труба в одноэтажном доме. Необходимость применения фановых труб
Согласно строительным нормативам, система канализации без фановой трубы может быть сооружена в одноэтажном доме. Такой допуск основан на том, что в маленьких домах не может образоваться одновременно большой объем сточных вод.

Однако фановая труба для канализации в частном доме не будет лишней и в малоэтажной постройке. Установка трубы является необходимостью в том случае, если при одновременном сливе большого объема воды полностью перекрывается сечение трубы стояка.
В большинстве случаев, размеры отверстия в сливном бачке составляют 70 мм, а отвод от унитаза выполняется с использованием трубы, имеющей диаметр 110 мм. Отвод от ванны собирают из труб сечением до 50 мм. Таким образом, при использовании только одного предмета сантехники возникнуть полное заполнение стояка не может.
К остальным сантехническим приборам присоединяются трубы для канализации небольшого диаметра. Поэтому их применение не оказывает существенного влияния на общий объем одновременного слива. Поэтому в одноэтажных домах установка фановой трубы производится по желанию.
Совет! Как правило, самое большое количество стоков образуется, когда слив воды осуществляется одновременно из унитаза и ванны.
Иное дело – дом от двух этажей и выше. Разумеется, речь идет о тех случаях, когда санузлы расположены на каждом из этажей. В этом случае водопроводом могут пользоваться одновременно несколько человек.

А при одномоментном сливе воды из двух унитазов, сечение стояка будет полностью перекрыто, поэтому в таких домах установка фановых труб является обязательной. В высотных домах нормальное функционирование системы канализации без фановой трубы невозможно, поскольку в таком доме канализацией одновременно может пользоваться большое количество людей.
Следовательно, вероятность того, что все сечение стояка будет занято стоками, возрастает многократно. Таким образом, в обязательном порядке нужно включать фановые трубы в систему, если:
- Для сооружения стояка была использована труба с сечением менее 110 мм.
- В доме имеется несколько санузлов и не исключена возможность, что ими будут пользоваться одновременно.
- Если в доме имеется устройство, которое способно обеспечить одномоментное появление значительного количества стоков. К числу таких устройств можно отнести, например, бассейн.
- Дом оборудован местной канализацией, и очистная установка находится на небольшом расстоянии от дома. В этом случае, вентиляция из канализационных труб помогает не допустить проникновение в помещения дома запаха газов, образующихся при разложении органики в септике.
Зачем канализационный стояк выводят на крышу. Что это такое
Когда строят частный дом, необходимо подвести к нему различные коммуникации. Одной из них является канализация. На первый взгляд можно подумать, что для неё достаточно оборудовать только канализационный сток. На самом деле этого недостаточно.
Для того, чтобы пояснить назначение фанового стояка нужно вспомнить о том, как происходит слив в унитазе более подробно. После того, как сливаются нечистоты, следом туда попадает определённое количество воды. Часть её остаётся в унитазе. Она фактически является гидрозатвором, роль которого, в частности, состоит в том, чтобы неприятный запах от стоков не попадал в жилые помещения. Важно понимать, что этот защитный слой воды находится внутри унитаза.
Если в доме установлено несколько таких сантехнических приборов, то в каждом из них, который не используется в данный момент, есть такой гидрозатвор.
Когда в одном из унитазов происходит слив, то в течение небольшого отрезка времени сразу после вытекания нечистот и слитой воды здесь понижается давление. Поскольку все остальные соединены с этой трубой, в них нарушаются гидрозатворы и неприятный запах проникает в помещения.
Схема устройства и работы вентиляционной системы канализации Источник profidom.com.ua
Важно отметить, что такая ситуация существует не только по отношению к унитазам, а ко всем стокам, которые подсоединены к канализации. Например, речь может идти о гидрозатворе в ванной или в мойке, если они подключены указанным образом.
Этой ситуации можно было бы избежать, если бы у трубы был дополнительный выход, через который в нее мог свободно поступать воздух. При этом низкое давление в месте слива не возникало бы и гидрозатворы нигде не были бы нарушены.
Через подобную трубу также могли бы выходить запахи из канализации. Фановый стояк – это труба, выполняющая указанные функции, которая соединена с канализационной системой дома и выведена за его пределы.
Насколько это необходимо. На самом деле, рассматриваемая система активно применяется в многоквартирных домах. В канализационной системе сток из квартир происходит в вертикальную трубу.
Система вертикальных труб канализации, выполняющая функцию фанового стояка Источник ar.decorexpro.com
Нижний конец её подсоединён к системе стока, а верхний выведен на кровлю и фактически выполняет функцию фанового стояка.
Фановый стояк в одноэтажном доме. Правила монтажа

Для фанового отвода следует использовать трубу с диаметром, равным размеру канализационного стояка. Чаще всего он составляет 100-110 миллиметров. Соответствие этого параметра обеспечивает качество вентиляции и предотвращение образования вакуума в стояке для стоков.
Собирают вентиляцию по направлению снизу вверх. Самая нижняя точка фанового стояка канализации в частном одноэтажном доме находится на уровне фундамента. Систему собирают из отдельных частей с раструбами.
Для стыковки чугуна с пластиком потребуются соответствующие переходники.
По мере сборки фановый стояк крепят к стенке металлическими хомутами. Преимуществом этого вида крепежа является наличие винтовой резьбы. Это облегчает центровку стояка.
Есть два способа установки крепежа:
- к потолку и полу;
- по всей длине стояка.
Использовать второй способ предпочтительнее – конструкция приобретает большую прочность. Следующий шаг сборки – подключение к канализационному стояку с помощью тройников либо отводов.
Как делается вывод через крышу

Лучше всего работает вертикальный вывод фановой трубы на крышу. Для монтажа такой конструкции в крыше вырезают отверстие с запасом 1-2 сантиметра.
Фановый стояк канализации пропускают наружу, а стык на чердаке герметизируют мастер-флешами. Эти устройства легко собираются, плотно примыкают к стыкуемым поверхностям и обеспечивают защиту от протеканий. Иногда края уплотнителя смазывают герметиком.
В некоторых случаях вентиляционный стояк можно вывести через фронтон.
Этот способ монтажа отличается простотой и позволяет сохранить кровлю без повреждений, но требует устройства изгиба. Такие узлы рекомендуется монтировать с помощью гибкой гофры.
Оголовок вентиляции нужно размещать подальше от окон и балконов, чтобы исключить проникновение неприятных запахов в жилые помещения.
Как определить нужную высоту

Высоту фановой трубы для канализации в частном доме определяют в зависимости от вида и назначения крыши. Согласно строительным нормам и правилам минимальное расстояние от верха вентиляционного стояка должно составлять 30 см на плоской поверхности, где выполнение работ не предусмотрено, и 3 метра на эксплуатируемой крыше.