Схема разводки труб для канализации в частном доме. Разводка канализации в частном доме: схема и устройство
- Схема разводки труб для канализации в частном доме. Разводка канализации в частном доме: схема и устройство
- Разводка канализации под полом. Этапы монтажа наружного трубопровода
- Разводка канализации под домом. Как сделать канализацию в частном доме?
- Какую трубу использовать для канализации в частном доме. Классификация канализационных труб по диаметру Существуют некоторые стандартные значения диаметров труб, которые используются при монтаже канализации. Так для общего вывода канализации применяются трубы диаметром 100-110 мм, а внутренние сети создаются из 50-мм труб.
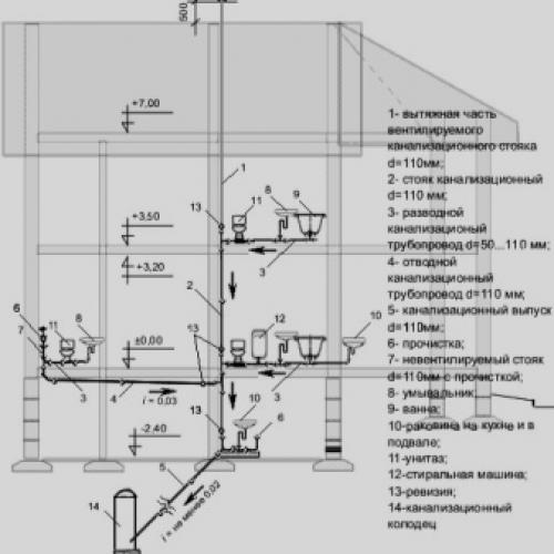
Схема разводки труб для канализации в частном доме. Разводка канализации в частном доме: схема и устройство
Разводка канализации в частном доме или квартире, выполненная с ошибками и нарушением нормативных требований, создаст серьезные проблемы и потребует сложных ремонтных работ.
Для создания канализационной системы частного дома не требуется получать никаких разрешительных документов. Это заметно упрощает процесс создания сети, в отличие от работ с водопроводом, газом или иными коммуникациями. Избежать этого можно, если заранее создать проект и тщательно распланировать монтажные работы с соблюдением всех правил. Рассмотрим этот вопрос внимательнее.
Размещение элементов системы
Канализация — это взаимосвязанная система, где каждый элемент оказывает влияние на общую конфигурацию. Разводка труб канализации в частном доме выполняется с учетом специфики, расположения и технологических потребностей всех сантехнических приборов, установок или отделений. Необходимо обеспечить выполнение обязательных условий:
- трубы должны иметь уклон, соответствующий рекомендованным величинам для данного диаметра;
- размер труб должен обеспечивать достаточную пропускную способность;
- конфигурация канализационных сетей не допускает резких поворотов, сложных изгибов или изменения направления уклона;
- необходимо наличие ревизионных люков, должен быть обеспечен доступ к трубам для проведения ремонтных работ;
- обязательно наличие фановой трубы, обеспечивающей вентиляцию системы.
Соблюдение этих требований определено СНиП и прочими нормативными документами. Кроме того, в грамотной разводке канализационных труб в частном доме в первую очередь заинтересован его владелец, которому придется ежедневно ей пользоваться. Все ошибки будут отражаться на уровне комфорта и качестве проживания в доме, поэтому важно отнестись к созданию системы с максимальной тщательностью.
Выбор и составление схемы
Начинать создание автономной канализационной системы надо с определения ее конфигурации. В этом неоценимую помощь способна оказать заранее составленная схема. Где отображаются все точки установки сантехнических приборов, расстояния и уклоны, ось монтажа стояка и прочие нужные и важные особенности прокладки трубопроводов. При создании схемы надо учитывать специфику и требования к определенным участкам:
- канализационные отводы от кухонной мойки, умывальника, ванны или душевой кабины должны состоять из труб диаметром 50 мм;
- стояк канализации в частном доме, а также отвод от унитаза, присоединенный к нему, должны иметь диаметр 110 мм;
- все элементы горизонтальной части системы должны располагаться с возрастанием диаметра в направлении стояка, но не наоборот;
- оптимальный вариант — использование пластиковых труб;
- канализационный стояк располагается только вертикально. Ревизионный люк в нем должен быть обязательно, в доступном и удобном для выполнения различных работ месте.

Разводка канализации под полом. Этапы монтажа наружного трубопровода
- На дно траншеи засыпается песок (слой 50 мм) и уплотняется вручную;
- Подготавливают необходимые детали – трубы, фасонные части, уплотнители и пр.
- Прокладка начинается от фундамента. Как правило, отверстие для вывода канализации организуют еще в период строительства фундамента. Но если этого сделано не было, применяют метод алмазного сверления.
- Для получения более плотного соединения используют силиконовые смазку. Для этого смазывающий состав наносят на гладкий конец трубы и вставляют его в раструб, в который вставлен уплотнительный манжет.
- Если необходимо устроить поворот, то следует использовать плавные отводы – фасонные детали, предназначенные для сбора наружных сетей.
- Если длина трубопровода более 12 метров, то следует на поворотах установить ревизионные колодцы.
- После того как трубопровод собран, производят проверку уклона, а затем засыпают трубы песком.
- При засыпке труб трамбовку песка следует производить по бокам труб. Уплотнять песок следует послойно. Песок, расположенный над трубами, трамбовать не нужно.
- Высота песчаной засыпки должна составлять не менее 15 см над трубой. После чего можно приступать к окончательной засыпке траншеи грунтом. Грунт следует засыпать горкой, так как впоследствии неизбежно произойдет оседание земли.
Таким образом, решая, на какой глубине прокладывать канализацию, следует учитывать опыт строительства и использования канализационных сетей в районе постройки. Если выбрана минимальная глубина заложения канализации (менее 0,7 метра), не стоит пренебрегать мероприятиями по утеплению труб, а также по предохранению их от повреждения проезжающим транспортом (если трубопровод проходит под проезжей частью).
Разводка канализации под домом. Как сделать канализацию в частном доме?
Обеспечение комфорта и качественной жизни в загородном доме является важным моментом для любого владельца такой постройки. Одним из факторов, которые позволяют обеспечить комфортную жизнь, является удобство оттока использованной воды и продуктов жизнедеятельности. Правильно рассчитанная на стадии проектирования и впоследствии правильно построенная канализация в частном доме будет залогом длительной эксплуатации, при которой не возникнет никаких проблем. Подобную конструкцию можно создать своими руками, если подойти к вопросу с максимальной ответственностью.

Основные требования
Во избежание каких-либо проблем в процессе создания канализации в собственном доме, лучше всего максимально следовать в данном процессе всем требованиям и стандартам, что расписаны в нормативной документации – СНиП. В этом случае все точно будет функционировать безотказно на протяжении длительного периода времени.
В какой угодно постройке, где проложен водопровод и есть забор воды, должна быть выполнена система, которая будет выводить стоковые массы. Механизмы водоотвода должны быть созданы и на участках. В целом такая сеть сможет не только обеспечить комфортную жизнь, но и не навредит экологии, а также существенно увеличит время пользования зданием.
Обычно канализация состоит из следующих систем:
- ливневой, которая отводит воду;
- наружной;
- внутренней.
Их необходимо проложить так, чтобы были соблюдены различные строительные сантребования к канализации в собственном доме.
Среди таких требований можно назвать:
- обеспечение нормального очищения;
- отсутствие риска в вопросе затопления постройки;
- обеспечение необходимого объема сточных вод;
- герметичное накапливание и транспортировка сточных вод.
Если говорить о требованиях к внутренним системам такого типа, то состоять они должных из следующих элементов:
- стояка, к которому прикрепляются все трубы;
- разведения труб, что осуществляет перекачивание сточных вод в направлении стояка;
- сантехприборов для водоотвода.


По нормам в механизме, часть которого расположена в постройке, должно быть достаточно места для свободного транспортирования жидкости от мест, где осуществляется слив до труб, которые осуществляют вывод за пределы постройки. При прокладывании канализации внутри постройки используют трубы из чугуна либо каких-то полимеров. На выходе размер такой трубы должен составлять 11 сантиметров. Естественно, что в данном механизме должна быть еще и вентиляция. Обычно ее проводят через стояк. Над каждым элементом делают вытяжное место, выходящее на крышу.


Если говорить о проекте наружных систем, то его создание осуществляется с учетом требований, прописанных в СНиП за номером 2.04.03-85.
По этому нормативному документу следует учесть следующие моменты:
- в механизме должны устанавливаться колодцы для обслуживания и очищения;
- для вычищения стоков нужна установка с применением биометодов;
- если речь идет о самотечной сети, то применяют полимерные, керамические или асбестоцементные трубы;
- трубы, которые размещены за границами постройки, должны быть в диаметре около пятнадцати сантиметров и заложены на уровне десяти-двенадцати сантиметров;
- если в строении мало этажей, то можно скооперировать несколько домов в единую сеть;
- если нельзя устроить самотечную систему, то лучше сделать выбор в пользу напорной канализации.


Еще один важный момент – подбор конструкции. Это действительно важно при проектировании канализационной автономной сети.
Тут могут быть три варианта септиков, которые используются:
- аэротенки;
- накопительный септик;
- очистной.
Теперь скажем о них чуть подробнее. Аэротенки – новейшие решения с использованием нескольких очистительных методик. После применения подобного септика жидкость очищается почти до 100-процентного значения. Воду можно легко выводить в землю, водоем и применять для полива. Септик накопительной категории является улучшенным вариантом выгребной ямы, в которой очистка не осуществляется, а лишь собираются стоки. Когда септик наполняется до определенного уровня, появляется необходимость его очистки. Обычно это осуществляется при помощи специального ассенизаторского оборудования.
Если говорить об отличиях от выгребной ямы, то никакой фильтрации в грунт в этом случае не осуществляется. Это значит, что никакого вреда экологии не наносится. Но все же данный вид септика применяется в последние годы крайне нечасто по причине дороговизны стоимости услуг специальной ассенизаторской техники. Такой тип можно использовать лишь тогда, если в доме вы проживаете сравнительно нечасто.
Какую трубу использовать для канализации в частном доме. Классификация канализационных труб по диаметру Существуют некоторые стандартные значения диаметров труб, которые используются при монтаже канализации. Так для общего вывода канализации применяются трубы диаметром 100-110 мм, а внутренние сети создаются из 50-мм труб.
Поскольку общий выводной канал системы обычно монтируется через унитаз, то объяснить такую разницу диаметров можно двумя факторами:- именно в туалете осуществляется единовременный слив большого количества воды;
- унитаз является единственным сантехническим устройством, которому приходится пропускать крупные фракции отходов, способных засорить трубы меньшего диаметра.
Второй нюанс заключается в том, что большая производительность канализации необходима, если одновременно будет осуществлен слив из всех сантехнических приборов, причем объем жидкости должен быть максимальным. Конечно, такая ситуация возникает редко, поэтому диаметр канализационной трубы для частного дома может быть довольно небольшим.Кроме того, нужно еще и понимать, как работает канализационная система в момент смыва. Когда он осуществляется, в систему попадает не только вода, но и определенное количество воздуха. Если диаметр канализации в частном доме большой, то проблем не будет, а вот в слишком узкой трубе может возникнуть излишнее давление, поскольку для воздуха там будет очень мало места. В результате внутреннее давление вытеснит этот воздух наружу, пробив гидрозатворы сантехники. Если повезет, то в помещение попадет только характерный канализационный запах, избавиться от которого будет проблематично. Гораздо хуже будет, если в жилые помещения начнут возвращаться стоки – сведение комфорта в доме будет гарантированно сведено к нулю.

- При обустройстве канализационной системы со стандартной нагрузкой достаточно использовать трубы с максимальным диаметром, не превышающим 100 мм. Конечно, такой вариант подходит только в том случае, если количество сантехники в доме не слишком велико. Обычно выполняют монтаж канализации из пластиковых труб .
- Сантехника, из которой необходимо выводить только воду и мелкие частицы грязи, может подключаться к канализации посредством 50-мм труб.
- Нужно всегда помнить о том, что в процессе эксплуатации трубы могут заиливаться и засоряться. Особенно это касается металлических изделий, внутренние стенки которых сильно подвержены такому влиянию.
- Для многоэтажных домов с количеством этажей до 5 можно использовать стояки диаметром 100 мм, а вот дома с большей этажностью необходимо оборудовать 150-мм трубами.
- Соединение нескольких вертикальных стояков с их последующим выводом в одну горизонтальную сеть нужно оборудовать трубами диаметром до 200 мм, поскольку нагрузка на конструкцию в таком случае будет довольно высока.
- Пластиковые трубы практически не подвержены внутренним засорениям, поэтому они являются гораздо лучшим решением при выборе материала для обустройства канализации. Выбирая между металлическими и пластиковыми изделиями, предпочтение стоит отдать второму варианту. Этот фактор позволяет менять чугунные трубы одного диаметра на пластиковые, диаметр которых будет на шаг меньше.