Проводка на кухне своими руками. Особенности создания открытой проводки
- Проводка на кухне своими руками. Особенности создания открытой проводки
- Как поменять проводку на кухне. Как правильно сделать проводку на кухне своими руками: схема разводки электропроводки под встраиваемую технику
- Разводка розеток и выключателей. Установка выключателей и розеток
- Проводка на кухне в частном доме. Особенности обеспечения кухни электричеством
- Электропроводка на кухне. Электрическая начинка кухни: практические рекомендации
- Проводка на кухне в хрущевке. Где искать проводку
- Проводка на кухне без штробления. Как уложить электропроводку, не прибегая к штроблению стен
- Открытая проводка на кухне. Открытая проводка
- Схема проводки на кухне. Подготовка
Проводка на кухне своими руками. Особенности создания открытой проводки
Открытая электропроводка – наиболее простой и доступный вариант обеспечения помещения необходимой электрической энергией. Работа не требует серьезных усилий и осуществляется довольно быстро.
Кроме того, не требуется портить интерьер, демонтируя отдельные фрагменты или весь внутренний декор для прокладывания проводов. Да и в случае возникновения возгорания или короткого замыкания устранить проблему можно сразу, не тратя времени на поиск неисправности.
Открытая проводка на кухне может выполнять не только свое прямое назначение, то есть обеспечивать бесперебойную подачу электроэнергии к осветительным и бытовым приборам, но и служить броским интерьерным элементом, придающим помещению стильность и оригинальность
Нужный уровень безопасности системы обеспечивается посредством специальных поливинилхлоридных кабель-каналов, состоящих из крепящегося к стене или потолку короба и практичной накладной крышки, оснащенной фиксирующими застежками-желобками.
В них помещают электропровода и протягивают к розетке, бытовой технике или осветительным приборам, требующим подключения.
Параметры прямоугольных кабельных каналов весьма разнообразны и варьируются от 1,2 сантиметров (для тонких проводов) и до 10 сантиметров (для проводов большого калибра). Такое разнообразие позволяет каждому выбрать подходящий элемент, отлично выполняющий свои задачи и гармонично вписывающийся в интерьерное решение любой сложности
Изделия демонстрируют высокие электроизоляционные качества, не горят и обладают пластичностью на изгиб. Выпускаются в самых разных оттенках «под дерево» и легко поддаются тонировке любыми видами современных строительных красок.
Серьезные производители, хорошо зарекомендовавшие себя на рынке, дают на продукцию гарантию до 25 лет и обещают, что за это время материал не потеряет своих характеристик и обеспечит проводу надежную и качественную защиту от любых внешних проявлений.
Если дизайнерское решение интерьера требует прокладки на кухне внешней проводки, можно использовать комбинированный вариант и в самых «опасных» местах утопить провода в стены, а все остальные проложить по верху как можно дальше от раковины и духового шкафа
Некоторые специалисты считают полностью или частично открытую проводку на кухне опасной. Водяные пары и резкие температурные перепады, вызванные использованием различных бытовых агрегатов, негативно воздействуют на электросеть и приводят к возникновению неполадок.
Провода перегреваются, теряют целостность защитной оболочки и преждевременно выходят из строя, часто становясь причиной короткого замыкания и возникновения пожароопасной ситуации. Однако некоторые хозяева пренебрегают этим советом и в угоду дизайну идут на неоправданный риск.
Как поменять проводку на кухне. Как правильно сделать проводку на кухне своими руками: схема разводки электропроводки под встраиваемую технику

Кухонная проводка считается самой загруженной частью электросети в квартире. Это связано с подключением большого количества бытовых приборов. Поэтому разводка электрики на кухне выполняется с учетом предполагаемой или действующей нагрузки. Важным моментом является правильный выбор кабелей, распределительных коробок, защитных автоматов и других компонентов электрической сети.

Особенности распределения электричества на кухне
В помещении расположено большое количество мощных потребителей энергии. Поэтому схему разводки нужно тщательно продумать, учитывая такие особенности:
- Мощные приборы (холодильники, стиральные или посудомоечные машины) подсоединяют к отдельным линиям, снабженным защитными автоматами. Осветительную и питающую линии проводят в разных местах.
- Все розетки требуют заземления. Это делает эксплуатацию бытовой техники более безопасной, помогает продлить срок службы приборов.
- При прокладке проводки устанавливают несколько распределительных коробок. При использовании единственного устройства проводят 3-жильную кабельную линию.
Разновидности проводок
Кабели укладывают 2 методами: открытым или скрытым.
При выборе способа руководствуются особенностями интерьера, требованиями безопасности.
Скрытая
В этом случае провод прокладывают в стенах или потолочных плитах. Самым сложным этапом работ считается штрабление каналов. Выполнить монтаж своими руками при отсутствии навыков не получится. Кроме того, штрабление осуществляют с использованием специального оборудования. Скрытый способ применяют в квартирах, для деревянных частных домов он не подходит.

Открытая
При использовании этого метода кабели прикрепляют к поверхностям, предварительно укладывая их в лотки или гофру.
Способ не отличается высокой безопасностью и эстетичностью, поэтому его используют при невозможности скрытого монтажа.
Подготовительные работы
Перед началом укладки проводки нужно составить план процесса. На подготовительном этапе:
- очищают помещение;
- удаляют облицовочные материалы;
- оценивают состояние имеющейся проводки;
- рассчитывают предполагаемую нагрузку на сеть;
- составляют схему электропроводки;
- рассчитывают нужное количество материалов.
Проверка старой проводки
На первом этапе определяют, в каком состоянии находятся имеющиеся в кухне кабели. В домах прокладывают 1- или 3-фазные сети. Необходимо уточнить это. Затем проверяют присутствие заземляющего контура. При наличии 3-жильного кабеля он имеется. Это же относится к многоквартирным домам, построенным после 1997 г. Также замеряют сечение жил провода. Значение учитывают при вычислении допустимой нагрузки.

Расчет суммарной токовой нагрузки
На этом этапе составляют список всех приборов, которые будут использоваться в кухне. С учетом содержащихся в технических паспортах данных можно сделать расчет суммарной мощности устройств. Полученное число является предполагаемой нагрузкой на проводку. К значению добавляют небольшой запас, что исключает возникновение аварийных ситуаций.
Расчет количества проводов
Существует 2 способа вычисления требуемой длины кабелей. Можно выполнить замеры в соответствии со схемой разводки. Учитывают углы, ниши, выступы, места расположения розеток и выключателей. К полученному значению добавляют 15%.
Более простым способом расчета является умножение площади помещения на 2. Например, для кухни в 12 кв. м потребуется 24 м провода.
Подбор сечения кабеля
Расчет этого параметра основывается на информации, полученной при вычислении суммарной нагрузки на сеть. Сечение выбирают с помощью специальных таблиц. К указанному значению прибавляют 10%. Возможно использование кабелей с медными или алюминиевыми жилами. Первые считаются более надежными, однако из-за высокой стоимости применяются реже.

Инструменты и материалы
Помимо кабелей, для формирования электросети потребуются:
- Розетки с заземлением. Для подключения мощных приборов используют элементы с номинальным током 32 А. Для питания более слабых устройств подходят розетки на 16 А. Мощные потребители подключаются через одиночные элементы.
Разводка розеток и выключателей. Установка выключателей и розеток
После выбора количества и места расположения выключателей и розеток следует выбрать номинальные параметры провода и необходимой коммутационной аппаратуры.
Этот процесс мы уже не раз описывали в других статьях нашего сайта, поэтому не будем останавливаться на нем. Лучше мы рассмотрим более детально процесс штробления стен и установки выключателей и розеток.
- Как известно, есть два способа монтажа проводки – открытый и скрытый. При открытом способе монтажа нам ничего штробить не надо, а коробки выключателей и розеток крепятся прямо на стену. Но в квартирах и кирпичных домах зачастую используется скрытая проводка, в особенностях монтажа которой мы и попробуем разобраться.
- Процесс штробления стен и монтаж углублений для закладных коробок выключателей и розеток — процесс пыльный, длительный и трудоемкий. Конечно, современные технологии позволяют сделать его достаточно быстро и без особых проблем. Но далеко не у каждого есть штроборезка и другое специальное оборудование, цена которого не позволяет приобрести его для личного пользования.

Установка закладных коробок под розетки и выключатели
- Исходя из этого, советуем приобрести вам специальную насадку на перфоратор, которая значительно облегчит вам проделывание штроб. Хотя, откровенно говоря, эта насадка не очень облегчит труд при штроблении твердых бетонных стен. В этом случае зачастую приходится сначала намечать путь сверлом, а уж затем использовать насадку.
- А вот для монтажа углублений под закладные коробки выключателей и розеток есть достаточно неплохой вариант специальной насадки. С не очень плотными бетонными стенами и кирпичной кладкой он справляется просто на ура. С плотным бетоном придётся повозиться, предварительно пройдясь обычно сверлом по всей окружности.
- Но если вы устанавливаете розетки или выключатели в гипсокартон, то не стоит торопиться. Конечно, вариант насадки на перфоратор для бетонных поверхностей с легкостью справится с этой задачей. Но края будут рваные и возможно разрушение поверхности. Поэтому перед тем, как установить розетки и выключатели в гипсокартон, поинтересуйтесь специальными насадками на дрель. Обычно они идут наборами кругов с различным диаметром. Такая вещь всегда пригодится в хозяйстве.
- А вот выключатели и розетки наружной установки в большинстве случаев имеют открытое исполнение. Это связано с тем, что при скрытом способе установки достаточно сложно обеспечить их влаго- и пылезащищенность.
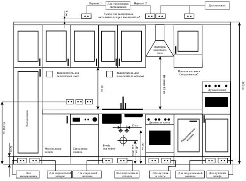
Проводка на кухне в частном доме. Особенности обеспечения кухни электричеством
Наличие бытовых приборов с большой мощностью (чайник, варочная панель, кондиционер, вытяжка, посудомоечная машина) делает кухню помещением, которое отличается максимальным потреблением электрической энергии. По этой причине нельзя обойтись в комнате только 2-3 розетками и одним выключателем.
Схема электропроводки на кухне, которая предполагает монтаж лишь одной распределительной коробки, зачастую бывает малоэффективной. Она не справится с нагрузкой при включении всех кухонных приборов.
Для качественного функционирования проводки необходимо придерживаться следующих правил:
- Электрические приборы, которые имеют большую мощность, снабжаются отдельной линией и своим автоматом.
- Для осветительных приборов и розеток тянутся разные линии. Каждая ветвь должна быть оборудована отдельным устройством защитного отключения.
- Обязательное заземление розеток. Благодаря этому увеличивается срок эксплуатации сети и кухоннойтехники.
- При креплении только одной распределительной коробки (обычно это происходит в небольшой кухне) используется трехжильный кабель с сечением 4 мм².
На подготовительной стадии проводится расчет суммарной мощности всех приборов и составляется конкретная схема монтажа проводов. На основании этих данных и определяется, прокладка какого типа кабеля будет осуществляться.

При выборе кабеля учитывают мощность каждого прибора. Несмотря на это, лучше всего укладывать трехжильную проводку на кухне. При наличии теплого электрического пола схема разводки может выглядеть следующим образом:
- ветка для люстры и галогеновой подсветки возле мойки или варочной плиты;
- линия на теплый пол;
- ветка для приборов с небольшой мощностью (микроволновая печь, миксер, тостер, кухонный комбайн);
- отдельные линии для мощной техники (духовка, посудомоечная машина, варочная панель);
- ветка для двойной розетки (для вытяжки и холодильника).
Для качественной укладки проводки на кухне своими руками нам потребуются:
- кабель;
- распределительная коробка (или щит);
- розетки с подрозетниками и выключатели;
- УЗО;
- клеммники;
- алебастр и шпатель;
- гофрированные трубки;
- изолента;
- крепежи (саморезы, дюбель-гвозди и скобы);
- отвертки, пассатижи, бокорезы, нож;
- перфоратор;
- болгарка;
- индикатор;
- уровень;
- молоток и зубило.
Электропроводка на кухне. Электрическая начинка кухни: практические рекомендации
Разбираемся с кухонным электричеством
Холодильник, микроволновка, электрочайник, тостеры-миксеры-блендеры. Электрическая плита и электрическая духовка. Если духовка и плита газовые, в них обязательно есть подсветка, которой тоже нужно электричество. Посудомоечная машина, а иногда и стиральная. Плюс вытяжка. Добавим сюда же несколько источников света: основной, над рабочей зоной и над обеденной. Из необязательного — телевизор или радио. Выходит многовато.
Такое обилие электроприборов на небольшой площади требует особого подхода к электрической начинке кухни.
Какой должна быть проводка на кухне

Проводка на кухне должна быть надежной, безопасной и удобной.
- Надежность — потому что обилие мощных электроприборов создает повышенную нагрузку на электрическую сеть.
- Безопасность — само собой. На кухне постоянно присутствуют влага, пар, высокая температура — не самые дружелюбные среды для электроприборов.
- Удобство — расставляйте электрические точки так, как вам удобно, чтобы включая в розетку чайник, не приходилось лезть под шкаф.
Важно: Для кухни настоятельно рекомендуется использовать электрооборудование класса IP44. Если вы не знаете что это такое — не страшно. Главное, чтобы это знали и понимали электрик и дизайнер, которые будут делать проект кухни.
1. Делаем проект проводки

Рассчитывайте проект проводки заранее, до того, как будет установлена техника и мебель. Для кухни, как для самого нагруженного помещения, выделяют отдельную ветку, которая идет от общего распределительного щита до кухонной распредкоробки. Отсюда провода ветвятся дальше:
- ветка для освещения всех зон: обеденной, рабочей, для общего освещения;
- ветка для розеток, в которые будут подключаться маломощные приборы: чайник, блендер, микроволновка;
- отдельная ветка (или даже несколько веток) для более мощных приборов: холодильника, стиральной машины, посудомойки;
- отдельные ветки с усиленным кабелем для электроплиты и духовки.
Если в кухне планируется еще и пол с электроподогревом, что не редкость в современных квартирах , — для него тоже нужна отдельная ветка.

Монтаж проводки выполняйте проводом с двойной изоляцией, желательно медным, типа ВВГ 3х2.5 или ВВГ 3х4.0 для мощных приборов. Такие провода прекрасно справляются со всей кухонной электрической нагрузкой. Обязательно заземлите все розетки и электроприборы.
2. Расставляем розетки для кухонной техники

Расположение розеток также планируйте с учетом того, где будут находиться ваши электрические помощники. Для тех, что будут включены в сеть постоянно (холодильник, стиральная и посудомоечная машины, плита и духовка, вытяжка), допускается скрытая установка розеток. Например, за шкафами кухонного гарнитура, но так, чтобы до них было легко добраться.
Важно: для электроплит и духовок могут потребоваться особые розетки, такие точки располагаются на отдельных ветках и проводка для них выполняется отдельным кабелем большего сечения.

Для мелкой техники установите розетки над рабочим столом или на самом рабочем столе. Главное — помнить про безопасность: не ставьте розетки близко к мойке и водопроводным трубам, не располагайте их над плитой и в непосредственной близости от нее. Отдельно продумайте место, где вы поставите или повесите телевизор — для него тоже нужна розетка, а то и две.
Совет: старайтесь не пользоваться на кухне удлинителями. Во-первых, вы можете случайно запнуться за раскинутые по полу провода. А во-вторых, в удлинитель может попасть влага, которой на кухне предостаточно, и вызвать короткое замыкание.
3. Планируем освещение на кухне

Раньше на кухнях по умолчанию ставили всего один источник света — потолочный светильник-люстру. Но такое освещение не очень удобно при готовке: свет падает сзади-сверху, и ваша тень закрывает рабочее пространство. В современных кухнях проекты предусматривают раздельное освещение: общее (ту самую потолочную люстру), освещение рабочей зоны и освещение обеденной зоны, если вы принимаете пищу на кухне.

Для раздельного освещения, отдельную осветительную ветку проводки делят еще на три. Для каждого источника света продумайте удобное место для выключателей. Для верхнего света и освещения обеденного уголка разместите их у входа. Выключатель освещения рабочего стола часто совмещают с розеточной группой для мелкой техники, над рабочим столом.
В заключение еще раз напомним три основных принципа устройства электрической составляющей кухни:
- безопасность,
- надежность,
- комфорт.
Если все три компонента присутствуют — пребывание на кухне будет легким и приятным.
Проводка на кухне в хрущевке. Где искать проводку
Проводка в панельных домах прокладывается в специальных каналах внутри панелей. Они предусмотрены конструкцией плит. На рисунке ниже вы видите несколько примеров типовых расположений каналов в хрущевке.
Вы можете заметить, что каналы располагаются под углом, а не всегда вертикально или горизонтально ка принято считать. Кроме этих каналов возможна прокладка проводов в балках под потолком. Эти балки напоминают бордюры, выступающие над поверхностью стены в углу с потолочной плитой.

Проводка требует соединений, поэтому нужно найти и расположение распределительных коробок. Они могут быть открытыми – слегка выступать над стеной, тогда их содержимое скрывается за пластиковой крышкой, а могут быть и заштукатурены.
В однокомнатной квартире может быть всего 1 распредкоробка, которая доступна без снятия обоев.
В этом случае чтобы найти распредкоробку придется не только снимать обои, но и возможно простукивать всю стену вдоль потолочного угла, пока не услышите характерный звук пустоты. После чего это место просто проламывается. То же самое делают и по потолку. О том, как найти распределительную коробку, мы подробно рассказывали в отдельной статье.
После того как вы найдете все коробки и розетки вы сможете оценить, как проложены провода. На рисунке ниже изображен внешний вид канала для проводки в нижней части потолочной распредкоробки.

Кстати, хрущевки можно разделить на два типа. Первый – это дома с несущими внешними стенами, то есть те в которых есть окна, а второй – с несущими внутренними стенами. В любом случае бетонные плиты – это силовая конструкция, а те, которые не выполняют несущей роли – они являются ребрами жесткости, подробнее об этом ниже.
Замена электропроводки в хрущевке требует хотя бы приблизительного знания где она может быть (где проходит кабель), а также знания типовых схем. Электрическая схема квартиры зависит от количества комнат. Обобщённо выходит следующая ситуация: в каждой жилой комнате есть 1 светильник и 2-4 розетки (в зависимости от площади), при этом в маленьких комнатах, порядка 10 кв. м. может быть и вовсе 1 розетка.
Ниже приведена подборка типовых решений разводки электропроводки хрущевок.


Проводка на кухне без штробления. Как уложить электропроводку, не прибегая к штроблению стен
Электрическая проводка присутствует, в принципе, в каждом доме. Но проложена она должна быть так, чтобы обеспечивалось не только удобство, но и необходимый уровень безопасности. Когда-то ее укладывали повсюду наружным способом. Но сейчас к нему прибегают только в деревенских домах. Или там, где хозяева предпочитают стиль рустик.
Однако многим все-таки хочется уложить проводку так, чтобы она не бросалась в глаза. В принципе, это возможно, если в стене проделать штробы. Но штробление не всегда приемлемо или допустимо. Поэтому мы решили рассказать вам сегодня и о других способах. Позволяющих укрыть проводку, но не нарушающих целостность стен.
Вероятно, большинству из нас известно, что такое штроба. Это своеобразный канал, проделываемый в стене и служащий для укладки проводов.
В принципе, с эстетической точки зрения, результат оказывается неплох. Потому что проводка становится полностью невидимой. Но этот способ имеет и существенные недостатки. И основные из них состоят в следующем:
- В результате штробления портится штукатурка и ее внешний вид. Потому что не у каждого электрика работу получается сделать аккуратно. Поэтому для восстановления чистового слоя штукатурной отделки приходится приглашать другого специалиста.
- Если штробление выполняется после ремонта, то порой приходится полностью менять обои. Или даже потолочное покрытие, если штроба проходит по потолку.
- Штробление производят, как правило, специальными инструментами – перфораторами. А они, как известно, доставляют массу неудобств своей шумностью и способностью производить огромное количество пыли.Проводка, штробы
- Если проводка находится в штробе, доступ к ней полностью закрыт. В результате даже малейший ремонт невозможен. Чтобы его сделать, штробу приходится вскрывать.
Способы, позволяющие уложить проводку без штробления
Теперь, пожалуй, можно рассказать и о нескольких приемах, благодаря которым уложенная проводка будет довольно незаметной. По крайней мере, она не особенно будет бросаться в глаза.
Использование плоского кабеля
Если для проводки использовать плоский кабель, то вполне можно обойтись без штробления. Причем такой кабель достаточно только прикрепить к стене. А потом его можно укрыть тонким штукатурным слоем.
Но, приступая к работе, следует все-таки набросать небольшой планчик: как пройдут провода, где будут установлены розетки с выключателями. Это необходимо, чтобы избежать возможных ошибок.
Чтобы крепить плоский кабель на поверхности стены, можно использовать:
- металлические стяжки;
- пластиковые дюбель-хомуты;
- быстросохнущую штукатурку;
- пластиковые монтажные площадки.
Чтобы подготовить места для установки электрической фурнитуры, используют, как правило, дрель. Причем лучший вариант – это воспользоваться плоскими розетками и выключателями.
После окончания работ по фиксации плоского кабеля на стены наносят штукатурку. Как правило, слой толщиной в 10 мм бывает вполне достаточным.
Итак, если использовать плоский кабель, можно не только установить всю электрику. Но и соблюсти весь комплекс существующих норм безопасности.
Проводка в кабель-каналах
В последнее время проводку укладывают чаще всего именно в кабель-каналах. Потому что и по цене они очень доступны, и купить их можно практически повсюду. Более того, эти поликарбонатные изделия:
- совершенно не горючи;
- обладают ничтожным весом;
- запросто обрабатываются с помощью простого ножа.
К этому, пожалуй, стоит добавить, что укладка проводки в такие короба элементарно проста. Потому что для этого надо только снять с них крышку. Особенно радует тот факт, что и в эстетическом отношении кабель-каналы достаточно привлекательны.
Если же говорить о конструкции короба, то она довольно незатейлива. Это пластиковый короб, имеющий П-образное сечение и длину, как правило, 2 м. Полость короба и уложенная в нее проводка закрываются плоской крышкой. Которая, естественно, входит в комплект.
Кабель-канал можно укрепить как на стене, так и на потолке. Причем изделие бывает различных цветов. В результате всегда имеется возможность подобрать такой, который лучше всего подойдет для конкретного основания.
Открытая проводка на кухне. Открытая проводка
Открытый способ монтажа электропроводки является самым простым и доступным. В этом случае работу можно выполнить быстро, с минимальной затратой сил и средств.
Среди преимуществ открытой проводки надо отметить такие:
- в случае возникновения неисправности проблему можно устранить очень быстро;
- легко использовать в деревянных домах или на стенах, отделанных деревом;
- не надо портить стены. Открытую проводку можно устраивать по готовой отделке;
- при правильном выборе аксессуаров можно придать кухне стильный и оригинальный вид.
В целях обеспечения необходимого уровня безопасности для монтажа открытой электропроводки используются специальные кабельные каналы, которые можно крепить как к стене, так и к потолку. Они состоят из короба, куда укладываются провода, и крышки, которую можно быстро снять или установить. В зависимости от сечения и количества проводов выбирают кабель-каналы необходимого размера. Такие изделия производятся из пластичного материала, который хорошо изгибается, не горит и обладает диэлектрическими свойствами. При необходимости можно подобрать короба нужного цвета или тонировать их при помощи краски, тогда они органично впишутся в интерьер вашей кухни.

Кабельные каналы и электрические розетки могут служить стильными аксессуарами при оформлении кухонного интерьера
Некоторые специалисты указывают, что делать на кухне открытую проводку нежелательно. Это связано с тем, что здесь повышенная влажность и высокая температура, поэтому провода быстро теряют эластичность и перегреваются, из-за чего возникают неполадки. Если дизайнерское решение требует наличия открытой проводки на кухне, то можно выполнять комбинированный монтаж: в самых опасных местах её делают скрытой, а в других — открытой.
Схема проводки на кухне. Подготовка
Сегодня значительно увеличилось количество бытовых электроприборов. Старая проводка не справляется с современными нагрузками на электросеть. Когда встает вопрос о ее замене, необходимо обратить внимание на следующие моменты.
Проверка установленной проводки
Если электрика на кухне требует полной или частичной замены, понадобится схема проводки из технического паспорта на квартиру, чтобы точно знать, где проходит сеть.
Алюминиевая проводка рассчитана на 20 лет эксплуатации, медная — на 40. Исходя из этих показателей, в старых домах лучше сменить алюминиевую проводку на медную. Замена электропроводки в хрущевке необходима, поскольку зданиям уже больше 50-ти лет.
Старая электрическая сеть рассчитана на максимальную нагрузку до 3-4 кВт. Сегодня нагрузка в квартире составляет около 10 кВт. В современных постройках алюминиевую проводку не используют.
Поэтому:
- Выясняем расположение проводов по плану в техническом паспорте.
- Демонтируем старую электрику.
- Составляем схему новой разводки согласно современным правилам эксплуатации приборов.

Расчет суммарной токовой нагрузки
В паспорте каждого устройства указана его максимальная потребляемая мощность.
Суммарная токовая нагрузка — это сумма потребляемой мощности постоянно и часто используемых электроприборов, умноженная на 0,9 (вероятность одновременного использования), плюс 20% от полученной суммы в качестве запаса. Исходя из конечного результата, выбирают сечение кабеля.
Сумма их потребляемой мощности = 5030 Вт.
Вероятность одновременной работы: 5030*0,9=4527 Вт.
Плюс 20% запаса.
Суммарная токовая нагрузка составит 5432,4 Вт.

Подбор сечения кабеля
От счетчика до распределительной коробки на кухне прокладывается провод, способный выдержать суммарную токовую нагрузку кухонной электротехники. От коробки отходят провода меньшего сечения, поскольку к ним подключат отдельные устройства.