Плюсы и минусы стеклоблоков. Строение и основные размеры
- Плюсы и минусы стеклоблоков. Строение и основные размеры
- Арматура для стеклоблоков. Укладка стеклоблоков на раствор
- Как построить стену из стеклоблоков. Монтаж стеклоблоков на цемент
- Стена из стеклоблоков. Где применяются стеклоблоки
- Перегородка в ванной из стеклоблоков. Как сделать своими руками?
- Укладка стеклоблоков. Монтаж стеклоблоков. Поэтапная инструкция.
- Стеклоблоки. Почему в СССР были популярны стеклоблоки?
Плюсы и минусы стеклоблоков. Строение и основные размеры
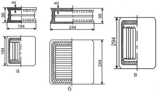
Размеры, качество и другие особенности стеклоблоков, знакомых нам с детства и выпускавшихся отечественной промышленностью, регламентировались ГОСТ 9272-81. Они являются изделиями, состоящими из двух стеклянных полублоков, имеющих форму короба и герметично соединенных между собой. В результате такой сборки внутри образовывается закрытая полость, заполненная воздухом.

Стеклоблоки могут иметь гладкую или рифленую, колерованную или бесцветную поверхность
В продажу поступают блоки разных размеров, однако, современные изделия как зарубежных, так и отечественных производителей чаще выдержаны в стандартных размерах 190×190×80 мм и 240×240×80 мм. Правда, встречаются изделия, толщина которых составляет от 55 до 100 мм.

Если посмотреть на некоторые чертежи, то на них не ровно 190, 240 а 194 и 244, да и толщина не 100, а 98 мм.
Масса стеклоблока варьируется в зависимости от его размеров и особенностей стекла, и может составлять от 2,2 до 4,5 кг.
Как правило, светопропускаемость блоков выдерживается в диапазоне 40÷80%. Толщина стекла – от 6 до 8 мм. Удельная масса, за счет воздушного наполнения, оценивается примерно в 800 кг/м³, то есть блоки получаются легче воды. Коэффициент теплопроводности порядка 0,4 Вт/(м×К) – почти вдвое ниже, чем у кирпича.
Указанные выше размеры – отнюдь не единственные.
Можно встретить стеклоблоки квадратной формы с такими размерами:
— 145×145×55 мм;
— 190×190×50 мм;
— 190×190×70 мм;
— 200×200×22 мм;
— 300×300×100 мм.
Встречаются прямоугольные стеклоблоки следующих форматов
— 190×90×80 мм;
— 240×115×80 мм.
Если ранее практически единственной была квадратная форма блоков, то сегодня производятся прямоугольные и даже имеющие скругленный край изделия, а также угловые блоки, упрощающие формирование края конструкции при возведении колонн и перегородок. Еще одним вариантом, который был разработан производителями, в связи с его востребованностью — это торцевой блок, с помощью которого можно облагородить вертикальный край перегородки.
А вот размеры треугольного стеклоблока (два катета, гипотенуза и толщина):
— 172×172×236×80 (мм).
Есть и иные конфигурации и размеры стеклоблоков. Например:
— «половинка» 94х190х80 мм;
— торцевой блок 190х190х80 мм со сглаженными внешними углами;
— угловой блок 190х190х80 мм;
— торцевая половинка: 190х90х90 мм;
— торцевой выпуклый 190х144х110 мм
и другие.

Фигурные блоки, которые служат для отделки торцов стен, углов, других «сложных» участков.
Но, повторимся, если речь идет не о фигурных элементах, которые обычно приобретаются штучно, а о материале для кладки перегородок, то чаще всего оперируют размерами 190×190 и 240×240 мм. Реже — 300×300 мм.
В связи с тем, что стеклоблоки могут быть использованы только в целом виде, то есть резать их нельзя, разработчики предусмотрели и блоки-половинки. Если составить две половинки между собой, то конструкция приобретет размер целого блока.
Арматура для стеклоблоков. Укладка стеклоблоков на раствор
Между рейками на основание помещают упругий компенсационный материал. На опоре (к которой примкнут стеклоблоки) делают отверстия для арматуры. На всю длину основания наносят слой раствора или клея толщиной около 30 мм.
Монтаж блоков начинают от стены (или другого смежного элемента), двигаясь по горизонтали. На первый блок в нижнем ряду раствор наносят на сторону, обращенную к стене, и укладывают, оставляя шов толщиной 10 мм.
При установке второго блока смесь наносят на сторону, обращенную к предыдущему. Между блоками в верхней части вставляют монтажный крестик. Укладку продолжают до конца ряда, второй ряд монтируют таким же образом.
Если раствор попал на лицевую сторону, его сразу удаляют (при скалывании засохшего цемента можно поцарапать блок).
Третий ряд кладки укрепляют арматурой. Два стержня кладут непосредственно на монтажные крестики, вставляют в отверстия в примыкающей стене, закрепляют раствором (если стены нет, арматура закончится заподлицо с крайними блоками).
После каждого третьего ряда отвесом проверяют вертикальность кладки и останавливают монтаж на 1 час при работе с клеем и на 1 сутки – с цементно-песчаным раствором. Это необходимо, чтобы состав схватился (на стекле он сохнет медленно).
После полного завершения кладки и высыхания раствора удаляют внешние пластинки монтажных крестиков, снимают защитную пленку со стеклоблоков.
Затем накладывают на швы затирочную смесь, после ее схватывания выравнивают поверхность и очищают блоки.
Пятна от цемента и клея удаляют при помощи соляной или уксусной кислоты (щелочи, растворители, фтористоводородную кислоту использовать нельзя).
Чтобы придать водозащитные качества швам, их обрабатывают гидрофобизатором.
Арматура для стеклоблоков. Укладка стеклоблоков на раствор
Между рейками на основание помещают упругий компенсационный материал. На опоре (которой примкнут стеклоблоки) делают отверстия для арматуры. На всю длину основания наносят слой раствора или клея толщиной около 30 мм.
Монтаж блоков
Монтаж блоков начинают от стены (или другого смежного элемента), двигаясь по горизонтали. На первый блок в нижнем ряду раствор наносят на сторону, обращенную к стене, и укладывают, оставляя шов толщиной 10 мм.
При установке второго блока смесь наносят на сторону, обращенную к предыдущему. Между блоками в верхней части вставляют монтажный крестик. Укладку продолжают до конца ряда, второй ряд монтируют таким же образом.
Если раствор попал на лицевую сторону, его сразу удаляют (при скалывании засохшего цемента можно поцарапать блок).
Укрепление арматурой
Третий ряд кладки укрепляют арматурой. Два стержня кладут непосредственно на монтажные крестики, вставляют в отверстия в примыкающей стене, закрепляют раствором (если стены нет, арматура заканчивается заподлицо с крайними блоками).
После каждого третьего ряда отвесом проверяют вертикальность кладки и останавливают монтаж на 1 час при работе с клеем и на 1 сутки – с цементно-песчаным раствором. Это необходимо, чтобы состав схватился (на стекле он сохнет медленно).
Завершение монтажа
После полного завершения кладки и высыхания раствора удаляют внешние пластинки монтажных крестиков, снимают защитную пленку со стеклоблоков.
Затем накладывают на швы затирочную смесь, после ее схватывания выравнивают поверхность и очищают блоки.
Как построить стену из стеклоблоков. Монтаж стеклоблоков на цемент
Для работы используют цемент или плиточный клей. Цемент должен быть качественным, однородным, без крупных песчинок (они могут поцарапать стекло, попав на стеклоблок). Плиточный клей предпочтительнее.
Помимо цемента или клея, понадобятся специальные распорные крестики и металлические стержни (сечение 4-6 мм).
Распорные крестики помогают оставить между блоками фиксированное расстояние, благодаря чему поверхность из стеклоблоков получается ровной. Кроме того, крестики позволяют сделать стену жестче. Металлические стержни нужны для армирования, то есть укрепления стеклоблочной стены.
Уложив ряд стеклоблоков, наносят новый слой клея и прокладывают горизонтально металлический стержень, после чего кладут второй ряд блоков. Стержни прокладываются и вертикально, если площадь конструкции достаточно большая. Некоторые специалисты рекомендуют армировать не все ряды, а только каждый третий.
Распорные крестики устанавливаются в стыки между стеклоблоками. «Шляпки» крестиков остаются снаружи. После полного высыхания цемента эти выступающие пластинки нужно сколоть. Сами крестики остаются внутри стенки, делая ее крепче.

Строительный уровень всегда должен быть поблизости. С его помощью следует постоянно контролировать ровность горизонтальных и вертикальных рядов.
Не рекомендуется за один раз укладывать больше трех горизонтальных рядов стеклоблоков. Выложили участок в три блока высотой — сделали паузу. Если монтаж стеклоблоков осуществляется с плиточным клеем, работу можно остановить на пару часов, а затем продолжить. Если же стеклоблоки укладываются на цемент, выждать придется сутки. Почему необходима пауза? Если пойти выше трех рядов, в какой-то момент конструкция может «поплыть» или вовсе развалиться. Обязательно делайте перерывы!
Если стеклоблочная конструкция будет прилегать к другим поверхностям, то «шов» между ними должен быть не более одного сантиметра.
Кстати, о «швах» или стыках. Если стеклоблоки клались на цемент, после полного его высыхания швы можно затереть плиточной затиркой нужного цвета. Но еще проще купить цветной цемент/клей и класть стеклоблоки на него. При этом стыки сразу нужно делать аккуратными, снимая излишки цемента, и тогда после высыхания никаких дополнительных обработок не потребуется.
После укладки всех стеклоблоков конструкция должна хорошо просохнуть. На это стоит отвести 10-15 дней. И только по истечении этого времени можно приступать к затирке межблочных швов.
Стена из стеклоблоков. Где применяются стеклоблоки
Стеклоблоки отличаются хорошими звукоизоляционными и теплосберегающими свойствами, повышенной устойчивостью к влаге и другим внешним факторам.
Применение материала:
- Для отделки стен или декоративных вставок.
- Для создания перегородок, разделив комнату на функциональные зоны.
- Для отделки наружных стен жилых помещений.
- Для зонирования ванной комнаты, отделки стен душевых уголков.
Разнообразие поверхностей, форм и расцветок стеклоблоков позволяет использовать этот материал для внутренней отделки в разных стилистических направлениях.
Чаще всего стеклоблоки используются для украшения ванной комнаты. Материал практичен, устойчив к повышенной влажности, прост в уходе, надежнее и долговечнее гипсокартона. Стены из стеклоблоков подходят для оформления душевой кабины.
В совмещенных санузлах материал можно использовать для разделения просторной комнаты на функциональные зоны. Прямая или круглая стена из разноцветных или однотонных стеклоблоков может использоваться для украшения душевой кабины или лестницы.
Также можно сделать небольшую перегородку между санузлом и санузлом. В большом помещении стиральную машину можно отделить от основного отделения, создав небольшое помещение для стирки и хранения белья.
В ванной загородного дома можно застелить окно стеклоблоками с цветными рисунками или витражами, при попадании солнечных лучей окно смотрится интересно и необычно. Перегородки и стены из стеклоблоков очень прочные, но они не могут заменить несущие стены.

Перегородка в ванной из стеклоблоков. Как сделать своими руками?
Монтаж душевых кабинок и углов из стеклоблоков лучше всего проводить во время общего ремонта помещения. Во избежание лишних затрат и технического переоснащения ванной комнаты новую кабинку для душа устанавливают на месте старой ванны, чтобы не устраивать водоотвод заново. Во время укладки стеклоблоков стенку необходимо армировать.
На этапе проектирования ванной комнаты, еще до облицовки стен плиткой, важно предусмотреть места для вывода коммуникаций под смеситель душа. А затем, после выполнения кладочных работ, установить душевую стойку.Возведение душевого поддона из плитки
Душевой поддон для кабинки сооружают несколькими способами:
- Приобретают готовую конструкцию из акрила, устанавливают поддон, а бортик отделывают керамической плиткой.
- Строят поддон самостоятельно из силикатного или красного кирпича.
- Возводят монолитное основание с использованием цементно-песчаной смеси.
- Монтируют каркасный подиум из бруса, покрывая его влагостойким материалом.
Любой вариант создания поддона требует подготовительных работ. Пол ванной комнаты очищают от мусора, а существующие трещины заполняют цементом.
Перед возведением подиума устраивают подводку труб канализации и водопровода, а также укладывают тепло- и звукоизоляцию, поверх которой кладут стяжку. Затем наносят гидроизоляционный слой из обмазочного или пленочного материала. Устанавливают душевой трап.

На следующем этапе производят монтаж конструкции относительно выбранного варианта. Предварительно возводят бортик душевого поддона из кирпича, газобетонных блоков или металлического профиля. Поверх него кладут цементно-песчаный раствор. После устройства поддона выкладывают керамическую плитку или мозаику с последующей затиркой швов.
Укладка стеклоблоков. Монтаж стеклоблоков. Поэтапная инструкция.
- Стена от пола до потолка;
- Ниша в стене с обрамлением (например из дерева);
- Установка стеклоблоков на гипсокартон, либо в нишу;
- Монтаж стеклоблоков в специальную конструкцию из алюминия;
- Монтаж стеклоблоков на цементной основе.

Применение стеклоблоков в дизайне интерьера не новый способ усовершенствовать свой интерьер. Но разнообразие видов и цветов стеклоблоков в наше время довольно колоритно. Применяйте эти стеклянные украшения и удивляйте всех своей фантазией.
Этап 1
Произведите замеры места, где необходимо будет установить стеклоблоки. Перенесите на лист бумаги дизайн с точными размерами и вариантами установки.
Варианты установки:
Стандартные размеры стеклоблоков.
Виды стеклоблоков.

Цветовая палитра, может быть разнообразной.


После того, как Вы определились какие блоки и где будут установлены приступаем к монтажу. Один дельный совет по выбору установки. Наиболее качественным и практичным способом монтажа стеклоблоков, будет на цементной основе. Этот способ считается более прочным и самым шумоизолирующим из всех существующих.
Конечно, если Ваша стена будет выполнять только декоративную роль, то возможно применение специальных направляющих, этот способ менее трудоемкий и с ним справиться любитель. Стоит только посмотреть наше
Этап 2
В нашем примере описывается стена от пола до потолка и она будет скреплена с помощью цементного состава. Такая стена удобно подойдет для ванной комнаты. После того как вы рассчитали количество и составили рисунок из разноцветных стеклоблоков, пора приступать к их укладки. Также нам понадобиться крестики, для создания ровных швов. 5 мм идеально подходящая толщина шва . Чтобы стена была прочной, необходимо использовать арматуру с толщиной 5 мм или металлическую пластинчатую сетку, подходящую для связки блоков.

Этап 3
Делаем разметку по полу, потолке и прилегающей стене, именно там где будет проходить наша стена. Связку стеклоблоков с помощью арматуры, можно производить через каждый ряд либо через два , все зависит от условий использования. В местах соприкосновения стен на уровне шва, необходимо засверлить отверстия под арматуру и в дальнейшем связать нашу стену арматурой с прилегающей к ней стеной. Арматура используется как в вертикальных так и в горизонтальных рядах. Из-за плохого схватывания цементного раствора со стеклом, не стоит укладывать более 2-х горизонтальных рядов , максимум 3-х в день. Укладка более трех рядов в день приведет к искривлению стены. После укладки каждого блока необходимо свериться с уровнем, также можно натянуть шнур. Старайтесь заполнить раствором все пустоты между блоками . Следите за швами, они остаются немного пустыми, в дальнейшем они еще будут заделываться затиркой. Не мало важно, чтобы раствор не попадал на лицевую часть стеклоблока, чиститься он будет плохо и есть вероятность его поцарапать.
Ваша стена не должна быть более трех метров в высоту , так как это приведет к разрушению нижних стеклоблоков из-за большой нагрузки на них.

Этап 4
В итоге, Ваша стена готова, значит пора приступать к затирке. Способ затирки стеклоблоков такой же как и плитки, затирки можно применять цветные , это придаст лучший вид стене. Для затирки применяются специальные приспособления, они сделают швы ровнее и сократят ваше время.


Этап 5
В конечном результате, просто необходимо очистить нашу стену, это поможет удалить остатки раствора и другую грязь со стеклоблоков.
Кладка стеклоблоков от А до Я. Просто, быстро, надежно!


Стеклоблоки. Почему в СССР были популярны стеклоблоки?
Да, интересные элементы конструкции. Сейчас редко встретишь такое, а в Союзе и школы, и садики, и административные здания были часто ими отделаны. Внутри часто в бассейнах можно было встретить подобные стеклоблоки. А части стен лестничной клетки жилых домов, помните?
Кстати, знакомый недавно использовал их в строительстве дома, сделал стену ванной комнаты внутреннюю из современных уже стеклоблоков. Но это все же редкость.
Так почему же они часто использовались при строительстве в СССР?

Кто же первый
В первую очередь нужно подчеркнуть, что стеклоблоки – это совсем не советское изобретение. Первый стеклоблок был придуман американцем по имени Джеймс Пенникуик. Свое изделие мастер запатентовал еще в середине XIX столетия. Он даже смог на этом заработать через свою фирму Luxfer Prism Company. Впрочем, изобретение американца разительно отличается от тех стеклоблоков, которые использовали в разных странах в XX веке.
Несмотря на то, что оспорить первенство американца невозможно, его изобретение все же разительно отличалось от тех блоков-кирпичиков, которые стали использоваться в строительстве во второй половине ХХ века. Изобретение Пенникуика больше напоминало металлическую решетку со стеклянными вставками-призмами. Эта решетка, согласно задумке американца, изначально была предназначена для замены обычных окон в подвальных помещениях.
Вот вам пример.
В Москве во время реконструкции Мясницкой улицы под асфальтом обнаружили решетки с американскими световыми призмами Люксфер (Luxfer). Мало кто знает, что такие раритеты сохранились до сего дня и в морозовских зданиях Орехово-Зуева.
Эти призмы запатентовал в 1881 году изобретатель из Бостона Джеймс Пенникуик. Он улучшил стекло, добавив к задней стороне окна, состоящего из квадратных стеклянных плиток, горизонтальные призмы, которые перенаправляли солнечный свет из окон вглубь комнаты, уменьшая потребность в искусственном освещении.

Данные световые окна имели настолько большой успех, что получили распространение не только в США и Канаде, но и на Европейском рынке, в том числе в Российской Империи. Световые окна Люксфер можно было найти в любом городе России почти на каждой улице, так как в жилых домах на первом этаже обычно располагались различные магазины и лавки, а торговцы хранили свой товар в подвале дома, и именно для освещения подвальных помещений в первую очередь использовался данный тип светового окна. Призмы собирали свет, благодаря чему в подвале днём было абсолютно светло и не было необходимости тратить дополнительную электроэнергию. Вдобавок, призмы Люксфер были полыми, что уменьшало их теплопроводность, а значит, несмотря на яркий солнечный свет, в подвалах сохранялась низкая температура.

России в начале XX века подобные световые решётки по патенту Д. Пенникуика начали выпускаться множеством фирм. Так найденная решетка на Мясницкой была изготовлена Торговым домом «М. Франк и сын».
После революции американские световые призмы перестали поставляться в Россию. Их стали заменять другими материалами, а со временем решетки стали давать течь, и их стали убирать или закатывать в асфальт, как на Мясницкой в Москве.
В Морозовской больнице Орехово-Зуева

Стеклоблоки в СССР
Привычный для нас вид стеклоблоки приняли в 30-е годы XX века. Если изначально блоки использовались только при строительстве подвалов, то постепенно из них начинают складывать внутренние и наружные стенки, окна на лестничных проемах и всевозможные перегородки. Вместе с расширением сферы применения стеклоблоки стали расширять и число архитектурных проектов, в которых их осмеливались использовать. Пик роста популярности стеклоблоков пришелся на 60-70-е годы прошлого века. Причем касается это как Советского Союза, так и остальных стран.
В СССР стеклоблоки были трех цветов: синие, зеленые и желтые. Их поверхность могла быть рифленой, а могла быть гладкой. Несмотря на широкое распространение, в строительстве домов стеклоблоки почти не применялись. Чаще всего их можно было увидеть в общественных зданиях.

К чему это все?
На первый взгляд может показаться, что в СССР использование стеклоблоков носило исключительно эстетический характер. На самом деле это не так. Декоративную функцию они (конечно) тоже исполняли. Однако в первую очередь, использование стеклоблоков в строительстве и дизайне помещений позволяло экономить электроэнергию. Забавно, но такую функцию для них предусматривал еще и упомянутый в самом начале Джеймс Пенникуик. Даже в советском ГОСТе по стеклоблокам, светопропускание упоминается в одном из первых и важнейших пунктов.
Там же говорилось о том, что стеклоблоки должны выдерживать перепады температуры до 40 градусов. Они должны иметь достаточную прочность и влагостойкость. Плотность этого материала очень близка (на самом деле) к плотности камней. При этом, они пропускают свет, но в тоже время делают невозможным разглядеть, что именно находится за «окном». Иными словами, стеклоблоки обладали внушительным набором полезных свойств и качеств. Именно это и помогло им стать таким популярным, востребованным материалом.
