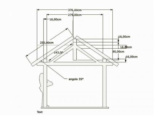
Садовая беседка своими руками. Чертежи и размеры для самых красивых беседок
- Садовая беседка своими руками. Чертежи и размеры для самых красивых беседок
 - Бюджетная беседка с мангалом своими руками. Строительство беседки для дачи с мангалом своими руками
 - Простая беседка своими руками за один день. Как в одиночку построить беседку за 1 день из доски и ондулина
 - Беседка своими руками из подручных материалов. Как построить простую беседку самостоятельно из подручных материалов
 - Самая простая беседка своими руками. Какие бывают дачные беседки
 - Самая дешевая беседка своими руками. Выбор материалов и конструкции
 
Садовая беседка своими руками. Чертежи и размеры для самых красивых беседок
Садовая беседка, сделанная своими руками, способна стать центром притяжения всех членов семьи и друзей на отдыхе на даче. Обычно беседки мастерят из деревянных реек и вагонки. Крышу кроют мягкой черепицей, шифером или жестяными листами.

Можно выделить самые популярные беседки по форме:
- прямоугольные;
 - квадратные;
 - округлые;
 - шестигранные;
 - трапециевидные.
 
Это самые простые и эффектные варианты для садовой беседки, которую можно смастерить своими руками на участке довольно быстро. Чертежи и фото самых простых и красивых вариантов приведены далее.


Есть несколько основных этапов в строительстве беседки, которые важно соблюдать:
- Подготовка места. Следует очистить площадь под беседку, выровнять ее. Если легкое архитектурное сооружение возводится на грунте, то лучше убрать чернозем и засыпать камнем, щебенкой. Для защиты от растений, которые могут прорасти под полом, можно застелить участок под беседкой рубероидом.
 
- Затем нужно сделать фундамент или основание пола из лагов или кольев.
 - После выложить балки пола.
 - Возвести основание стен.
 - Настелить пол.
 - Обшить стены.
 - Сделать каркас крыши и покрыть ее.
 
Размеры всех деталей можно взять из чертежей и фото уже готовых беседок или рассчитать по собственной задумке.




Затем следуют декоративные работы. Можно сделать решетки на оконных проемах, обшить стены внутри вагонкой, покрасить их. Рассмотрим самые красивые и интересные варианты беседок с пошаговыми инструкциями для их возведения.
Источник: https://arka-iz-dereva.aystroika.info/stati/sadovaya-besedka-svoimi-rukami-materialy
Бюджетная беседка с мангалом своими руками. Строительство беседки для дачи с мангалом своими руками
В этой статье мы сначала посмотрим на фотографии с вариантами беседок, которые реально сделать своими руками. А потом будет приведена пошаговая инструкция строительства относительно простого варианта такой беседки с мангалом. Начнем от самого каркаса и закончим столиком для мангала и трубой. Все под ключ.
Варианты беседок
Самые простые
В простейших вариантах беседок для дачи сделан уклон на минимальные затраты и по максимуму использование дерева. Возведя один из предложенных ниже вариантов вы уложитесь в 50 тысяч рублей. Материалы можно легко купить в ближайшем строительном магазине.
В этих вариантах (кроме первого) предусмотрено использование любого переносного мангала или мобильного гриля.
Большие деревянные
Если затраты вам не так важны, то можно рассмотреть более сложные конструкции для летнего использования на даче. В этих конструкциях часто присутствует стационарный мангал с трубой. Пол может быть выполнен не только из дерева, но и из других материалов (керамогранит, камень). Крыша из металлочерепицы. Бюджет на такие проекты варьируется от 50 до 150 тысяч рублей. Все зависит от желания сэкономить.
Капитальные конструкции
В самых сложных конструкциях беседок почти всегда помимо дерева используется камень и стекло, а также другие материалы. Такие беседки могут использоваться, как летом и зимой. Комфортно будет в любую непогоду. Стоит уточнить, что в капитальных проектах всегда используетсяс вытяжкой или печь. Возведение такого проекта обойдется не меньше, чем в 200000 рублей, если учитывать только материал (без привлечения мастера-печника). Не каждому на даче нужно такая дорогая постройка.
Делаем своими руками
Что мы будем делать
Мы взяли для нашей инструкции не самый простой, но и не самый сложный вариант беседки для дачного дома. Размер постройки — 3×3 метра, стоимость — не более 50 тысяч рублей.
Справа – план постройки на компьютере. Слева – то, что у вас должно получиться в реальности.
Порядок действий:
- установим фундамент для столбчатых конструкций;
 - соберем каркас беседки из сдвоенных досок;
 - защитим дерево от гниения и солнца;
 - уложим керамогранит на деревянный пол;
 
- сделаем столик;
 - сделаем вытяжку и трубу;
 - уложим крышу из металлочерепицы.
 
Далее рассмотрим все очень подробно.
Фундамент
Перед началом работы необходимо избавиться от мешающих сооружений и предметов, постричь газон.
Лёгкую конструкцию типа беседки или баньки можно установить на фундаментные блоки.
Для разметки понадобятся рулетка, верёвка и колышки. Удобно поставить беседку в 4-х метрах от дома, чтобы зона отдыха была недалеко.
Кирпич набирает влагу из грунта, поэтому он плохо подходит для столбчатого фундамента, а пилить бетонные блоки — трудоёмко. Основу можно сделать из тротуарной плитки.
Сначала нужно подготовить грунт. Чернозём под фундаментными блоками убирается, и подготавливается песчаная подушка.
Подошва фундамента будет выше на 10 см от чистового верха отмостки.
Копать ямки лучше штыковой лопатой, потому что она легче режет грунт.
Выкопать ямки на глубину примерно 30 см. Органика подвижна при намокании и замерзании, поэтому она заменяется песчаной подушкой. Утрамбовать ямы ногами, засыпать их песком.
Сразу выровнять грунт, чтобы под беседкой не было лужи, особенно если перепад высот немаленький. Если хочется, чтобы под сооружением не росла трава, надо застелить всё геотекстилем и засыпать песком, выровняв его правилом по маякам из металлических профилей. Второй слой геотекстиля раскатать с нахлёстом.
Второй слой геотекстиля раскатать с нахлёстом
Выровненный песок ещё нужно утрамбовать. Если нет виброплиты, можно поливать водой. Для хорошего результата воды должно быть действительно много.
Хорошая идея — применить глубинный вибратор для бетона. Он сильно повышает подвижность.
Пока подсыхает, собрать столбики на плиточный клей Ceresit CM 11. Плитки 40 и 30 см. Клей лучше развести погуще, чтобы его не выдавило под их тяжестью.
Клей лучше развести погуще
Проверить швы и убрать лишний клей — столбики беседки должны быть красивыми.
Деревянный каркас
Переходим к каркасу, который будет стоять на фундаменте.
Для его сборки, помимо досок (145×45), понадобится пара шпилек на 12, металлические уголки и опоры.
Простая беседка своими руками за один день. Как в одиночку построить беседку за 1 день из доски и ондулина
Многие мечтают о беседки на участке, но все никак не могут накопить на ее покупку. Не обязательно чтобы она имела резные и фигурные элементы, можно сэкономить и сделать ее своими руками просто из обрезной доски. Поверьте, если вокруг нее разрастутся розы, виноград или будет ухоженный газон, то даже без дорогих декоров и четырехскатной кровли она все равно станет вашим любимым местом отдыха.

Материалы:
- доска 40 мм – 1 куб;
 - ондулин – 10 листов;
 - коньковые элементы – 5 шт.;
 - саморезы 4,2х75 – 500 шт.;
 - гвозди для ондулина;
 - тротуарная плитка 30х30 - 6 шт.
 
Процесс изготовления беседки
На участке, где будет установлена беседка, нужно выставить в уровень опоры из обычной тротуарной плитки. Местами грунт срезается, а где нужно они укладываются столбиком по несколько штук. Основание беседки в данном случае будет 3х2,2 м, можно делать и другое на свое усмотрение.
Далее нарезается 4 доски для сборки основания беседки, от которых и нужно будет отталкиваться при дальнейшем строительстве. В данном случае их длина 3 м и 2,2 м.

Теперь необходимо собрать 2 конгруэнтных фронтона. Низ у них выполняется из ранее подготовленных досок 2,2 м, верх из двух по 1,9 м, сходящихся под углом. Каждая стойка делается из пары досок, то есть на фронтон их нужно 4 шт.
Их длина подбирается по желанию, в зависимости от того какой высоты требуется беседка. Нужно собрать 2 одинаковые фронтона, скрепляя доски саморезами.

Фронтоны устанавливаются вертикально, и временно закрепляются укосинами. Снизу к ним прикручиваются ранее напиленные доски длиной 3 м. Сверху также закрепляются 2 доски, на которые будет прибавиться ондулин, поэтому они должны выходить за беседку для свесов крыши.

Для жесткости нужно прикрутить к основанию беседки поперечную доску. Затем настилается дощатый пол с небольшими зазорами, чтобы на нем не задерживалась вода.


На коньке прикручивается еще 2 доски. Далее собираются лавки из строганной доски. Она должна получиться П-образной. Спинка для нее будет одновременно являться частью каркаса, чтобы задавать нужную жесткость.


На каркас кровли прикручивается еще по доске и настилается ондулин. Для таких размеров беседки его уйдет 10 листов. Стык скатов закрывается коньковыми элементами.


Для увеличения жесткости крыши, требуется сделать дополнительный подпор по центру каждого ската. Доску для этого нужно прикрутить к лавке. Также потребуется закрепить ребро жесткости к ее спинке.

С ним она не будет прогибаться. В завершение останется только установить стол.

Беседка своими руками из подручных материалов. Как построить простую беседку самостоятельно из подручных материалов
Обустраивая дачный участок, люди хотят создать отдельное место для отдыха и жарки шашлыков. Лучшим вариантом в большинстве случаев станет беседка. В отличие от террасы или веранды такое сооружение строят без привязки к дому, размещая в подходящем солнечном уголке. Однако случается так, что весь бюджет вкладывается в дом, а на беседку денег уже не хватает. Хорошее решение в таком случае — использование подручных средств, где в ход идут оставшиеся после работы над домом стройматериалы. Как возвести такую самодельную конструкцию, расскажем в этой статье. Для возведения простой беседки на даче подойдут имеющиеся в хозяйстве материалы, которые обычно считаются мусором и хранятся «на всякий случай». Включив фантазию, им можно придать эстетичный облик и создать благовидную постройку небольших размеров. Такое сооружение не потребует мощного фундамента и получится экономичным. Для создания ограждения и навеса используют старые легкие шторы, рулоны обычной ткани, поликарбонат и даже пластиковые бутылки. Каркас же формируется из стандартных материалов; выбрать можно любой из них — подойдет тот, который проще раздобыть и обработать. Дерево — доступный и простой в использовании материал. Найти на даче достаточное количество хорошего бруса, чтобы сделать капитальную беседку, может, и не получится, но для строительства подойдут и другие виды древесины. Легкий каркас делают из обрезной доски, бревен или оставшихся после очистки участка стволов деревьев. Последний вариант придаст беседке оригинальный вид, если удастся найти подходящие стволы. При этом верхнюю обвязку формируют из прутьев или используют крупные сучья в качестве основы для нее. Гибкие длинные ветви также применяют для создания ограждения, переплетая их с опорными столбами. Из натуральной необработанной древесины возводят и кровлю постройки. Кроме того, можно отойти от классической технологии и сделать куполообразную конструкцию. Пример такой беседки из подручных материалов представлен на фото выше. Возможно сделать деревянную постройку: В любом случае конструкция получится легкой и не потребует фундамента — достаточно закрепить опорные столбы в грунте. Отличаются варианты только методами скрепления элементов. Если при создании системы отопления или водоснабжения дачного дома использовались полиэтиленовые трубы, их остатки применяют для строительства беседки. Такая конструкция обладает рядом преимуществ: небольшой массой, устойчивостью к влаге и перепадам температуры, эстетичным внешним видом, экономичностью. Тематический материал : Соорудить каркас из пластика проще, чем из любого другого материала. Главное — умело орудовать пилой. Скрепляются элементы постройки при помощи пластиковых фитингов, которые позволяют соединять трубы под разными углами — вариативности меньше, чем в случае с деревом или металлом, но тем не менее создать уникальное место для отдыха все же реально. Фото: беседка из профильной трубы – более трудоемкий вариант, подойдет тем, у кого валяется без дела профиль на участке.Что можно использовать для строительства
Древесина
Пластик
Как правило, такую беседку делают разборной — из-за малой массы и небольшой прочности сооружение опасно оставлять на зиму. Кроме того, постройку просто разобрать и при необходимости перенести на другое место участка.
Кирпич
Как правило, после строительства дома остается достаточное количество кирпича, использовать который можно для возведения беседки. Причем нужно материала немного — только для создания опорных столбов каркаса.
Работа с кирпичом сложнее, чем с деревом или пластиком, но конструкция получится более надежной и долговечной. Кроме того, строительство займет больше времени — потребуется возведение фундамента.
Крыша кирпичной беседки делается из дерева и подходящего кровельного материала. Ограда или стены — из поликарбоната или древесины. Как и в случае с деревянной постройкой, сделать ограждение можно из веток — простая беседка из подручных материалов получится оригинальной и гармонично впишется в сад.
Металл
Каркас беседки делают и из металла — например, профильных труб. Сборка не займет много времени, но потребует умения обращаться со сварочным аппаратом. Если таких навыков нет, элементы конструкции соединяют обычным крепежом, но беседка будет менее надежной. Зато такую летнюю постройку можно разбирать и не требуется возводить фундамент.
Для изготовления потребуется: профильная труба, деревянная доска и профильный лист, метизы. Из инструментов и оборудования: сварочный аппарат, болгарка, дрель, ножовка по дереву, гаечный ключ.
Самая простая беседка своими руками. Какие бывают дачные беседки
Желательно, но не обязательно, чтобы тип беседки полностью соответствовал общему архитектурному стилю строений и дизайнерскому оформлению территории земельного участка. Краткий обзор позволяет выделить несколько наиболее распространенных стилей:
- классика. Такая беседка должна иметь правильную геометрическую форму, четыре или шесть граней. В этом стиле приветствуется симметрия линий, соответствие пропорций, гармония форм;
 - деревенский. Изготавливают беседку исключительно из натуральной древесины с использованием для декора элементов резного орнамента;
 - дальневосточный. В этом стиле приветствуется простота форм, сдержанность, гармония. Акцентным конструктивным элементом является крыша, которая отличается своей необычной формой.
 
Какая она, беседка вашей мечты? Ведь подобных конструкций великое множество и все они чем-то между собой отличаются. Обладают своей собственной изюминкой. Одни несколько приподняты над землей и имеют прочный настил, другие устанавливаются прямо на ровную площадку, которая и служит им полом.
Это, казалось бы, незамысловатое деление, между тем носит определяющий характер. Ведь первые строения являются мобильными и в большинстве своем могут быть поставлены в любом месте, хоть бы и на бетонные блоки, тогда как вторые стационарные и устанавливаются только на предварительно подготовленных площадках.
Конечно, нет правил без исключения. Так, самые простые свои беседки деревенские жители располагают прямо на земле, и под хороший дождик внутри них образуется не меньше грязи, чем и за пределами навеса, но мы такой вариант рассматривать не будем. Нет никакой радости от отдыха, когда через ноги весело бегут ручейки.
Откажемся также и от стационарных павильонов. Сегодня вам нужна пергола, а завтра передумаете и захотите на ее месте разбить цветник. Как потом избавится от бетона?
По размеру
Отличаются меж собой беседки и по своему размеру. Но тут по потребностям. Кому-то нужен целый павильон, а для других за счастье поворковать и под маленьким зонтом. Заметим лишь, что небольшими габаритами отличаются покупные изделия. А вот своими руками можно организовать беседку из дерева какой угодно длины.
По открытости
Если не полениться пройтись по улицам и позаглядывать во дворы, то чаще всего вам будут попадаться на глаза обыкновенные открытые беседки, где в качестве стен используются только невысокие, около 80 сантиметров бортики. Такие конструкции по статистике встречаются в девяти случаях из десяти.
Но вместе с тем существуют еще и закрытые сооружения. Защищенные от непогоды стеклом или поликарбонатом, а то и вовсе имеющие каменные стены с большими оконными проемами. Не самое на наш взгляд логичное решение. Но если в вашем регионе с солнечные дни редкость, то почему бы и нет, тем более что внутри их проще создать атмосферу интима.
Средний вариант — предусматривает наличие плотных ограждений с возможностью быстрого монтажа панелей (допустим, из листов поликарбоната), превращающих их в полноценные стены, защищающие от ветра и дождя в осенний сезон.
Исходя из предназначения беседки как таковой, думается, что большинство дачников изберут для себя открытую конструкцию беседки.
По форме
В принципе, размеры, внешний облик постройки зависит от вкуса и предпочтения хозяина участка и количества членов семьи. Разместиться в саду под надежной крышей, пожелают все домочадцы! Выделяют следующие виды конфигурации дачных бесед:
- квадрат;
 - прямоугольник;
 - шестигранник;
 - круг.
 
Существуют еще и комбинированные конструкции, но их возведение требует и специальных знаний, и наличия определенных навыков, и умения владеть профессиональными инструментами.
Целесообразно остановить свой выбор на небольшой дешевой постройке, способной порадовать и членов семьи, и гостей дачного дома.
По конструкционному материалу
И все же, первое на что следует обращать внимание при выборе рабочего проекта, так это на конструкционный материал. Те детали, из которых изготовлен силовой скелет строения.
Каменные беседки
На самом деле тут, конечно же, имеется в виду не дикий камень (хотя почему бы и нет), а вся группа штучных стеновых материалов, для работы с которыми необходимы кладочные смеси. Это может быть:
- Кирпич
 - Газобетон
 - Шлакоблок
 - Ракушечник
 - Ну, или сам бут
 
Готовые изделия могут, как угодно отличаться своим дизайном, размерами, видом кровли, но все они будут построены на крепком фундаменте и на века, а мы уже условились, что не будем своими же руками замусоривать участок бетоном. Да и недешевое это дело из камня перголы ваять. Из той же стали получится намного бюджетней.
Самая дешевая беседка своими руками. Выбор материалов и конструкции
Наиболее бюджетным материалом для изготовления дачной беседки неизменным остается дерево. Но несмотря на низкую себестоимость, прослужит такой летний домик достаточно долго. Особенно если деревянные бруски еще и обработать различными антисептическими пропитками, которые спасут деревянную конструкцию не только от воздействия внешней среды, но и от нежелательных древесных вредителей и предотвратят от возгорания.
На создание такой беседки не уйдет много времени и не составит большого труда. Примерный срок изготовления при неспешной работе составит около трех дней.

Дачная беседка на основе металлических конструкций тоже прослужит не одно десятилетие, но стоимость такого изобретения будет в разы дороже. Да и к тому же периодически нужно будет обрабатывать металлические трубы различными защитными средствами для металла.
А владельцев дачных участков больше беспокоит создание качественных, не требующих особых усилий для изготовления и недорогих беседок.

Поэтому прежде чем построить беседку своими руками рекомендуется составить смету и чертеж будущей конструкции, где будут указаны все замеры и материалы для изготовления. А далее следует ознакомиться с проектами сооружений. Итак, как дешево и красиво смастерить летнюю беседку для отдыха и что для этого необходимо? Перед постройкой нужно выбрать подходящее место для конструкции, где перед стартом работ следует удалить верхний слой земли примерно на 10–15 см и утрамбовать.


Важно знать, что самым дешевым вариантом будет оставаться беседка из деревянных конструкций без использования металлических составляющих.

Но перед ее созданием следует учитывать некоторые нюансы. Допустим, если для беседки из дерева делать фундамент из бетона, то срок службы такой конструкции будет не более 5 лет. Так как длительное соприкосновение дерева с бетоном приводит к дальнейшему гниению из-за повреждения, несмотря на предыдущее обрабатывание антисептиками. А, вследствие этого, и дальнейшее разрушение конструкции.

Лучшим способом защиты деревянной беседки будет обработка деревянных опор битумом или рубероидом.
Если все-таки решили сделать основание конструкции бетонным, то рекомендуется при заливке поместить в нужных местах небольшие металлические трубы, чтобы концы были не менее 30 см от основания бетона. Далее, в них проделываются отверстия для крепежных элементов, которые в дальнейшем будут поддерживать конструкцию многие годы.

Для дальнейшей защиты от сильного ветра необязательно сооружать ограждения из кирпича. Достаточно будет изготовить ограду из евровагонки высотой около 80 см, укрепив ее двумя продольными брусьями. Такое ограждение вполне защитит от порывистых ветров.

