Создание идеальной детской комнаты для мальчиков за 17 006 руб
- Создание идеальной детской комнаты для мальчиков за 17 006 руб
- Связанные вопросы и ответы
- Что нужно учитывать при создании детской комнаты для мальчиков
- Какие цвета и материалы лучше использовать для дизайна детской комнаты для мальчиков
- Как распределить пространство в детской комнате для мальчиков
- Как выбрать мебель для детской комнаты для мальчиков
- Как организовать освещение в детской комнате для мальчиков
- Как создать уютную атмосферу в детской комнате для мальчиков
- Как сделать детскую комнату для мальчиков безопасной
Создание идеальной детской комнаты для мальчиков за 17 006 руб
Идеальная детская комната для мальчиков – это не только место для сна, но и место для игр, обучения и творчества. В этой статье мы расскажем, как создать идеальную детскую комнату для мальчиков за 17 006 рублей.
Подготовка к созданию детской комнаты
Прежде чем приступить к созданию детской комнаты, необходимо провести предварительную подготовку.
1. Определитесь с цветовой гаммой. Мальчики обычно предпочитают яркие и насыщенные цвета, такие как синий, зеленый, красный и желтый.
2. Выберите мебель. Мебель должна быть функциональной и удобной. Оптимальным вариантом будет купить кровать-диван, которая может использоваться как кровать и как диван. Также необходимо купить шкаф для одежды и ящик для игрушек.
3. Выберите текстиль. Текстиль должен соответствовать цветовой гамме детской комнаты. Лучшим вариантом будет использовать наволочку и простыни с рисунками, которые будут интересовать мальчика.
Оборудование детской комнаты
Теперь, когда вы определились с цветовой гаммой и мебелью, можно приступить к оборудованию детской комнаты.
1. Окна. Окна должны быть защищены от солнечного света и шума. Лучшим вариантом будет использовать шторы или жалюзи.
2. Освещение. Освещение должно быть разнообразным. Лучшим вариантом будет использовать настенные лампы и лампы на столе.
3. Диван. Диван должен быть удобным и функциональным. Лучшим вариантом будет использовать диван-кровать, который может использоваться как кровать и как диван.
4. Шкаф. Шкаф должен быть функциональным и удобным. Лучшим вариантом будет использовать шкаф с ящиками для игрушек и стеллаж для одежды.
5. Ящик для игрушек. Ящик для игрушек должен быть удобным и функциональным. Лучшим вариантом будет использовать ящик с ящичками для игрушек.
Выбор мебели и текстиля
Теперь, когда вы определились с оборудованием детской комнаты, можно приступить к выбору мебели и текстиля.
1. Мебель. Мебель должна быть функциональной и удобной. Лучшим вариантом будет использовать мебель из дерева или мебель из пластика.
2. Текстиль. Текстиль должен соответствовать цветовой гамме детской комнаты. Лучшим вариантом будет использовать наволочку и простыни с рисунками, которые будут интересовать мальчика.
Итог
Теперь, когда вы определились с оборудованием, мебелью и текстилем, можно приступить к созданию идеальной детской комнаты для мальчиков за 17 006 рублей.
Список необходимых вещей:
- Мебель: кровать-диван, шкаф, ящик для игрушек
- Текстиль: наволочка, простыни
- Оборудование: шторы, жалюзи, настенные лампы, лампы на столе
Стоимость:
- Мебель: 10 000 рублей
- Текстиль: 3 000 рублей
- Оборудование: 4 006 рублей
Итого: 17 006 рублей
Теперь вы знаете, как создать идеальную детскую комнату для мальчиков за 17 006 рублей. Не забудьте, что главное – это создание комфортной и уютной атмосферы, которая будет приятной для мальчика.
Связанные вопросы и ответы:
Вопрос 1: Что включается в стоимость детской комнаты для мальчиков от 17 006 рублей
Ответ: Стоимость детской комнаты для мальчиков от 17 006 рублей обычно включает в себя мебель, такую как кровать, шкаф, стол и стул, а также аксессуары, такие как подушки, одеяло, простыни и коврики. В некоторых случаях стоимость также может включать в себя дизайн и отделку комнаты, такие как обои, лампочки и картины.
Вопрос 2: Какие факторы влияют на стоимость детской комнаты для мальчиков от 17 006 рублей
Ответ: Стоимость детской комнаты для мальчиков от 17 006 рублей зависит от многих факторов, таких как размер комнаты, качество и дизайн мебели, а также наличие дополнительных аксессуаров. Также стоимость может зависеть от региона, в котором находится комната, и от наличия доступных услуг по отделке и дизайн-проектированию.
Вопрос 3: Какие мебельные предметы обычно входят в комплект детской комнаты для мальчиков от 17 006 рублей
Ответ: Обычно в комплект детской комнаты для мальчиков от 17 006 рублей входят кровать, шкаф, стол и стул. Кровать может быть одно- или двухъярусной, а шкаф может быть размером от миниатюрного до полноразмерного. Стол и стул обычно соответствуют размеру и возрасту ребенка.
Вопрос 4: Какие аксессуары могут быть включены в стоимость детской комнаты для мальчиков от 17 006 рублей
Ответ: В стоимость детской комнаты для мальчиков от 17 006 рублей могут быть включены такие аксессуары, как подушки, одеяла, простыни и коврики. Также могут быть включены такие аксессуары, как лампы, обои, картины и другие декоративные элементы.
Вопрос 5: Какие услуги могут быть включены в стоимость детской комнаты для мальчиков от 17 006 рублей
Ответ: В стоимость детской комнаты для мальчиков от 17 006 рублей могут быть включены услуги по отделке и дизайн-проектированию. Эти услуги могут включать в себя консультации по дизайну, подбор материалов, изготовление мебели и монтаж. Также могут быть включены услуги по установке электроники и освещения.
Вопрос 6: Как выбрать подходящую детскую комнату для мальчика от 17 006 рублей
Ответ: Чтобы выбрать подходящую детскую комнату для мальчика от 17 006 рублей, важно обратить внимание на размер комнаты, возраст и предпочтения ребенка. Также важно учитывать качество и дизайн мебели, а также наличие дополнительных аксессуаров. Важно также рассмотреть возможность дополнительных услуг по отделке и дизайн-проектированию.
Что нужно учитывать при создании детской комнаты для мальчиков
Правила оформления комнаты для мальчика-подростка, выбор мебели и элементов декора, советы по зонированию спальни. Интересные дизайнерские направления для оформления комнаты, выбор цвета, создание правильного освещения.
- Реализовать дизайн в соответствии с общей стилистикой интерьера, но сформировать в детской отдельный угол или участок для воплощения идей мальчика;
- Использовать вариации с трансформацией – плакаты, специальная мебель и другие декоративные элементы, которые можно легко заменить.
- от 10 до 12 лет – возможно использование детского декора;
- от 13 до 16 лет – ярко выраженное подростковое направление;
- от 16 лет – явный уклон во взрослый интерьер.
- спальное и рабочее место;
- гардеробная;
- система хранения;
- визуализация личных успехов.
- необходимость в визуальном расширении или организации камерности пространства;
- зрительная корректировка высоты потолка;
- зонирование помещения по функционалу;
- подбор оттенков;
- внедрение декоративных элементов;
- использование компактной мебели.
- люстра;
- точечные источники света;
- настенные или настольные;
- декоры в виде светодиодных лент.
При оформлении комнаты для подростка нужно учитывать его вкусы и пожелания. Также можно реализовать дизайн с учетом интересов мальчика и его увлечений. Рассмотрим, как создать красивую, современную и уютную спальню для подростка.

Соответствие цвета комнаты общей стилистике квартиры
Как правило, родители хотят, чтобы дизайн детской комнаты сочетался с общим интерьером жилого помещения. Однако пожелания мальчика при оформлении комнаты могут отличаться от мнения родителей.
Не стоит противиться потребностям ребенка, особенно когда его комната полностью отделена. Закрытая дверь поможет снизить влияние дизайна детской на общую атмосферу интерьера жилого помещения.
Если планируется сохранить общую стилистику в жилом помещении и при этом учесть мнение ребенка, придерживайтесь таких рекомендаций:

Комната для мальчика
При выборе материалов для отделки обязательно учитывайте мнение юноши. Лучше всего, чтобы он принимал в этом личное участие. Подростки от 16 лет должны сами осуществлять выбор материалов для своей комнаты.
Ориентир на возрастную категорию мальчика
Возрастная категория подростков должна учитываться при выборе стилистики комнаты:

Комната для подростка с дополнительной кроваткой для второго малыша
Функциональное наполнение комнаты
Детская комната должна обязательно иметь такие функциональные зоны:
Помимо этого, функционал может быть расширен, в зависимости от личных предпочтений ребенка или размеров комнаты. Как правило, помещение дополняют спортивным уголком, гостевой зоной, читальным местом и пространством для занятия музыкой.

Функциональная комната для подростка
После уточнения функциональности пространства подростка принимаются окончательные решения по планировке, применяемым отделочным материалам и мебели.
Размеры комнаты
Размеры комнаты влияют на принятие таких важных решений:

Оформление небольшой комнаты для мальчика
Освещение
В детской комнате необходимо обеспечить естественное освещение. При недостатке солнца следует использовать светлые отделочные материалы. Также оконный проем оформляется с помощью воздушных тюлей или полупрозрачных занавесок.
Рекомендуется использовать мебель в идентичных оттенках со стенами. Большое количество солнечных лучей позволяет использовать больше вариаций для оформления интерьера.
При планировке искусственного освещения необходимо учитывать уровень естественного света. При этом источники света рекомендуется располагать так, чтобы была освещена каждая отдельная функциональная зона. Для этого используются такие виды источников света:

Какие цвета и материалы лучше использовать для дизайна детской комнаты для мальчиков
Оформление и функционал детской комнаты для мальчика, в первую очередь, зависят от возраста ребенка. Если малышу достаточно комфортабельной кровати и небольшого игрового уголка, то школьнику, и тем более подростку, потребуется рабочее место, зона для отдыха и общения с друзьями, а также место для занятий спортом и творчеством.
До 3-х лет. Комната 10 кв. м для малыша
Интерьер маленькой детской комнаты 10 кв. м для малыша лучше реализовать в светлой гамме: в приоритете теплые молочные, сливочные и кремовые оттенки, которые можно сочетать с холодным белым. Из функциональных зон в комнате необходимо обустроить спальное место, систему хранения и игровой уголок, подобрав для них максимально безопасную и устойчивую мебель. На пол можно положить простой в уходе, гипоаллергенный и приятный в тактильном плане ковер. А для мамы потребуется удобное кресло.
3-5 лет. Детская 29 кв. м для маленького мальчика
Дизайн детской комнаты для маленького мальчика 3-5 лет — площадка для игр и познания мира. Она должна быть безопасной, уютной, с мотивирующей обстановкой. Отличная идея оформления такой комнаты — использование дизайнерских обоев со сказочным сюжетом и ярких цветовых акцентов. Но фон лучше выбрать светлый, например, небесно-голубой. И, конечно, необходимо наполнить комнату функциональными элементами: уголком для игр со столиком для творчества и грифельной доской, встроенной системой хранения.
5-7 лет. Интерьер 12,5 кв. м для дошкольника
Окружающий дошкольника интерьер должен как можно лучше отражать индивидуальность ребенка, ведь в этом возрасте активно формируется личность. Кроме того, стоит предусмотреть побольше мест для хранения развивающих игрушек и книг (ребенок будет активно ими пользоваться, так что все полки и ящики должны быть в доступе и легко открываться). Понравится дошкольнику-непоседе и компактный скалодром.
7-14 лет. Дизайн комнаты 14 кв. м для школьника
Приоритетной зоной в интерьере детской комнаты 14 кв. м для мальчишки-школьника 7-14 лет является рабочее место, которое лучше расположить у окна и укомплектовать книжными полками, стеллажом, шкафом. Не менее важно обустроить зону для отдыха. Ее можно совместить с местом для сна, добавив к кровати большое кресло, и обособить легкой перегородкой-ширмой. А для физического развития надо купить модульный спортивный уголок, который поместится даже в маленькой комнате.
14-19 лет. Детская 14 кв. м для мальчика-подростка
Интерьер комнаты 14 кв. м для мальчика-подростка — это отражение его внутреннего «я», так что, скорее всего, ребенок захочет поучаствовать в оформлении помещения. С ним можно обсудить цветовое решение и планировку, выбор мебели и текстиля. А подбор декора, например, постеров с изображением любимых киногероев или персонажей комиксов, можно полностью доверить хозяину «апартаментов».
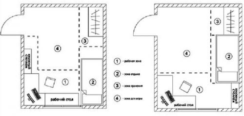
Как распределить пространство в детской комнате для мальчиков

Обустройство детской зависит от площади комнаты, геометрических размеров, освещенности в течение дня, количества и возраста детей. Кроме этого необходимо продумывать меблировку на перспективу, ведь малыши быстро растут, а приобретать новые гарнитуры через пару лет будет накладно. Дизайнеры редакции Homius выделили 10 правил расстановки мебели в детской, которые помогут сделать комнату более комфортной и функциональной.

Расстановка мебели для двух деток в прямоугольной комнате
Планируем расстановку на бумаге
Предварительно необходимо всё спланировать на бумаге: начертить план помещения в масштабе с обозначением окон и дверей , а также радиаторов отопления . Затем нужно определить месторасположение основных секторов:
- письменного стола ;
- зоны отдыха;
- сектора хранения предметов гардероба;
- игровой и спортивной зоны .
В зависимости от возраста ребёнка определяют оптимальную площадь для каждого сектора. Например, дошкольникам основное пространство отводят под игровую зону, для письменного стола и шкафа нужно совсем мало места. Со временем понадобится полноценный рабочий стол с оргтехникой и вместительный шкаф для хранения одежды, игровая зона заменяется спортивным уголком .
Совет! Можно использовать специальные онлайн-программы для планирования размещения модульных групп. Второй вариант: нарисовать все предметы мебели в масштабе на бумаге, вырезать их и моделировать разные сценарии расстановки вручную.



Как выбрать мебель для детской комнаты для мальчиков

Как правильно выбрать и установить мебель для детской комнаты для мальчика? Для оформления помещения нужно подходить основательно: в первую очередь она должна быть уютной и комфортной для ребёнка. От этого зависит его настроение, ведь в ней малыш будет проводить большую часть времени. Кроме этого, она должна быть безопасной, мальчики очень подвижны, и ничто не должно травмировать их во время игр. Прежде чем выбрать мебельные группы, следует учитывать, сколько детей будет проживать, их возраст, пол , а также стиль . Какие основные требования и на что обратить внимание при выборе мебельных групп, сегодня расскажем в этой публикации.

Уютная комната для двух мальчиков
Критерии выбора мебели для детской комнаты мальчика
Чтобы выбрать мебель для мальчика, важно учитывать основные требования, с помощью которых помещение будет не только комфортным, но и безопасным .
Основное требование: устойчивость и надёжность
Это важный критерий, поскольку мальчики очень активны и не отличаются аккуратностью. При выборе мебели руководствуются следующими критериями:
- углы и грани детской мебели мальчика должны быть закруглены, особенно это касается маленькой комнаты ;
- желательно отказаться от предметов кустарного производства, отдавая предпочтение сертифицированным изделиям;
- все элементы должны быть хорошо закреплены, чтобы в процессе активных игр ничто не травмировало ребёнка;
- вся мебель должна быть изготовлена из экологически чистых материалов. Идеальный вариант – натуральное дерево или его более дешёвый аналог – МДФ.
Это важно! На безопасности ребёнка экономить нельзя. Только проверенные производители могут гарантировать высокое качество мебели согласно ГОСТам.
Комфортная эксплуатация
Мебель в первую очередь должна соответствовать возрасту ребёнка. Нельзя покупать предметы на вырост, для малыша производители дополняют кровать защитными бортиками . Современные модульные группы могут расти вместе с мальчиком. Специальные встроенные механизмы позволяют регулировать высоту стола, стула или длину кровати. Все мебельные группы должны быть комфортными в эксплуатации, чтобы ребёнок мог без труда использовать их.
Красивый дизайн
Основной критерий при выборе мебели для мальчика: она должна ему нравиться. Он ещё не понимает всех технических составляющих, например, насколько полезен ортопедический матрас . Старый письменный стол у него вызовет откровенную неприязнь, это отразится на успеваемости и характере. Нужно учитывать современные тенденции и мнение ребёнка при оформлении детской, только такая комната будет для него комфортной. Можно предложить сделать тематический дизайн , например, морской или автомобильный, в такую комнату мальчик с радостью позовёт друзей.

Грамотно подобранная мебель в комнату мальчика-подростка
Какая бывает мебель в детскую комнату для мальчика: фотопримеры готовых интерьеров
После того как родители определились, какая комната будет отведена под детскую, нужно начинать её обустраивать. Выбор мебельных групп зависит от площади. Для совсем маленьких помещений обратите внимание на. Это может бытьили. Для больших комнат можно рассматриватьсо спальным и рабочим местом,и игровой зоной. Примеры дизайна детской мебели для мальчика представлены в нашей фотоподборке.
Это важно! Правильно обставленная комната будет способствовать развитию творческих способностей мальчика и становлению его характера.
Самое важное для ребёнка − здоровый сон
Кровать должна быть удобной, нужно выбрать такую высоту, чтобы под ней могли разместиться выдвижные ящики для хранения.
Совет! Обязательно нужно выбрать ортопедический матрас по размерам кровати. Желательно купить и дополнительный съёмный чехол.
Каркас должен быть изготовлен из натуральной древесины или МДФ, это прочные и экологически чистые материалы. Все поверхности должны легко чиститься, чтобы с детства приучать ребёнка к.


Как организовать освещение в детской комнате для мальчиков
Рецепт правильно подобранного освещения для детской комнаты не сложен, но при этом очень важен. Правильным светом легко создать настроение, внести изюминку за счёт форм и тематики, добавить интерьеру уюта и комфорта.

7 базовых правил при планировании освещения в детской комнате
- Освещение должно быть функциональным. Как правило, детская комната включает в себя три зоны: игровую, рабочую и для спокойного отдыха. Для каждой зоны должен быть предусмотрен свой тип освещения. Так, для рабочей и игровой части лучше всего остановиться на потолочном варианте освещения, дополнительно предусмотрев настольный вариант. А вот для спокойного отдыха выбирайте настенные светильники или бра.
- Выбирайте практичные модели, не занимающие много места.
Так как все дети очень любят играть в активные игры не только на улице, но и дома, существует вероятность повреждения светила и травмирования ребёнка. Например, нечаянно попасть мячом, задеть скакалкой, подкинуть подушку. Зачем нам с вами лишние неприятные хлопоты? - Учитывайте высоту потолков и размер пространства. Согласитесь, нелепо будут смотреться свисающие модели светильников в малогабаритных комнатах с низким уровнем потолков. Потолочный вариант за счёт прилегания к потолку визуально добавляет больший объём пространству в комнате.
- Свет должен соответствовать стилистике интерьера детской комнаты. Гармония в доме и душе начинается с мелочей.
- Придерживайтесь правила, что детские комнаты должны быть хорошо освещены. Помните, что каждая из зон в комнате подразумевает свой необходимый уровень интенсивности света. Слишком тусклое освещение может привести к проблемам со зрением у ребёнка.
- Отдавайте предпочтение светодиодным источникам света , так у них температура нагревания менее низкая в отличие от обычных ламп накаливания, что, безусловно, указывает на её безопасность для ребёнка.
- Наполняйте интерьер детской экологичными предметами. Несмотря на свою безопасность в отличие от стеклянных, приборы из пластика — не самый лучший вариант для оформления детской комнаты. Так как он может быть токсичным и в процессе использования может начать выделять формальдегид и другие вредные вещества. Поэтому, более экологичным выбор будет в сторону металлических плафонов/оснований.
Как создать уютную атмосферу в детской комнате для мальчиков
Определяясь, в каком тоне оформить стены, потолок в помещении, какую мебель и декор выбрать, нужно учесть, что все эти элементы в пространстве могут вызывать определенные эмоции и ассоциации у ребенка. В большинстве случаев они связаны с цветовыми сочетаниями.
Популярный в оформлении детской комнаты для мальчика синий цвет не только поможет придать интерьеру красивый вид, но и будет способствовать чувству спокойствия, умиротворения и комфорта. Зеленые цвета ассоциируются с природой и позволяют погрузиться в гармонию.

Осторожнее нужно с красными цветами в интерьере. Они действуют возбуждающе и могут провоцировать агрессивность. Его должно быть в комнате немного и обязательно в сочетании со спокойными цветами.
Красной может быть небольшая подушка или узоры на постельном белье. Модный желтый цвет для детской комнаты вызывает чувство радости и оптимизма. Однако и с ним нужно соблюдать умеренность, поскольку слишком яркие оттенки могут вызывать раздражение.
Серый делает атмосферу в пространстве нейтральной и спокойной. Однако его сочетают с яркими оттенками в интерьере, чтобы избежать чувства скуки.

Определяясь, в какой цвет покрасить детскую комнату, нужно учесть, насколько гармонично будет комбинация оттенков в пространстве. Популярными вариантами являются:
- синий и белый выглядят свежо и подчеркивают чистоту в комнате;
- зеленый и коричневый впишутся в природно-тематические комнаты - зеленый цвет освежает интерьер, а коричневый придает ему спокойствие и уют;
- серый и красный –красиво сочетаются и придают спальне для мальчика стильный вид;
- оранжевый и желтый формируют жизнерадостную и энергичную атмосферу – эти цвета используют для акцентов или в деталях декора;

- оранжевый и коричневый – необычное, но интересное сочетание;
- голубой и серый- популярные цвета для спальни мальчика, создающие эффект чистоты и свежести в пространстве;
- красный и синий – яркое и энергичное сочетание цветов, в котором один цвет берется за основу, а второй его дополняет в небольших количествах;
- серый и желтый светлое и веселое сочетание, идеальное для маленьких детей – серый может стать основным тоном в интерьере, а желтый – дополнительный, используют для ярких акцентов;
- черный и белый цвета - смелое и современное сочетание тонов для детской комнаты мальчика подростка.
Как сделать детскую комнату для мальчиков безопасной
Спортивный уголок актуален в любой детской комнате, но особенно для мальчика. Многие родители отказываются от идеи организовать уголок в комнате для своего ребенка по причине недостаточной площади или того, что эти снаряды «не вписываются» в интерьер. На примере дизайн-проектов квартир из портфолио ГК «Фундамент» убедимся в том, что спортивный уголок при грамотной планировке не займет лишней площади, и даже сможет украсить интерьер детской.
6. Желто-синяя детская со спортивным уголком для мальчика-подростка

На фото: Дизайн детской для мальчика 12 кв. м в желто-синих тонах
В дизайне интерьера этой детской соблюдается двухцветное сочетание гармонирующих оттенков: желтого и синего. Спортивный уголок незаметно «подстраивается» под общее колористическое решение современной комнаты с элементами стиля лофт .
7. Функциональная перегородка в лофтовой детской

На фото: Функциональная перегородка и спортивный уголок в детской
Разделить функциональные зоны удобно с помощью функциональной перегородки, представляющей собой открытый стеллаж, в котором можно разместить игрушки и книги.
8. Спортивный уголок и грифельная доска в маленькой детской комнате

На фото: Интерьер маленькой детской со спортивным уголком и доской
Маленькая площадь детской комнаты – не повод лишать интерьер его функциональных возможностей. Спортивный уголок расположен в нише, образовавшейся между двумя вместительными стеллажами, а стена в этой области превращена в грифельную и магнитную доску, которая будет оценена по достоинству любознательным юным хозяином комнаты.
9. Разноцветный спортивный уголок – разделитель пространства

На фото: Дизайн яркой игровой зоны в детской со спортивным уголком
В детской комнате для двух мальчиков спортивный уголок делит интерьер на две функциональные зоны. Спальня и игровая зона отделены от кабинета, оборудованного у окна, где расположен письменный стол для обоих детей.
