Разводка канализации в доме без подвала своими руками. Основные требования
- Разводка канализации в доме без подвала своими руками. Основные требования
- Наружная канализация в частном доме. Схема наружной канализации в частном доме
- Внутренняя канализация в частном доме своими руками. Как сделать канализацию в частном доме?
- Правильная разводка канализации в частном доме. Что необходимо знать перед проектированием
- Правильная разводка канализации в квартире. Монтаж канализации в квартире
Разводка канализации в доме без подвала своими руками. Основные требования
Схемы по прокладыванию канализации в частном загородном доме требуется прорабатывать еще на стадии, когда будет произведено на стадии жилой постройки. Лучше всего будет заранее определиться с расположением всех труб и сантехники в коттедже. Непосредственная установка сточного трубопровода своими руками или при привлечении сантехников будет выполнена уже после того, как будут возведены стены, но еще до начала чистовой отделки.
Чтобы канализация внутри дома исправно функционировала и не появлялись засоры, требуется:
- Соблюдайте требуемую степень уклона сливных труб от сантехнических устройств до стояка.
- Сведите к минимуму количество сгибов и поворотов на канализационном трубопроводе.
- Предусматривайте возможность отведения газов из канализационной системы (фановый отвод).
- Установите сифоны для того, чтобы сформировать гидрозатворы.
- В требуемых местах монтируйте обязательно люки для чистки и ревизии.
- Выполняйте тепловую изоляцию трубы для канализации в подвале и улице (если это нужно).
Обратите внимание, что есть два основные документа, которые регламентируют разводку трубопровода канализации в загородном частном доме и отведение стоков в поселковую сети канализации или септик – это СНиПы 2.04.01-85 (то есть СП 30.13330.2012) и 2.04.03-85 (то есть СП 32.13330.2012). Именно в них и описаны все особенности по проектированию и установке системы отведения сточных бытовых вод из дома.
Наружная канализация в частном доме. Схема наружной канализации в частном доме

В прошлые десятилетия самым простым вариантом расположения внешней канализации подразумевалась прокладка отводящих труб от дома к обычной выгребной яме (она применяется и сейчас). Согласно современным гигиеническим стандартам и экологическим предписаниям, стоки необходимо перед сбросом в окружающую среду очищать. Поэтому современная наружная канализация включает в себя сочетание очистных сооружений и трубопроводов.
Перед началом работы нужно разработать план действий:
- Определить место нахождения канализации с учетом конструкции дома.
- Начертить схему с указанием труб и количества фитингов.
- Сделать на схеме заметки о метраже и составляющих проекта.
- Указать расчеты на самой схеме, которые помогут в последующей закупке необходимых строительных материалов.
Если человек хоть немного разбирается в правилах построения и монтажа для одноэтажного дома, а также СНиП, для него не составит большого труда построение схемы. Сложные проекты лучше предоставить профессионалам.
При составлении схемы наружной канализации нужно придерживаться следующих правил:
- Кухню и санитарный узел одноэтажного дома желательно расположить рядом, к близкому выводу стоков наружу.
- Двухэтажный дом предполагает наличие туалета на каждом этаже, поэтому влажные помещения надо располагать друг над другом, а трубы для вывода подключать к общему стояку.
- Необходимо проконсультироваться у специалистов, как правильно расположить и установить септики или насосную станцию.
- Учитывать климат, температурный режим и почву в месте проживания.
- Продумать, каким образом будет очищаться септик – с помощью ассенизатора или самостоятельно.
- Указать места нахождения разводки труб, коллекторов, колодцев или насосов в наружных канализациях.
При составлении схемы нужно знать о том, что стоки всегда должны течь по низу, а, значит, выходные трубы из дома должны быть расположены под углом, чтобы отходы стекали вниз, и выгребная яма (или септик) принимали их в самой низкой точке.
Также учитывается грунт, возможность его промерзания, высота прохода грунтовых вод. Эти факторы влияют на расчет глубины труб и выбора очистительных сооружений.
ВАЖНО! При устройстве наружной канализации всегда выполняют монтаж труб с последующим осуществлением разводки канализации.
Внутренняя канализация в частном доме своими руками. Как сделать канализацию в частном доме?
Обеспечение комфорта и качественной жизни в загородном доме является важным моментом для любого владельца такой постройки. Одним из факторов, которые позволяют обеспечить комфортную жизнь, является удобство оттока использованной воды и продуктов жизнедеятельности. Правильно рассчитанная на стадии проектирования и впоследствии правильно построенная канализация в частном доме будет залогом длительной эксплуатации, при которой не возникнет никаких проблем. Подобную конструкцию можно создать своими руками, если подойти к вопросу с максимальной ответственностью.

Основные требования
Во избежание каких-либо проблем в процессе создания канализации в собственном доме, лучше всего максимально следовать в данном процессе всем требованиям и стандартам, что расписаны в нормативной документации – СНиП. В этом случае все точно будет функционировать безотказно на протяжении длительного периода времени.
В какой угодно постройке, где проложен водопровод и есть забор воды, должна быть выполнена система, которая будет выводить стоковые массы. Механизмы водоотвода должны быть созданы и на участках. В целом такая сеть сможет не только обеспечить комфортную жизнь, но и не навредит экологии, а также существенно увеличит время пользования зданием.
Обычно канализация состоит из следующих систем:
- ливневой, которая отводит воду;
- наружной;
- внутренней.
Их необходимо проложить так, чтобы были соблюдены различные строительные сантребования к канализации в собственном доме.
Среди таких требований можно назвать:
- обеспечение нормального очищения;
- отсутствие риска в вопросе затопления постройки;
- обеспечение необходимого объема сточных вод;
- герметичное накапливание и транспортировка сточных вод.
Если говорить о требованиях к внутренним системам такого типа, то состоять они должных из следующих элементов:
- стояка, к которому прикрепляются все трубы;
- разведения труб, что осуществляет перекачивание сточных вод в направлении стояка;
- сантехприборов для водоотвода.


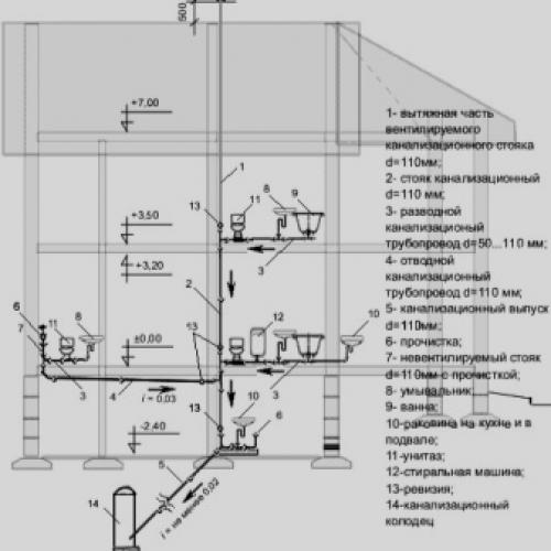
По нормам в механизме, часть которого расположена в постройке, должно быть достаточно места для свободного транспортирования жидкости от мест, где осуществляется слив до труб, которые осуществляют вывод за пределы постройки. При прокладывании канализации внутри постройки используют трубы из чугуна либо каких-то полимеров. На выходе размер такой трубы должен составлять 11 сантиметров. Естественно, что в данном механизме должна быть еще и вентиляция. Обычно ее проводят через стояк. Над каждым элементом делают вытяжное место, выходящее на крышу.


Если говорить о проекте наружных систем, то его создание осуществляется с учетом требований, прописанных в СНиП за номером 2.04.03-85.
По этому нормативному документу следует учесть следующие моменты:
- в механизме должны устанавливаться колодцы для обслуживания и очищения;
- для вычищения стоков нужна установка с применением биометодов;
- если речь идет о самотечной сети, то применяют полимерные, керамические или асбестоцементные трубы;
- трубы, которые размещены за границами постройки, должны быть в диаметре около пятнадцати сантиметров и заложены на уровне десяти-двенадцати сантиметров;
- если в строении мало этажей, то можно скооперировать несколько домов в единую сеть;
- если нельзя устроить самотечную систему, то лучше сделать выбор в пользу напорной канализации.


Еще один важный момент – подбор конструкции. Это действительно важно при проектировании канализационной автономной сети.
Тут могут быть три варианта септиков, которые используются:
- аэротенки;
- накопительный септик;
- очистной.
Теперь скажем о них чуть подробнее. Аэротенки – новейшие решения с использованием нескольких очистительных методик. После применения подобного септика жидкость очищается почти до 100-процентного значения. Воду можно легко выводить в землю, водоем и применять для полива. Септик накопительной категории является улучшенным вариантом выгребной ямы, в которой очистка не осуществляется, а лишь собираются стоки. Когда септик наполняется до определенного уровня, появляется необходимость его очистки. Обычно это осуществляется при помощи специального ассенизаторского оборудования.
Если говорить об отличиях от выгребной ямы, то никакой фильтрации в грунт в этом случае не осуществляется. Это значит, что никакого вреда экологии не наносится. Но все же данный вид септика применяется в последние годы крайне нечасто по причине дороговизны стоимости услуг специальной ассенизаторской техники. Такой тип можно использовать лишь тогда, если в доме вы проживаете сравнительно нечасто.
Правильная разводка канализации в частном доме. Что необходимо знать перед проектированием
Для проектирования системы нужно дать ответы на такие вопросы:
- Есть ли возможность подключиться к городской магистрали, придётся ли производить только сбор канализационных отходов или необходимо организовать ещё и их очистку?
- Какой объём сточных вод будет перерабатываться? Это зависит как от количества и сезонности проживающих в доме людей, так и от наличия и разновидности водоразборных точек.
Рисунок для наглядности — расход воды в сутки
- Следует выяснить глубину, на которую промерзает почва. Это нужно для правильного заглубления канализационного выпуска.
- УГВ – отметка, на которой располагается зеркало грунтовых вод (как проводятся инженерно-геологические изыскания читайте в статье). Если они расположены высоко, на приусадебном участке может сооружаться ещё и канализация для сбора ливневых стоков.
- Необходимо оценить, способствует ли рельеф участка тому, чтобы стоки могли сливаться самотёком. В противном случае, придётся задействовать фекальный насос , и нужно сразу определить место, где он должен быть установлен.
Как правильно сделать канализацию в частном доме, если придётся пользоваться насосом
- При устройстве очистных сооружений, нужно сразу определиться с их типом, рассмотреть возможность доступа ассенизационной техники (как проводится откачка и чистка септиков читайте в статье).
- Необходимо точно установить тип грунта на участке, в соответствии с которым принимается решение либо по устройству дренажного колодца , фильтрационных траншей или полей.
- Требуется начертить схему с указанием всех видов сантехнического оборудования. При этом надо учитывать вариант прокладки трубопровода: внутри пола или поверхностно, чтобы понимать, придётся ли производить какие-либо демонтажные работы.
Для чего нужна схема с разводкой внутренней сети? В первую очередь, чтобы правильно рассчитать количество необходимых материалов и точно определить место их нахождения в системе.
Правильная разводка канализации в квартире. Монтаж канализации в квартире
Монтировать канализацию в квартире приходится в кратчайшие сроки, ведь сеть водоотведения в многоквартирном доме общая, и монтажные работы причиняют неудобства соседям. Поэтому нужно заранее запланировать порядок действий, определиться с набором стройматериалов, провести необходимую подготовку рабочего пространства.
Особенности процесса
Устройство канализации в квартире имеет нюансы в зависимости от того, производится ли замена старого трубопровода или его монтируют с нуля.
Рекомендуем ознакомиться: Как сделать вентиляцию пластиковых окон
Влияют на процесс монтажа и материал труб и способ их соединения.
При замене трубопровода в квартире нередко необходимо заменить и стояк. Можно договориться с соседями сверху и снизу и вывести узлы соединения старой и новой труб к ним.
Если же по каким-то причинам это невозможно, места соединения старого и нового стояка либо не закрывают вовсе, либо прячут в стену или шкаф, оставив ревизионные отверстия с дверцей или съёмной панелью.
Для общего удобства обычно стык стояка делают на каждом этаже максимально близко к полу, чтобы минимизировать ущерб в случае протечки.
Лёгкие трубы из полимеров можно собрать в крупные звенья на свободном пространстве и уже в таком виде установить на место и подключить к сантехнике и бытовым приборам.

Соединение труб может быть разъёмным и неразъемным. К разъёмным относятся резьбовое и компрессионное. Разъёмные узлы в случае поломки можно отремонтировать, поэтому их не прячут за монолитными конструкциями, а закрывают коробами, которые при необходимости можно легко открыть.
Неразъемное соединение – сварное, раструбное или запрессовочное – надёжно, но для ремонта узла необходим его демонтаж.
Подготовительные работы
Чтобы уложиться в несколько часов, и не доставлять неудобств себе и соседям, нужно хорошо подготовиться к предстоящим работам:
- Определиться с расположением всех подключаемых к системе водоотведения приборов.
- Начертить схему будущей канализации, учесть места ввода для подключаемого оборудования, которое планируется в будущем.
- Рассчитать количество и размеры труб.
- Рассчитать количество необходимых в работе составов и дополнительных деталей: фитингов, запорной арматуры и крепёжных элементов.
- Нарезать трубы согласно схеме, зачистить наждачной бумагой края отрезов.
Обратите внимание! Нарезку выполняют строго перпендикулярно оси трубы. Это обеспечит надёжное соединение при использовании фитингов, а при сварном методе соединения позволит выполнить шов минимальной длины.
- Разметить линии прокладывания трубопровода и точки крепления его к стенам.
- Провести контрольную сборку трубопровода до перекрытия стояка, проверить наличие всех необходимых элементов.
Установка вертикальной части системы
Вертикаль канализационной системы – это стояк, через который сточные воды отводятся в общедомовую канализацию. В многоквартирном доме нагрузка на стояк особенно велика, ведь к нему подключаются все находящиеся друг над другом квартиры. Стояки во всех квартирах делают строго одного диаметра. Как правило, стояк имеет сечение не меньше 11 см, но при замене вертикальной канализационной трубы новую берут того же диаметра, какого была старая.
Рекомендуем ознакомиться: Особенности и виды труб для воздуховодов круглого сечения

В нижней части стояка устанавливается тройник, к которому будет подключаться горизонтальная часть квартирной канализационной сети. Для свободного стекания жидкости необходим уклон от сантехнических и бытовых приборов к стояку.