Строим фундамент для забора с кирпичными столбами. Строим забор с кирпичными столбами
- Строим фундамент для забора с кирпичными столбами. Строим забор с кирпичными столбами
- Фундамент под забор с кирпичными столбами. Как сделать фундамент для забора с кирпичными столбами.
- Фундамент под столбы для забора. Фундамент для забора с кирпичными столбами: схемы и видео
- Глубина фундамента под кирпичный забор. Re: Фундамент под кирпичный забор
- Забор с кирпичными столбами своими руками. Кладка кирпичных столбов для забора – технология строительства
- Фундамент для кирпичного забора своими руками. Возведение фундамента для кирпичного забора
Строим фундамент для забора с кирпичными столбами. Строим забор с кирпичными столбами
Приобретение и обустройство загородного участка – дело хлопотное, требующее учета всевозможных деталей. Но все же первым делом, желательно возвести прочное и надежное сооружение, каковым является забор. Часто для строительства ограждения люди нанимают специальные строительные команды, но подобную работу можно сделать и самостоятельно. Главное прислушаться к советам специалистов и запастись терпением.
Алгоритм проведения строительных работ

Прочность и долговечность ограждению придадут капитальные опоры, которыми являются столбы для забора из кирпича установленные на монолитном фундаменте. Но для начала необходимо составить алгоритм выполнения работ. Это поможет в дальнейшем поэтапно спланировать проведение монтажа, произвести правильные расчеты материала, требующегося для возведения конструкции. И в итоге, владелец участка сможет построить качественный, аккуратный и прочный забор, сэкономив при этом время и деньги.
Перед тем, как построить забор с кирпичными столбами, необходимо определиться с его размерами и оформлением. Только после этого следует приниматься за возведение конструкции.
- Хорошим решением может стать заказ проекта ограждения специалистам. Особенно, если это сложный кирпичный забор, обладающий нестандартными размерами и формами. В этом случае необходимо как можно более точно определить глубину фундамента, количество и усиление столбов, другие производственные нюансы. Забор, возведенный без соблюдения определенных требований, очень быстро придет в негодность.
- Строительство забора из профнастила с кирпичными столбиками начинается с разметки участка. Горизонтальность ограждения определяется с помощью шнура, натянутого на колышки, вбитые по периметру. Вместе с этим, намечается место под ворота и калитку.
- Фундамент под кирпичные столбы забора должен быть основательным. Таковым является ленточная монолитная конструкция. Для начала следует вырыть траншею (примерно 35-45 см шириной), ориентируясь по линии натянутого шнура. В тех местах, где намечена установка столбов, нужно пробурить ямы на глубину промерзания грунта. Далее, из обрезной доски изготавливается опалубка, а лента фундамента армируется металлической сеткой.
- В ямы, строго вертикально, устанавливаются трубы с сечением 60 мм. На первой и последней трубе закрепляется с натяжением шнур, по которому выставляются остальные. Важно знать: если грунт пученистый, то нижний конец трубы нужно оснастить металлической пластиной.
- Теперь конструкцию можно залить бетоном. Раствор готовится из цемента, песка и воды, с добавлением щебня или шлака.
- Ленточный фундамент под забор с кирпичными столбами набирает прочность в течение недели. После того, как он полностью затвердеет нужно выполнить гидроизоляцию (цементная стяжка или мастика) и можно класть кирпич.
- Кладка кирпичных столбов для забора требует особого контроля: за вертикальностью углов и стен забора, и горизонтальностью уложенных рядов. Расшивка швов выполняется одновременно с укладкой кирпичных рядов. Детали, используемые для навешивания ворот или калитки, фиксируются в столбах также во время кладки.
- Последний момент – это монтаж колпаков из металла на столбики из кирпича для забора.
Фундамент под забор с кирпичными столбами. Как сделать фундамент для забора с кирпичными столбами.

Фундамент под забор с кирпичными столбами.
Выбор типа фундамента под забор с кирпичными столбами зависит от требований, предъявляемых к обустройству ограждений. Если они не соблюдаются, то через некоторое время конструкция может покрыться трещинами, что станет причиной разрушения всего сооружения. Размеры толщины и высоты забора при этом не будут играть никакой роли. Поэтому при подготовке к выполнению работ необходимо иметь в виду, что без фундамента своими руками можно обустраивать только обычную деревянную изгородь.
Подготовка к возведению забора из кирпича.
Для сооружения фундамента под забор из кирпича необходимо выбрать такой тип основания, который в максимальной степени будет подходить к массивному ограждению. Перед установкой забора с кирпичными столбами следует иметь в виду, что внутри них должны быть металлические стойки или трубы диаметром 80 мм, забетонированные в фундамент. Их можно заменить арматурными стержнями в количестве 6 шт.
Если все кирпичные столбы фундамента закреплены сердцевиной определенного типа, то она послужит надежной опорой для конструкции. В любом случае крепление кронштейнов для монтажа лаг осуществляется именно к трубам или арматуре. При возведении опор возле ворот или калитки потребуется рассчитать дополнительную нагрузку, поэтому важно правильно выбрать тип сердцевины для столбиков из кирпича.
Когда основа для кирпичных столбов уже подготовлена, можно переходить к определению расстояния между опорами. Профессионалы рекомендуют производить установку столбов через каждые 2,5-3,0 м. Чем более массивным и высоким будет сооружение из кирпичей, тем более плотным должно быть размещение столбиков. Высота кирпичной опоры может составлять 2-3 м.
При соблюдении этих правил можно возвести ограждение вокруг дома, отвечающее требованиям надежности и прочности, а также оптимальности по расходам финансовых ресурсов. После прохождения подготовительного этапа следует перейти непосредственно к заливке фундамента под кирпичные столбы забора.
Фундамент под столбы для забора. Фундамент для забора с кирпичными столбами: схемы и видео
Ограждения с колоннами из кирпича относятся к классу изгородей «люкс». Фундамент под забор с кирпичными столбами – это неотъемлемая часть такой конструкции. От того, насколько качественно и правильно он будет выполнен, зависят устойчивость и долговечность всей конструкции. К его строительству нужно относиться внимательно и соблюдать технические нормы, чтобы ограждение не стало большим разочарованием.
Знание особенностей конструкций поможет сделать правильный выбор.
Виды фундамента
Рассмотрим виды оснований, их применение и технические параметры.
Ленточный
Ленточный фундамент используют для тяжелых конструкций, построек из кирпича, блока. Выглядит он, как бетонная лента. Монолит применяют на грунте с хорошей несущей способностью.
Подготовка перед окончательным монтажом
Для строительства нужно:
- вырыть траншею шириной 40 см, глубиной 50 см;
- на дно уложить песчано-гравийную подушку толщиной 15 см. Смесь тщательно утрамбовать;
- выставить опалубку;
- связать арматурный каркас из арматуры диаметром 8–10 мм;
- установить металлические опоры под кирпичные колонны на расстоянии 2–3 м. Используют профильную трубу 50х50 мм или толстостенную круглую трубу диаметром 40 мм и выше;
- готовую конструкцию заливают бетоном М200.
Опалубка перед бетонированием
Столбчато-ленточный
Столбчато-ленточный (комбинированный) фундамент выглядит, как ленточный монолит, с одним отличием – в местах, где устанавливают столбы, бурят лунки.
Применяют, торфяной или рыхлой почве, используют для тяжелых комбинированных ограждений. Для строительства применяют технологию, аналогичную при изготовлении ленточного монолита, меняются только размеры фундамента:
- роют траншею шириной 40–50 см, глубиной 80 см;
- в местах, где, бурят скважину глубиной 1,2–1,5 м.
Схема установки профлиста на основание
Столбчатый
Он выглядит как отдельно залитое основание под колонну. Применяют для легких комбинированных заборов. Для строительства нужно:
- вырыть лунку глубиной до 1,5 м, шириной 40 см;
- дно засыпать слоем песка и гравия толщиной 15 см;
- вставить трубу, у основания горизонтально приварить куски арматуры по 25 см для лучшего сцепления с бетоном. Для столбиков используют профильную трубу 50х50 мм или аналогичных размеров круглую трубу;
- залить бетоном.
Схема столбчатого основания
Что влияет на выбор фундамента
Чтобы избежать неприятностей, связанных с деформацией забора, нужно учитывать:
- вес конструкции;
- тип почвы;
- глубину промерзания почвы.
В процессе работы
Вес
Вес зависит от материала, из которого сделан забор. На строительство двух столбов и двухметрового пролета, выложенного из кирпича, уходит 0,3 м3 бетона и 0,7 м3 кирпича общим весом 1700 кг.
Такое ограждение тяжелое, для него делают ленточный или комбинированный фундамент.
Для, дерева или металлическихдостаточно забетонировать столбы, а для надежности – связать лентой небольшого заглубления.
Ограждение из профлиста
Грунт
Важно учитывать грунт, на котором делают бетонную основу. На песчаном или торфяном грунте лучше использовать ленточный монолит шириной 25 см, глубиной 40 см. Марка бетона – М200.
На глинистой поверхности – ленточный или комбинированный. Ширина фундамента – 25 см, глубина – 50 см. Глубина лунок под колонны – 1,5 м. Марка бетона – М200.
На супеси используют монолитную ленту шириной не менее 25 см, глубина фундамента – 50 см. На дно укладывают песчаную подушку. Марка бетона – М200.
Глубина промерзания почвы
Фундамент заливают ниже отметки промерзания почвы, в противном случае конструкция может деформироваться.
Установка каркаса
В том случае, когда уровень промерзания низкий, применяют плавающий тип фундамента. Роют траншею глубиной 60 см. На дно засыпают слой щебня толщиной 10 см, тщательно утрамбовывают. Остальной объем ямы засыпают песком и уплотняют.
На подушку заливают монолитную армированную ленту высотой 40 см и шириной 30 см в зависимости от конструкции забора. Армируют монолит арматурой диаметром 10–12 мм.
Это основные условия для правильной оценки ситуации, чтобы решить, какое основание для забора с кирпичными столбиками выбрать.
Глубина фундамента под кирпичный забор. Re: Фундамент под кирпичный забор
- Процитировать
Забор из кирпича справедливо считается самым долговечным и практичным, а вместе с ковкой, пожалуй, и самым красивым. Но для того, чтобы забор прослужил долго необходимо знать несколько нюансов.
Самое важное в строительстве кирпичного забора - это фундамент. Кирпичная кладка не дерево и на процессы, которые происходят в почве во время морозного пучения, может в случае ошибки в выборе фундамента ответить трещинами и разрушением. Причем особенно не важна высота забора и его толщина. Фундамент должен быть одинаково прочным как для 3-х метрового забора толщиной в кирпич, так и для невысокого заборчика в полкирпича. В современной практике существует два подхода для устройства фундамента под кирпичный забор.
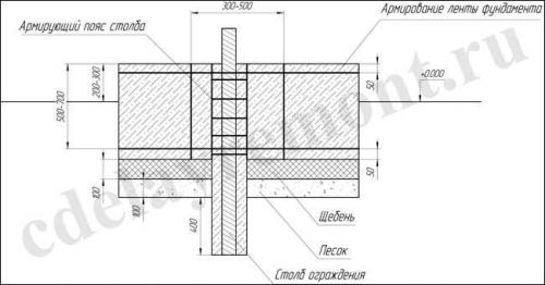
1. Ленточный фундамент. Ширина ленты принимается 40 см, глубина 40-50 см. Обычно 30-40 см под землей, остальное над землей. Армирование ленты делают 12-14 арматурой (две сверху и две снизу).
2. Ростверк. Под кирпичные столбы делается фундамент на глубину промерзания (обычно 120-150 см), а между столбами лента с армированием аналогично первому варианту.
И тот и другой подход в средней полосе применяется повсеместно, однако более предпочтителен и надежен второй вариант с ростверком. На практике бетона в таком случае уходит в два раза больше, но и долговечность забора с таким фундаментом будет выше. Часто также под опоры и ленту устраивают песчаную подушку пролитую водой и утрамбованную, что также снижает риск смещения фундамента.
Бетон для фундамента используют марки не ниже М-200 и заливают за раз. Необходимо учитывать, что вода из бетона частично уходит в грунт, поэтому, если покупать готовый бетон с завода с доставкой миксером, необходимо заказывать на 10% больше расчетного объема.
Расстояние между кирпичными столбами может варьироваться от 2 до 3 метров. Это зависит от общей длины забора. Чем больше длина и площадь участка, тем большее расстрояние нужно делать. Высота столбов в частном строительстве принимается 2 метра. Оптимальная ширина калитки 1 метр. Можно сделать 120 см, но не менее 90 см. Если кирпичный забор не облицовывается, то для кладки используют одинарный облицовочный кирпич М-150. Часто между фундаментом и кипричной кладкой делается гидроизоляция для того, чтобы капиллярная влага не проникала в кладку и не разрушала нижние слои. Самым простым способом гидроизоляции является укладка поверх бетонного фундамента 1-2 слоев рубероида.
Чтобы хоть как-то защитить кирпичную кладку от дождей, которые наиболее опасны в межсезонье в период заморозков, сверху часто делают цементную стяжку, кладут плитку, керамогранит, натуральный или искусственный камень. Также иногда можно встретить заборы в которых последний ряд кирпича лежит на ребре лицевой частью наружу. Это позволяет отказаться от применения не очень красивой цементной стяжки. Также защищают столбы. Но для столбов, кроме того, производители выпускают крышки или плиты из керамики, металла, камня и других материалов. Они выгодно подчеркивают забор и защищают столбы от осадков.
Забор с кирпичными столбами своими руками. Кладка кирпичных столбов для забора – технология строительства
При установке ограждения в частном секторе основные требования к конструкции ‒ защита и долговечность. Если использовать кирпич, то можно добиться дополнительной жесткости, усилив строение.

Забор с кирпичными столбами ‒ хороший вариант ограды с надежными опорами. Соблюдая пошагово руководство от мастеров, его получится возвести самостоятельно.
Пользователи часто ищут
Определяем вид конструкции
Начинают работу с тщательного составления чертежа. На схеме нужно отобразить:
- тип грунта;
- вид, высоту фундамента;
- высоту столбов;
- расположение, площадь ограды на участке;
- размеры ворот, калитки;
- шаг между опорами;
- материал для заполнения проемов;
- коммуникации, которые могут проходить под ограждением.

Схема забора со столбами из красного кирпича
Важно правильно выполнить расчет нагрузки на основание, чтобы забор выдержал вес материалов и не начал рушиться.
Кроме того, стоит помнить о требованиях СНиП к оградам. Подробные рекомендации действующего законодательства вы найдете в статье: «».
Материалы для секций
Рассмотрим каждый тип детальнее.
Профнастил
Отлично сочетается со столбами из кирпича. Большой выбор цветов. Легок по весу. Устойчив к коррозии. Листы не выгорают на солнце. Цена доступна. Популярен среди дачников и владельцев частных домов. Сделать такую ограду можно своими руками.

Единственный недостаток такого забора ‒ обязательное наличие металлической рамки, на которую будут крепиться листы. Допускается монтаж профнастила на бескаркасную основу, но в этом случае прочность конструкции будет гораздо меньше.
Ковка
Изгородь отличается длительным сроком службы, эстетичностью. Не нуждается в уходе. В руках мастера из кованого забора может получиться настоящая картина, орнамент. Любой элемент ограды выполняется на заказ. Стоимость за 1 кв. м колеблется от 2500 рублей и выше. При необходимости разрабатывается чертеж. Но устанавливать такой забор лучше со специалистами.
Дерево
Натуральное сырье, которое рекомендуют применять в качестве секционного материала для изгороди, но не более. Древесина подвержена гниению, поэтому не должна контактировать с грунтом, иначе срок службы изделия будет ограничен.
При условии качественной обработки антисептиками и другими защитными составами время эксплуатации получится продлить до 50 лет.


Для заполнения проемов деревянного забора с кирпичными столбами используют:
- евроштакетник;
- плетеную лозу;
- доски;
- щитовой каркас.
Кроме того, раз в несколько лет ограду нужно подвергать повторной обработке и покраске.
Металлопрофиль
За основу берутся профильные трубы, из которых можно возвести столбики для забора, а секции заполнить профлистом, шифером. Другой вариант ‒ сделать сварную конструкцию из прутьев, труб, установить ее между кирпичными, каменными столбиками. Отлично дополнит композицию художественная ковка, созданная в выбранном стиле.
Еврозабор

Готовый секционный материал. Разновидность ЖБК. Пролеты изготавливаются из бетона с добавлением разных красителей. Могут подходить под любые дизайнерские идеи. Цена доступна. Конструкция нуждается в обустройстве фундамента.
Подбираем кирпич
Важно помнить, что чем выше забор, тем больше будет вес кладки на фундамент.
Для несущей способности опор нет жестких требований к выбору вида кирпича. Допускается применение:
- силикатного;
- керамического;
- облицовочного и др.
Подробные технические характеристики, свойства, плюсы и минусы каждого типа вы найдете в статье: «».
Главное, чтобы построенная колонна выдерживала любые боковые нагрузки от порывов ветра либо при открывании ворот, калитки.
Кирпич должен быть целый, без сколов и трещин.
Пользуется спросом оранжевый керамический, облицовочный фагот. Последний создает имитацию натурального камня. Если вы решили выкладывать столбы силикатом, то эстетично будет смотреться чередование контрастных цветов белого и черного либо красного.
Сколько нужно кирпича при кладке столбов для забора
Для точного расчета количества материала для столбов высоту ограды делят на толщину каждого камня, учитывая шов.
Так, для забора в 2 м со столбами высотой 2,2 см используется кирпич размерами ‒ 25*12*6,5 см. Берем среднюю ширину шва — 1 см.
Фундамент для кирпичного забора своими руками. Возведение фундамента для кирпичного забора
Чтобы кирпичный забор не накренился, не потрескался, сооружение фундамента – необходимо. Фундамент – конструкция для распределения нагрузки от несущей кладки на грунт. Чем массивнее кирпичная кладка, тем прочнее должна быть основа.
В зависимости от высоты, толщины забора, качества грунта, глубины промерзания почвы, рельефа ограждаемой территории, фундамент выбирают из следующих видов:
- ленточный;столбчатый;каменный;ленточно-столбчатый.
Предназначен для заборов высотой 1–2 метра, толщиной в полкирпича, кирпич, на устойчивых почвах с глубоким залеганием грунтовых вод. В зимний период такие земли промерзают неглубоко. Рельеф с перепадами не более полуметра.
Для комбинированных заборов из кирпичных столбов, промежутки между которыми заполнены деревянным, кованным забором, металлической сеткой, листовыми щитами.

Чем глубже промерзает почва, более подвижна из-за песка, грунтовых вод, чем крупнее, массивнее кирпичный столб, тем больше заглубляют сваю.
Выбирают для заборов с высотой 1,5–2,5 метра, устанавливаемых на зыбучих, подвижных землях, с близким залеганием грунтовой воды, в районах с суровыми зимами, глубоким промерзанием почвы. В случае перепада высот рельефа, ленту фундамента сооружают ступеньками.
Предварительно выбирается тип фундамента по принципам, описанным в ранее, расчищается территория, выполняется разметка.

Самый простой в строительстве тип фундамента это столбчатый. Для его установки столбы устанавливают через каждые 2–3 метра где планируется возводить столбы самого забора.
Далее, разберем более сложные в реализации остальные типы фундамента, возведение которых, целесообразно выполнять с использованием строительной техники.
Для распланировки используется бечевка и колышки.

По внешнему и внутреннему периметру будущей траншеи вбиваются колышки, между ними натягивают бечевку. Так обеспечивается идеальная ровность. Ширина не меньше 50 см.
Для ленточно-столбчатого дополнительно отмечают места под столбы на расстоянии 2–3 метра друг от друга.
По разметке выкапывают траншею и выемки под столбики на глубину не меньше 80 см ниже дна траншеи.

По разметке выкапывают траншею глубина которой должна на 20–30 см превышать глубину промерзания поверхностного слоя грунта. Если не соблюсти это правило даже армированный фундамент при промерзании грунта может деформироваться что приведет к разрушению забора. Для средних широт достаточная глубина составляет около 40 см.
Столбики зарывают на глубину не меньше 80 см ниже дна траншеи.
Раствор замешивают из песка, щебня, цемента марки М300-M400, воды в соотношении 3:5:1:0,7 соответственно. Он должен получиться вязким.
На дно засыпается слой песка. Толщина подушки 10–15 см. Песок смачивается водой, утрамбовывается.
Укладывается арматура, металлические пруты диаметром 0,7–1,5 см. Два на дно, два – ближе кверху. Присыпается крупным щебнем.
Вся конструкция заливается цементным раствором.

Чтобы не образовывались пустоты, во время заливки смесь необходимо протыкать лопатой, утрамбовывая, плотно усаживая. Верхний слой поверхности выравнивается кельмой.Если база для забора ленточно-столбчатая, первоначально делают столбики в углублениях, затем ленту основы.Для каменной базы полость заполняется камнем и заливается бетонным раствором.Перед тем как положить первый ряд кирпичей, поверхность фундамента, освобожденного от опалубки, обрабатывают битумной мастикой (гидроизоляция). Поверхность укрывают 1-2 слоями рулонной гидроизоляции (рубероид или подобные материалы).
Забор из кирпича сохранит первоначальный привлекательный вид не один десяток лет, если основа для него возведена качественно. Выполняя фундаментные работы, следует тщательно следить за всеми этапами и обязательно использовать качественные материалы.