Фундамент для кирпичного забора своими руками. Как правильно залить фундамент под кирпичный забор своими руками (с видео)
- Фундамент для кирпичного забора своими руками. Как правильно залить фундамент под кирпичный забор своими руками (с видео)
- Глубина фундамента под кирпичный забор. Свойства кирпичных заборов и особенности установки фундамента для них
- Забор из кирпича под ключ. Кирпичный забор «под ключ»
- Как сделать кирпичный забор в майнкрафте. Как скрафтить забор в майнкрафте
- Расчет фундамента под кирпичный забор. Возведение фундамента для кирпичного забора
Фундамент для кирпичного забора своими руками. Как правильно залить фундамент под кирпичный забор своими руками (с видео)
В качестве фундамента для невысоких стен вполкирпича в районах, где не бывает зимнего пучения грунта, можно порекомендовать бетонную ленту высотой 100—150 мм и шириной 300 мм.
Для стен в один кирпич высотой до 1 м толщина фундамента под кирпичный забор, возводимый своими руками, возрастает до 225—300 мм при ширине 450 мм (две ширины стены).
Для более высоких (1,8—2 м) стен в один кирпич глубина фундамента должна быть 375—450 мм при ширине ленты от 450 мм до трех толщин стены. Фундаментная лента должна иметь возможность расширяться, для чего в ней необходимо устраивать вертикальные щели через каждые 10—15 м.
При сложных грунтах глубина заложения ленты фундамента под кирпичный забор зависит как от свойств конкретного грунта, так и от общего веса устанавливаемого сооружения. Если подошва фундамента лежит ниже границы промерзания, на него не будет влиять смещение почвы, схватываемой морозом, его не будет перекашивать. Для легких ограждений достаточно, если бетонная плита фундамента под забор с кирпичными столбами будет заглублена на 50—60 см ниже уровня земли. На пучинистых грунтах пролеты можно класть по мелкозаглубленному фундаменту между столбами, установленными ниже уровня промерзания грунта. В глинистых грунтах дополнительную гарантию прочности дает армирование фундамента.
После разметки линии забора с помощью колышков, строительного шнура или бечевки проводят разметку площадки фундамента ограды. С участка удаляют всю растительность и выкапывают траншею соответствующих размеров, причем глубина траншеи должна быть на 75—150 мм больше толщины фундамента. По верху траншеи устанавливают обноску — опалубку из досок, чтобы сформировать наверху фундаментной ленты бетонный цоколь, немного выступающий из земли. Доски обноски выставляют так, чтобы их верхние грани располагались строго горизонтально и на одном уровне.
Перед тем как залить фундамент под кирпичный забор, на дно траншеи насыпают небольшой слой песка, затем — щебень и плотно утрамбовывают. Затем увлажняют траншею и заполняют ее бетоном доверху. Разравнивают поверхность рейкой и оставляют до высыхания. В холодную или жаркую сухую погоду для того, чтобы сохранить требуемую влажность бетона, его следует накрыть полиэтиленовой пленкой. Но если ожидается мороз, то бетонирование придется отложить.
При отливке фундамента для кирпичного забора, возводимого своими руками, цоколь формируют не всегда. Более того, первые один или два ряда стены могут располагаться ниже уровня земли. На грунтах с повышенной влажностью для этих рядов следует использовать плотный кирпич повышенной прочности.
Для высоких колонн или столбов следует заделать в бетонную смесь фундамента так называемый начальный прут, а затем с помощью оцинкованной проволоки прикреплять к нему арматурные прутья с перехлестом 0,5 м.
Если поверхность земли вдоль линии будущего забора из кирпича, возводимого своими руками, имеет уклон, в ленточном фундаменте следует создать ступени. Разница в высоте таких ступеней должна быть кратна одному или нескольким рядам кладки, в зависимости от крутизны склона. Длина каждой ступени должна соответствовать целому ряду кирпичей.
Глубина фундамента под кирпичный забор. Свойства кирпичных заборов и особенности установки фундамента для них
Забор, возведенный из кирпича, способен защитить участок максимально эффективно, при этом внешне он будет выглядеть презентабельно и прослужит долгое время.
Но для продолжительного времени службы такого ограждения необходимо знать, как правильно сделать фундамент под кирпичный забор .
Если пренебрегать важными моментами данного процесса – забор может не выполнять возложенных на него функций, и, по истечению первого десятка лет, его нужно будет переделывать.
Особенности кирпичных заборов
Забор, материалом, для возведения которого послужил кирпич, имеет целый ряд достоинств:
- высокие показатели прочности;
- большой уровень защиты ограждаемой территории;
- способность не поддаваться влиянию огня, атмосферных явлений и механических воздействий;
- значительный срок службы (при этом без потери первоначального внешнего вида);
- большое количество вариантов визуального оформления;
- возможность его комбинирования из другими строительными материалами, получая возможность создать забор с уникальным внешним видом, а также сэкономить.
К отрицательным сторонам выбора данного материала стоит отнести его высокую цену и важность соблюдения всех технологических моментов при укладке, а также при подготовке основания (глубина фундамента должна соответствовать высоте забора и уровню будущей на него нагрузки).

Решетчатый кирпичный забор
Виды фундамента под кирпичный забор
Виды основания под забор из кирпича:
- ленточный,
- ростверк.

От качества фундамента будет зависеть устойчивость конструкции
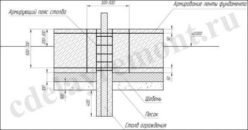
Ленточный. Первый вид основания получил такое название от способа укладки – имеет вид ленты. Ширина данной ленты будет около 40 сантиметров, а глубина – 40-50 см.
Две трети фундамента укрываются в земле и только одна треть возвышается над ее уровнем. Укладка арматуры производится в 2 ряда по два прута.
Ростверковое основание . Второй вид основания используют в случаях, когда нет возможности использовать фундамент ленточного типа.
Ростверк – это составляющая часть свайного фундамента, предназначенная для равномерного распределения нагрузки забора (стены) на все винты опоры.
К примеру, для создания основания не копают траншею, а забивают по будущему периметру забора деревянные столбцы, сверху к которым крепят доски, создавая своеобразную коробку. Эти столбцы и послужат опорой будущему сооружению.
Свайный фундамент не способен полностью выдержать вес полноценного кирпичного забора, поэтому его используют в тех случаях, когда кирпич комбинируется с материалами, уменьшающими массу конструкции.К примеру, забор из дерева с кирпичными столбами. Рекомендуется отдать предпочтение ленточному фундаменту. О том как выглядит фундамент под забор с кирпичными столбами, подробно указано в данной статье.
Разметка и подготовка траншеи
Перед проведением работ по устройству фундамента нужно очистить и разровнять поверхность грунта, на котором будет выполняться работа.

Траншея под фундамент
После точного определения места под сплошной забор , необходимо произвести разметку с помощью колышек.
Обычно фундамент имеет одинаковую ширину – около 40 см. Забиваете колышки и натягиваете шнур. Ориентироваться можно на фасад здания или проходящую мимо дорогу.
При разметке также стоит сразу определить места, на которых будут размещены промежуточные столбы, а также ворота и калитка. Стоит просчитать ширину будущего забора – размеры фундамента должны бить больше этой величины.
Рекомендуется провести расчет фундамента максимально точно и выбирать его глубину, основываясь на глубине промерзания грунта.
Длина промежутков между столбами зависит от толщины будущей стены, и, как правило, не превышает 3-6 метров.
Перед созданием траншеи нужно проанализировать характеристики грунта и просчитать приблизительный вес будущей ограды.
Под фундамент ленточного типа глубина должна превышать 40 см.
Выемка грунта выполняется с помощью специального оборудования, либо обычной лопаты.
Если копали траншею самостоятельно – особое внимание уделите ровности стен, а особенно основанию – оно должно быть максимально ровным.
Каким образом и, так, что бы он как можно дольше служил, подробно указано в статье.
Какова стоимость забора из сетки, подробно указано в данной статье.
Какова цена работы установки забора, можно подчеркнуть для себя прочитав статью здесь: https://2gazon.ru/postroiki/zabory/iz-metalloprofilya/ustanovka.html
Армирование
Перед началом процесса армирования нужно установить опоры, которые послужат основанием для создания кирпичных столбов. Для этого на уже размеченных заранее местах для установки столбов делаются отверстия с помощью бура.
В готовые отверстия вставляются трубы. Установку лучше начинать с углов. Трубы должны стоять вертикально и быть закреплены с помощью утрамбовки щебня или песка (можно залить раствором).

Армирование – залог надежности
Источник: https://gorizont-pro.ru/stati/kakaya-glubina-fundamenta-pod-zabor-glubina-zalozheniya
Забор из кирпича под ключ. Кирпичный забор «под ключ»

Компания «Русские заборы» строит кирпичные ограждения «под ключ». Работаем с конструкциями любой высоты, длины и оформления. Дополнительно установим ворота, калитки, элементы декора, выполним любые другие пожелания.
Главные причины выбрать кирпич в качестве строительного материала для забора
Кирпич по многим показателям выигрывает у более дешевых, но при этом менее надежных материалов – сетки-рабицы, профлиста, штакетника и других вариантов. В зависимости от типа ограждения, используются монолитные или пустотные кирпичи, способ укладки также может различаться.
Этот материал отличают несколько главных преимуществ:
- высокий уровень прочности;
- долговечность – более 50 лет;
- устойчивость к сильным нагрузкам и другим потенциальным угрозам.
Мы используем стройматериалы, поставляемые проверенными изготовителями, которые соответствуют всем техническим требованиям, надежны и при этом доступны по цене.
Этапы строительства кирпичного забора
Возведение заборов из кирпича «под ключ» предполагает, что наша компания выполнит весь комплекс работ в полном объеме. Работа ведется в несколько этапов:
- Выезд замерщика на участок. Перед началом строительства нужно осмотреть место проведения работ, оценить особенности ландшафта. После этого мы консультируем клиента по всем возникающим вопросам, рассчитываем примерную стоимость.
- Разметка. После того как план составлен, производится разметка будущего объекта на местности с помощью шнуров.
- Земляные работы. Необходимо провести выемку грунта в объеме, достаточном для того, чтобы подготовить фундамент. Глубина заглубления столбов будет зависеть от того, с каким типом земли предстоит работать. Заглубляться нужно ниже уровня промерзания. Когда траншея вырыта, начинается подготовка фундамента – засыпается песчаная подушка. Иногда ее требуется залить водой и дополнительно утрамбовать. Если специалисты имеют дело с пучинистым грунтом, на дно может быть уложен геотекстиль.
- Армирование. Строительство кирпичного забора «под ключ» невозможно без прочного и надежного фундамента. Он компенсирует нагрузку, а без прочного основания на заборе появятся трещины и другие дефекты. Для армирования используются стальные стержни.
- Заливка бетона. Чаще всего раствор заливают в опалубку, которую после его высыхания полностью убирают. Важно использовать смесь с высоким уровнем защиты от промерзания, растрескивания и т.д.
- Кладка кирпича. Кирпичные заборы возводятся между опорными столбами – это позволяет дополнительно укрепить и стабилизировать кладку. Могут использоваться разные схемы укладки стройматериалов.
Как сделать кирпичный забор в майнкрафте. Как скрафтить забор в майнкрафте

Как сделать скрафтить забор в майнкрафте
Забор в игре майнкрафт представляет собой блок, который используется в основном для заграждения определенной местности. Высота забора составляет полтора блока, поэтому через него невозможно перепрыгнуть без лошади или зелий прыгучести.
Также через забор не могут пролезть зомби, криперы и ведьмы, поэтому из него можно сделать полноценную стену. Отыскать забор можно в деревнях, крепостях и заброшенных шахтах, но лучше и быстрее будет сделать его самостоятельно.

В этой статье мы расскажем как скрафтить забор в майнкрафте .
Что понадобится для крафта забора
Перед тем как начать крафтить забор нужно собрать необходимые для этого ресурсы.
Кстати от породы досок зависит цвет и название забора.
Крафт забора в майнкрафте
После того как все материалы будут собраны, можно приступать к созданию забора.
Чтобы скрафтить забор откройте верстак и разместите ресурсы в следующем порядке:
- Первый ряд: Пусто
- Второй ряд: Два блока досок по бокам и палка посередине.
- Третий ряд: Также как и во втором ряду.
В результате справа вы увидите три готовых забора которые нужно перенести в инвентарь.
Кстати, если вы хотите сделать адский забор вам понадобиться шесть адских блоков, которые нужно разместить во втором и третьем ряду панели верстака.

Вывод:
Теперь вы знаете как скрафтить забор в майнкрафте . Также из заборов можно сделать ножки столов и маленькие столбики для отметки местности или дороги.
Помимо этого к забору можно привязывать поводки с животными. Некоторые геймеры используют деревянные заборы как топливо для печи.
Расчет фундамента под кирпичный забор. Возведение фундамента для кирпичного забора
Чтобы кирпичный забор не накренился, не потрескался, сооружение фундамента – необходимо. Фундамент – конструкция для распределения нагрузки от несущей кладки на грунт. Чем массивнее кирпичная кладка, тем прочнее должна быть основа.
В зависимости от высоты, толщины забора, качества грунта, глубины промерзания почвы, рельефа ограждаемой территории, фундамент выбирают из следующих видов:
- ленточный;столбчатый;каменный;ленточно-столбчатый.
Предназначен для заборов высотой 1–2 метра, толщиной в полкирпича, кирпич, на устойчивых почвах с глубоким залеганием грунтовых вод. В зимний период такие земли промерзают неглубоко. Рельеф с перепадами не более полуметра.
Для комбинированных заборов из кирпичных столбов, промежутки между которыми заполнены деревянным, кованным забором, металлической сеткой, листовыми щитами.

Чем глубже промерзает почва, более подвижна из-за песка, грунтовых вод, чем крупнее, массивнее кирпичный столб, тем больше заглубляют сваю.
Выбирают для заборов с высотой 1,5–2,5 метра, устанавливаемых на зыбучих, подвижных землях, с близким залеганием грунтовой воды, в районах с суровыми зимами, глубоким промерзанием почвы. В случае перепада высот рельефа, ленту фундамента сооружают ступеньками.
Предварительно выбирается тип фундамента по принципам, описанным в ранее, расчищается территория, выполняется разметка.

Самый простой в строительстве тип фундамента это столбчатый. Для его установки столбы устанавливают через каждые 2–3 метра где планируется возводить столбы самого забора.
Далее, разберем более сложные в реализации остальные типы фундамента, возведение которых, целесообразно выполнять с использованием строительной техники.
Для распланировки используется бечевка и колышки.

По внешнему и внутреннему периметру будущей траншеи вбиваются колышки, между ними натягивают бечевку. Так обеспечивается идеальная ровность. Ширина не меньше 50 см.
Для ленточно-столбчатого дополнительно отмечают места под столбы на расстоянии 2–3 метра друг от друга.
По разметке выкапывают траншею и выемки под столбики на глубину не меньше 80 см ниже дна траншеи.

По разметке выкапывают траншею глубина которой должна на 20–30 см превышать глубину промерзания поверхностного слоя грунта. Если не соблюсти это правило даже армированный фундамент при промерзании грунта может деформироваться что приведет к разрушению забора. Для средних широт достаточная глубина составляет около 40 см.
Столбики зарывают на глубину не меньше 80 см ниже дна траншеи.
Раствор замешивают из песка, щебня, цемента марки М300-M400, воды в соотношении 3:5:1:0,7 соответственно. Он должен получиться вязким.
На дно засыпается слой песка. Толщина подушки 10–15 см. Песок смачивается водой, утрамбовывается.
Укладывается арматура, металлические пруты диаметром 0,7–1,5 см. Два на дно, два – ближе кверху. Присыпается крупным щебнем.
Вся конструкция заливается цементным раствором.

Чтобы не образовывались пустоты, во время заливки смесь необходимо протыкать лопатой, утрамбовывая, плотно усаживая. Верхний слой поверхности выравнивается кельмой.Если база для забора ленточно-столбчатая, первоначально делают столбики в углублениях, затем ленту основы.Для каменной базы полость заполняется камнем и заливается бетонным раствором.Перед тем как положить первый ряд кирпичей, поверхность фундамента, освобожденного от опалубки, обрабатывают битумной мастикой (гидроизоляция). Поверхность укрывают 1-2 слоями рулонной гидроизоляции (рубероид или подобные материалы).
Забор из кирпича сохранит первоначальный привлекательный вид не один десяток лет, если основа для него возведена качественно. Выполняя фундаментные работы, следует тщательно следить за всеми этапами и обязательно использовать качественные материалы.